查看完整案例

收藏

下载
Spanjoletten住宅项目(Brf Spanjoletten)位于哥德堡,是一个将新建住宅与既有办公建筑改造再利用相结合的居住街区。该地块原为生产五金配件的工厂Fixfabriken,其总部大楼得以保留,并被改造为住宅及一间新餐厅。项目提供多样化的居住类型,从联排住宅与单间公寓到宽敞的大户型住宅不等。原工厂的砖结构建筑语言成为整体设计的重要灵感来源。
Brf Spanjoletten is a residential block in Gothenburg, combining new construction with the renovation and reuse of an existing office building. The site was formerly a factory producing fittings, Fixfabriken, whose headquarters have been preserved and transformed into homes and a new restaurant. The project offers a diverse range of housing, from townhouses and studios to spacious apartments and the factory’s brick architecture has inspired the entire design.
▼建筑外景,Exterior of the building ©Johan Dehlin
Spanjoletten项目植根于区域的工业历史。毗邻克利潘(Klippan)19世纪的砖建筑群,项目对港口周边丰富而富有活力的砖建筑风格进行了当代表达与再诠释。街区内部通过变化的建筑高度与标志性的实体山墙围合,营造出近似室内空间般的城市场所感。砖立面的处理则形成类似墙纸图案的纹理,进一步强化了这种空间体验。
▼场地轴测图,Site axonometric diagram ©Olsson Lyckefors Arkitektur
The Spanjoletten project is rooted in the area’s industrial history. With close proximity to Klippan’s 19th-century brick buildings, the project is a reinterpretation of the rich and light-hearted brick architecture found in the nearby harbor area. Varying building heights within the block, framed by characterizing solid gables, create urban spaces almost like interior rooms. This experience is enhanced by the treatment of the brick facades forming wallpaper like patterns.
▼建筑街景,Street view of the building ©Johan Dehlin
Fixfabriken Spanjoletten展示了再利用如何推动城市发展。通过保留并精心修复旧办公楼,项目不仅保护了城市重要的工业遗产,也为可持续住宅树立了新的标准。在严格遵循遗产保护原则的前提下,项目在保留建筑原有特征的同时打造出现代住宅。其一项重要成果是获得瑞典Miljöbyggnad Silver(环境建筑银级)认证,体现了项目对可持续发展的坚定承诺。
Fixfabriken Spanjoletten exemplifies how reuse can drive urban development. By preserving and carefully restoring the old office building, the project has safeguarded an important piece of the city’s industrial heritage while setting a new standard for sustainable housing. With strict adherence to heritage conservation, modern homes have been created while maintaining the building’s original character. A key achievement was attaining the Swedish Miljöbyggnad Silver certification, demonstrating the project’s strong commitment to sustainability.
▼建筑墙体细节,Building wall details ©Johan Dehlin
再利用理念贯穿整个改造过程。原有砖材经过细致检测后重新使用,在降低碳足迹的同时保留了建筑的历史风貌。在被保留的建筑部分,所有砖块均被小心拆除、检测并重新利用,以满足可持续性要求。其他元素如橡木门、木质构件、石灰石地面及铁艺构件也均得到修复,营造出真实而富有质感的居住环境。
▼墙砖图案,Wall brick pattern ©Olsson Lyckefors Arkitektur
Reuse has been integral to the transformation. The original bricks were carefully tested and reintegrated, reducing the carbon footprint while preserving the building’s historical aesthetic. In the preserved section all bricks were carefully dismantled, tested, and reused to meet sustainability requirements. Other elements such as oak doors, wooden features, limestone floors, and ironwork have been restored, creating an authentic living environment.
▼建筑入口,Building wall details ©Johan Dehlin
除了自身功能更新外,Fixfabriken Spanjoletten还对整个社区产生了积极影响,启发了周边新建住宅采用富有特色的砖纹设计与高品质细部。项目不仅仅是对历史建筑的保留,更重新定义了整个街区的身份,在历史与未来之间实现了无缝融合。
Beyond its program, Fixfabriken Spanjoletten has influenced the entire neighborhood, inspiring new residential buildings with distinctive brick patterns and high-quality details. More than just preserving a historic structure, this project has redefined an entire district’s identity, seamlessly integrating history with the future.
▼室内空间,Interior space ©Johan Dehlin
▼项目区位图,Site plan ©Olsson Lyckefors Arkitektur
▼平面图,Plan ©Olsson Lyckefors Arkitektur
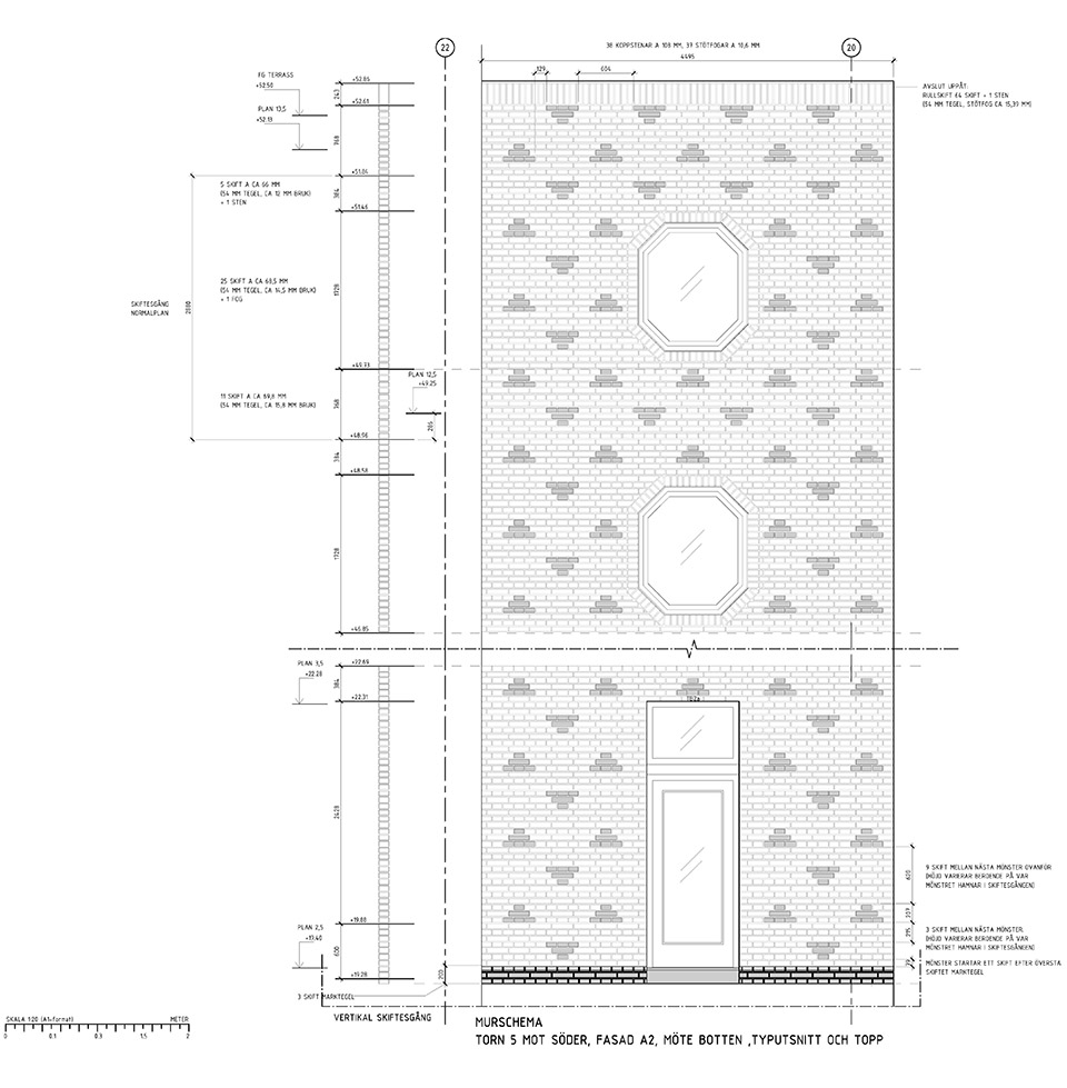
▼立面,Elevation ©Olsson Lyckefors Arkitektur
▼剖面,section ©Olsson Lyckefors Arkitektur
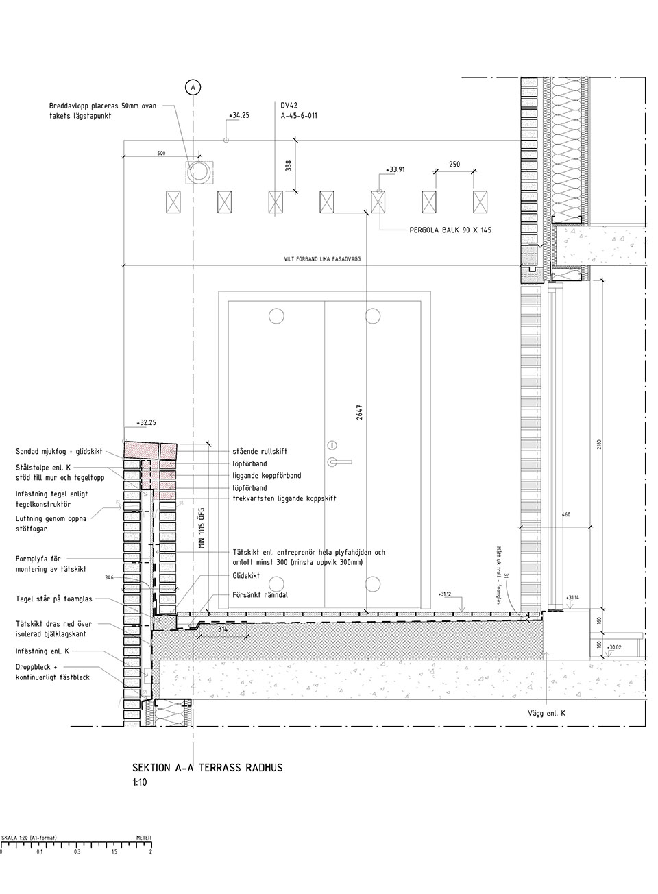
▼细节大样图,details ©Olsson Lyckefors Arkitektur
▼墙体细部,Wall details ©Olsson Lyckefors Arkitektur
客服
消息
收藏
下载
最近






























