查看完整案例

收藏

下载
Norihito Yamauchi
每个空间都旨在创造一种节奏感十足的空间体验,土楼地面穿过低顶区域,通向两端的大拱形空间。
raumus studio
RENKA是一座位于福冈县前田町中心的70年历史的稻米厂改造项目,经过现代化改造,适应现代生活方式,旨在展示改造的魅力和可能性。一座曾经深受当地人喜爱的稻米厂被改造为一座现代住宅,在保留建筑历史和魅力的基础上加以利用。
建筑外观
© Norihito Yamauchi
屋顶 © Norihito Yamauchi
可持续的样板房
原本是一座稻米厂,建筑包括一栋一层的稻米加工厂和一栋主要作为仓库使用的两层建筑。由于作为独立住宅的规模较大,因此两层的部分被改造成住宅,而一层部分则设计为零售空间,面向社区开放。目前,在日本各地建造了许多样板房,但许多房屋在大约五年后因设计已过时而被重建,最终变得老旧。针对这种情况,我们致力于创造一座可持续发展的样板房,希望这座房屋能够深受当地社区喜爱,并与模型房α之间保持互动关系。
一层社区零售空间 © Norihito Yamauchi
一层起居室概览 © Norihito Yamauchi
起居室近景 © Norihito Yamauchi
厨房与用餐区 © Norihito Yamauchi
厨房与用餐区 © Norihito Yamauchi
二层室内空间 © Norihito Yamauchi
具有节奏感和宽敞空间的大空间布局
这座曾用作仓库的两层建筑有着四户的立面,并且采用了跨越大跨度的大梁结构。大梁是建筑最具特色的部分,我们考虑在住宅部分的改造中尽可能多地保留它们,作为室内设计元素。入口位于建筑的中央,建筑的一半用于租赁空间(社区空间),另一半作为住宅(样板房),土楼地面将两者分开。每个空间都旨在创造一种节奏感十足的空间体验,土楼地面穿过低顶区域,通向两端的大拱形空间。同时,我们将住宅的新部分设计为与现有粗大梁和木质材料和谐融合,使用强烈纹理的胶合板、大型家具和宽大木地板,以与30厘米的圆木梁相协调。
两端挑高空间 © Norihito Yamauchi
低顶过渡空间 © Norihito Yamauchi
楼梯 © Norihito Yamauchi
二层 号房
© Norihito Yamauchi
二层号房
© Norihito Yamauchi
内部框架
由于原有的柱子预期不足以承载重量,我们浇筑了新的坚固混凝土基础,并在现有的柱子和梁旁安装了新的柱子,使用牵引技术倾斜了这些梁。通过在使用现有柱子和梁的同时进行加固,建筑的抗震性达到了现行法规的标准。
室内细部 © Norihito Yamauchi
夜晚社区零售空间 © Norihito Yamauchi
夜晚起居室内 © Norihito Yamauchi
夜晚厨房与用餐区 © Norihito Yamauchi
夜晚室内一角
© Norihito Yamauchi
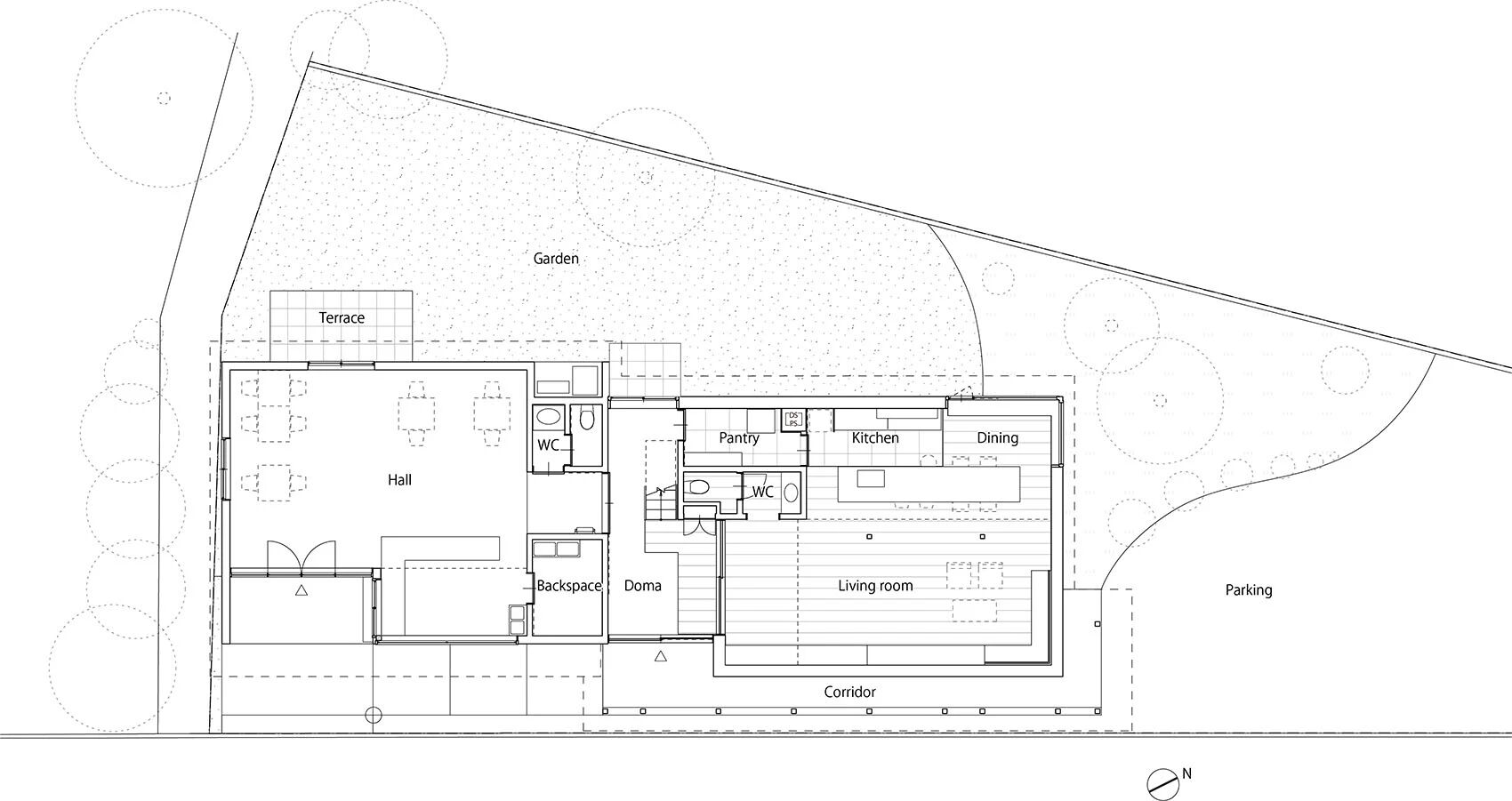
项目图纸
一层平面图
© raumus
二层平面图
© raumus
客服
消息
收藏
下载
最近































