查看完整案例

收藏

下载
大面积浅卡其色带来温柔的铺陈,气息流动,心境舒展,万物自洽。
动线收放自如,行走坐卧从容。
精微布局将多元生活场景精准落笔,让居者与内心热爱,成为家的主语。
We all hold dreams of home. The designer interprets these dreams with careful envisioning and crafting. A unique home comes to life.
Designer
Information
宋子敬
HIID湖南省建筑室内设计协会 会员
湖南湘潭设计与艺术家协会 理事
湖南惟识构筑设计有限公司 主理人/设计总监
【设计荣誉】
2021 HIID顶峰设计奖 商业空间类 优秀奖
2021 HIID顶峰设计奖 住宅空间类 银奖
2021 金住奖 中国(湘潭)十大居住空间设计师
2020 HIID顶峰设计奖 住宅空间类 优秀奖
40 UNDER 40中国(湘潭)设计杰出青年(2020-2021)
40 UNDER 40中国(湘潭)设计杰出青年(2021-2022)
40 UNDER 40中国(湖南)设计杰出青年(2021-2022)
【代表作品】
《素·澜》纳帕溪谷 住宅类 银奖
《颜·物语》经典花园 住宅类 优秀奖
《星空圆舞曲》张家界碧桂园 住宅类 优秀奖
《星脉》越南空中酒吧 商业会所类 优秀奖
窗为画框,光刻笔触,色彩作为精巧点缀,共同完成家的画卷。
第一眼的通透感,源于沙发后两面大窗的巧妙布局,澄澈光影之下,视野无拘无束,尽释大平层优势。整个客厅色调介于浅米与卡其之间,像一杯杏仁奶,沉淀出奶油般的温柔质感;墙面、沙发与地毯在这样的底色中融为一体,连空气都染上暖意。
The palette drifts between beige and khaki, like cream settling into stillness—warm, soft, with that unmistakable richness. Light pours through two large windows behind the sofa, opening the view wide and making the most of the flat’s generous scale.
客厅通往玄关的短廊上设有一组黑色酒柜,深邃墨色搭配清透玻璃柜门,在视觉上形成厚重与轻盈的平衡,既保留了藏品的清晰视界,又增添几分精致的层次感。好友到访时,挑选一支相称的酒,那些关于品味与岁月的故事,便自然而然地流淌出来。
- Along the short hallway that leads from the living room to the entry, a black wine cabinet stands quietly. When friends visit, a bottle is chosen, glasses find their way into hands, and time slows down over good company.
个性与亲密共生,更有藏在细节里的松弛感。
厨房中大面积黑色与局部绿色的碰撞,一深一浅,个性而富有艺术张力,令人眼前一亮。餐厅则与客厅保持着恰到好处的亲近,圆桌成为视觉与情感中心,让家人心意自然交汇。客餐厅边界处,一方靠窗小吧台顺势而生,晴光下读书,入夜后小酌,窗外是城市天际,手中是半杯清酒,在这开阔大宅的一隅,时光也慢下脚步。
- Black meets green in the kitchen—bold and refreshing. A round table draws the family together in quiet communion. By the window, a small bar invites you to pause, to gaze out, to breathe.
家的转角处总有一角可享浮生半日闲,与茶、与己、与重要的人共度时光。
品茗区衔接着客厅的开阔顺势铺展,辟出一处闹中取静的休闲天地。大理石茶台居中一方,奠定沉静基调;茶柜上黑色开放格跳脱出几分巧思,将东方雅趣与现代轻奢的舒适感巧妙相融。独处时,一人一席,看茶叶舒展,听茶水沸腾,自得其乐;亲友在侧,此处又化身为谈天说地的中心,慢煮细品间,情谊随茶香缓缓沉淀。
Tucked beside the living room, this tea retreat finds calm within the everyday—a quiet pivot between East and West, where classic elegance meets modern ease. Here, solitude settles as naturally as conversation.
以“自在”为核心,将起居、阅读与休憩织成三重生活场景。
起居室是独属于家人的私密休闲区,兼容多元生活方式与习惯,静坐休憩、观影放松,轻松满足日常休闲需求。沙发背倚整墙窗,纱帘轻垂如云,天光将视野染得明亮通透;小书房退居一隅,自成幽静天地,办公或阅读皆可沉心。
The master suite unfolds as a private realm unto itself—a living area and study tucked away, offering space for solitude or shared quiet. Here, life finds its own rhythm: a morning read, an afternoon pause, a late-night thought.
书房之后,便是真正的休憩区域,空间也由此完成从开放到私密、从热闹到安静的过渡。大面积浅卡其色为主调,温润感从视觉漫入心底。床头背景墙采用简洁而对称的设计,前后进退造型暗藏巧思;暖光在墙面洇开朦胧光晕,与头顶柔光交织,似月光落进云层,整个房间也沉浸在这片温柔的夜色里。
- Moving inward, the journey unfolds from openness to intimacy, from the lively to the serene. Warm khaki wraps the space in quiet embrace, its gentle tones seeping from walls into spirit—a stillness that settles softly, like light at day’s end.
从公共起居到私密休憩,一处共享天地的热闹,三间各自安睡的梦境。
次卧外侧规划出一处公共起居空间,将休憩与学习功能分开,在家的脉络里圈出一块无扰的成长自留地。沉心浸入,万籁皆远,纸笔摩挲间是与知识的对话,屏前凝神时是对更广阔天地的探索。
- Beyond the secondary bedrooms, a shared living space quietly divides rest from study—a deliberate pause where books are opened, screens come alive, and young minds explore both page and pixel.
本套次卧选用浅卡其搭配格栅元素,让简洁立面多了几分层次,打破单调却不显杂乱;线条一侧细密、一侧留白,不对称设计打破平衡的惯性,于规整中引一丝不期然的意趣。悬挑式衣柜轻盈利落,跳色开放格如同乐章变奏,既避免整面柜体的沉闷,又成为视线可以停驻的点睛之处。
In one bedroom, restraint meets invention. Simple lines gain depth from subtle gestures—a gridded wall that catches light, a floating drawer in soft contrast. Nothing shouts, yet nothing fades.
本套女儿房延续着“简而有致”的设计笔法,却在每一处细节里转向柔软的童心。雾粉色窗帘仿佛晨雾中的花瓣,或黄昏时天边最后一缕光;玩偶安静地倚在床头,守护着童真世界的梦幻与纯粹。
- The other tilts gently toward childhood. Pink curtains frame the window in romance; a plush companion rests against the pillow, keeping watch over dreams. Here, detail becomes devotion, and every corner holds a story.
色彩包容着日常琐碎,开阔格局接纳着相聚与独处,以自我感受定义着每一处所在,用生活滋养出属于家的温度。
JOKINS让居家生活更美好
- 项目信息 -
Project Information
项目户型:大平层
项目面积:420㎡
设计风格:现代轻奢
产品工艺:平板、金属
产品材质:实色混油
设计团队:惟识构筑设计有限公司
主案设计:宋子敬
项目地址:湘潭·金源府
落地团队:湘潭乔金斯
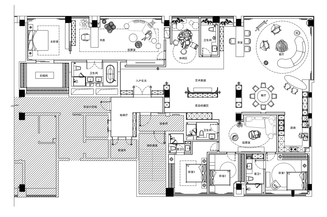
∧ PLAN/平面布局图
客服
消息
收藏
下载
最近

































