查看完整案例

收藏

下载
西昌建川电影博物馆聚落位于西昌市安宁河河谷地区西昌高铁新城片区中心位置,总体布局为“十七展馆+五大片区”,分为“公益性博物馆项目”和“西昌建川电影博物馆项目”两大部分。项目总规划用地约1200亩,总建筑面积约26.5万平方米,总投资约70亿。该项目由建川博物馆馆长樊建川率专家团队进行总体规划设计。© 毫厘建筑摄影
Xichang Jianchuan Film Museum is located in the center of Xichang High-speed Railway New Town Area in the Anning River Valley of Xichang City, with the overall layout of “17 Museum + 5 areas”, divided into “Public Welfare Museum Project” and “Xichang Jianchuan Film Museum Project” are two major parts. The total planning site of the project is about 1200 mu, with a total construction area of 265,000 square meters and a total investment of about 7 billion. The project is planned and designed by the expert team led by Fan Jianchuan, the director of Jianchuan Museum.
▼远景,Viewing the project at distance© 毫厘建筑摄影
▼外观概览,Overall of the project© 毫厘建筑摄影
十七个展馆包括世界电影发展馆、中国电影发展馆、电影摄影馆、纪录科教片陈列馆、电影声音馆、电影美术馆、故事片陈列馆、电影海报馆、儿童片陈列馆等。目前正在建设的有中国电影发展馆、电影摄影馆、故事片陈列馆、纪录片·科教片馆等。所有展馆预计2023年底全面建设完成。
▼基地分析,Site Analysis © 汤桦建筑设计事务所有限公司
▼限制条件,Constraints © 汤桦建筑设计事务所有限公司
The 17 museums include World Film Development Museum, Chinese Film Development Museum, Film Photography Museum, Documentary Science and Education Film Museum, Film Sound Hall, Film Art Museum, Feature Film Museum, Film Poster Museum, and Children’s Film Museum. Currently under construction are the Chinese Film Development Museum, the Cinematography Museum, the Feature Film Museum, and the Documentary and Science Education Film Museum. All pavilions are expected to be fully constructed by the end of 2023.
▼南立面,South facade© 毫厘建筑摄影
▼东立面,East facade© 毫厘建筑摄影
▼西立面,West facade© 毫厘建筑摄影
▼北立面,North facade© 毫厘建筑摄影
▼外观近景,Closer view of the building© 毫厘建筑摄影
我司负责设计纪录片陈列馆位于区域的核心位置,紧邻规划的重要轴线——星光大道。在本案设计中,我们认为纪录片作为一种电影题材,本身有着真实和真诚的特点。考虑到西昌的地域性气候与展陈的需要,设想了一个不同于以往的、没有气候边界的“真实”博物馆。
▼概念草图,Conceptual Sketches © 汤桦建筑设计事务所有限公司
▼设计生成,Massing Process © 汤桦建筑设计事务所有限公司
▼广场空间,Public Space © 汤桦建筑设计事务所有限公司
▼爆炸分析,Exploded Diagram © 汤桦建筑设计事务所有限公司
We are responsible for the design of the Documentary Film Museum located in the core of the area, adjacent to the important axis of planning – the Avenue of Stars. In the design of this case, we believe that documentary film, as a film subject, has its own characteristics of authenticity and sincerity. Considering the regional climate of Xichang and the need for exhibition, we envisioned a “real” museum that is different from the previous ones and has no climate boundary.
▼入口,Entrance© 毫厘建筑摄影
▼外立面近景,Closer view of the facade© 毫厘建筑摄影
▼一层大台阶,The grand steps© 毫厘建筑摄影
▼楼梯与中庭,Staircase and atrium© 毫厘建筑摄影
我们在二层设计了开放的展厅让西昌的空气与阳光渗透进建筑,使参观者真实地感受西昌的气候,更体验纪录片过去、现在和未来。建筑以开放的姿态,成为西昌建川电影博物馆聚落中独特的公共空间与精神场所。同时,我们通过不同的符号性设计手法,表达本馆的主题特色,清水混凝土真实的营造痕迹,诉说着光影的魅力。▼过程方案,Design Studies © 汤桦建筑设计事务所有限公司
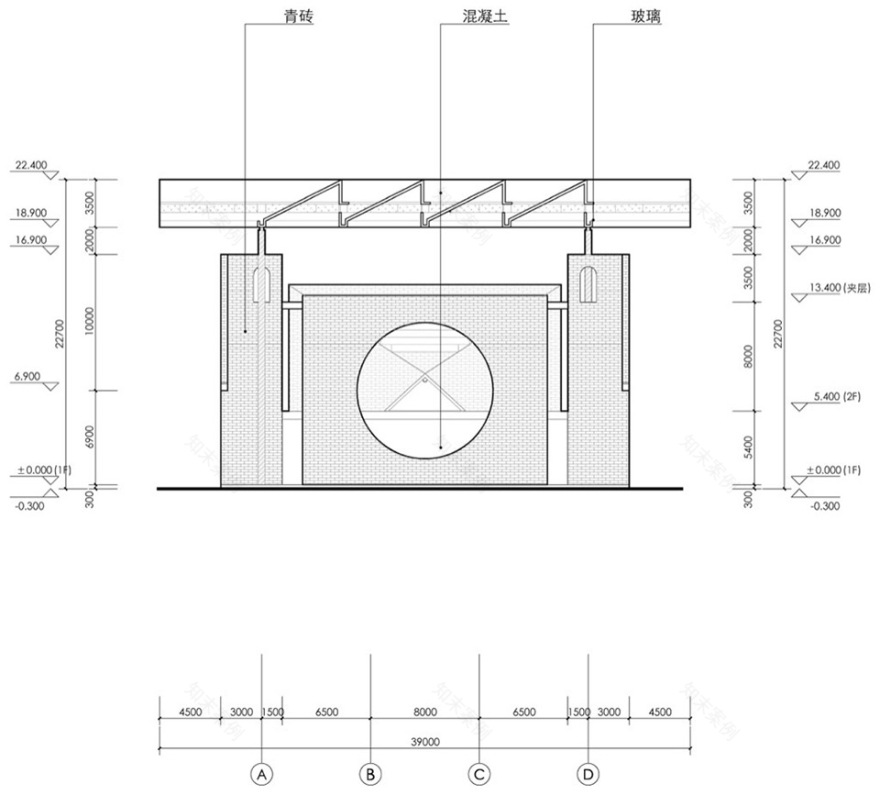
▼剖面示意,Section Concept© 汤桦建筑设计事务所有限公司
▼排水分析,Drainage Analysis © 汤桦建筑设计事务所有限公司
We designed the open exhibition hall on the second floor to let the air and sunlight of Xichang permeate the building, so that visitors can truly feel the climate of Xichang and experience more about the past, present and future of the documentary. With an open attitude, the building becomes a unique public space and spiritual place in the Xichang Jianchuan Film Museum Complex. At the same time, we express the thematic characteristics of this museum through different symbolic design techniques, and the real traces of the creation of clear water concrete tell the charm of light and shadow.
▼展厅,Exhibition hall© 毫厘建筑摄影
▼清水混凝土真实的营造痕迹,诉说着光影的魅力,The creation of clear water concrete tell the charm of light and shadow© 毫厘建筑摄影
▼框景,Frame view© 毫厘建筑摄影
▼观景角,Viewing corner© 毫厘建筑摄影
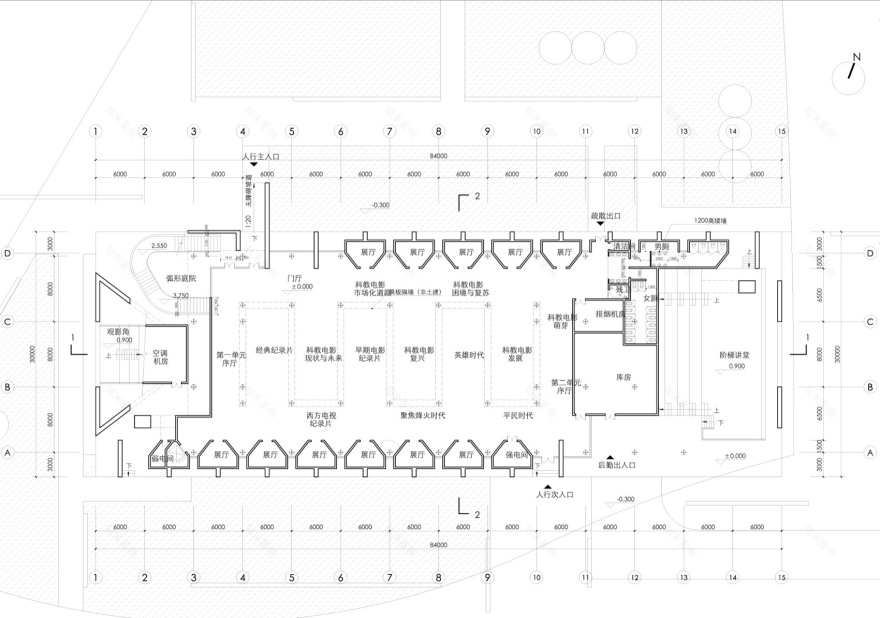
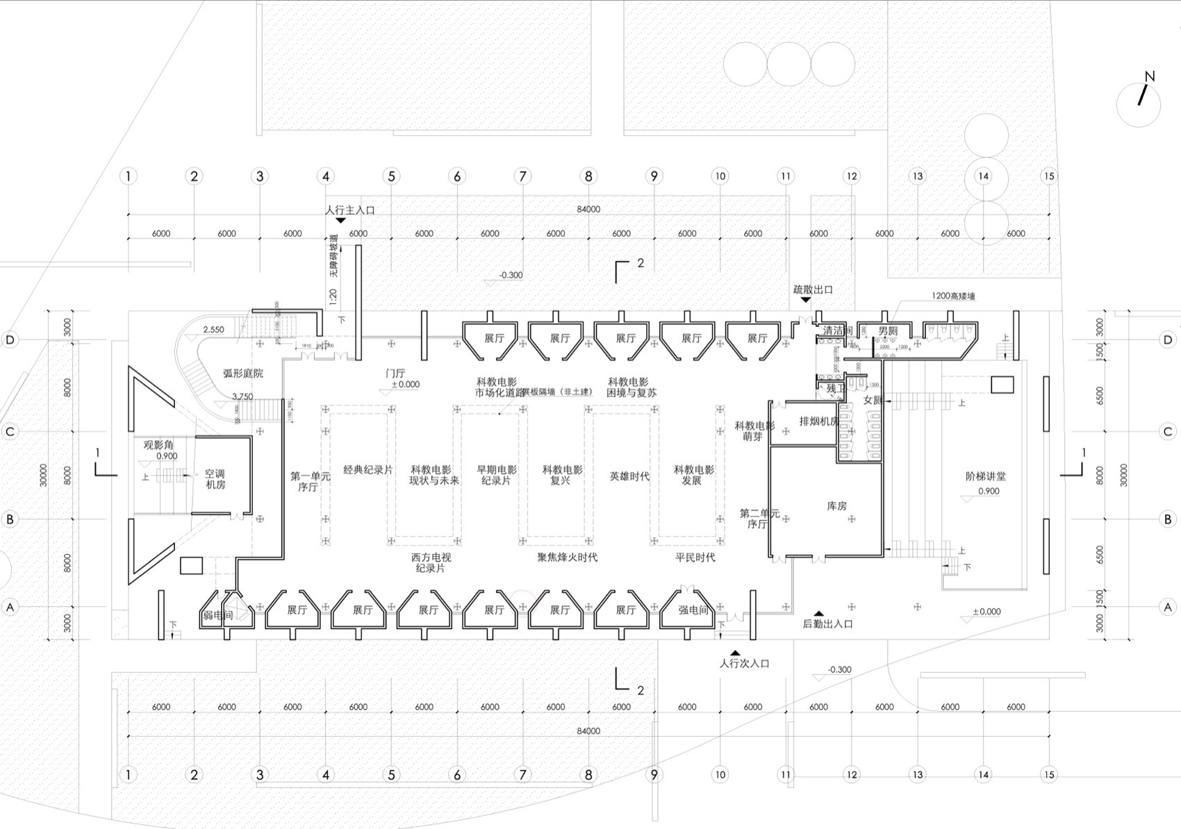
考虑到布展需要,我们将部分封闭展厅放置于一层以满足固定展陈的需要。建筑曲折的屋顶隐喻着电影制作的摄影棚——这是一个容纳创造的礼盒,更是一个造梦的工厂。
Considering the need for exhibition, we placed part of the closed exhibition hall on the first floor to meet the need for fixed exhibition. The winding roof of the building is a metaphor for the studio of film production – a gift box for creation and a factory for dream making.
▼施工过程,Construction process© 毫厘建筑摄影
▼总平面图,Site Plan © 汤桦建筑设计事务所有限公司
▼一层平面图,F1 Plan © 汤桦建筑设计事务所有限公司
▼二层平面图,F2 Plan © 汤桦建筑设计事务所有限公司
▼屋顶平面图,Roof Plan © 汤桦建筑设计事务所有限公司
▼北立面图,North Elevation © 汤桦建筑设计事务所有限公司
▼南立面图,South Elevation © 汤桦建筑设计事务所有限公司
▼剖面图,Section © 汤桦建筑设计事务所有限公司
▼东立面图,East Elevation © 汤桦建筑设计事务所有限公司
▼西立面图,West Elevation © 汤桦建筑设计事务所有限公司
项目名称:西昌建川电影博物馆聚落 · 纪录片陈列馆
项目类型:建筑
设计方:深圳汤桦建筑设计事务所有限公司
项目设计:2022年
完成年份:2025年
设计团队:
主创建筑师:汤桦
项目负责人:于文博
设计团队(人名):
方案设计:赵宇力、刘华伟
技术负责人:汪田浩
项目地址:西昌市,四川省
建筑面积:4167㎡
摄影版权:毫厘建筑摄影
合作方:
联合设计单位:CCDI悉地国际设计顾问(深圳)有限公司
项目业主:四川和锦高铁沿线新型城镇化投资发展有限责任公司
Project name: Xichang Jianchuan Film Museum Complex ·Documentary Film Museum
Project type:Architecture
Design:
Design year:2022
Completion Year:2025
Leader designer & Team:
Chief Architect: Tang Hua
Project Lead: Yu Wenbo
Design Team: Zhao Yuli, Liu Huawei
Technical Team: Wang Tianhao
Project location: Xichang, Sichuan Province
Gross built area: 4167㎡
Photo credit: MMCM
Partner: CCDI International (Shenzhen) Design Consultants Co., Ltd.
Clients: Sichuan Hejin High-speed Railway New Urbanization Investment
客服
消息
收藏
下载
最近




















































