查看完整案例

收藏

下载
© 大正建筑
1.树屋入口
Treehouse Entrance
推开园门,像是闯入藏在城市里的树屋森林 —— 挑高的穹顶是舒展的树冠,暖木色的吊顶裹着阳光的温度,悬垂的灯球是叶间漏下的星斑。
▼入口空间,entrance area © 大正建筑
Pushing open the garden gate, it’s like stepping into a cozy treehouse forest tucked away in the city — the lofty vaulted ceiling unfolds like a sprawling canopy, the warm wood-toned ceiling wraps you in the sun’s gentle glow, and the dangling light orbs are tiny star specks filtering through the leaves.
▼入口空间,entrance area © 吴清山
▼通高空间鸟瞰,aerial view of the entrance hall© 吴清山
二楼探出的小窗是树屋的瞭望口,紫与蓝是帷帐颜色,是给好奇宝宝留的秘密角落。白墙长出的 “树洞”,藏着小世界的惊喜。这里不是 “走进”去的 幼儿园,而是一路探索与攀爬的树屋家。
The little window peeking out from the second floor is the treehouse’s lookout spot; with soft purple and blue drapes, it turns into a sweet secret nook just for all the curious little ones. The “tree holes” that seem to pop right out of the white walls are brimming with tiny surprises of this little world. This isn’t a kindergarten you simply “walk into” — it’s a treehouse home where you get to wander, explore and climb to your heart’s content.
▼树屋,treehouse© 吴清山
▼二层走廊,upper floor corridor© 吴清山
▼二楼探出的小窗是树屋的瞭望口,the little window peeking out from the second floor is the treehouse’s lookout spot© 吴清山
2.绘本馆
Picture Book Library
绘本空间的吊顶一具放大了千百倍的 “东南西北”巨型折纸,棱线像折痕般利落,暖白与浅木色的拼接,阳光顺着折纸的斜角漫射下来,在台阶上投出菱形的光斑。
▼绘本馆,children’s picture book library © 大正建筑
The ceiling of this picture book space is a giant paper fortune-teller, magnified a thousand times over. Its edges are as crisp and sharp as origami creases, with a gentle blend of warm white and light wood tones. Sunlight filters slantingly through the angular folds of the origami ceiling, casting diamond-shaped splotches of light across the steps.
▼绘本馆,children’s picture book library © 吴清山
▼绘本馆,children’s picture book library © 吴清山
▼暖白与浅木色的拼接,gentle blend of warm white and light wood tones © 吴清山
二楼的书窗刚好嵌在折纸的折缝旁,趴在窗边看书,抬眼就是屋顶的折纸轮廓。
The book nooks on the second floor are perfectly nestled right beside the origami creases. Lean against the window to read, and when you glance up, the origami outline of the ceiling is right there in sight.
▼巨型折纸般的天花板,huge paper-cut-like ceiling © 吴清山
扶手散布着的小圆洞是 “绘本潜望镜”:趴在洞口往下望,能偷瞄到台阶上的伙伴正读哪本故事,还原小朋友窥视的童趣互动。
The tiny round holes dotted along the handrail are “picture book periscopes”: Kneel down and peek through one, and you can catch a little glimpse of which story your friends on the steps are reading—bringing back the delightful, playful fun of kids peeking and spying on each other.
▼扶手散布着的小圆洞是 “绘本潜望镜”,the tiny round holes dotted along the handrail are “picture book periscopes”© 吴清山
▼俯瞰绘本馆,overlooking the children’s picture book library © 吴清山
3.活动室
Activity Room
标准活动室通过“屋中屋”的构思,把休息区域和活动区域区分出来。暖木色尖顶小屋是中午午休的地方;白色屋顶下的开阔空间是撒欢场,跑跳打闹都自在。
▼活动室修改顶面木饰面,activity room with modified wooden ceiling finish © 大正建筑
The standard activity room adopts the “house-within-a-house” concept to separate the resting area from the play zone. The cozy cabin with a warm wooden pointed roof is the perfect spot for afternoon naps. In contrast, the open space under the white ceiling is a carefree playground where kids can run, jump and frolic to their hearts’ content.
▼活动室修改顶面木饰面,activity room with modified wooden ceiling finish © 吴清山
▼走廊,corridor © 吴清山
屋顶的分界,刚好把 “静” 的温柔和 “动” 的热闹,装在同一间房里 。同时,幼儿园还配备了注入体育室,乐高房,烹饪房,木工房等多样活动房间。
The distinct division of the two roofs effortlessly houses both the gentle calm of rest and the joyful bustle of play in one single room. Besides, the kindergarten is also equipped with a variety of specialized activity rooms, including a sports room, a LEGO room, a cooking studio and a woodworking workshop.
▼乐高房,LEGO room © 吴清山
▼烹饪房,culinary room © 吴清山
▼木工房,woodworking room © 吴清山
▼体育房,sports room © 吴清山
▼卫生间,restroom © 吴清山
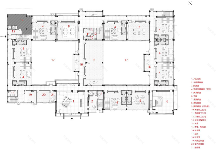
▼1F平面,1F plan © 大正建筑
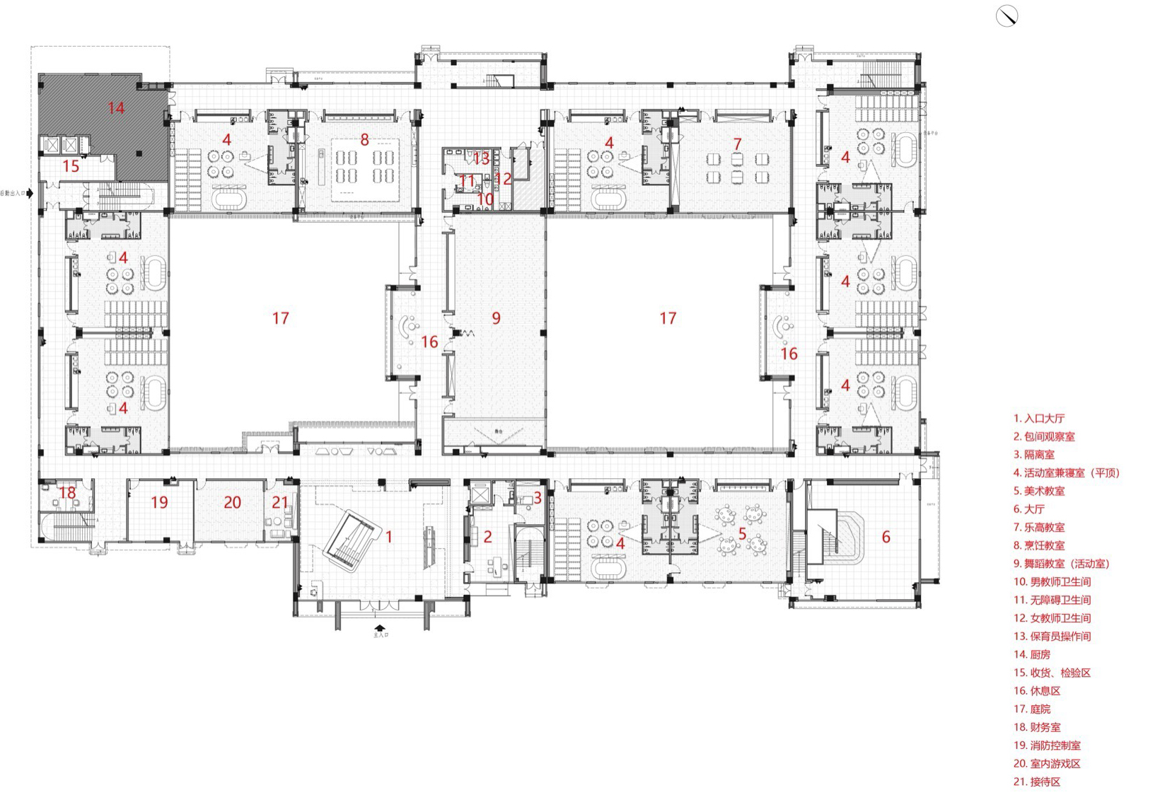
▼2F平面,2F plan © 大正建筑
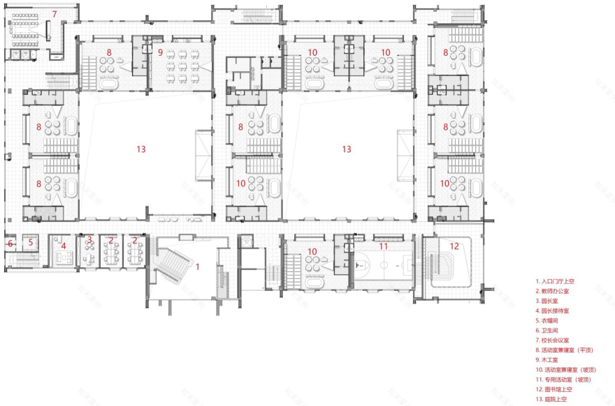
▼3F平面,3F plan © 大正建筑
项目概况:
项目业主:杭州青鸟飞翔教育科技有限公司
设计公司:上海大正建筑事务所
主持建筑师:李硕、李佳
设计团队:贾永耀、罗悦洋、蔡安妮、卢家云
施工图设计团队:上海大景正地建筑事务所
景观设计团队:上海大景正地建筑事务所
建设地点:杭州市富阳区富春湾新城
设计时间:2020.05
完成时间:2023.04
设计面积:9800㎡
招生规模:18班400人
项目摄影:吴清山
客服
消息
收藏
下载
最近



































