查看完整案例

收藏

下载

翻译
Architects:Office MI-JI
Area:166m²
Year:2024
Photographs:Ben Hosking
Contractor:BASE Construct
Landscape Architect:JALA Landscape
Category:Houses,Renovation
City:Saint Kilda East
Country:Australia
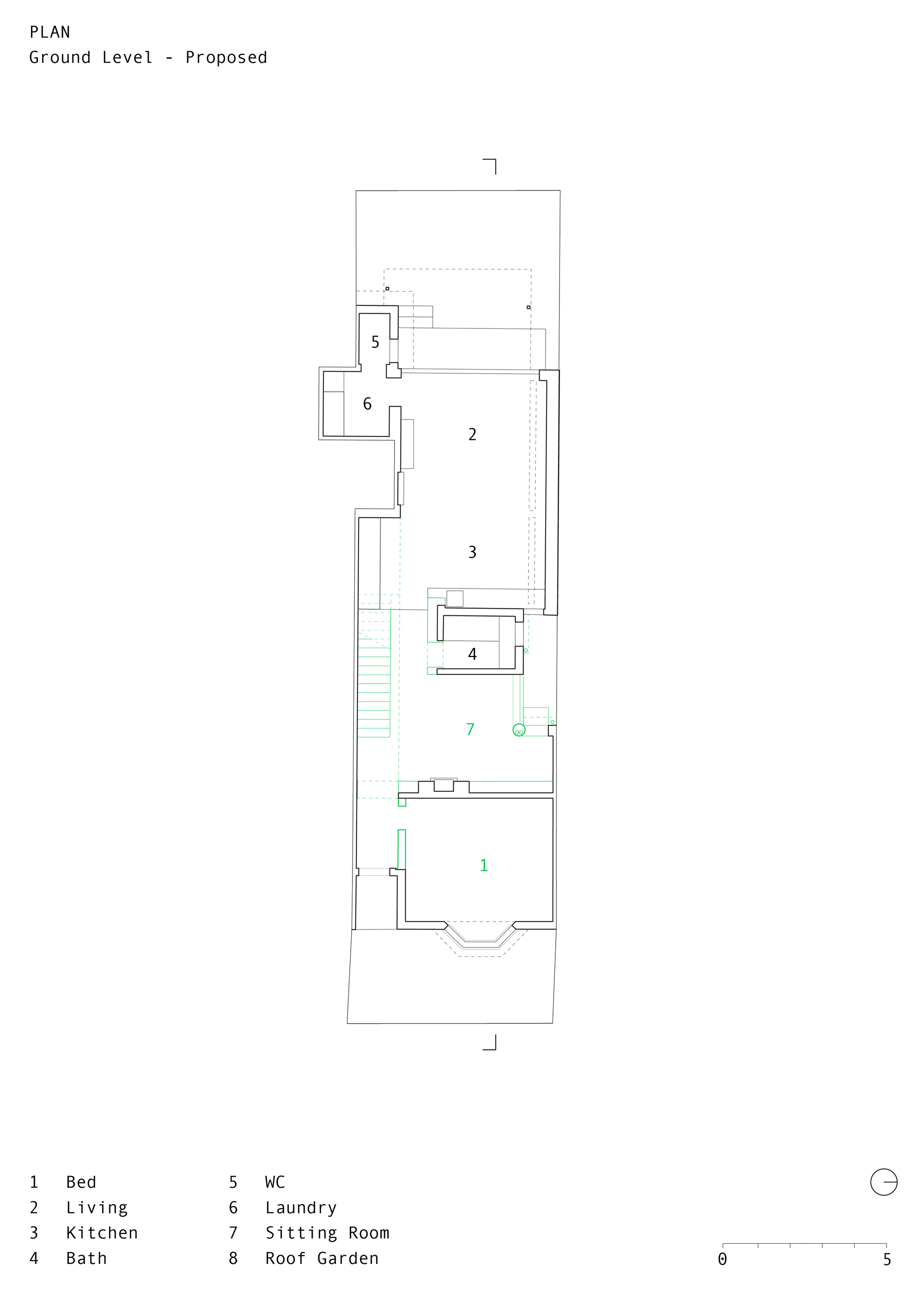
Text description provided by the architects. A renovation for another level, this addition utilises the existing steel structure to elevate two bedrooms, a bathroom, and a garden above the low-lying existing single-storey house. Responding to the expressed client brief for space, light, and air, the additional level breathes new life into the tight site without inhibiting views out across the neighbouring rooftops. Set around a multi-faceted highlight window detail, the new spaces are given the air they deserve, providing the family with a new dimension of liveability while minimising the destruction and waste of the existing building.
Building atop the client's foresight from a renovation in 2012 to install a steel structure for future extensions, A Light Addition gently touches the existing roof and integrates interior and exterior spaces while aiding the introduction of light to the ground level of the original terrace. In turn, ensuring this tight-knit family grows with teenage autonomy and parental leisure. At the base of these considerations, the core conceptual framework is a question of light and connection across a house over two storeys. Organised around an open staircase that centralises the household, each habitable space is given its own quality while remaining connected around required services and circulation. This architectural endeavour seeks to ensure that family life and individual life are nurtured while the family grows. The central stair, sitting atop the existing kitchen cabinetry, takes its material composition from the original house, while the sloped ceiling with skylights ensures light descends into these critical collective areas.
Evident in the use of U-channel glazing along all exterior walls to level 01, obscured glass allows the occupants to capture the sun across the days and seasons, while selected casement windows provide controlled outlooks to minimise overlooking and cross ventilation. The obscured glazing, kept at a datum line of 2.4m, allows for a sentiment of openness within small spatial dimensions, providing cost-effective solutions for doors and joinery, and a centralised local for services.
Several decisions over the course of the design provided the project with a sure financial footing and sustainable grounding. Clad in low-cost and often recyclable external and internal cladding from mini-orb, construction bendi-ply, and wood wool, the material selection alone provides for longevity of use, sustainable considerations, and clever conservative expenditure. On top of this, the utilisation of the existing structure resulted in minimal intervention to the existing ground-level ceiling and roof structure. A single column was installed to ground level in order to hold up the new level, and even the roof garden sits in between roof rafters to minimise impact. All in all, providing the house with a strong foundation while satisfying the client's budgetary requirements.
Integral to the successful outcome of A Light Addition was BASE Constructs, the contractor, whose determination ensured the renovation was delivered with precision and whose knowledge is evident throughout the finished product; GCF Designs, the joiner, whose open attitude ensured material consistency; and Jala Studio, landscape architect, who established a sturdy native landscape and provided the clients and the neighbourhood with further foliage for contemplation.
Project gallery
客服
消息
收藏
下载
最近



































