查看完整案例

收藏

下载

翻译
CULTURAL CODE
Architects: Vlad Gaiduk, Olga Potapova,
Project area: 88 sq.m
Project year: 2025
Location: Moscow, Russia
Photo credits: Daniel Annenkov
ABOUT | LOCATION | CONCEPT | DESIGN | IN PROGRESS | TEAM
ABOUT
This is not a commission but the studio’s own project, where the architects acted as bothdesigners and clients. We wanted to create a café “for our own” right in the neighborhood. And we made. Theproject was appreciated not only by us but also by local residents and people coming fromthe city center. “Coffee in the morning, wine in the evening” quickly became our slogan. That was when werealized that this format is worth developing further. The next location was Baumanskaya Street.
LOCATION
As with the first café on Chayanova Street, the new spot is located outside theclassical city center. Both “Cultural Codes” are situated between the Garden Ring and theThird Transport Ring, in residential quarters where people live, study and work. TheBaumanskaya district is not tourist-oriented but very dynamic: it is home to Bauman Moscow. State Technical University, many creative studios, workshops, artists, writers, and local.
CONCEPT
The space we received was unusual: the building once housed a bank, later offices and a café. The windows were small and the light entered unevenly. We decided not to try to make the space brighter, but instead to keep the gray base as a working background. A new white volume, an architectural insert inside the space, divides the halls and forms the overall composition.
Three key materials became the foundation: gray, white and metal.
DESIGN
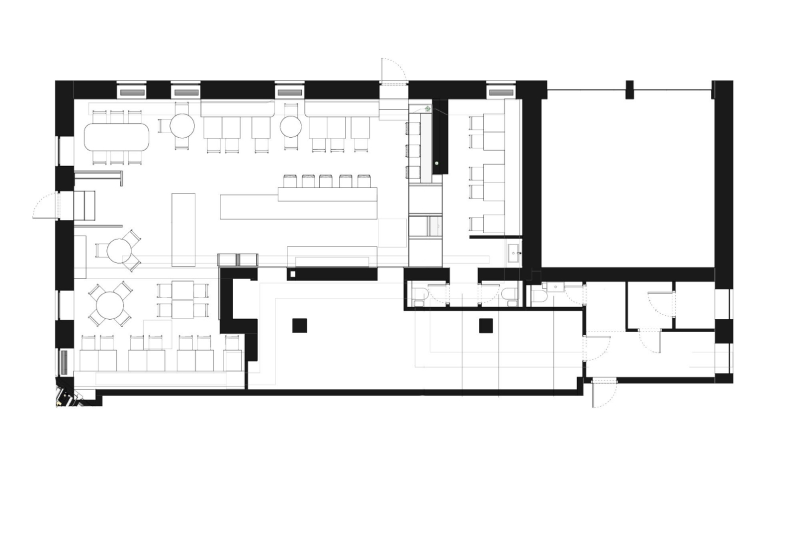
The layout is rational:* a large hall with a bar counter* a smaller hall* a kitchen with its own bakery* storage and utility zones
The bar is composed of two contrasting blocks:* stainless steel with a display for pastries and drinks* a wooden part, the working area for baristas and waiters
Behind the bar, you can both work and enjoy a cup of coffee.
It was important for us not to imitate but to assemble the interior from authentic pieces.Almost all the furniture is vintage from Europe: chairs, a massive wooden table from theearly 20th century. The rest of the tables and surfaces has been designed by our team.
The yellow floor became the main accent. It connects the spaces, unites the elements of theinterior, and creates rhythm. This idea was born in the personal apartment’s project ofVladislav (the founder of Mast and Cultural Code), but was realized only here. In fact colorbecame one of our focuses this year: a green floor in the Nene restaurant, a yellow one here.
Lighting is another key element.We used Aledo technical lighting, Davide Groppi Sampei floor lamps, the SWAN wall lamp by Nemo in matte black, and the Parentesi pendant by Flos in a hidden room. Light is not just a function, but a precise work with atmosphere.
There are works by Roma Peeks, Evgenia Chubarova and Rinata Mustafina on the walls -artists we have long collaborated with. Art is not a background, but a part of the environment.
Work on the space began in December 2024. There were delays: we waited for lighting,furniture and tuned the rhythm. The opening was planned for April but happened in May. Wewere not just delivering a site, but bringing it to a state, where you can be yourself.
Today Cultural Code lives a full life. Locals with children and friends come here for bread after a morning run. Running groups start here on Saturdays. There are film screenings, sports broadcasts, lectures, tastings in the evenings.
This place has brought together students, grandparents, freelancers, artists and their friends. It is not just a café, but a part of the neighborhood that has grown out of our idea and become a place for everyone.
IN PROGRESS
TEAM
客服
消息
收藏
下载
最近











































