查看完整案例

收藏

下载
水发科创中心以“水善润石开”的设计理念,探索以水之力勾勒建筑之美,打造矗立在天府新区的、独属于公园城市的特色建筑。
The Innovation and Science Center for Water Development adheres to the design concept of “water nourishes stone”, exploring the use of water to depict the beauty of architecture. It aims to create a distinctive architectural feature that belongs to the park city and stands in the Tianfu New Area.
▼项目鸟瞰图,Aerial view © 404NF STUDIO
▼从天府公园往项目远眺,Looking out from Tianfu Park towards the site © 404NF STUDIO
1 水善润石开
Water’s kindness unseals stones’ embrace
横亘两山,宛如山河之间的巨笔挥毫。千万水坝以雄浑而坚定的姿态,传达出国之重器的坚实力量,彰显着海纳百川、兼收并蓄的国企胸襟。这既是对城市设计的巧妙回应,也是企业文化的建筑表达。
Spanning across two mountains, it resembles a giant brushstroke between the mountains and rivers. Countless dams, with their powerful and steadfast posture, convey the solid strength of a great nation’s heavy machinery, demonstrating the inclusive and eclectic spirit of state-owned enterprises. This is not only a clever response to urban design, but also an architectural expression of corporate culture.
▼北面透视:国之重器的坚实力量,Northward Perspective: The Solid Power of the National Strength © 404NF STUDIO
▼南面透视:雄浑坚定的国企姿态,Southern Perspective: The robust and steadfast posture of the state-owned enterprises © 404NF STUDIO
“一横一纵”的空间构图使建筑同时朝向CBD人字绿廊和城市公园,配合“偏置核心筒”的操作使得被服务空间(办公空间)获得独立性,实现办公空间270度的连续景观面,满足办公使用者对视线观景的需求,同时解决“核心筒居中布局”导致的视线遮挡和采光通风等问题,使得建筑与城市环境构成有机整体。
▼“一横一竖”的空间构图(填充区域为核心筒),The “horizontal and vertical” spatial composition ( the filling area serves as the core tube ) © 中建西南院
▼“偏置核心筒”的空间操作,Spatial manipulation of the “offset core tube” © 中建西南院
The “horizontal and vertical” spatial layout enables the building to face both the CBD green corridor and the urban park simultaneously. The “offset core tube” operation ensures the independence of the serviced space (office), achieving a 270-degree continuous landscape view for the office, meeting the visual viewing needs of office users, and simultaneously resolving the problems of visual obstruction and lighting ventilation caused by the “central layout of the core tube”, thus forming an organic whole with the urban environment.
▼“一横一竖”的空间构图,The “horizontal and vertical” spatial composition © 404NF STUDIO
▼“偏置核心筒”的空间操作,Spatial manipulation of the “offset core tube” © 404NF STUDIO
三个巨石般的体量构成了稳定有力的整体,体块的错动打破了城市界面单调、刻板的印象,呈现出“错乱有致”的空间节奏。形体的错动进退自然形成了半室外区域和屋顶露台,设计自此符合整体空间生成逻辑,是对“公园城市”的建筑范式的积极探索。
Three massive stone-like volumes form a stable and powerful whole. The displacement of the volumes breaks the monotonous and rigid impression of the urban interface, presenting a “chaotic yet harmonious” spatial rhythm. The natural movement of the form, advancing and retreating, creates a semi-outdoor area and a rooftop terrace. The design conforms to the logic of the overall space generation, and is an exploration of the architectural paradigm of “Park City”.
▼底层区域的架空空间,The Lower Area © 404NF STUDIO
▼底层区域的架空空间,The Lower Area © 404NF STUDIO
2 登高望水长 Ascend heights to gaze at water’s endless trace
项目使用方包括水利设计机构,开放交流是这一类企业的空间特质,将核心筒偏置,让内部办公空间尽量完整方正,可分可合,便于塑造开放包容的共享交流空间。
The users include water conservancy design institutions. Open communication is a characteristic of this type of enterprise. By offsetting the core tube, the internal office space can be made as complete and square as possible, allowing for division and integration, facilitating the creation of an open and inclusive shared communication space.
▼共享开放的通高中庭,Shared and open atrium © 404NF STUDIO
“登高望水长”指的是将阶梯状的通高中庭植入建筑内部,作为共享交流空间,打破传统办公空间互相隔离的状态,加强各部门之间的互通互联。拾级而上,逐层升高,视野随之愈发开阔,目光所及,水天一色。
“Ascend heights to gaze at water’s endless trace” refers to embedding the stepped central atrium into the interior of the building as a shared communication space, breaking the isolated state of traditional office spaces and strengthening the interconnection and communication among various departments. Ascending step by step, each floor becomes higher, and the view becomes increasingly expansive. The sight reaches a state where the water and the sky blend together.
▼通高中庭的剖面示意,Section of the atrium © 中建西南院
3 凭窗览天府 By window, survey the land of city’s grace
建筑朝向东侧采用如水般通透的巨大窗口,使得窗景相融,办公人员在建筑内就可一窥公园城市看山见水的城市形态,凭窗远望,宛如高山流水之景。北望城市绿廊生态景观,东面纵观国会中心、西部博览城等大型城市地标,南面则拥有全景自然采光,是一个独特的空中城市会客厅。
The building faces east and features huge, transparent windows like water, allowing the views outside to blend seamlessly. Office workers inside the building can enjoy a glimpse of the urban landscape of a park city, where one can see mountains and rivers. Looking north towards the urban green corridor and ecological landscape, eastward one can overlook the National Conference Center, the Western Exhibition City and other large urban landmarks. To the south, there is panoramic natural lighting, making it a unique urban lounge in the air.
▼东面纵观国会中心,Overlook eastward the National Conference Center © 404NF STUDIO
▼北望城市绿廊生态景观,Overlook eastward the urban green corridor and ecological landscape © 404NF STUDIO
▼屋顶花园的绿色生态,The green ecology of the rooftop garden © 404NF STUDIO
▼登高望水长,凭窗览天府,Ascend peaks, behold water’s endless flow,Lean on sill, survey Tianfu’s grand show © 404NF STUDIO
4 力形一体化 Unite strength and form in harmonious space
山有水则草木润,水利万物而不争。秉承“和而不同,刚柔并济”的美学理念,核心筒立面以厚重沉稳的中国黑花岗岩,传达往下扎根的“重力”,如山间磐石,根基深植,呈现水利企业国之大者的坚实形象。主要办公空间采用立面宽幅的横向长窗,玻璃的通透传达流水至柔的叙事意象。
When mountains are graced with water, vegetation thrives in lushness. Adhering to the aesthetic concept of “harmony in diversity, combining hardness and softness”, the facade of the core is made of the thick and stable black granite from China, conveying the “gravity” of deeply rooted “weight”, like the rocks in the mountains, with a deep and solid foundation, presenting the solid image of a water conservancy enterprise as a major contributor to the country. The main office spaces adopt wide horizontal long windows on the facade, and the transparency of the glass conveys the gentle narrative image of flowing water.
▼和而不同,刚柔并济,Harmony without uniformity, combining hardness and softness © 404NF STUDIO
▼国之大者的坚实形象,The solid image of a great nation © 404NF STUDIO
▼立面宽幅的横向长窗,The horizontal long windows © 404NF STUDIO
▼横向和竖向的共存,The coexistence of horizontal and vertical aspects © 404NF STUDIO
大厅顶部采用双向正交布置的桁架体系,构成清晰有力的结构网格,不仅承担屋面荷载,亦系空间秩序的核心骨架。桁架在端部沿立面方向延伸,形成Z形的外露构件,同时作为入口雨棚的支撑结构,实现形式与功能的高度整合。全玻幕墙系统中,玻璃肋的模数严格对位钢桁架的结构单元,形成“结构即立面”的一体化设计逻辑,直观呈现结构体系的内在逻辑。
The top of the hall adopts a bidirectional orthogonal truss system, forming a clear and powerful structural grid. It not only bears the roof load but also serves as the core framework of the spatial order. The trusses extend along the vertical direction at the ends, creating exposed Z-shaped components, and at the same time, they serve as the supporting structure for the entrance canopy, achieving a high degree of integration of form and function. In the full glass curtain wall system, the modulus of the glass ribs is precisely aligned with the structural units of the steel trusses, forming an integrated design logic of “structure as the facade”, visually presenting the internal logic of the structural system.
▼清晰有力的结构网格,Clear and powerful structural grid © 404NF STUDIO
▼四季大厅,Four Seasons Hall © 404NF STUDIO
云上连桥跨越两幢塔楼,犹如飞虹凌波,为办公者提供身处自然的休闲空间。鱼腹形通过截面变化契合结构受力,实现形态和力流的高度统一。连桥顶部设置多个光井,天光云影,四时流转,斑驳光影倾泻而下。
The bridge spanning over the two tower buildings resembles a rainbow floating gracefully. It provides office workers with a leisure space immersed in nature. The fish-shaped design is achieved through variations in cross-section to conform to the structural load, achieving a high degree of unity between form and force flow. At the top of the bridge, multiple light wells are set up, allowing natural light and cloud shadows to flow in, with the changing seasons and the shifting light.
▼漫步云上连桥,Strolling above the cloud bridge © 404NF STUDIO
▼鱼腹状连桥,Fish-shaped bridge © 404NF STUDIO
5 在地性嵌入
In – situ embedding
办公空间,采用横向宽幅的长景窗,层间出挑的珍珠白花岗岩,上下叠合,朝上反宇向阳,朝下转译为四川民居的屋檐意象。
The office space features wide horizontal windows, with pearl-white granite slabs projecting from the floors. The layers are stacked on top of each other, with the upper part facing the sun and the lower part interpreted into the roof line of Sichuan-style dwellings.
▼四川民居的屋檐意象,The architectural features of the houses in Sichuan © 404NF STUDIO
▼园林的现代转译,The modern reinterpretation of gardens © 404NF STUDIO
水幕礼堂,以“水”为意象,采用彩釉玻璃模拟自然水流变化特征,旨在呼应水利总部的企业属性。幕墙底部设计可开启的内倒窗,兼顾自然通风与立面完整性。
The water curtain auditorium is inspired by the water and uses colored glazed glass to simulate the changing water flow. This design aims to align with the corporate attributes of the Water Resources Headquarters. At the bottom of the curtain wall, an operable inner-inverted window is designed to facilitate natural ventilation while maintaining the integrity of the facade.
▼水流意向的彩釉玻璃,Colored glass with flowing pattern effect © 404NF STUDIO
▼自然与人工的融合,The integration of nature and humanity © 404NF STUDIO
空中庭院,顶部立面采用U型玻璃作为围护界面,其半透明特性有效遮挡杂乱的屋顶设备,同时柔和漫射自然光线,营造出静谧宜人的户外环境。
The sky garden features a U-shaped glass on the top, which serves as the enclosure interface. Its semi-transparent property effectively shields the messy rooftop equipment while diffusing natural light gently, creating a serene and pleasant outdoor environment.
▼空中庭院的U玻,U-glass of the sky garden © 404NF STUDIO
光井与连桥,可俯瞰城市景致,感知光影的变化,使得身处高处仍能感知地面生活的律动,与飞鸟、云雾和草木共同勾勒出公园城市与自然共生的和谐关系。
The light well and the bridge offer a panoramic view of the city, allowing one to observe the changes in light and shadow. This enables one to sense the rhythm of life on the ground even when standing at a high position, and together with birds, clouds, and plants, they jointly depict the harmonious relationship between the park city and nature.
▼云上连桥,The cloud bridge © 404NF STUDIO
水发科创中心是公园城市建筑范式的一次创新实践。最大化公园景观视线作为核心空间逻辑,以力形一体的结构美学和抽象在地转译,塑造出公园城市语境下办公建筑开放、生态与人本的新形态。
The Innovation and Science Center for Water Development is an innovative practice of the park city architectural paradigm. Maximizing the landscape view serves as the core spatial logic. Through the structural aesthetics of a unified force form and the abstract local translation, it creates a new form of office building in the context of a park city, featuring openness, ecology and humanism.
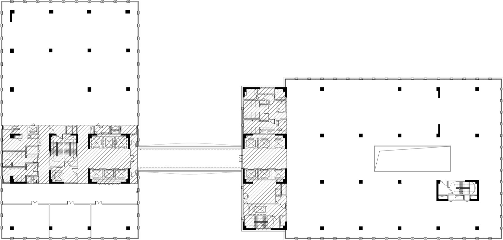
▼首层平面图,The first floor © 中建西南院
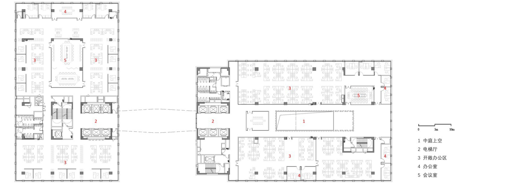
▼七层平面图,The seventh floor © 中建西南院
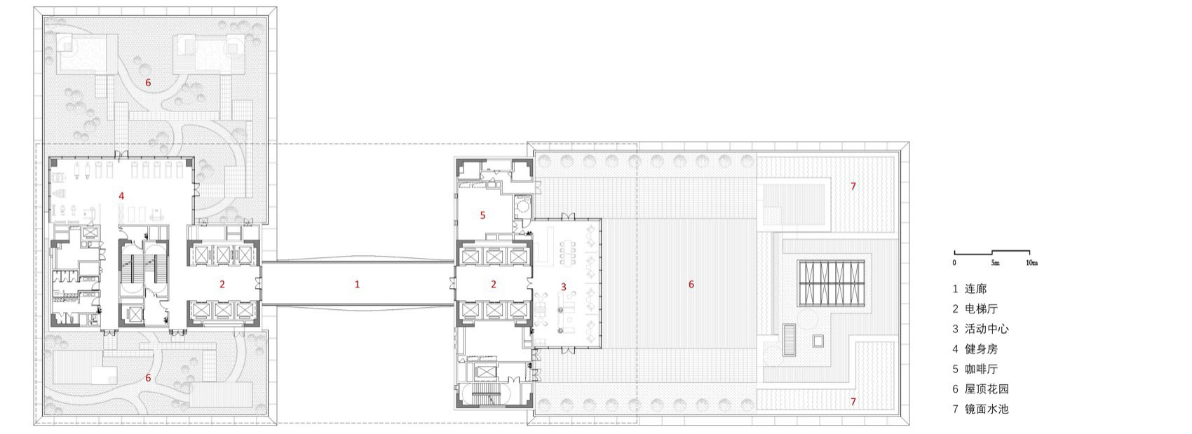
▼十一层平面图,The eleventh floor © 中建西南院
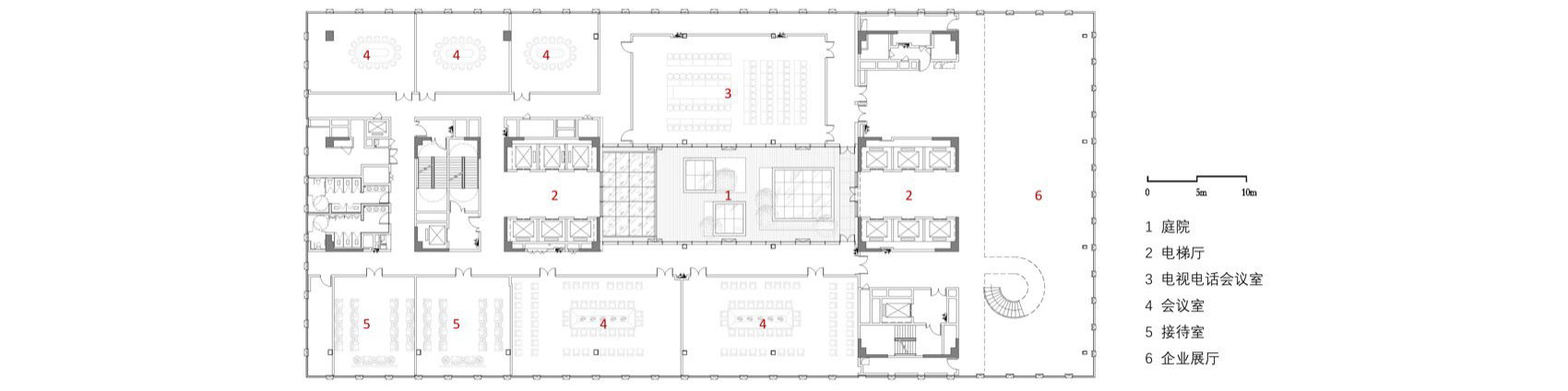
▼十二层平面图,The twelfth floor © 中建西南院
▼北立面图,The north elevation © 中建西南院
▼南立面图,The south elevation © 中建西南院
项目信息
项目名称:四川水发科创中心
项目地点:成都市天府新区总部商务区
设计/竣工:2021年9月——2025年6月
用地面积:13825.76平方米
建筑面积:78080.39平方米
业主单位:四川水发投资有限公司
设计单位:中国建筑西南设计研究院有限公司
主持建筑师:肖波
建筑专业:陈露、傅悦、蔡青菲、孙启祥、李枭幸、张远雪、何天洪、黄翔宇
结构专业:杨文、邱添、肖克艰、何佳骏、曾懋睿、张蜀泸、李浩然、黄金超、储召文
给排水专业:刘帅、杨久洲、林风、易达明、谭古今、余维滨、葛磊、闫欣月
暖通专业:魏明华、文玲、刘伯万、唐瑞
电气专业:李慧、张滔、何乐婷、刘冲、赵子文、张家平
智能化专业:关怀、孟庆宇
幕墙专业:莫红梅、钟志强、曹一洋
景观专业:尹昕、宋梦田、汪永源
装饰专业:熊力、王世博、王思聪、成文博、黎安秀
建筑技术:王皎
建筑经济:彭小芳、余杰、刘明宇、杨鑫、张潇潇、魏佑任、谌勇
所有照片版权:404NF STUDIO
所有图片版权:中建西南院
Project Information
Project Name:The Innovation and Science Center for Water Development in Sichuan
Project location:Chengdu Tianfu New Area CBP
Design / Completion:2021.09——2025.06
Land area:13825.76㎡
Building area:78080.39㎡
Design department: CSWADI
Principal Architect:Xiaobo
Architecture:Chenlu、Fuyue、Caiqingfei、Sunqixiang、Lixiaoxing、Zhangyuanxue、Hetianhong、Huangxiangyu
Structure:Yangwen、Qiutian、Xiaokejian、Hejiajun、Zengmaorui、Zhangshulu、Lihaoran、Huangjinchao、Chushaowen
Water Supply and Drainage:Liushuai、Yangjiuzhou、Linfeng、Yidaming、Tangujin、Yuweibin、Gelei、Yanxinyue
HVAC:Weiminghua、Wenling、Liubowan、Tangrui
Electrical Engineering:Lihui、Zhangtao、Heleting、Liuchong、Zhaoziwen、Zhangjiaping
Extra Low Voltage:Guanhuai、Mengqingyu
Curtain Wall :Mohongmei、Zhongzhiqiang、Caoyiyang
Landscape:Yinxin、Songmengtian、Wangyongyuan
Interior Design:Xiongli、Wangshibo、Wangsicong、Chengwenbo、Lianxiu
Architectural Technology:Wangjiao
Building Economics:Pengxiaofang、Yujie、Liumingyu、Yangxin、Zhangxiaoxiao、Weiyouren、Chenyong
All photo copyrights:404NF STUDIO
All image copyrights:CSWADI
客服
消息
收藏
下载
最近






































