查看完整案例

收藏

下载
新建的奥尔比亚Via dell’Acquamarina幼儿园被构想为一项具有强烈公共与社会意义的建筑介入,旨在审慎回应日益增长的早期儿童照护与教育空间需求。该设施可容纳85名年龄在2至36个月之间的儿童,并依据教学框架与不同年龄阶段的发展需求,将儿童组织为三个功能组——婴儿组、半幼儿组和幼儿组,该教学框架与最新国家指导方针保持一致。
The New Nursery School on Via dell’Acquamarina in Olbia is conceived as an architectural intervention of strong civic and social significance, designed to respond thoughtfully to the growing demand for spaces dedicated to early childhood care and education. The facility is sized to accommodate 85 children between 2 and 36 months of age, organized into three functional groups—infants, semi-toddlers, and toddlers—according to a pedagogical framework aligned with the most up-to-date national guidelines and the developmental needs of each age group.
▼项目概览,Project Overview © Cedric Dasesson
建筑整体在单层空间中展开,并围绕一个中央庭院进行组织,该庭院被构想为一处真正的“内部广场”:这一具有识别性的空间统领着平面布局,并成为互动、相遇与集体活动的场所。这个中央空场不仅仅是连接性的元素,更是幼儿园象征性与功能性的核心,促进社会交往并强化社区感。平面清晰地区分了用于游戏、休息与照护的空间,并辅以共享与服务空间——包括厨房、教师休息室和行政办公室——从而形成一种均衡的布局,在保证功能效率的同时也关注身心健康。
▼场地图,Site plan © Studio Associato di Architettura LERUA
Developed entirely on a single level, the building is structured around a central patio conceived as a true internal piazza: an identity-defining space that orders the plan layout and becomes a place of interaction, encounter, and collective activity. This central void is not merely a connective element, but the symbolic and functional heart of the nursery, fostering socialization and reinforcing a sense of community. The plan clearly differentiates spaces dedicated to play, rest, and care, complemented by shared and service areas—including the kitchen, teachers’ room, and administrative offices—achieving a balanced configuration that ensures both functional efficiency and psychophysical well-being.
▼主入口,Main entrance © Cedric Dasesson
▼单层空间展开,Developed entirely on a single level © Cedric Dasesson
建筑品质通过清晰的构成逻辑与对光线这一主要设计材料的细致考量得以体现。双层通高的空间体量使自然采光充足且均匀地分布,在强化空间感知的同时也有助于降低能源消耗。因此,中央庭院成为建筑在感知与象征层面的核心,一个清晰可辨且整体统一的场所,在这里建筑积极支撑着教育体验。
Architectural quality is expressed through compositional clarity and a careful consideration of light as a primary design material. Double-height volumes allow for generous and evenly distributed natural daylight, enhancing spatial perception while contributing to reduced energy consumption. The central patio thus emerges as the perceptual and symbolic core of the building, a recognizable and cohesive place where architecture actively supports the educational experience.
▼室外庭院,Outdoor space © Cedric Dasesson
▼立面细部,Facade details © Cedric Dasesson
从建造角度来看,建筑采用钢筋混凝土框架结构,并以多孔砖作为填充墙体,而室内隔墙则通过砌体与轻质隔墙系统实现,从而为未来提供灵活性与适应性。立面覆以白色、灰色与红色调的大尺寸UHPC面板,将当代建筑语言与高耐久性和良好的能源性能相结合。室内空间则以天然橡木地板、陶瓷饰面以及可清洗的表面材料进行界定,营造出统一、温暖且易于维护的环境。
From a construction standpoint, the building employs a reinforced concrete frame with porous brick infill walls, while internal partitions in masonry and drywall provide flexibility and adaptability over time. The façades, clad with large-format UHPC panels in white, grey, and red tones, combine a contemporary architectural language with high durability and energy performance. Interior spaces are defined by natural oak parquet flooring, ceramic surfaces, and washable finishes, creating a cohesive, welcoming environment that is easy to maintain.
▼中央庭院,The central patio © Cedric Dasesson
▼室内空间,Interior space © Cedric Dasesson
遵循“面向所有人的设计”(Design for All)原则,该项目确保完全的可达性并消除所有建筑障碍,使所有空间都能够被包容性地使用。通过采用天然材料与低影响建造方案,项目满足最低环境标准(Minimum Environmental Criteria)的要求,并引导建筑迈向一种可持续、耐久且负责任的建造模式——在这一模式中,建筑品质、社会关怀与环境责任被整合在一起。
In line with design for all principles, the project ensures full accessibility and the complete absence of architectural barriers, allowing inclusive use of all spaces. The use of natural materials and low-impact construction solutions ensures compliance with Minimum Environmental Criteria and guides the project toward a sustainable, durable, and responsible building model—one that integrates architectural quality, social awareness, and environmental responsibility.
▼总平面图,Master plan © Studio Associato di Architettura LERUA
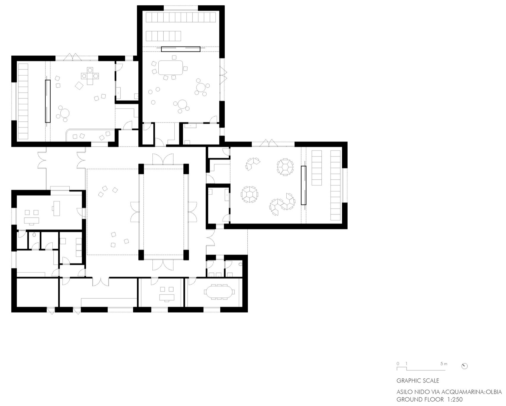
▼平面图,Floor plan © Studio Associato di Architettura LERUA
▼立面图,Floor plan © Studio Associato di Architettura LERUA
▼剖面图,Floor plan © Studio Associato di Architettura LERUA
Project: New Nursery School on Via dell’Acquamarina
Site: Olbia (SS), Sardinia, Italy
Type: New Construction
Works Management: Arch. Lorenzo Soro
Client: Comune di Olbia (SS)
Construction Company: AT&T srl
Integrated contract assignment: Final design, executive plan, supervision of works and safety coordination in the Design Phase
Size: m² 718,68
Cost of work: € 2.484.364,29 €
Work start date: 20214
Work completion date: 2025
Render: Edoardo Pinna
Photos: Cedric Dasesson
客服
消息
收藏
下载
最近




















