查看完整案例

收藏

下载
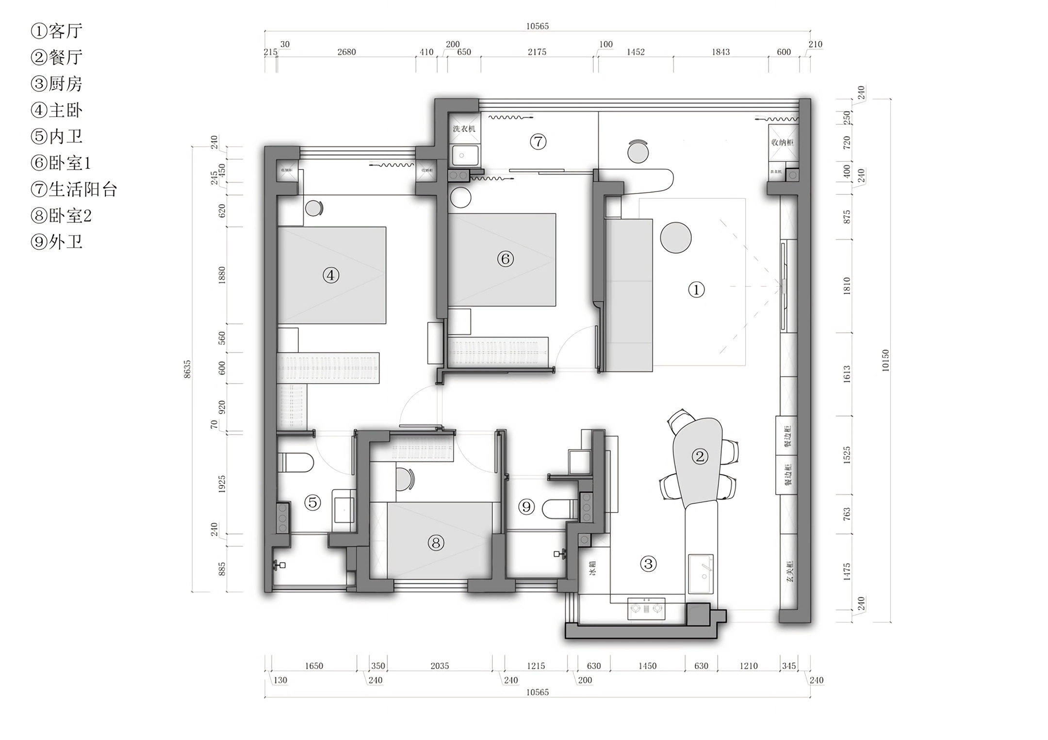
本案业主是一对年轻夫妻,拥有一个可爱的女儿。设计希望在有限的面积里规划更高效的空间利用率,优化收纳、动线、功能之间的关系,贴合每一位家庭成员的生活与成长,满足实用且长期主义的需求。
建筑驯化了无限的空间
并使我们栖居其中
但它也应安置无尽的时间
使我们能安居于时间的延续中
——《肌肤之目》尤哈尼·帕拉斯玛
01
时间的长期主义
本案业主是一对年轻夫妻,拥有一个可爱的女儿。设计希望在有限的面积里规划更高效的空间利用率,优化收纳、动线、功能之间的关系,贴合每一位家庭成员的生活与成长,满足实用且长期主义的需求。
于是设计重新审视家的包容度,以柔和的奶油色为肌底,铺展柚木作为内里的沉淀,通过舒适的动静分区和中古风营造,关照亲密且温馨的居家体验。走进这个家,就能被其中的情绪所感染,触摸到生活最真实的模样。
基于现代主义的框架,将客餐厅串联一体,制造交流感更强的场景关系。客厅摒弃冗余的装饰元素,饱满块状的布艺沙发与木质家具构成主要框架,点缀器物、暖光作为氛围感修饰,细节中雕刻纹理造型,缓慢凝聚出生活的具像化形态。
宽阔的阳台贯穿客厅与次卧,通过帘子划分清洁阳台和休闲阳台。协调适宜的比例和尺度,定制圆弧书桌,搭配灵动的椅子,打造生活意趣。
设计在组织功能与动线的基础上,思索一场更经得起时间考验的生活诉求。开放式厨房的过道一侧设置吧台,与异性餐桌拼接延伸,可以自由搭配形态各异的椅子,迎合当下的心情与需求。
餐边柜与玄关柜构建一体,由外向内舒展至客厅,简洁的切面伴随动线的梳理,让入门体验更加宽敞舒适,打造流畅的生活节奏。
通过对生活场景预演,细节中考量精细化的布局。橱柜内部组合小型的收纳金属配件,将柴米油盐与厨余用品安置在更合适的区域,通过暗柜、抽屉的分类设计,一举一动间保障了操作的便捷性,极致优化空间利用率,
将生活巧妙安置于这场温柔的秩序,以一条主过道划分动静关系,墙角婉转着恰宜的弧度,每一寸转角、切换、行走,都能于此流动舒展。外置洗手台与过道相邻,柚木围合结构体,任由时间、空气滋养出空间的专属气味,亦能玩味场域之间的互动,牵引内在的品质与温度。
02
情绪的感知与沉淀
空间的自由度并不取决于场域面积的大小,通过对习惯与细节的动态考量,清晰感知细微处的变幻与丰盈。
主卧套房南北贯穿,入门处增设换衣区,联动调整卫浴的流畅布局,同步保障私密感。空间延续了胡桃木的复古沉淀,打破单一简约的空间形态,调动居住者对于生活的情绪感知。
家,作为精神与心灵的安放之处,越来越不可替代。它不仅仅是空间容器,同时隐藏在普通的日常中,承载了居住者的内心世界,记录着一份时光印记。
项目信息
项⽬名称:时间的延续
设计公司:观衍上空间设计
项⽬地点:温州·瑞安
项⽬⾯积:91㎡
主案设计:林碧瑞
项目摄影:无介
内容策划:橙设传媒
设计时间:2024.6
完⼯时间:2025.4
主要材料:艺术漆、护墙板、岩板
客服
消息
收藏
下载
最近



































