查看完整案例

收藏

下载

翻译
2025
В основе интерьера лежит глубокая связь с природой. Стены, окрашенные в мягкие, природные оттенки – от теплого песочного до глубокого серого, создают ощущение спокойствия и простора. Основным материалом, пронизывающим все пространство, является дерево.
Но это не просто дерево, а его благородные породы, обладающие уникальной, выразительной фактурой. Дерево используется не только в мебели, но и иногда в отделке стен, создавая ощущение целостности и естественности
Элементы азиатской этники ненавязчиво вплетаются в современный дизайн, придавая ему особую изысканность и глубину. Главное – это умеренность и гармония, чтобы этнические мотивы не перегружали интерьер, а лишь добавляли ему характера и истории.
Контрастная цветовая гамма придает интерьеру динамику и выразительность. На фоне спокойных природных оттенков эффектно выделяются более темные, насыщенные цвета. Применяется глубокий угольный и сложный зеленый в некоторых элементах, добавляя акцента и выразительности интерьеру
Минимализм здесь – не просто отсутствие лишних вещей, а философия. Каждый предмет имеет свое место и функцию. Ничего случайного, ничего лишнего. Вдохновение черпается в японской эстетике: простота линий, функциональность и уважение к материалам.
Но в этой умиротворяющей обстановке есть и нотки брутальности. Этот контраст добавляет характер и не позволяет интерьеру стать слишком приторным
Тактильные текстуры играют важную роль. Хочется прикасаться к шершавой поверхности дерева, гладкой глине, мягкому льну. Это пространство, которое ощущается кожей, которое приглашает к взаимодействию.
Светлые участки, будь то большие окна или искусно расположенные светильники, создают игру теней и подчеркивают глубину цветов и фактур. Они добавляют легкости и воздушности, не позволяя темным оттенкам доминировать
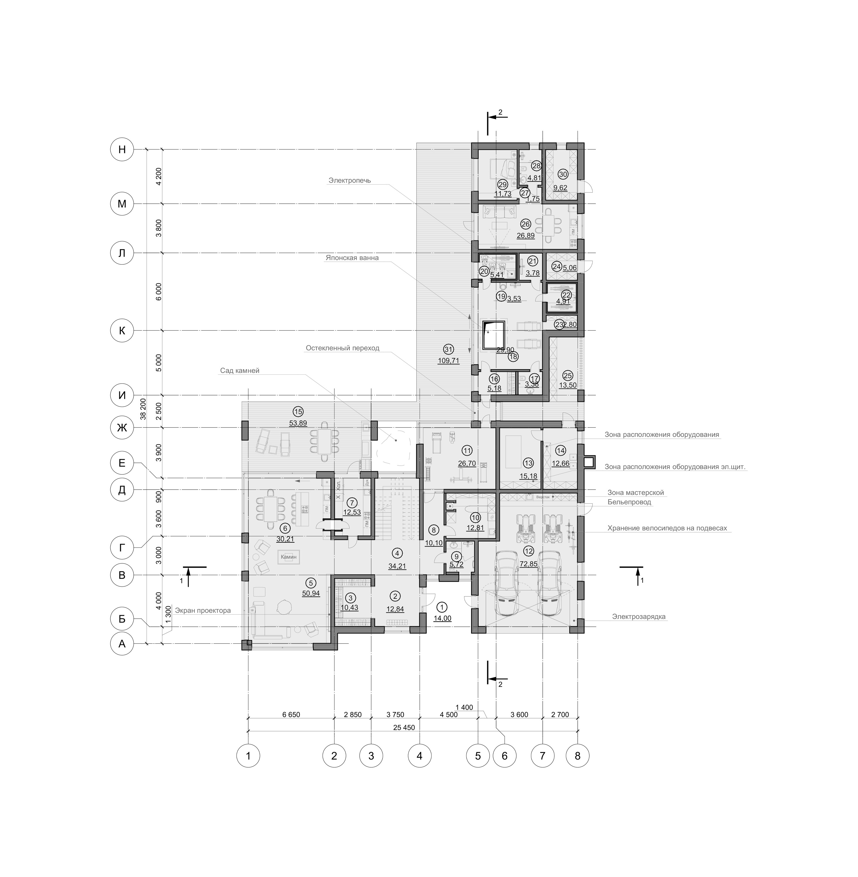
Прихожая – это не только лицо дома, но и функциональная зона. Здесь все продумано для максимального удобства:
Просторная входная зона: Достаточно места для комфортного переобувания и снятия верхней одежды, без ощущения тесноты.
Продуманная гардеробная: Вместительная, но при этом лаконичная гардеробная система, скрывающая одежду и обувь, поддерживает общий порядок. Возможно использование встроенных шкафов с фасадами, имитирующими натуральное дерево и камень, чтобы они гармонично вписывались в интерьер.
Удобные сидения: Стильная скамья из натуральных материалов, например, с обивкой из фактурной ткани, приглашает присесть и отдохнуть
客服
消息
收藏
下载
最近





























