查看完整案例

收藏

下载
△效果图
好区位:占启动区核芯,执掌未来城市脉搏
好景观:溪谷公园为邻,私藏蓝绿交织生态
好配套:全龄友好设计,解锁生活无限可能
好房子:现代中式大宅,承载理想生活尺度
精铸一座集安全、舒适、生态、智慧于一体的理想家园,静候时代人物的归来。
项目位置处于雄安新区启动区综合服务东北片区,E02片区的西南侧位置。项目北侧燕赵大街东连雄县,西接容城城区。主干路白洋淀路南北贯穿,向北可直达首都北京,向南连接白洋淀景区。地块区位交通便捷,是片区开发的引领者。
东部溪谷中水流潺潺,绿树成荫,林荫小路蜿蜒曲折,溪谷公园由南向北环绕项目,是溪谷两侧项目的风向标。
东临城市支路及东部社区服务中心。南侧、西侧紧邻东部溪谷公园,白洋淀路南北贯穿,与金融岛、创新坊隔谷相望,景观丰富,交通便捷。
△区位图
项目与金融岛、创新坊隔谷相望,紧邻东侧金融岛壹号院,城市配套东部社区服务中心、现状小学及未来规划中学,为片区注入更多的活力,未来可期。
项目结合区位特色,建筑沿城市道路及东部溪谷景观依次错落布局,高低组合变化,配套建筑与景观廊架围合布局,构建各具特色的社区院落空间。
△总平面图
规划布局以“一环、两轴、多组团”为核心理念。共五个建设用地,其中四个居住用地,一个公园用地。各地块间景观与东部溪谷、城市公园整体联通,打造一个资源共享,城淀共融的理想社区。
△设计理念
通过设置更大的落地窗和转角窗,将更多的景观进入室内,实现东部溪谷景观与建筑融合共生。
项目东侧贯穿南北生活街区,构建门前繁华街市。商业、生活配套散落,既服务本项目,同时也方便金融岛壹号院。
△效果图
在南北地块之间设置会客厅主要出入口,经过仪式感入口广场、仪式大门、会所大堂、形成社区仪式中轴。建筑轻巧挑檐,庄重但显轻盈,增添了归家的仪式感。
△效果图
穿过“一进”、“二进”再穿过圆形空间,进入在下沉广场的空间,犹如曲径通幽,船到山前,豁然开朗的空间意向;由外到内,如入桃花源境之景。
△效果图
以中式传统形象为基础,融合西方建筑结构形式,中西合璧,以中为主、古今交融的理念,打造当地独特的中韵气质,孕育出一个雄安独有的东方形象。无论取其形制或究其细节,都体现了中式传统的建筑的精髓与细节韵味,同时新的手法运用,互相融合,塑造出了独特的新中式风格特点。
△效果图
本设计以“现代东方雅韵”为核心理念,将传统中式建筑的文化精神与现代建筑语言深度融合。同时与主楼的颜色米黄色和香槟色相呼应,在保证采光通透性的同时,营造出典雅庄重的空间气质。
入口处借鉴传统“门第”文化,以对称式布局强化仪式感,两侧金属网饰面融入云纹元素,既是对传统窗棂艺术的现代转译,也寓意“吉祥、祥和、平步青云”的吉祥寓意。
△效果图
项目涵盖140㎡、168㎡、190㎡、278㎡、308㎡五个面积段,形成从改善家庭到高阶精英的完整产品矩阵,精准适配雄安新区核心客群。
舒适层高|3.15m-3.3m大层高,提升空间立体感与居住从容度
面宽升级|南向大面宽设计,引光入室,拓展空间视野
通透延伸|全明格局,明餐厅,明电梯厅……空间朗阔,鲜氧穿堂而过
归家礼仪|独享私家电梯厅,双玄关系统,礼序井然
功能迭代|X空间植入,书房、茶室、咖啡角……生活场景自由定义
高效收纳|系统化收纳设计,有序整合,兼顾美观与实用
绿色生态|空中花园、错层露台,让自然融入日常
寰幕光影|转角景观窗,270°极致视野,将蓝绿风光引入室内
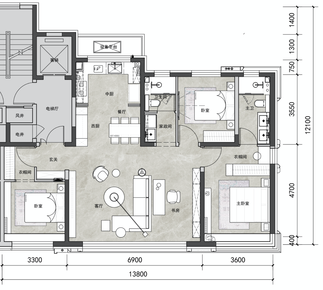
南向3.5面宽,阳光从容漫入每一寸日常。礼仪双玄关,藏纳出行与归来的仪式;明亮厨餐与通透厅堂相连,空间流动着家庭的笑语。一梯两户,格局方正舒展,诠释舒适大三居的从容丰盛。
南向四面宽,格局通透大气。中西厨环绕明餐厅,烹饪与共餐成为温馨剧场;客厅可延展面宽达9.3米,X功能区可书房、可茶席、可亲子乐园,一厅多景,随生活剧情自由转换。
南向4.5面宽,尺度从容有度。明电梯厅入户,阳光先行迎接;独立玄关衣帽间收纳四季风华。豪华主卧套配转角观景窗,卧榻时可揽天光云影,奢享不离日常的诗意。
一梯一户,立体双流线系统,动静分区。11.2米宽域起居室,将客厅、书房、茶室连贯一气,整面转角景观窗将城市天际与生态长廊尽收眼底。主卧以6.6米南向面宽展开,配备独立书房、明妆衣帽间与五件套主卫,窗景常伴,气度从容。
双层挑高景观阳台,层层有园,绿意漫阶。室内外交融,光影在立体院落中游走。主卧套如云端私岛;次卧区共享咖啡吧;餐客厅、卧室区可同时与云景阳台对话。在这里,建筑不只是容器,更是生长中的生态画卷。
在这里,我们不只是设计户型,更是设计一种与未来对话的生活方式。从归家礼仪到光影设计,从收纳系统到生态交互,每一处细节,皆为回应雄安这座新时代城市的居住理想。
当“未来之城”的轮廓愈发清晰,选择一处居所,便是选择一种生活方式。雄安启动区综合服务东北二期,以安全为基、舒适为魂、生态为韵、智慧为翼,为逐梦者打造安放生活与理想的幸福港湾,邀您共赴这场城市与人居的时代之约。
建筑设计:SUNLAY三磊
设计导师:张华、刘芳
项目经理:宋亚民
设计团队:宋亚民、黄祖慎、向兴政、张剑华、吕鸿斌、闫梦婷、李春阳、马佳、许文才
施工图设计:天津市城市规划设计研究总院有限公司
景观设计:北京源树景观规划设计事务所
室内设计:赛拉维室内装饰设计(天津)有限公司
客服
消息
收藏
下载
最近

























