查看完整案例

收藏

下载

翻译
2022
Коллаж
Коммерческий общественный интерьер в современном стиле, который призван стать вашим оазисом спокойствия и продуктивности. Здесь царит тонкое равновесие между прохладной элегантностью и уютным теплом, создавая атмосферу, располагающую к общению и работе.
Центральным элементом этой зоны является длинная, функциональная стойка ресепшн. Она выполнена из материалов, которые подчеркивают современный характер пространства, но при этом дарят ощущение надежности и основательности. Ее длина обеспечивает достаточно места для комфортного обслуживания, а продуманная эргономика делает работу персонала максимально эффективной.
В основе цветовой палитры лежит сочетание теплых и холодных оттенков. Прохладные, нейтральные тона – оттенки бежевого, белого и графит – создают ощущение чистоты, простора и современности. Они служат идеальным фоном, позволяя другим элементам интерьера раскрыться в полной мере.
Однако, чтобы избежать излишней стерильности, мы добавили благородное тепло дерева. Его насыщенный, но не кричащий оттенок привносит в пространство уют и естественность. Деревянные элементы – будь то отделка стен, элементы мебели или декоративные детали – создают ощущение природной гармонии и делают интерьер более живым и приглашающим.
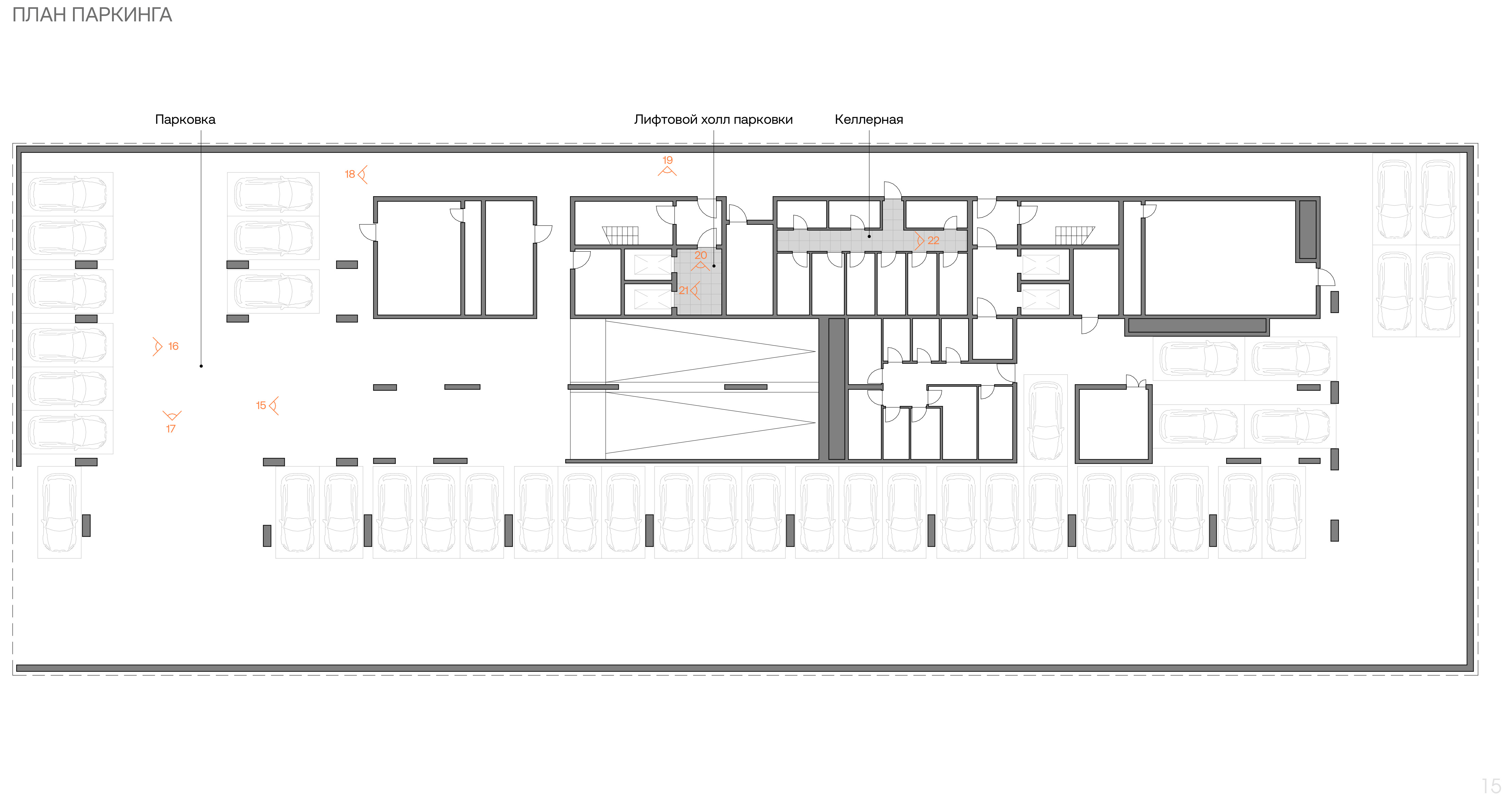
Паркинг– это сила и стиль. Мы отказались от привычной серости и скуки. Стены и колонны выполнены из грубого, но благородного бетона, его текстура придает интерьеру особую глубину и тактильность. Открытые коммуникации, элементы из черного металла добавляют брутальности и индустриального шарма, создавая ощущение надежности и основательности. Это пространство, которое не боится быть собой, демонстрируя свою честность и прямоту.
Коммерческий интерьер (МОП) – это не просто набор элементов, а тщательно продуманная концепция, где каждый аспект направлен на создание позитивного и продуктивного опыта для посетителей и сотрудников. Это место, где современный стиль встречается с естественной теплотой, а минимализм обретает свое самое стильное и комфортное воплощение.
Эскизная визуализация
客服
消息
收藏
下载
最近



































