查看完整案例

收藏

下载

翻译
Интерьер квартиры в современном стиле выполнен в контрастной цветовой гамме, с применением натуральных материалов. Здесь каждый уголок наполнен воздухом, а взгляд скользит по чистым линиям и натуральным текстурам.
Открытая планировка гостиной, кухни и столовой усиливает это ощущение свободы, позволяя свету беспрепятственно проникать в каждый уголок. Здесь нет ничего лишнего, что могло бы загромождать пространство – только функциональная мебель и тщательно подобранные акценты.
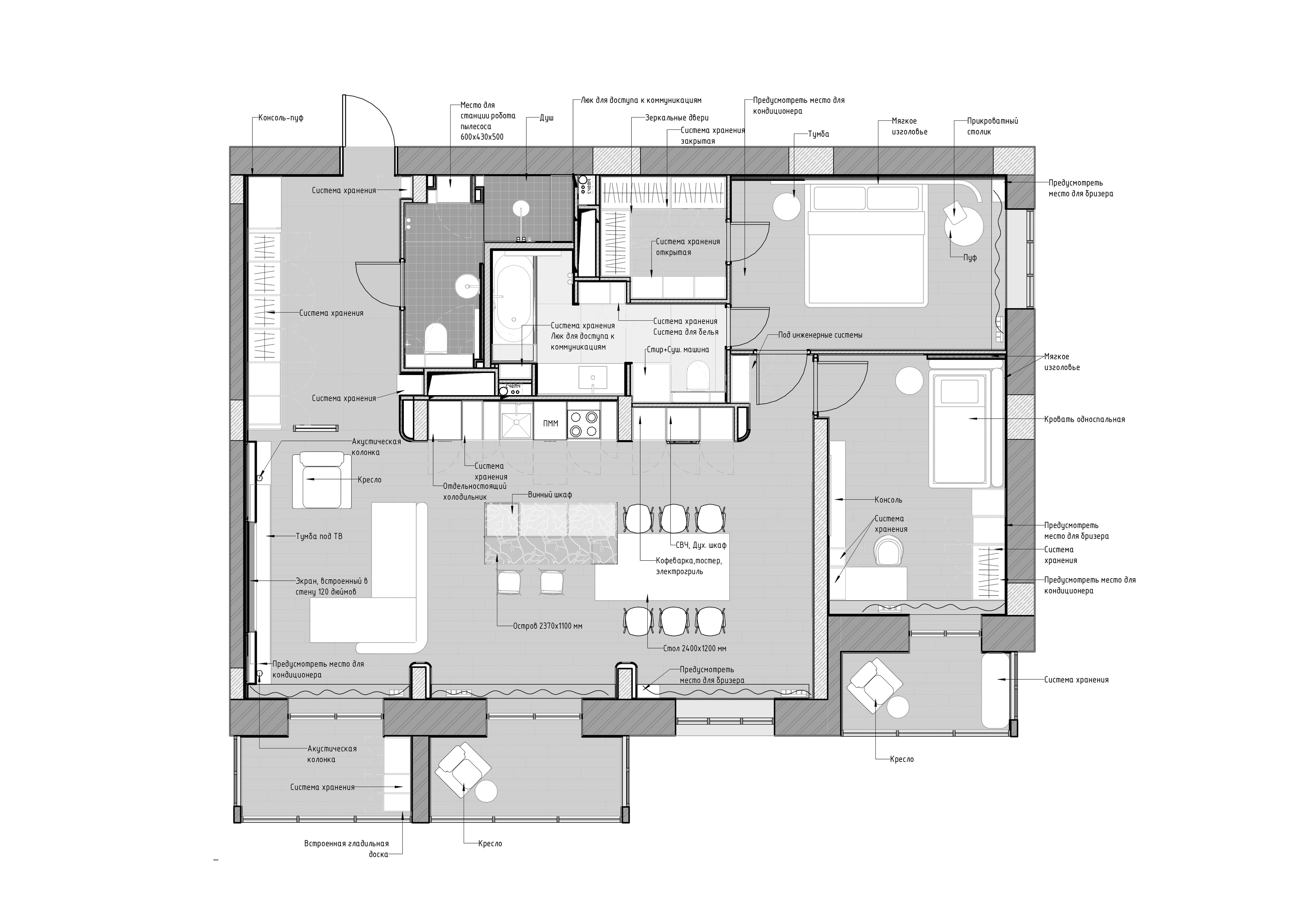
В этой квартире все продумано до мелочей. Мебель отличается лаконичным дизайном и высокой функциональностью. Встроенные системы хранения позволяют поддерживать идеальный порядок, не загромождая пространство. Освещение многоуровневое: помимо общего света, есть точечные светильники, бра и торшеры, которые создают различные сценарии освещения и подчеркивают отдельные зоны.
Несмотря на общую светлую палитру, интерьер не выглядит монотонным. Напротив, он оживает благодаря продуманным контрастам. На фоне светлых стен и потолков ярко выделяются элементы глубокого графитового цвета. Это тонкие рамы окон, стильные светильники, ножки мебели и отдельные декоративные элементы. Эти темные акценты не утяжеляют пространство, а, наоборот, придают ему графичность, четкость и современный характер.
Особое внимание уделено натуральным материалам, которые привносят в интерьер теплоту и уют. На полу – широкоформатная доска из светлого дуба или ясеня, приятная на ощупь и визуально расширяющая пространство. Мебель выполнена из массива дерева, с минимальной обработкой, чтобы сохранить естественную красоту текстуры. Даже декор – это живые растения в стильных кашпо, керамические вазы ручной работы, картины с природными мотивами.
Визуализации
Данная квартира – идеальное воплощение современного стиля, где простор, свет и натуральные материалы создают атмосферу спокойствия, гармонии и изысканности. Это место, где хочется жить, дышать полной грудью и наслаждаться каждым моментом.
客服
消息
收藏
下载
最近






































