查看完整案例

收藏

下载

翻译
Industrial - Elevated - Dynamic in Design
A boutique industrial complex that features 18 architecturally refined units, along with a vibrant on-site café. The units range in size from 128m² to 247m² and are designed with spacious ground-level warehouses, professional mezzanine offices, and fully serviced amenities. Each unit includes private bathrooms, kitchenettes, flexible fit-out options, and exclusive at-grade parking for ultimate convenience.
This commercial area merges architecture-focused design with contemporary amenities, establishing a genuine creative hub for ambitious businesses. Elegant facades with expansive arched windows improve street appeal and provide ample natural light. The boutique design is enhanced by colored window frames, which offer a refined contrast to the tilt-panel facade, delivering a distinctive premium finish.
An on-site café and landscaped breakout areas foster a vibrant atmosphere for meetings, coffee breaks, and fresh-air resets, encouraging teams to settle in, stay longer, and produce their best work.
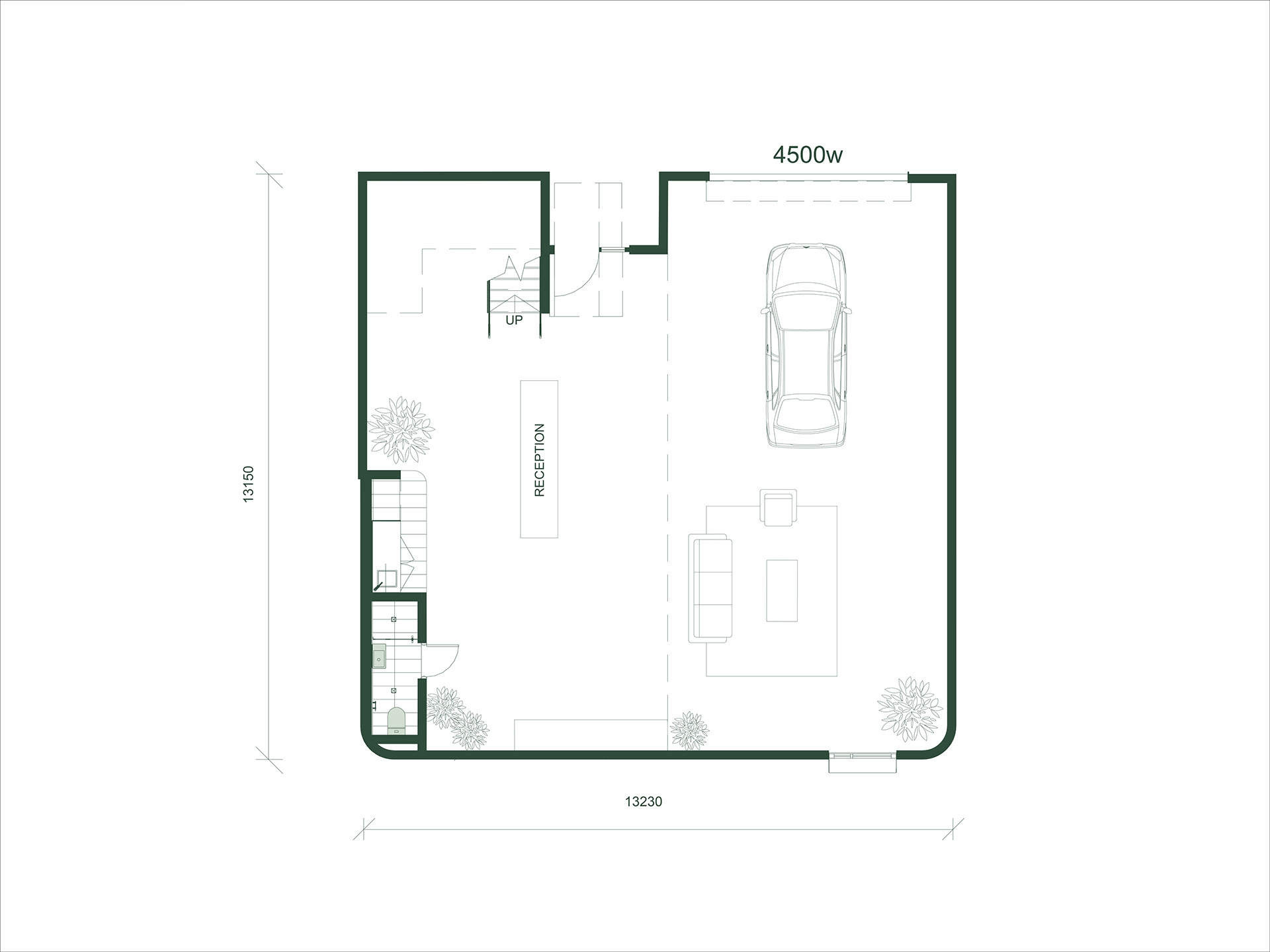
Unit 1 — Showroom• Upstairs office with window line overlooking warehouse.• Warehouse as premium showroom: reception desk + display shelving, clean floor finish.• Highlight private balcony with outdoor table/chairs for coffee/lunch/drinks.• Vehicles: show premium model suited to use-case.
Unit 2 — Bathroom Equipment Store + Office• Full office upstairs with windows to warehouse.• Bathroom Equipment Store.• Plants/artwork to soften the industrial feel.
Unit 3 — Car Storage + Office• Office upstairs with modern desks and glazing.• Warehouse as premium vehicle storage (sports/collector cars) with feature lighting.• Vehicles: show premium model suited to use-case.
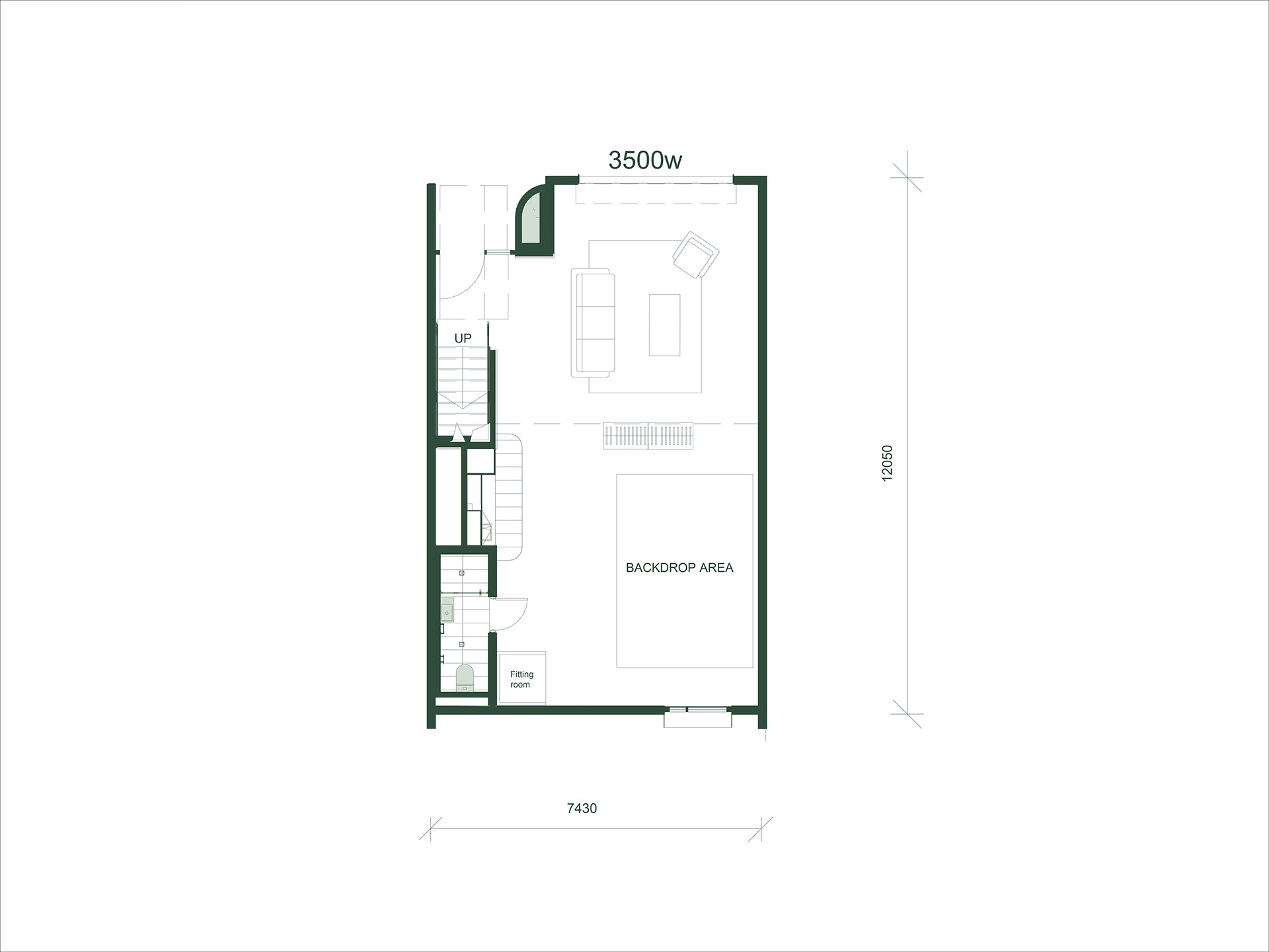
Unit 5 — Design/Photography Studio• A cold shell mezzanine is set up with a boardroom table and plants for a touch of greenery.• Warehouse as photography/design studio: backdrop, lighting rigs, props, sample boards.
Unit 8 — Pilates Studio (Mezzanine) + Plant & Pot Shop (Warehouse)• Mezzanine: a high-quality Pilates studio featuring reformer machines, timber flooring, mirrors, acoustic panels, and premium lighting.• The atmosphere should be calming, featuring indoor greenery, neutral textures, and modern artwork.• Warehouse: a premium plant and pot shop featuring tiered display benches, shelving for ceramics, neatly stowed irrigation hose reels, and lush greenery.
Unit 9 — Tile/Cabinetry Showroom + Office• The upstairs office is fully closed in. • The downstairs showroom features cabinetry, tile, and flooring sample displays. • Add pallet racking and plants, with customers viewing displays and a delivery van outside.
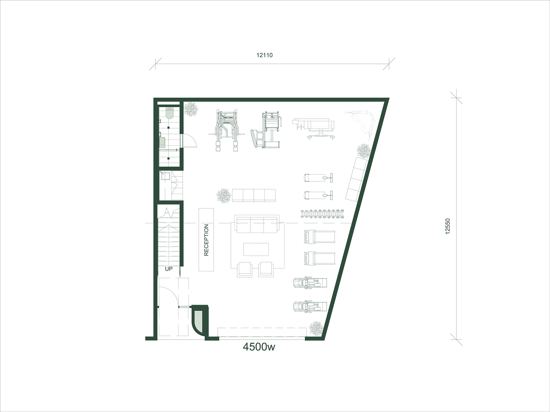
Unit 10 — Luxury Wellness Hub• An upstairs office with a railing overlooking the warehouse floor.• The warehouse is designed as a high-end wellness hub, featuring areas for massage therapy, yoga, and stretching, as well as luxury beauty and treatment zones.• The design features premium finishes with a soft color palette, complemented by timber and stone accents, mirrors, plants, and designer lighting.
Unit 11 — Clothing Design Warehouse• Open mezzanine: premium desks, plants and framed art.• A clothing warehouse, pallet racking and boxes with employees are working and a delivery van outside.
Unit 13 — Trade Office + Storage• Cold shell mezzanine with private trade desk, meeting area.• Warehouse: building materials storage + lifestyle element (jet ski) and a delivery van outside.
Unit 14 — Barber Shop + Waiting Lounge• Mezzanine: couches, TV, waiting lounge.• Warehouse: a trendy barber shop featuring multiple chairs, abundant plants, warm lighting, and a display of retail products.
Unit 17 — High-End Kitchen/Stone Showroom• Bright office space upstairs with windows for ample natural light.
• Downstairs is a premium showroom featuring kitchen cabinetry, stone slabs, and tile displays, all enhanced by designer lighting.
Unit 18 — Professional Workplace• Full office upstairs.
• Separated modern workstations featuring premium furniture and ample light.
Café — Premium Fit-Out
• A modern café counter featuring a stone surface, complemented by timber accents and distinctive lighting.• A variety of seating options, including a communal timber table, café tables, banquette seating, and an outdoor area for spill-out seating.• Incorporation of greenery, acoustic treatments, and a soft neutral color palette that aligns with the brand.• Showcase premium coffee equipment, a pastry display, and subtle branding elements.
Thank you for viewing our work!
VISIT US
WEBSITE INSTAGRAM PINTEREST FACEBOOK
客服
消息
收藏
下载
最近







































