查看完整案例

收藏

下载

翻译
Architects:Atelier ALL
Area:686m²
Year:2022
Photographs:Siming Wu
Lead Architects:Liu Congxiao, Liu Xiao
Category:Houses
Design Team:Liu Congxiao, Liu Xiao, Huang Donghua, Du Guanzhi, Weng Zherui, Tang Zihao, Li Yangyang, Xue Yong, Deng Jiewen, Deng Jianhong
City:Chaozhou
Country:China
Text description provided by the architects. In the Chaoshan region, "Cuò" refers to residential dwellings, a term that not only denotes the physical space of a house but also extends to social connections like "厝边" (Cuò-biān, neighborhood). Xikoucuò is located on the outskirts of Teochow, on a uniformly planned new rural construction site. The plot is not far from the old village, adjacent to a branching stream. The residential plot faces the stream to the south and backs onto a planned rural road to the north. There is a height difference of about 4 meters on the stream side.
The homeowners, Uncle Liu and Aunt Zhang, are an elderly couple with children working outside the region. Their requirements for the house are straightforward: within the 15-meter height limit, the building must include no fewer than 10 bedrooms to accommodate family gatherings and neighborly hospitality. This raises a design consideration: Against the backdrop of the near disappearance of traditional village fabric, can a private residence also sustain rural neighborhood life and incorporate a degree of public character?
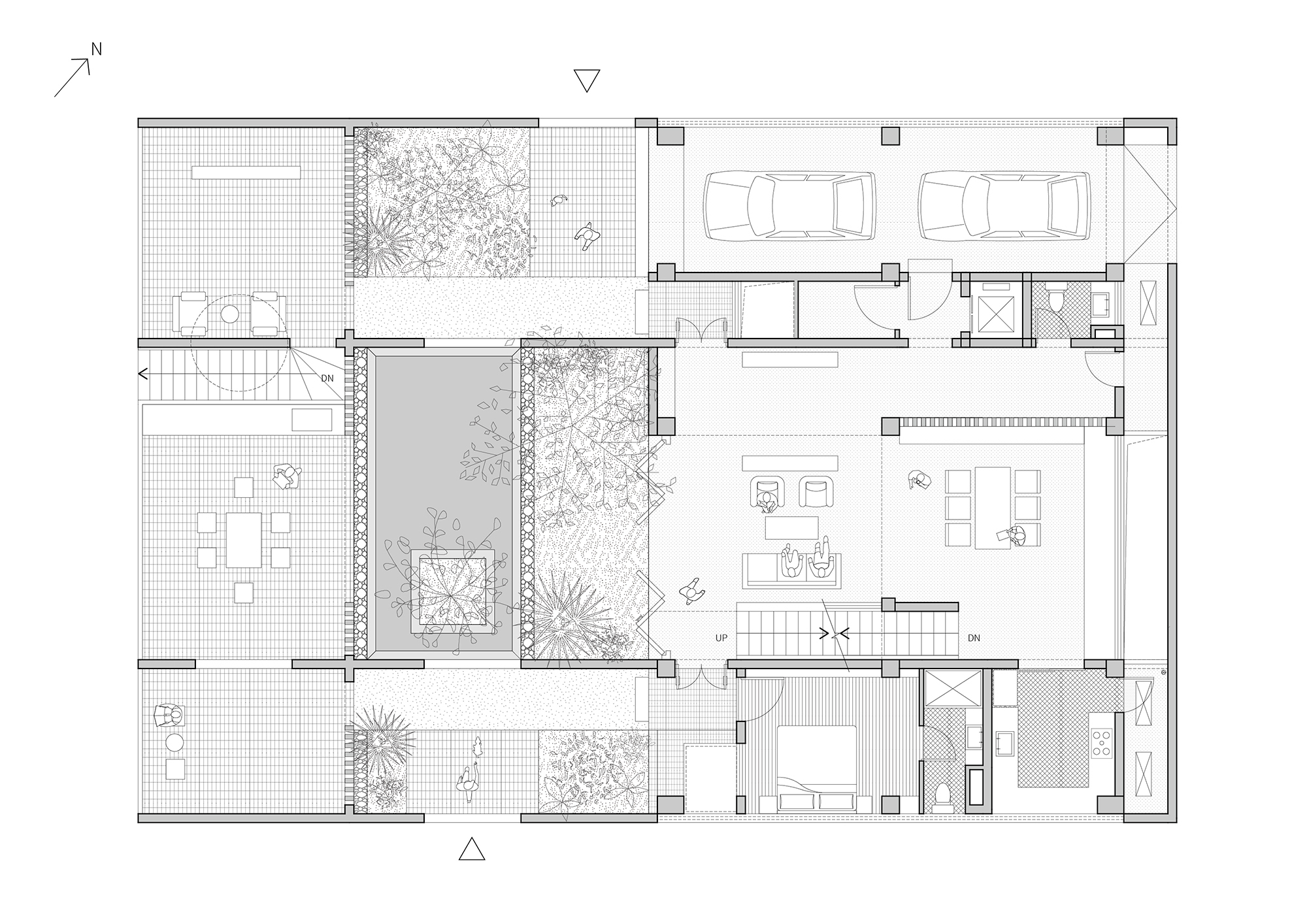
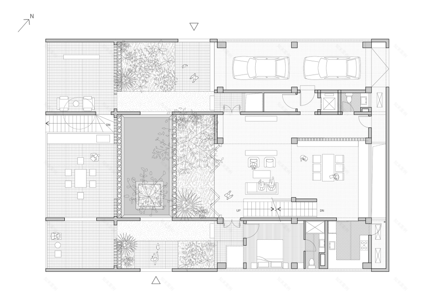
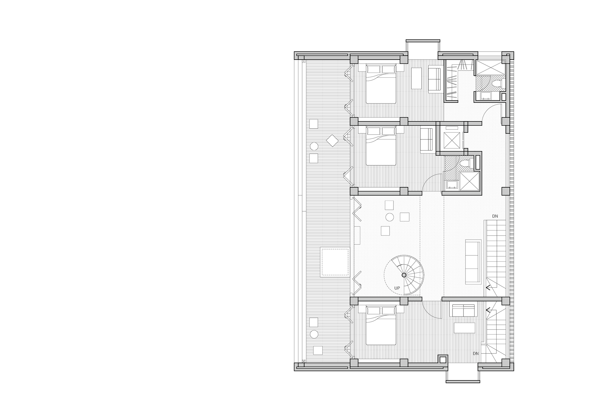
The design divides the house into two parts: the "Lower Courtyard" and the "Upper House", addressing different needs for horizontality and verticality, public and private domains. The "Lower Courtyard" is a horizontal volume that reinterprets the "courtyard", possessing a certain public character. The "Upper House" is a vertical volume that abstracts the "family spaces", belonging to the private realm of the family. The lower section is a fair-faced concrete base, while the upper section is the main structure with a brick-and-tile pitched roof.
The "Lower Courtyard" is a single-story horizontal volume enclosed by fair-faced concrete walls, with only two circular openings on the exterior, perpetuating the introverted character of Chaoshan dwellings. Inside, a courtyard system is defined by intersecting walls, creating independent yet interconnected spaces. A shallow pool is placed in the central courtyard, serving as an anchor for spatial organization. The southern tea pavilion is a semi-open three-bay space, fully open to the stream and bamboo grove. On fine days, Uncle Liu often brews "Gongfu tea" here to receive visiting neighbors. The major living room to the north is a double-height space serving as the family's primary living quarters. Folding sliding doors facing the courtyard can be fully opened to merge indoor and outdoor spaces.
Circulation paths differentiate between the homeowners and guests, ultimately converging in the living area, making it a transitional space between private and public domains, accommodating both family life and neighborly hospitality. In response to the "disappearance of proximity" in urbanization processes, the design attempts to actively "cede" part of the private domain, reconstructing a clearly bounded yet daily interaction-based "social living room."
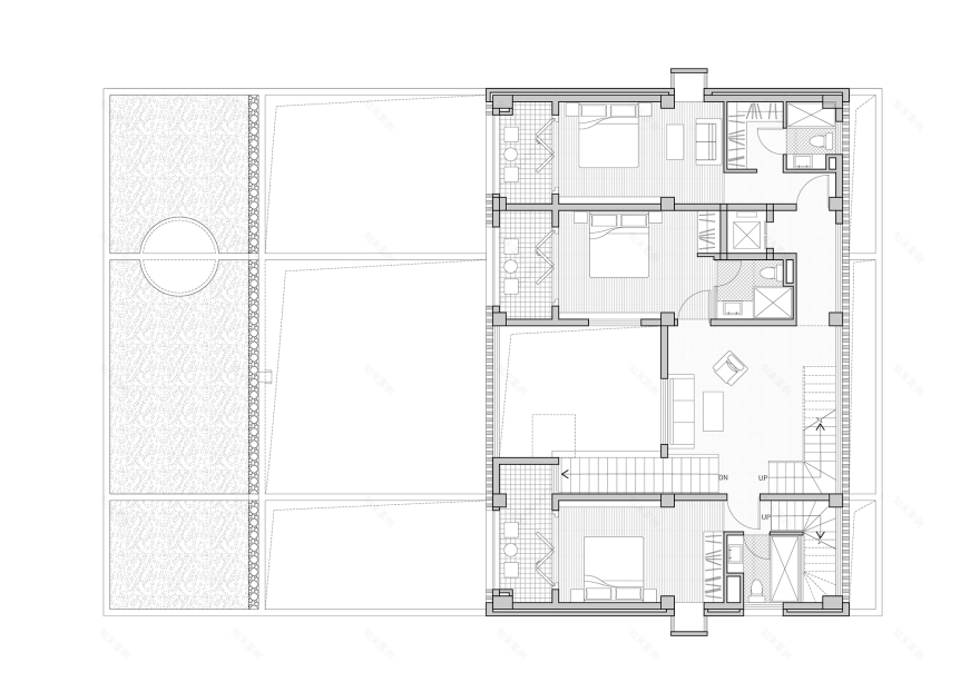
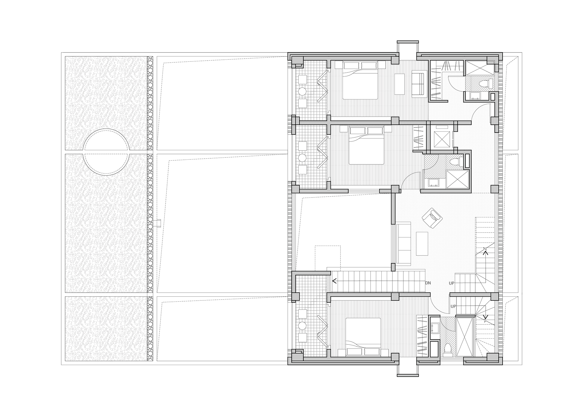
The "Upper House" is a four-story vertical volume, with public living and auxiliary functions on the ground floor, living spaces on the second and third floors, and an attic under the pitched roof on the fourth floor. Floors are connected through staggered and turning transitions. Openings between rooms create "porosity," allowing for a moderate integration of private and public domains, fostering a cohabitation atmosphere of "living together." Bedrooms on the second and third floors are connected by a northern corridor, with living balconies on the south side. The pitched roof echoes the surrounding old village while meeting volume requirements. Inside the roof, a dense rib structure supports a triangular attic. Skylights introduce diffuse light. This area is intentionally left without a specific function, serving as a "blank canvas" for the family's future growth.
Xikoucuò was completed during the pandemic and has been in use for several years. The spatial framework responds to the elderly couple's original wish: a place that accommodates family gatherings while remaining open to the neighborhood. Between tradition and contemporaneity, the design seeks a balance—organizing spatial structures to mediate relationships between family and community, private and public, traditional and contemporary.
Project gallery
客服
消息
收藏
下载
最近










































