查看完整案例

收藏

下载

翻译
Architects:Dubbeldam Architecture + Design
Area:333m²
Year:2025
Photographs:Riley Snelling
Manufacturers:Lutron,Fisher & Paykel,Inline Fiberglass,Antoinette,Article Furniture,Bauhaus Doors,Blanco Alta,Caesarstone,EQ3,Eglo,Falmec Integrated Hood,Franke,Gentek,Iron Ore,Kohler,Lutron Shading Systems,Maibec,Marvel Undercounter Wine Fridge,Muuto,Riobel, +7Rohl,Rubinet,Skovby,URBAHN in Coastal Charcoal,Valcourt,Western hemlock T&G boards,e15-7
Category:Houses
Design Team:Heather Dubbeldam, Andrew Snow, Krystal Kramer
General Contractor:Thomas J Stead Construction
Consultants:Blackwell Structural Engineers
Country:Canada
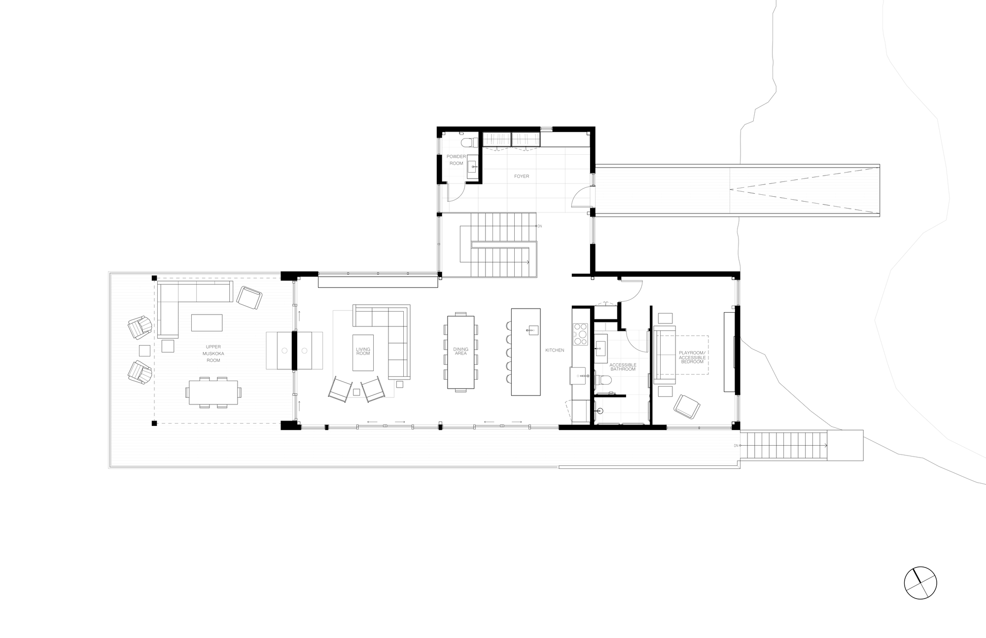
Text description provided by the architects. An off-grid cottage on a forested peninsula combines natural materials with elevated living spaces amid the trees. Located on a secluded peninsula along a pristine, motorboat-free lake in the Ontario wilderness, this off-grid retreat offers a serene escape for an urban couple with a deep love of nature—who spent weekends camping on the land for a year before deciding where and what to build. Their goal: a place deeply connected to nature, elevated among the trees, and designed to accommodate accessible multigenerational living—a welcoming year-round refuge for gathering with family and friends. Designed by Dubbeldam Architecture + Design, the two-level cottage maximizes views of the surrounding water and forest while maintaining a light touch on the environment it inhabits. Situated below a ridge of exposed bedrock, the lower half of the cottage is concealed from view on approach, while its upper floor is accessed via a bridge—an essential feature for a family member who uses a wheelchair. The main living spaces are located on this upper level to fulfill the clients' vision of a living room that "floats above the forest floor." Expansive wrap-around windows and sliding doors open onto a generous upper deck with west and south-facing exposures, blurring the boundaries between indoors and outdoors and deepening the experience of nature for both owners and guests. At the heart of the upper level is the open-plan living and dining area, where views of the lake are framed through the surrounding trees. A cast concrete hearth anchors the space, with generous seating arranged around it to encourage gathering. A built-in 17-foot-long window bench with integrated storage offers additional options for casual lounging or enjoying the view. The kitchen features white oak millwork paired with engineered stone counters and backsplash, while a long island with a bar sink and ample seating subtly defines the space. Overhead, a ceiling of continuous western hemlock boards softens acoustics and adds warmth and texture to the interior. On the lower level, five bedrooms each open directly to the forest through floor-to-ceiling windows and dedicated exterior entrances, offering guests privacy and a direct connection to the landscape. The primary bedroom faces west and opens fully to the outdoors, while the ensuite bathroom includes an outdoor shower—an homage to the family's love of camping. A sixth bedroom and bathroom on the upper level that is fully accessible ensures that all family members can comfortably experience the cottage together. "We designed the cottage with the living spaces upstairs and bedrooms below to preserve the natural contours of the site and ensure accessibility for the entire family," says principal Heather Dubbeldam. "This slightly unorthodox arrangement emphasizes the retreat's connection to nature, with communal spaces in the tree canopy and private areas within the forest floor." The two levels of the cottage are offset along their length to create a pair of generous outdoor spaces tucked into the building's form. These decks extend the living areas outward into the natural surroundings, offering open-air lounging and dining opportunities. The main upper deck, adjacent to the living room, provides sweeping views of the forest and water on three sides. It features retractable screens for protection from bugs, and an outdoor wood-burning fireplace that echoes the hearth inside, extending enjoyment of the outdoors into the colder months. The lower deck, shaded beneath the projecting upper floor and nestled against a bedrock outcropping, stays cool in summer thanks to the cooling effect of the stone and cross-breezes off the lake. Built entirely off-grid, the cottage is powered by a large solar array and constructed from sustainably harvested wood species, including wood milled nearby. Wood is used throughout as both structure and finish: greyed cedar and charcoal-stained spruce clad the exterior, visually receding into the forest, while inside, a lighter palette of brush-finished oak flooring and oil-rubbed hemlock creates a warm, relaxed atmosphere. The hemlock ceiling boards continue uninterrupted from interior to exterior, reinforcing a sense of material continuity and connection to the landscape. Fully winterized, Long Lake Cottage is more than a summer escape—it's a year-round retreat for slowing down and living in sync with nature, immersed in the shifting seasons, light, and sounds of the forest and lake.
Designed by Dubbeldam Architecture + Design, the two-level cottage maximizes views of the surrounding water and forest while maintaining a light touch on the environment it inhabits. Situated below a ridge of exposed bedrock, the lower half of the cottage is concealed from view on approach, while its upper floor is accessed via a bridge—an essential feature for a family member who uses a wheelchair. The main living spaces are located on this upper level to fulfill the clients' vision of a living room that "floats above the forest floor." Expansive wrap-around windows and sliding doors open onto a generous upper deck with west and south-facing exposures, blurring the boundaries between indoors and outdoors and deepening the experience of nature for both owners and guests.
At the heart of the upper level is the open-plan living and dining area, where views of the lake are framed through the surrounding trees. A cast concrete hearth anchors the space, with generous seating arranged around it to encourage gathering. A built-in 17-foot-long window bench with integrated storage offers additional options for casual lounging or enjoying the view. The kitchen features white oak millwork paired with engineered stone counters and backsplash, while a long island with a bar sink and ample seating subtly defines the space. Overhead, a ceiling of continuous western hemlock boards softens acoustics and adds warmth and texture to the interior.
On the lower level, five bedrooms each open directly to the forest through floor-to-ceiling windows and dedicated exterior entrances, offering guests privacy and a direct connection to the landscape. The primary bedroom faces west and opens fully to the outdoors, while the ensuite bathroom includes an outdoor shower—an homage to the family's love of camping. A sixth bedroom and bathroom on the upper level that is fully accessible ensures that all family members can comfortably experience the cottage together.
"We designed the cottage with the living spaces upstairs and bedrooms below to preserve the natural contours of the site and ensure accessibility for the entire family," says principal Heather Dubbeldam. "This slightly unorthodox arrangement emphasizes the retreat's connection to nature, with communal spaces in the tree canopy and private areas within the forest floor."
The two levels of the cottage are offset along their length to create a pair of generous outdoor spaces tucked into the building's form. These decks extend the living areas outward into the natural surroundings, offering open-air lounging and dining opportunities. The main upper deck, adjacent to the living room, provides sweeping views of the forest and water on three sides. It features retractable screens for protection from bugs, and an outdoor wood-burning fireplace that echoes the hearth inside, extending enjoyment of the outdoors into the colder months. The lower deck, shaded beneath the projecting upper floor and nestled against a bedrock outcropping, stays cool in summer thanks to the cooling effect of the stone and cross-breezes off the lake.
Built entirely off-grid, the cottage is powered by a large solar array and constructed from sustainably harvested wood species, including wood milled nearby. Wood is used throughout as both structure and finish: greyed cedar and charcoal-stained spruce clad the exterior, visually receding into the forest, while inside, a lighter palette of brush-finished oak flooring and oil-rubbed hemlock creates a warm, relaxed atmosphere. The hemlock ceiling boards continue uninterrupted from interior to exterior, reinforcing a sense of material continuity and connection to the landscape. Fully winterized, Long Lake Cottage is more than a summer escape—it's a year-round retreat for slowing down and living in sync with nature, immersed in the shifting seasons, light, and sounds of the forest and lake.
Project gallery
客服
消息
收藏
下载
最近

































