查看完整案例

收藏

下载

翻译
Architects:NM2A
Area:5586m²
Year:2023
Photographs:NM2A
Lead Architects:NM2A
Category:Schools
Lead Team:Christophe Ramonatxo
Design Team:Clement Talagrand
Technical Team:Alice Donadieu
Architecture Offices:AMG Architectes
Engineering & Consulting > Mep:ADRET
Engineering & Consulting > Quantity Surveying:BPTEC
Engineering & Consulting > Structural:CALDER
Engineering & Consulting > Civil:RELIEF GE
Engineering & Consulting > Other:ARFACTO
Engineering & Consulting > Environmental Sustainability:ADRET
City:Remoulins
Country:France
Text description provided by the architects. Located in Remoulins, near the Pont du Gard, Voltaire Middle School proposes a contextual and frugal architecture in which environmental, hydraulic, and educational constraints become the driving forces of the project rather than obstacles to overcome.
Commissioned by the Gard Department, the project involved reconstructing the school on its original site, located within a flood-prone area, while maintaining the operation of the existing facilities throughout construction. The brief called for a resilient, low-impact building adapted to a Mediterranean climate increasingly marked by heatwaves and extreme weather events.
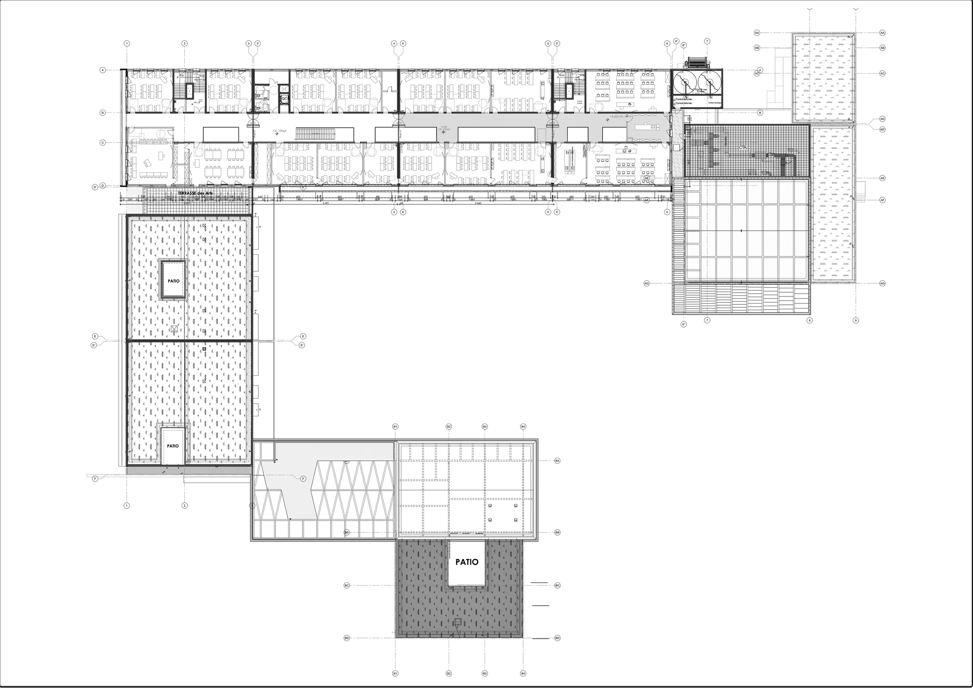
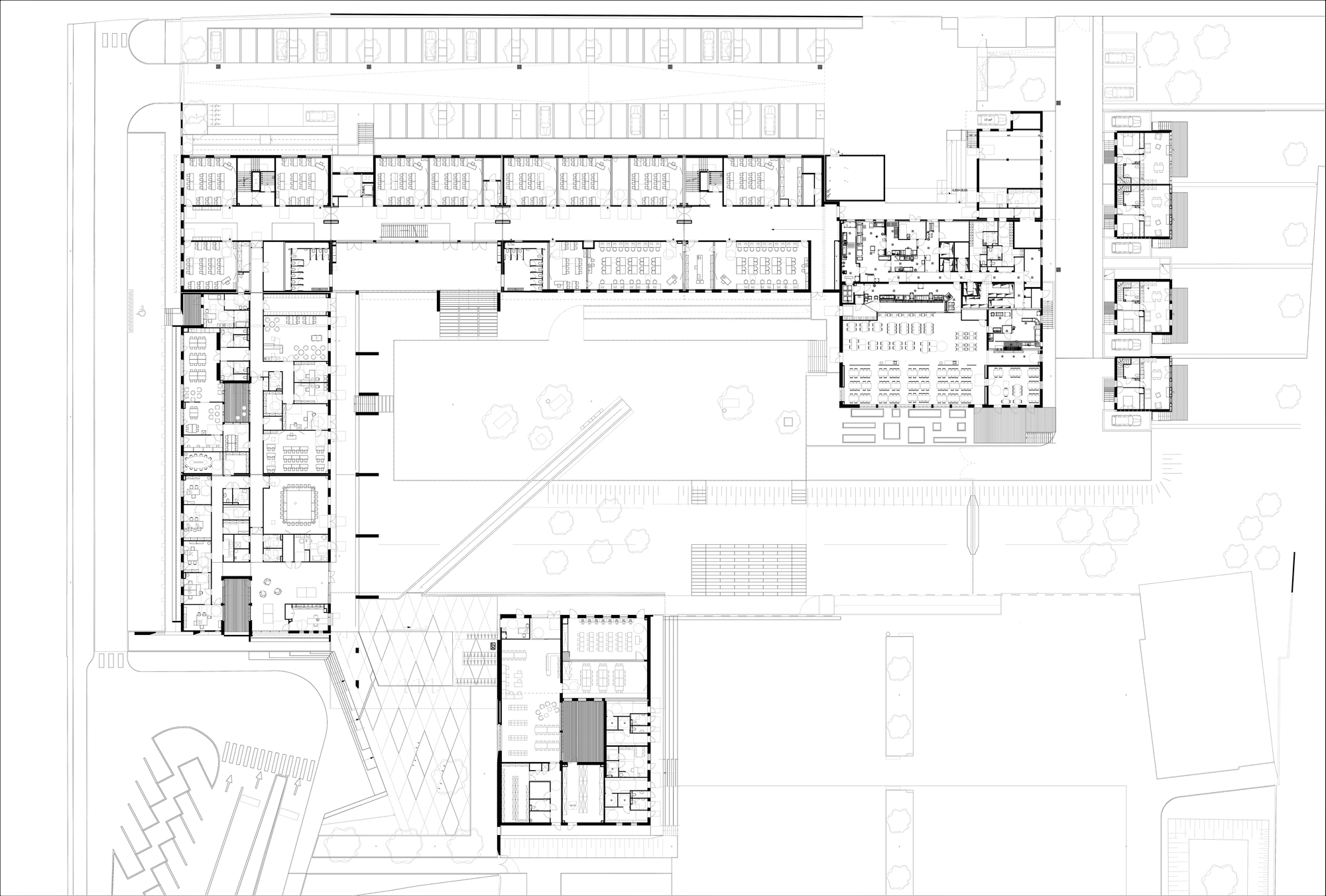
The architectural response is based on a clear site strategy and a simple, legible composition. Teaching spaces, administration, cafeteria, and library are organized around a central courtyard conceived as a forum—the social and spatial heart of the school. Elevated on pilotis, the buildings ensure full hydraulic transparency and integrate retention basins designed for a centennial flood, exceeding regulatory requirements. The volumes frame outdoor spaces, protect from prevailing winds, and optimize solar orientation.
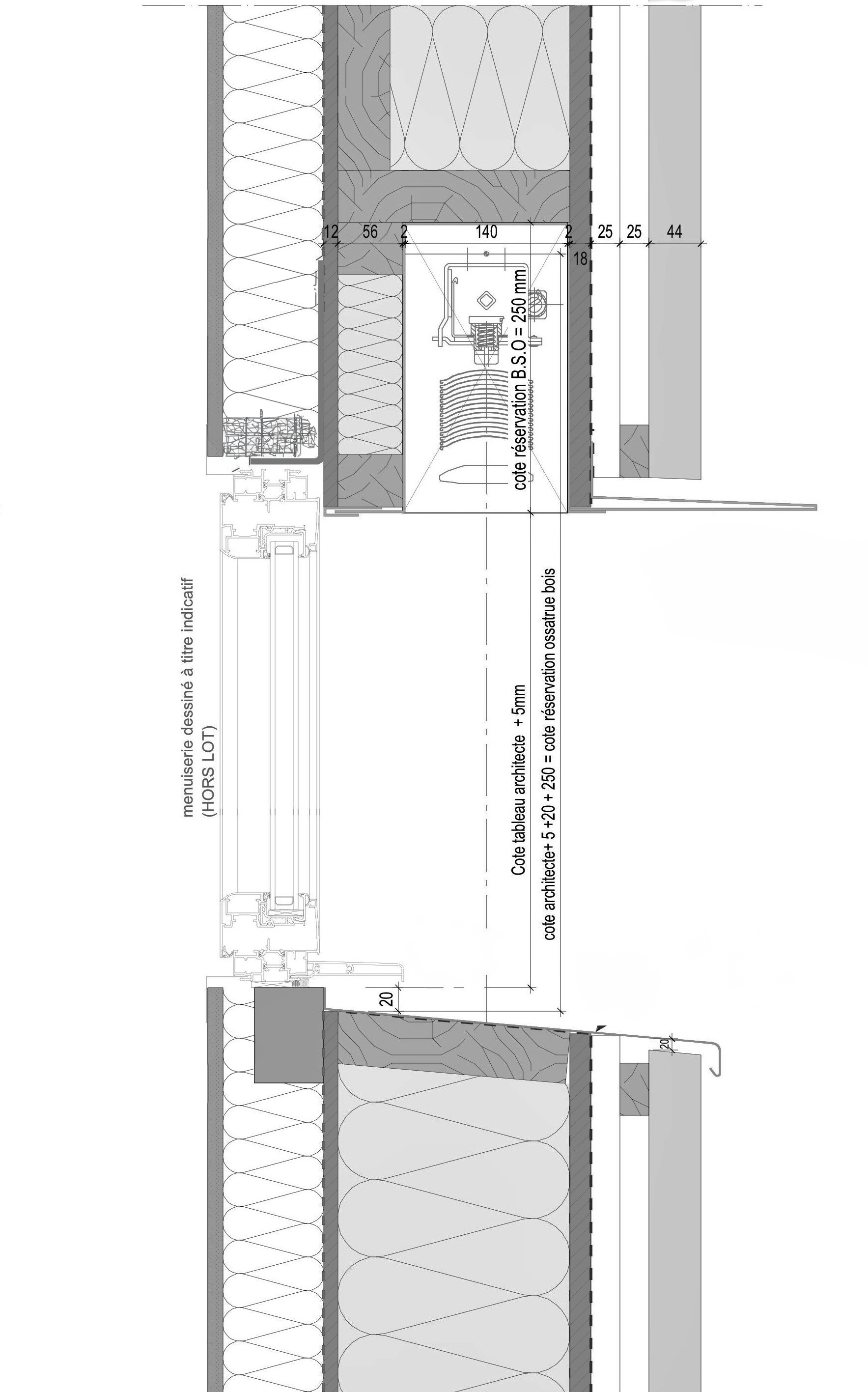
The project relies on a sober and expressive construction system that combines low-carbon concrete, local limestone, and timber. Concrete structures the base and addresses hydraulic and seismic constraints. Massive stone walls, sourced locally, anchor the building within its territory and echo regional construction traditions. Timber structures at upper levels and roofs allow large spans, spatial flexibility, and generous daylight, while creating warm interior atmospheres.
Environmental performance is achieved through bioclimatic design rather than technological excess. A high-performance thermal envelope, solar protections adapted to each orientation, ceiling fans, and automated night-time over-ventilation ensure summer comfort without air conditioning. The building reaches BEPOS Effinergie E4C1 and Bâtiment Durable Occitanie Gold certification, supported by a 100% wood-fired heating system, a 99 kWp photovoltaic installation, and the extensive use of bio-based materials, including rice straw and rice husk insulation sourced from Camargue agriculture.
The design intent was to offer a contextual Mediterranean architecture in which light—more than form—shapes space, landscape, and materiality. Through a subtle interplay of shade and openness, the boundaries between interior and exterior dissolve, allowing sunlight to irradiate the project while remaining carefully controlled.
Beyond performance metrics, the project places users at the center of the design process. A collaborative approach involving future occupants accompanied all phases, fostering long-term appropriation. Voltaire Middle School thus delivers a resilient, low-tech, and deeply rooted learning environment, where architecture serves climate, use, and place with clarity and restraint.
Project gallery
客服
消息
收藏
下载
最近




























