查看完整案例

收藏

下载

翻译
Architects:Ateliê GR
Area:243m²
Year:2024
Photographs:Nelson Kon
Manufacturers:Neorex,Permetal
Lead Architect:Gabriel Rodrigues Grinspum
Category:Residential Architecture,Houses
Project Team:Catarina Raposo, Paulo França
Engineering & Consulting > Lighting:Ricardo Heder
Engineering & Consulting > Structural:Franco Petrelli Maccheroni (PETRI Projetos de Fundações e Contenções)
Engineering & Consulting > Facilities:Maria Aparecida Musilani (MULISANI Consultoria e Projetos)
General Construction:EPS Obras (Estrutura e Acabamentos), MM fundações, Aços Caieiras, Polly concretos e pinturas
City:São Paulo
Country:Brazil
Text description provided by the architects. Located in an urban mixed-use lot, Casa Caetés is situated on a quiet street that balances residential and commercial use. The design was created for a large family with a "tentacular" configuration—a couple and five children—whose expanded connections demand a complex and interconnected spatial structure.
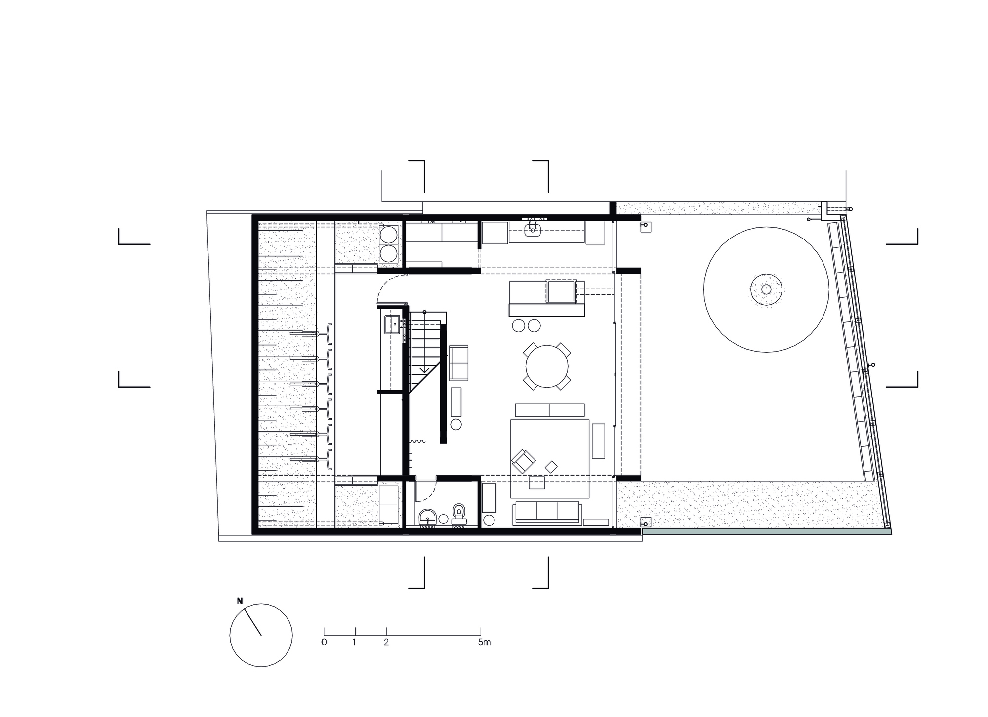
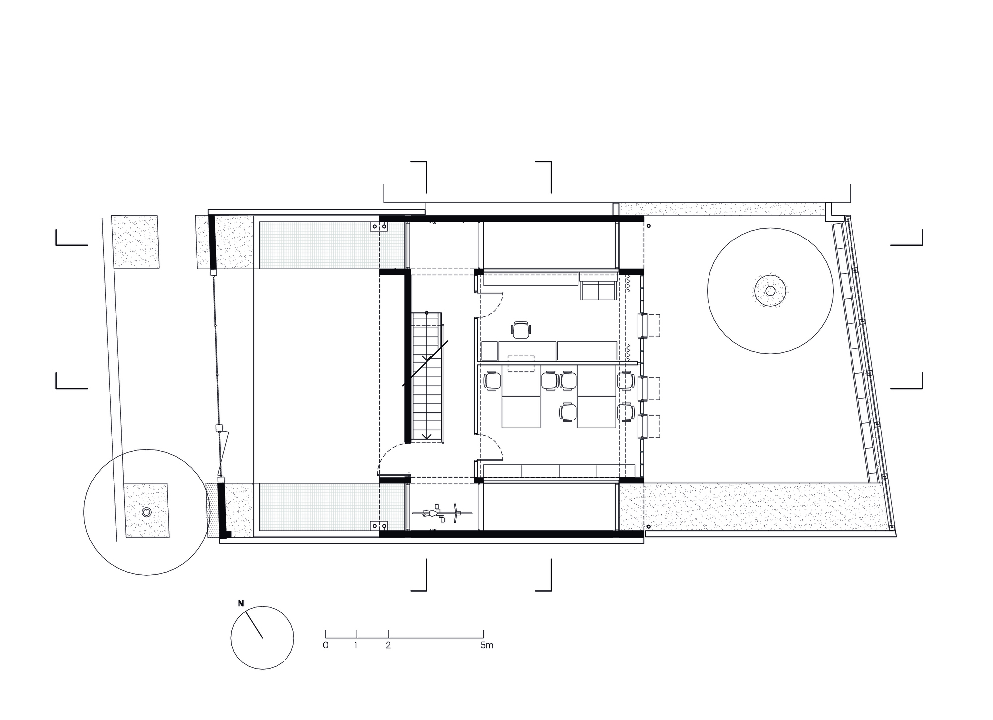
The layout adopts a compact three-story volume, optimizing the built area and prioritizing natural light and ventilation. The open floor plan, with drywall partitions, ensures maximum flexibility for the spaces.
• Intermediate Floor (Work): At street level, it houses the garage and two independent offices separated by voids. The layout integrates the professional dynamics of the adults with the leisure of the children (games and videos).• Lower Floor (Social and Services): Located at a semi-buried level, it concentrates the living rooms, dining area, and kitchen, which are integrated with the landscaped yard. Longitudinal openings in the boundaries ensure ventilation, privacy, and views of the skyline.• Upper Floor (Intimate): It houses the bedrooms along a hallway illuminated by concrete cobogós. The high ceiling and cross ventilation provided by the perforated panels define the environmental comfort of this floor.
The roof functions as a garden slab, acting as a "green sponge" for rainwater retention. The system uses a permanent water layer that ensures waterproofing, irrigation during dry periods, and high thermal performance, eliminating the need for costly asphalt membranes. The technical area is already designed to facilitate the future integration of solar panels.
The architectural language emphasizes raw aesthetics: bricks, exposed concrete blocks, prefabricated slabs, and "zero-slab" flooring. The installations are exposed and color-coded, merging the industrial with the artisanal. With references to modern architecture, Casa Caetés embodies the concept that "the city is a house and the house is a city," functioning as a plural shelter for different generations.
Project gallery
客服
消息
收藏
下载
最近




































