查看完整案例

收藏

下载

翻译
2SMART
Location: Vinnytsia, Ukraine
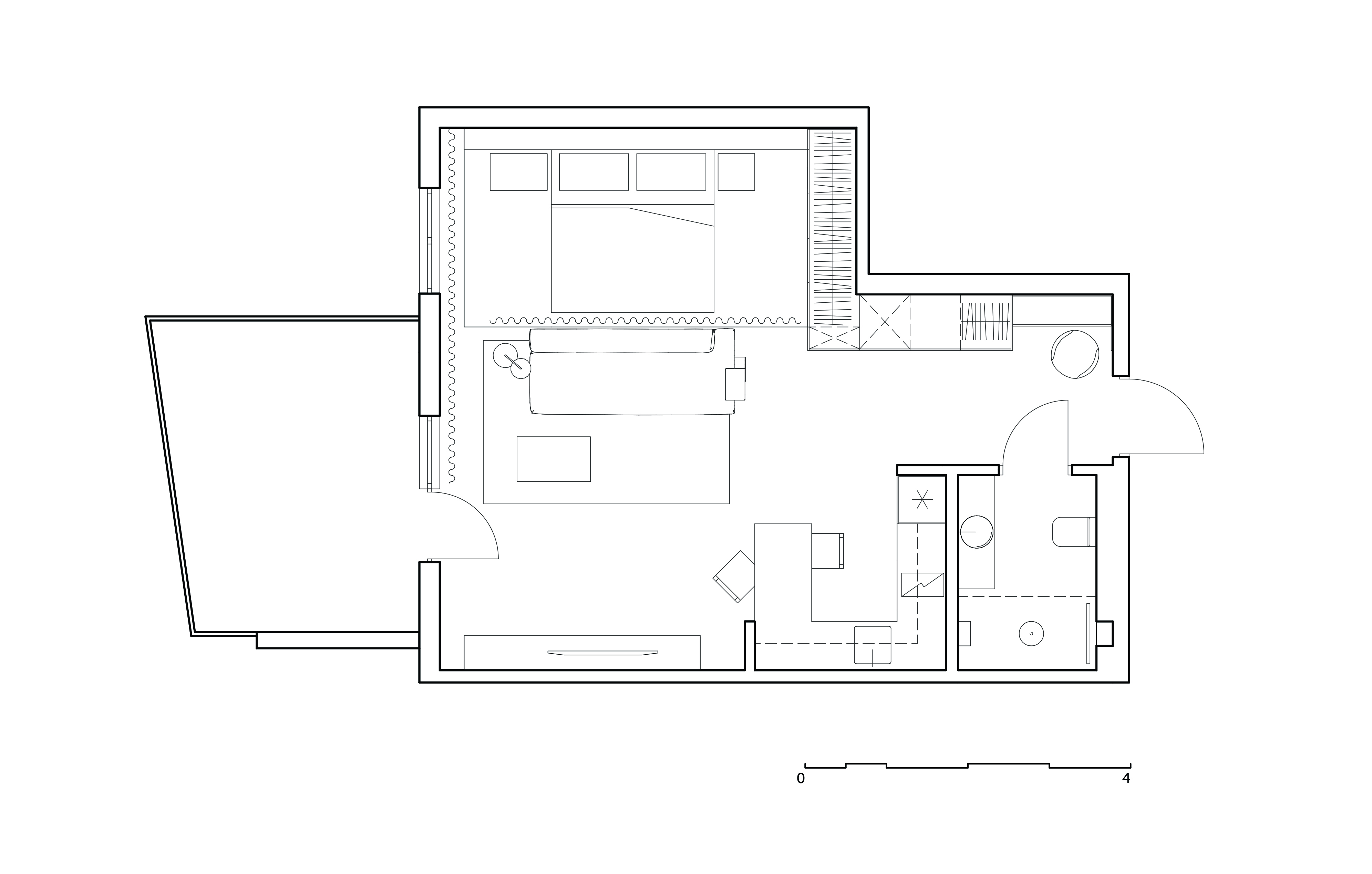
Area: 47 sq.m. and 48 sq.m.
Team: Alexey Gulesha, Nastya Abravitova, Victoria Romaniuk, Daniel Glamazdinov
Year: 2025
Photo: Alexey Gulesha
A request to make two apartments for rent with almost identical areas in Vinnytsia was quite ordinary for our team but the project can become surprisingly atmospheric when you add a little bit of taste in it.
The main thing was to keep the lighty and airish vibe in the both spaces so we decided to demolish the wall between living and bedroom and to experiment with partitions.
In this one we encouraged the client to choose just a textile partition and it pays off: lights and shadows create a meraculous play on the walls of the space but there's still is a option for some bedroom privacy.
The second apartment has a glass partition to give more privacy to bedroom and to zone a living room in a different way.
Visit our website to get a quotation for your future project.
Subscribe to our Instagram.
Thank you for watching.
客服
消息
收藏
下载
最近










