查看完整案例

收藏

下载

翻译
BUDYNOK KINO
Architects: Nataliia Stukonoh, Ira Holubieva, Yuliia UdovydchenkoCreative supervision: Slava Balbek3D artists: Olena Loshakova, Nik KeyProject manager: Nadiia MartynovaProject area: 5815 sq.mProject year: 2024Location: Kyiv, Ukraine
ABOUT | LOCATION | TASK | OUR APPROACH | DESIGN | OUTDOOR | TEAM
ABOUT
The House of Cinema, “Budynok Kino”, part of the National Union of Cinematographers of Ukraine, is a cultural landmark and the main hub of Ukrainian cinema. It is located in central Kyiv, on Saksahanskoho Street. Its halls regularly host film screenings, festivals, creative gatherings, lectures, and presentations.
LOCATION
The four-story Budynok Kino, built in 1974 and designed by Fedir Borovyk, exemplifies Soviet futurist architecture. Its defining features include geometric forms, a concrete-and-glass structure, and decorative reliefs and sunshades on the façade. Ukrainian potters, artists, and ceramists contributed to the facility’s monumental and decorative interior.
Before the building’s revitalization concept was developed, the clients gave the bureau's team a detailed tour of the Budynok Kino. Visiting it felt like stepping back in time – the original 1970s design remains intact, preserving a living memory of that era. The space of four floors is divided into numerous rooms for different purposes: cinema halls, conference rooms, open hallways, cafes, a library, projection booths, backstage areas, technical rooms, etc. Currently, the building does not meet inclusivity standards.
TASK
The team behind the venue, representatives of the Union of Cinematographers of Ukraine, commissioned the bureau to reimagine and breathe new life into Budynok Kino. We had to assess the current state of the premises and propose new functional uses. The space should continue to feel alive and welcoming even between major events such as film festivals, concerts, and stand-up shows.
OUR APPROACH
After assessing the site’s current state, we identified intermediate project goals: renovating the existing spaces; developing an updated interior concept that would include new materials, lighting, and furniture; implementing inclusive design principles across all aspects of the project.
Our team proposed dividing usage scenarios into winter (interior-only) and summer (including balconies and the rooftop). The distinguishing between permanent and occasional uses allows developing a schedule of events and diversifying the building’s functions.
DESIGN
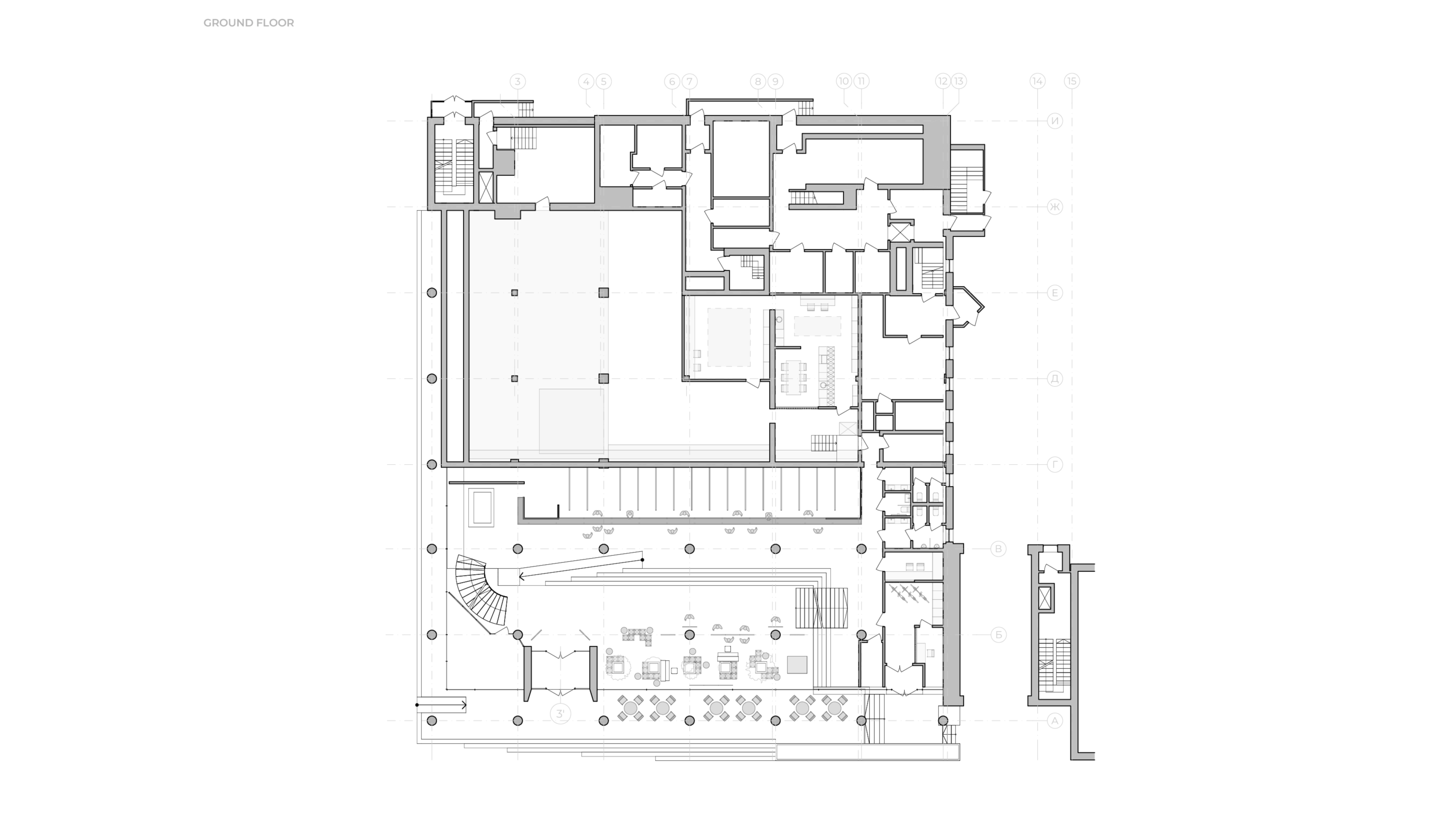
Ground floor
The focal point of the main hall is the cloakroom, which can transform into an exhibition area or retail stand for fairs. A ramp, reconstructed using original materials, is added to the staircase. In the large staff room, we propose separating the lounge and lockers for employees' personal belongings from the utility infrastructure.
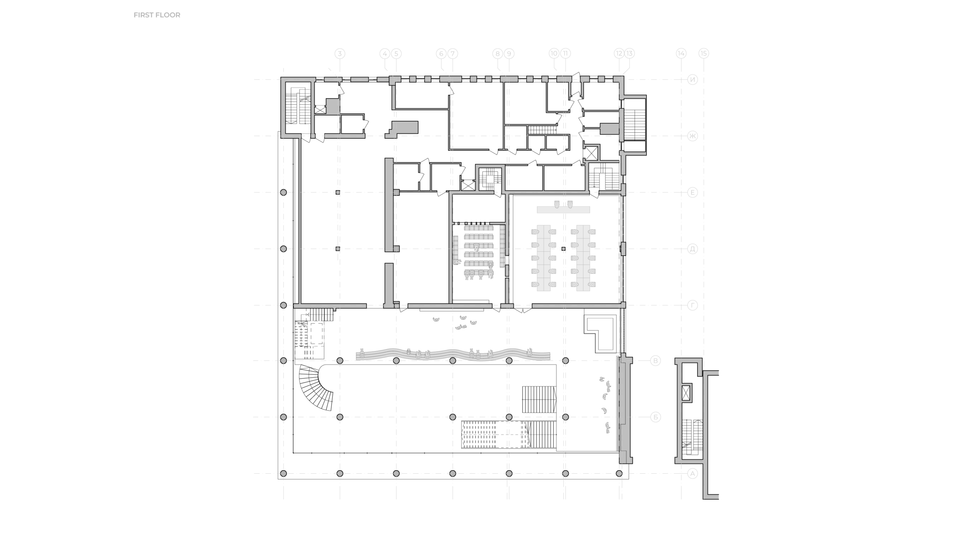
First floor
This transitional space between the entrance and the main hall is envisioned as an exhibition and relaxation area. The proposed lounge encourages informal conversations between screenings. A digital panel with film posters, festival programs, and a schedule of film screenings will serve as the key feature, drawing attention and allowing for quick and easy content updates.
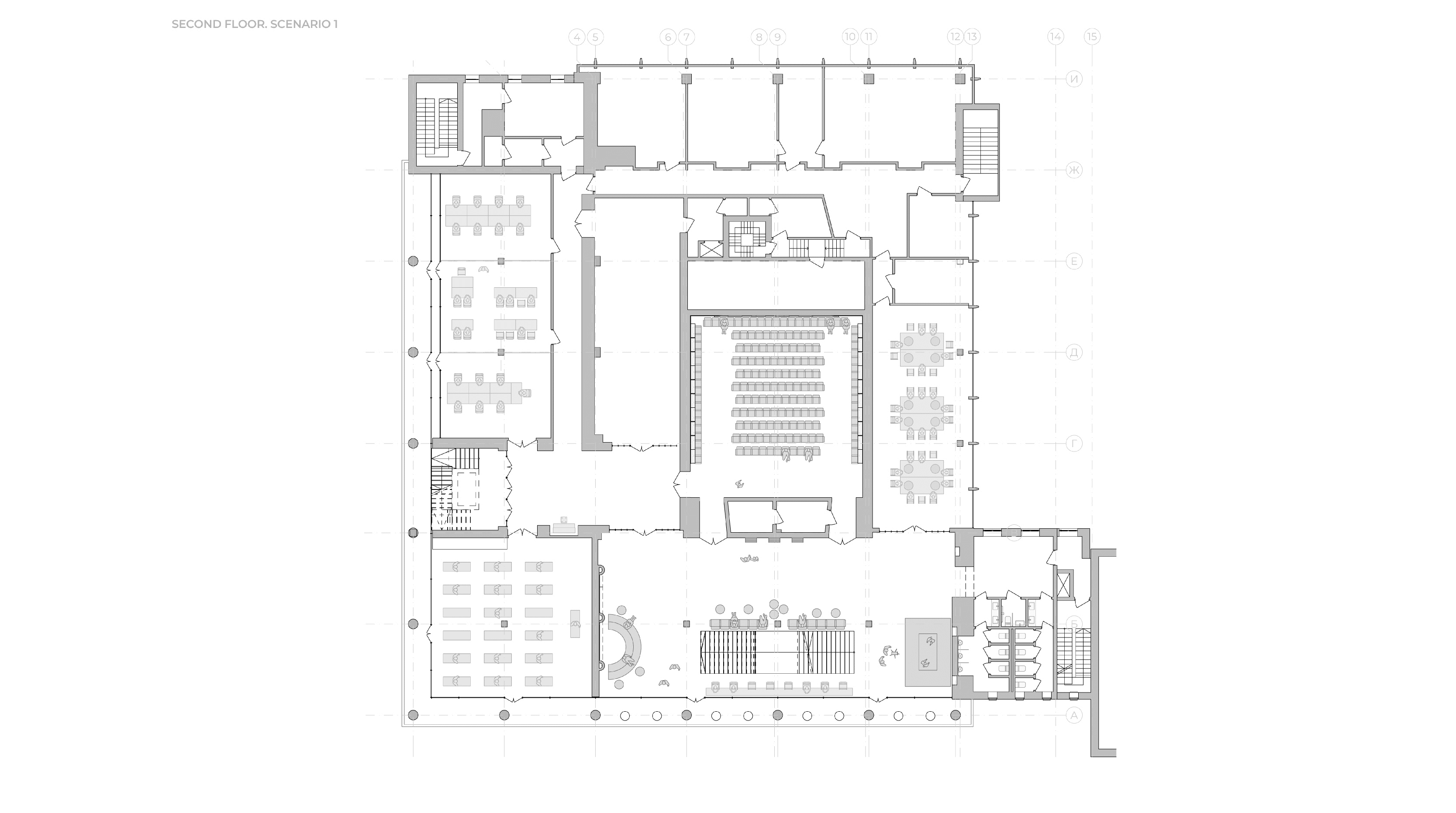
Second floor
Each hall is named after a color, but some interiors don’t currently reflect their names. We suggest harmonizing the aesthetic by integrating the corresponding colors into the décor.
Based on research on typical design elements, we propose configuring tables that can serve exhibition purposes. If made from translucent materials, these pieces add spatial presence without overwhelming the interior. We also propose adding table tennis tables to the second-floor lobby. The terrace running along the façade will become usable once the single-pane glazing is replaced with double-glazed windows.
Third floor
The third floor’s main feature is the largest red cinema hall and its adjoining lobby. We propose decorating these zones using a blend of color elements drawn from other halls to create visual continuity. The floor’s key visual centrepiece is an art wall composed of panels crafted by the 1970s masters of the Experimental Art Ceramics Workshop – artists, craftsmen, chemical technologists, and architects.
We propose converting the local library into a popular bookstore-café format favored by Kyiv residents. Additionally, at the client’s request, the space will include a filming area for Karpenko-Kary University students and a coworking zone. This area will support learning cinematography techniques, including shooting, framing, and lighting. We suggest using modular furniture, which will allow flexible configurations tailored to various needs.
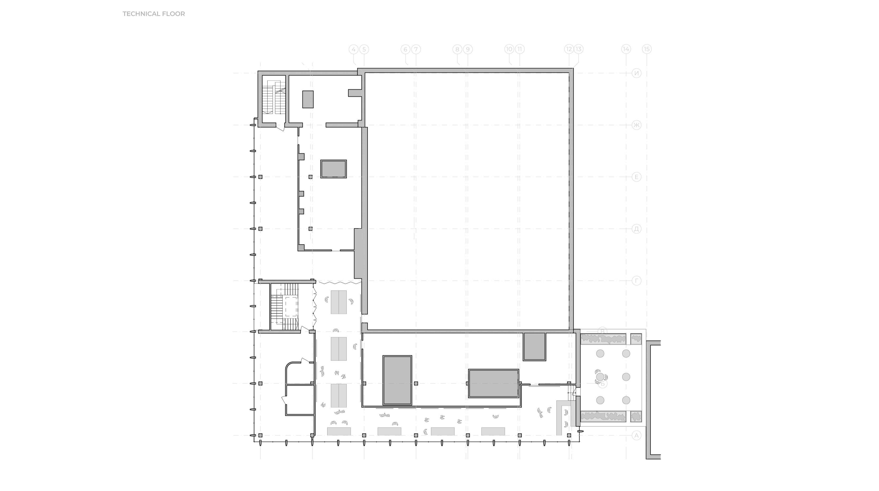
Technical floor
The plan includes converting the technical space on the top floor into a bright, spacious exhibition hall with ample natural light. Utility infrastructure will be enclosed and soundproofed to ensure visitor comfort.
Bathrooms
Bathroom renovations are developed with respect to the original materials: granite flooring or flooring made from broken tile fragments and walls clad with natural stone tiles or wooden panels. Each floor will include accessible bathrooms for people with reduced mobility.
OUTDOOR
The façade requires thorough cleaning and restoration of its original architectural details. At the second-floor level, a continuous bas-relief wraps the building; our team proposes restoring it as a signature visual element. We designated alternative poster locations on ground-floor windows to protect the bas-relief from advertisements and banners. To reduce visual clutter, air conditioning units can be relocated from the façade to the roof.
The clients would like the roof to accommodate a stage for summer concerts and discussions. Also, there's room for solar panels to be placed.
Landscaping, including greenery and decorative features, can highlight the cultural landmark’s architectural qualities. Terraces and balconies also require additional planting and design enhancements.
It is a genuine honor for our bureau to work on this landmark. As Kyiv residents and members of the creative community, we eagerly anticipate the building’s revitalization to be financed. Bringing this project to life will unlock the vast potential of Budynok Kino and reaffirm its rightful place in the city’s cultural landscape.
TEAM
Instagram Facebook
客服
消息
收藏
下载
最近




































