查看完整案例

收藏

下载

翻译
VLASNE MISTO SALES OFFICE
______________________________
Architects: Kateryna Virovtseva / Andrii Bondarenko / Karina Filiak Project year: 2023 Location: Kyiv region Status: Done
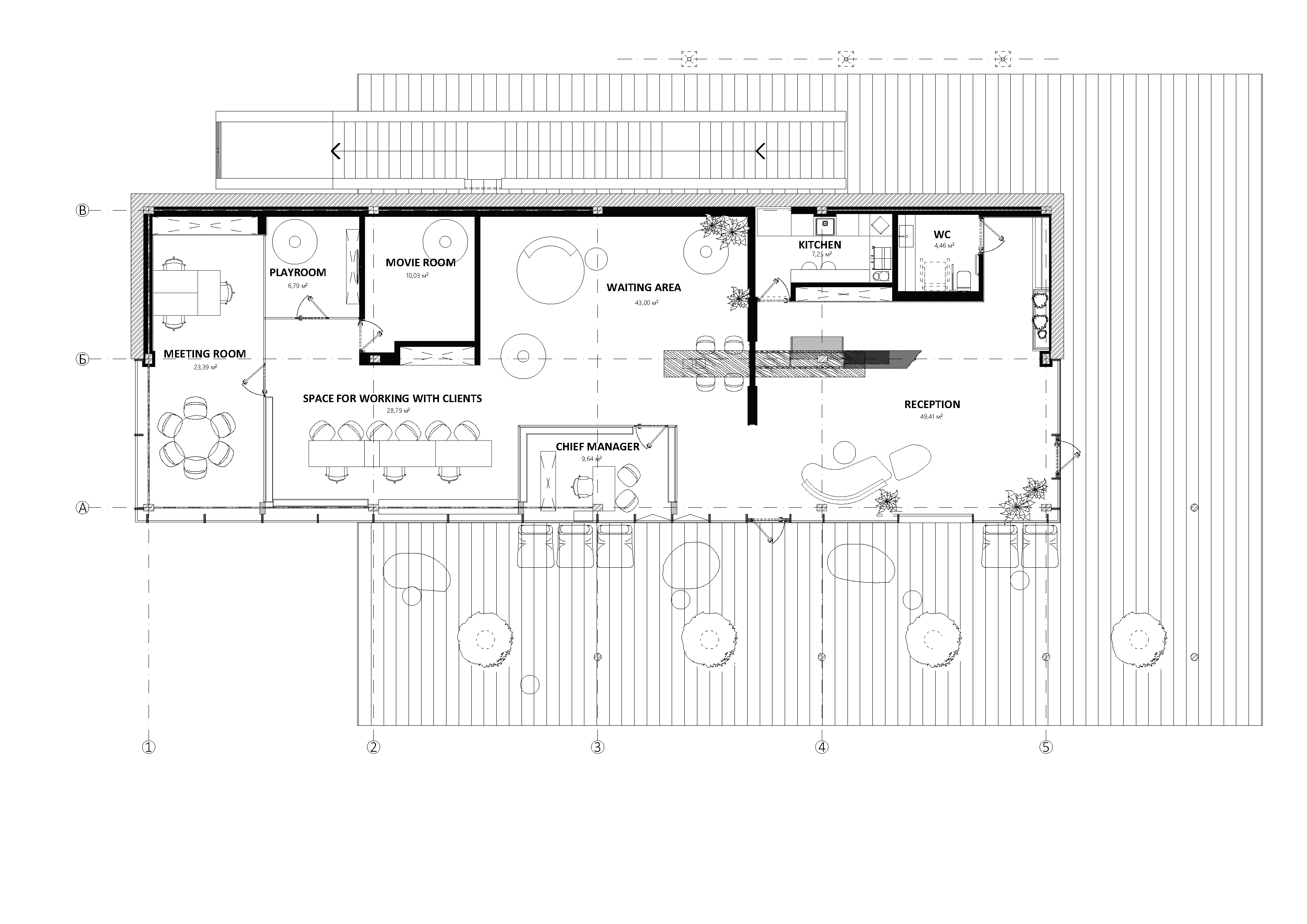
Project area: 183 sq. m
Photo Credits: Andrey Bezuglov
Photographer’s Website: Bezuglov.ua
The Sales Office for Vlasne Misto serves as the first physical encounter with what will become the first autonomous city in Ukraine — a 600-hectare urban community designed for 47,000 residents. The project aims to immerse visitors in the city’s philosophy from the moment they arrive.
Transparency and openness defined the spatial concept. Nearly all internal partitions are glazed, creating visual continuity and allowing natural light to flow freely. This openness also provides a practical benefit: during meetings, parents can see into the children’s room, ensuring peace of mind. A spacious terrace extends the experience outdoors, offering views of the surrounding nature.
DESIGN
Inside, the reception becomes a focal point, built around a massive sandstone block manually shaped on site. Due to its weight, a special steel subframe was installed before the glazing. The countertop is crafted from solid walnut, finished in warm tones. Walls combine veneered panels with Cleaf melamine boards, concealing generous storage behind handle-free doors to achieve clean, uninterrupted lines.
The restroom continues the architectural minimalism with white Cleaf panels, limestone accents, and a full-height mirror, amplifying light and space. Throughout the interior, large floor-to-ceiling windows establish a direct connection with the surrounding landscape, ensuring that nature remains an integral part of the visitor experience.
INTERACTIVE ROOM
We aimed to create a space that immerses you in the atmosphere and concept of the future city. A place where you can experience the project even before its implementation.
Features:• Projection systems display images on three walls, merging into a single panoramic picture, creating an effect of presence and full immersion.• The interior is designed in a minimalist style, helping to focus on the image and overall atmosphere.• Soft poufs, resembling donuts, were created in close collaboration with furniture designers. Their shape is designed to provide maximum comfort and support. Thanks to their roundness, they add lightness to the space and perfectly complement the overall concept of the room.
This is a space where the future becomes reality.
The facade is clad in slate, while the structural steel frame remains exposed, celebrating the building’s construction. The terrace is finished with untreated thermo-wood decking, left to naturally age over time.
客服
消息
收藏
下载
最近



























