查看完整案例

收藏

下载

翻译
CALM HOUSE.
Architecture / Interior design :SVOYA studio
Location: Dnipro, Ukraine
Area: 360 m²
Completion: 2022–2025
Decor: deday.
Photo credits:Andrey Avdeenko.
A restrained architectural volume delicately embedded within a pine forest, where architecture becomes a mediator between landscape and everyday life. Set among tall pines on a site with a pronounced yet gentle topography, Calm House explores the idea of living in close dialogue with nature while maintaining a clear architectural identity. The project is conceived not as an object placed in the forest, but as a spatial framework that allows the landscape to remain the dominant element. Стриманий архітектурний об’єм, делікатно інтегрований у сосновий ліс, де архітектура стає посередником між ландшафтом і повсякденним життям. Calm House розташований серед високих сосен на ділянці з м’яким, але виразним перепадом рельєфу та досліджує ідею життя у тісному діалозі з природою, зберігаючи водночас чітку архітектурну ідентичність. Проєкт задуманий не як об’єкт, розміщений у лісі, а як просторовий каркас, у якому ландшафт залишається домінуючим елементом.
The site is located within a dense pine forest, where mature trees define both visual boundaries and microclimate. From the outset, the client’s primary request was to preserve the natural character of the plot and minimize intervention in the existing ecosystem. The house was designed as a permanent residence for a family seeking privacy, tranquility, and a strong connection to nature, without resorting to a traditional or rustic architectural language. Key constraints included uneven terrain with an elevation difference of approximately 4 meters, the presence of protected trees, and the need to reduce visual impact on neighboring plots. In response, the architects developed a low, horizontally oriented composition consisting of several interconnected volumes. The building is partially elevated above the ground, allowing the natural topography and forest floor to flow beneath it while minimizing physical impact on the site. This strategy reinforces the perception of the house as a lightweight structure carefully resting within the forest.
Ділянка знаходиться у щільному сосновому масиві, де зрілі дерева формують як візуальні межі, так і мікроклімат. Початковим запитом клієнта було максимальне збереження природного характеру місця та мінімальне втручання в існуючу екосистему. Будинок планувався як постійне житло для родини, що прагнула приватності, тиші та глибокого зв’язку з природою без використання традиційної або «лісової» архітектурної естетики. Серед ключових обмежень — нерівний рельєф із перепадом близько 4 метрів, наявність захищених дерев та потреба зменшити візуальний вплив на сусідні ділянки. У відповідь на ці умови архітектори сформували низьку, горизонтально орієнтовану композицію з кількох взаємопов’язаних об’ємів. Будівлю частково піднято над землею, що дозволяє природному рельєфу та лісовому ґрунту вільно проходити під нею, зменшуючи фізичне втручання в ділянку. Таке рішення підсилює відчуття легкості конструкції, яка обережно «лежить» у лісі.
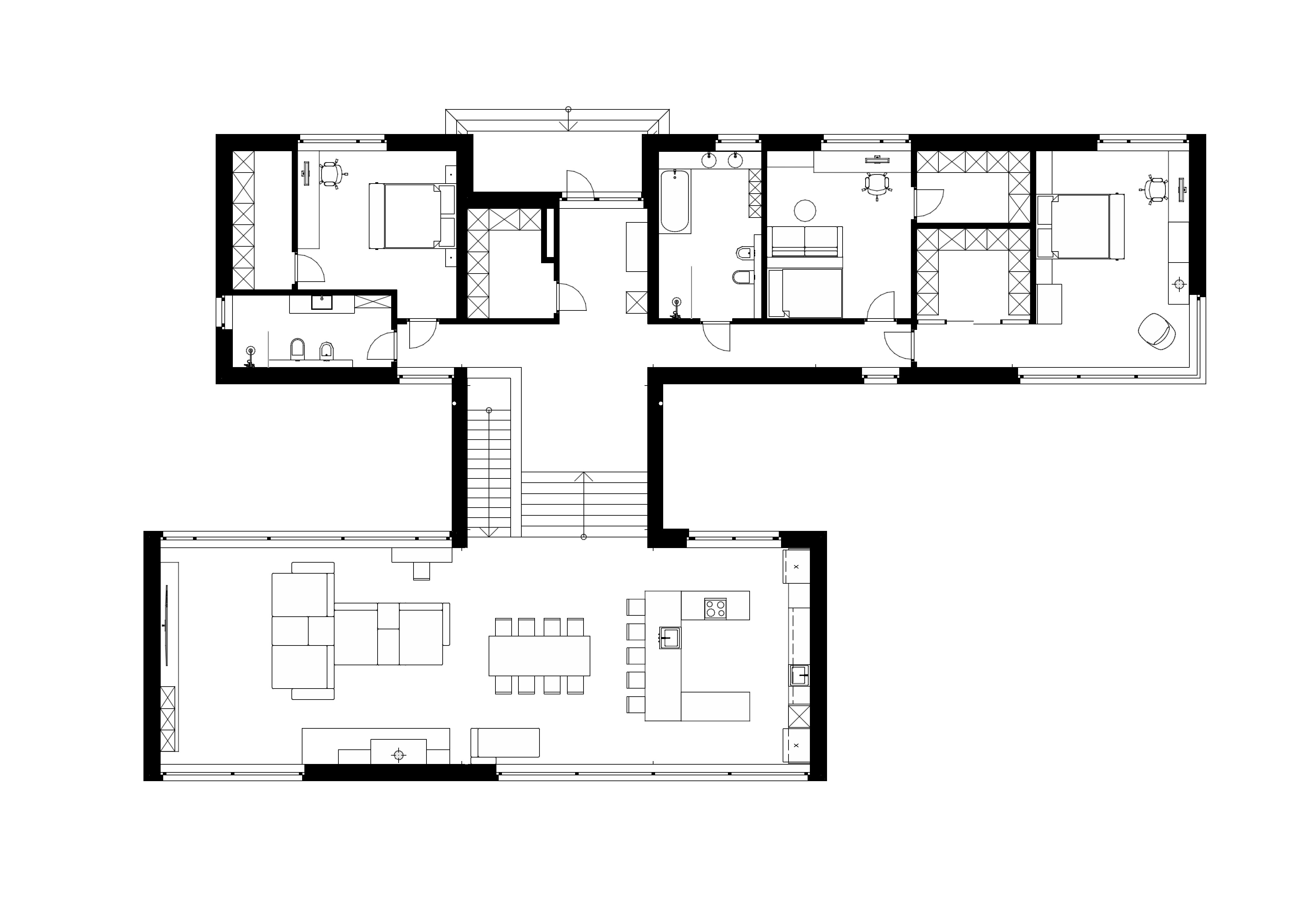
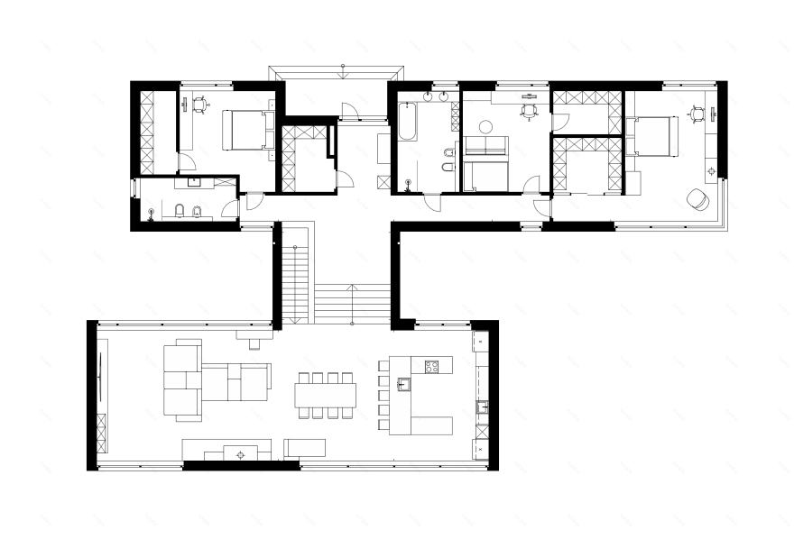
The spatial organization is based on clear functional zoning. Public areas — the kitchen, dining, and living spaces — are combined into a single open interior that visually extends into the forest through large-format glazing. Private rooms are located within more secluded volumes, ensuring intimacy and acoustic comfort. Circulation is deliberately minimized, allowing spaces to flow seamlessly from one zone to another. Material choices play a key role in anchoring the architecture to its context. The exterior combines dark mineral surfaces with vertical wooden cladding, echoing the texture and rhythm of the surrounding pine trunks. Over time, the wood is intended to weather naturally, further integrating the building into its landscape. Inside, a restrained palette of wooden ceilings, muted wall finishes, and soft textiles creates a calm and tactile atmosphere.
Beyond spatial and material decisions, the project was conceived from the outset as an autonomous living environment. The architecture establishes conditions for an independent and self-sufficient way of life, reducing reliance on external context and infrastructure. Autonomy is understood here as part of the project’s broader philosophy — a pursuit of calmness, resilience, and inner balance.
Просторова організація базується на чіткому функціональному зонуванні. Громадські зони — кухня, їдальня та вітальня — об’єднані в єдиний відкритий простір, який візуально продовжується у ліс завдяки панорамному склінню. Приватні кімнати розташовані в більш ізольованих об’ємах, забезпечуючи інтимність та акустичний комфорт. Комунікаційні простори зведені до мінімуму, що дозволяє приміщенням плавно перетікати одне в одне. Матеріали відіграють ключову роль у зв’язку будівлі з контекстом. Фасади поєднують темні мінеральні поверхні з вертикальним дерев’яним облицюванням, ритм якого перегукується зі стовбурами сосен. Дерево запроєктоване з урахуванням природного старіння, що з часом ще більше інтегрує будинок у ландшафт. В інтер’єрах використано стриману палітру: дерев’яні стелі, нейтральні стіни та м’які текстури формують спокійну, тактильну атмосферу.
Окрім просторових і матеріальних рішень, проєкт із самого початку замислювався як автономне житлове середовище. Архітектура будинку формує умови для незалежного та самодостатнього життя, зменшуючи залежність від зовнішнього контексту й інфраструктури. Автономність тут є складовою загальної філософії проєкту — прагнення до спокою, стійкості та внутрішньої рівноваги.
This approach extends to everyday life as well. A dedicated garden on the site introduces a seasonal rhythm of interaction with nature, reinforcing the idea of daily self-sustained living. In this sense, Calm House functions as a cohesive system where architecture, landscape, and lifestyle are closely intertwined, free from unnecessary external dependencies. Special attention was given to the user experience across different times of day and seasons. Floor-to-ceiling windows frame selected views of the forest, turning trees into living interior elements. Natural light filters through the pine canopy, creating constantly shifting patterns of light and shadow. Artificial lighting remains understated, emphasizing warmth, depth, and spatial comfort. Rather than asserting visual dominance, Calm House contributes to its environment through restraint and precision. It presents an approach to contemporary residential architecture where comfort, sustainability, and emotional well-being are achieved through balance rather than excess, offering a quiet and lasting presence within the forest landscape.
Цей підхід поширюється й на спосіб життя мешканців. Окремий сад на ділянці формує сезонний ритм взаємодії з природою, доповнюючи ідею щоденного зв’язку з ландшафтом. У такому форматі Calm House постає як цілісна система, де архітектура, простір і природа взаємодіють без посередництва зовнішніх залежностей. Особливу увагу приділено користувацькому досвіду в різні пори дня та року. Великі вікна кадрують фрагменти лісу, перетворюючи дерева на «живі» елементи інтер’єру. Природне світло фільтрується крізь крони, створюючи постійно мінливу гру тіней. Штучне освітлення залишається мінімалістичним, підкреслюючи глибину простору та теплоту матеріалів. Calm House не прагне домінувати над середовищем. Натомість він пропонує модель сучасного житла, де комфорт, сталість та емоційна рівновага досягаються через стриманість і точність архітектурних рішень. Проєкт демонструє, як архітектура може тихо доповнювати ландшафт, формуючи нову якість повсякденного життя.
SVOYA STUDIO INSTAGRAM
Dnipro , Ukraine 2025
客服
消息
收藏
下载
最近































