查看完整案例

收藏

下载

翻译
VILLA W
Architects: SHOVK | Ruslan Lytvynenko, Anton Verhun
Project year: 2024
Location: Bali
Area: 550 sq. m
Publications
designboom | Architizer | METALOCUS
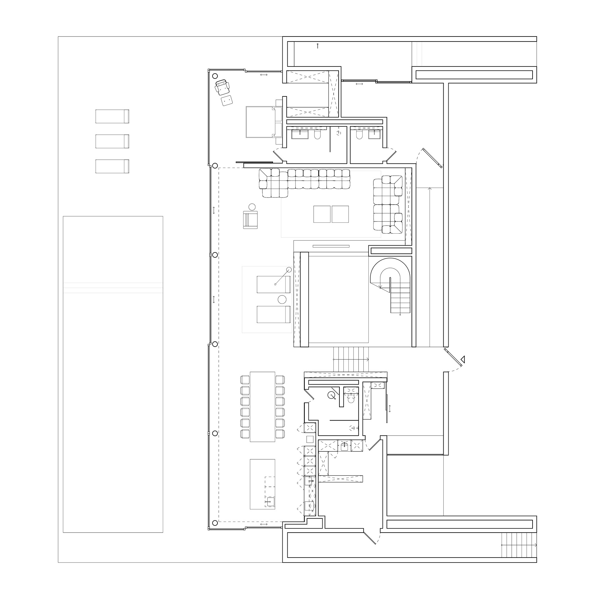
Villa W is a modern minimalist villa in the mountains, contrasting with its surroundings becomes a unique visual dominant that captures people’s eyes. The volume of the house consists of three blocks that create an unforgettable architectural character.
The first one is a marble-topped stylobate with a terrace and infinity pool overhanging the cliffs, lush Balinese greenery and wild mountain landscape.
The second is the ground floor, which includes a daytime common area, a gym, and technical premises.
The third is a curved, overhanging first floor with night zone rooms, contrasting with other, stricter forms.
Entering the house through a hidden entrance door in a completely blank facade with no window, passing the spacious but intimate entrance hall, we find ourselves in front of stunning views of the mountains and the ocean, opening through the huge panoramic glazing of the kitchen and living room.
To the right of the entrance to the house is a mini-gym with access to a narrow, secluded courtyard with a swimming pool and outdoor shower.
In addition to the stunning views of the island’s landscapes, which open up from literally every corner of the house thanks to the panoramic glazing of the ground and first floors, there are several other places inside the house that make it clear that the house and nature are intertwined, becoming one.
客服
消息
收藏
下载
最近














