查看完整案例

收藏

下载
-Project name | 项目地址- 湖州·阅山府
-Spatial properties | 空间属性- 平层
-Area | 项目面积- 户型面积120㎡
由胡桃色与米白色搭配的中古风让空间彰显沉稳基调,大面积的木质的运用为空间带来了温暖与生机,拉近了人与自然的距离。而黑色皮沙发与玻璃金属茶几的融入则增添了空间的时尚感与精致感,体现了现代设计的简约美学。
The living room is dominated by light tones, such as white sofas, walls, and bookshelves, which make the entire space appear brighter and more spacious.
结合飘窗台,由岛台与餐桌结合构成的餐厅区,与客厅休闲区相融合,又彼此融合,满足了不同的生活需求。沙发与餐桌依窗而落,阳光透过窗户形成光影,为空间增添动态的美感与温暖的氛围。
The living room is dominated by light tones, such as white sofas, walls, and bookshelves, which make the entire space appear brighter and more spacious.
主卧室没有过多繁杂的装饰,整个卧室以米白色和大地色为主,形成了温暖、中性且富有质感的色彩氛围,让人感到放松和舒适。一大面落地窗将自然光线收进房间里,更显温馨与舒适。
The living room is dominated by light tones, such as white sofas, walls, and bookshelves, which make the entire space appear brighter and more spacious.
厨房采用开放式布局,以中岛台为核心,形成高效的操作动线。宝石绿的地柜与原木吊柜形成反差,既增加了空间的层次感,又带来了一丝复古的韵味。
The living room is dominated by light tones, such as white sofas, walls, and bookshelves, which make the entire space appear brighter and more spacious.
两个小孩房色彩鲜明,以柔和的白色为主,天空蓝为点缀色。设计师以简洁的设计阐述着空间的活力与舒适。
The living room is dominated by light tones, such as white sofas, walls, and bookshelves, which make the entire space appear brighter and more spacious.
这套案例整体布局紧凑合理,注重功能性与美观性的结合,展现出宁静、舒适的居住环境,同时利用局部跳色来调动空间气氛,增加生活的乐趣
The living room is dominated by light tones, such as white sofas, walls, and bookshelves, which make the entire space appear brighter and more spacious.
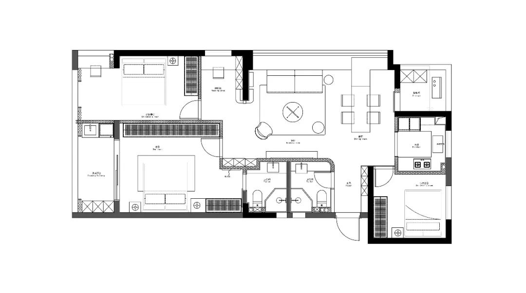
○ Animation 平面设计图 ○
【龙庭设计·新案】湖上居静奢风,以低调色调晕染空间情绪
【龙庭设计·新案】湖畔春晓极简自然,极简线条勾勒中古灵魂
【龙庭设计·新案】云筑意式轻奢,物质与精神达成微妙平衡
【龙庭设计·新案】水岸蓝庭法式自然,当法式的慵懒优雅遇见木质的温润呼吸
【龙庭设计·新案】春辰里296㎡现代轻奢,金属与大理石低语
【龙庭设计·新案】金茂悦现代意式,石材的冷冽和木质的温润
【龙庭设计·新案】龙湖景璘府白色极简,在纯粹轮廓里寻找生活的诗意
【龙庭设计·新案】凤樾府极简原木,极简不是空荡是给原木让出舞台
【龙庭设计·新案】湖州府现代中古,不张扬的棱角盛放木质温醇
【龙庭设计·新案】大华锦澜府现代风,在美学与实用间精准平衡
【龙庭设计·新案】大华锦澜府自然主义风,光与自然的家
【龙庭设计·新案】春辰里139㎡法式奶油,晨光漫过杏仁霜的暖调
【龙庭设计·新案】春辰里212㎡现代意式,墨色勾勒轮廓
【龙庭设计·新案】晴翠府中古风情,诠释温润的生活法则
【龙庭设计·新案】天悦府中古奶油,复古与温润共生
【龙庭设计·新案】晴翠府意式摩登,隐奢藏于几何结构中
【龙庭设计·新案】春辰里现代意式,现代语境下的优雅诗篇
【龙庭设计·新案】嘉境府现代原木,暖调抚平棱角治愈锋芒
【龙庭设计·新案】首创现代极简,以直线丈量世界
【龙庭设计·新案】天澜湾黑白法式,当香颂停驻于胶片边缘
【龙庭设计·新案】华萃庭院复古美式,褶皱里浮沉着世纪铜绿
【龙庭设计·新案】金色地中海排屋改造,晨光漫入法式石膏线谱
【龙庭设计·新案】长东府重新诠释历史沉淀与当代美学的诉求
【龙庭设计·新案】金茂悦海派轻奢,鎏金是永不妥协的光芒
【龙庭设计·新案】龙湖景璘府,低饱和肌理勾勒理性弧线
【龙庭设计·新案】光明御品,当意式灵魂披上极简铠甲
【龙庭设计·新案】云启里96㎡色彩刺穿极简的克制
【龙庭设计·新案】湖畔春晓 现代混搭,粗犷与温润再次和解
【龙庭设计·新案】太湖印480㎡,白与木的呼吸
【龙庭设计·新案】嘉境府104㎡,中古法式折叠美学
【龙庭设计·新案】玖熙湾364㎡不被定义的风格
【龙庭设计·新案】莲园190㎡现代意式美宅,演绎高级感
【龙庭设计】绿城御园———温茶淡墨
客服
消息
收藏
下载
最近



























































