查看完整案例

收藏

下载
设计囊括多元场景体验:魔方厨房,DIY手工区,儿童绘画区,儿童阅读区,儿童玩乐区,以及四点半学堂。就像是藏匿于茂密森林里的童话王国,充满着“阳光,烂漫,活力以及想象力”,让孩童更天马行空,大人也能够重新拾回童真。玩心未泯,不改童趣。
空间灵感来源“乐高积木”作为统一的品牌导视标志,通过更大尺寸的积木展示,高饱和度的色彩搭配营造出充满活力的空间氛围,对于天性活泼的儿童来说,这样的设计从入就能激发儿童对空间的探索欲望。
棠宝以不同的角色出现,灵动丰富了空间气质,让主题成为游玩社交的场景载体,带领人们探索关于人文、城市生活的丰富多彩。
趣味装置将绘本造型柱体与玩具展示台结合,墙面涂鸦呼应卡通元素,让装饰同时成为儿童互动、探索的载体。
<左右滑动查看更多>
大面积落地玻璃窗将四季的光影请进室内,让空间在明暗交汇间呈现出一种透明的呼吸感。午后的暖阳斜斜洒下,在橙白相间的跑道上跳跃,仿佛大自然亲手绘制的起跑线。每一次奔跑,都是在与日光共舞;每一次回眸,都融进了一幅流动的自然画作。
鲜亮的橙色动线贯穿始终,灵动的几何线条在地面流转,指引着小小冒险家向更深处探索。这不仅是体能的释放,更是思维的破界。
独属金茂的棠宝IP体系,将成都本土的大熊猫元素艺术化,让每一处设计都带有温润的在地关怀。棠宝与熊猫玩耍的挂画,则用一种成都式的幽默感,消解了竞技的紧绷,让运动时刻也充满艺术的温度。
食物“共享”,空间“共享”,将小家的功能延伸到社区里面,营造新的邻里中心,这里不仅是美食体验场所,更是理想的社交聚场。庆典之声大喇叭它不仅是一个视觉焦点,也让每个重要时刻都充满仪式感与感染力。
<左右滑动查看更多>
大龄活动区域以自然教育为主题,通过多个功能区的有机组合,交织出安全、有趣且富有教育意义的儿童天地。将不同的功能简单分区,以满足不同年龄段的儿童玩乐、世界认知、攀爬翻越、平衡网兜球等互动,以生动立体、丰富有趣的体验场景,让业主亲子和家族亲情在此亲密交流,共享美好生活。
空间设计为了进一步呼应了设计主题,以自然色系视觉主调创造艺术化的空间体验,链接起人与自然联系的桥梁。而棠宝作为陪伴小天使,守护在孩子们身边,更加安心。
阅读中心打造亲子友好型阅读艺术综合空间,集沉浸阅读、互动创作、休闲观影功能于一体,适配儿童自主阅读与亲子文化陪伴场景,营造安静且充满温馨感的文化休闲场域。
年轻态的社交空间,竞技台球与共享阅读并置。空间色彩的温润搭配生命绿色的和谐贴合自然,稍带表现主义表达对于未来生活的预想:集合多元化场景,生活会归于生活,将步调慢下来,体验生活多元趣味。
穿过童趣,步入下午茶聚会区域。空气仿佛被蜜糖色的暮光浸染,每一寸空间都透着高级定制的烟火气。多巴胺橙与光影的协奏,大面积的活力橙墙面奠定了空间摩登且热烈的基调。
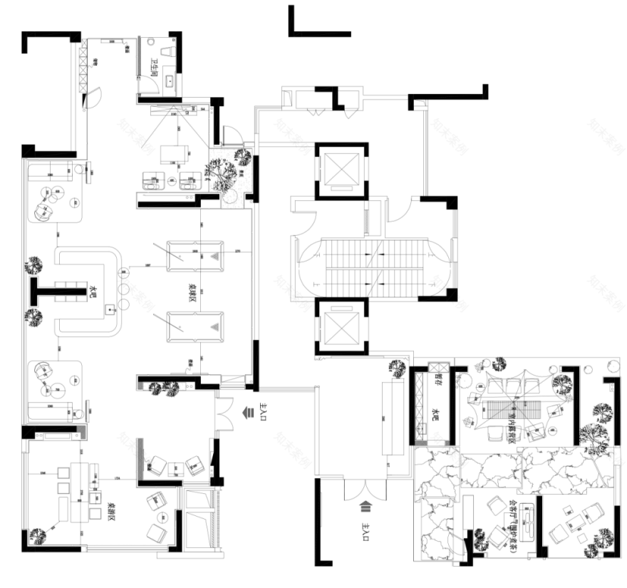
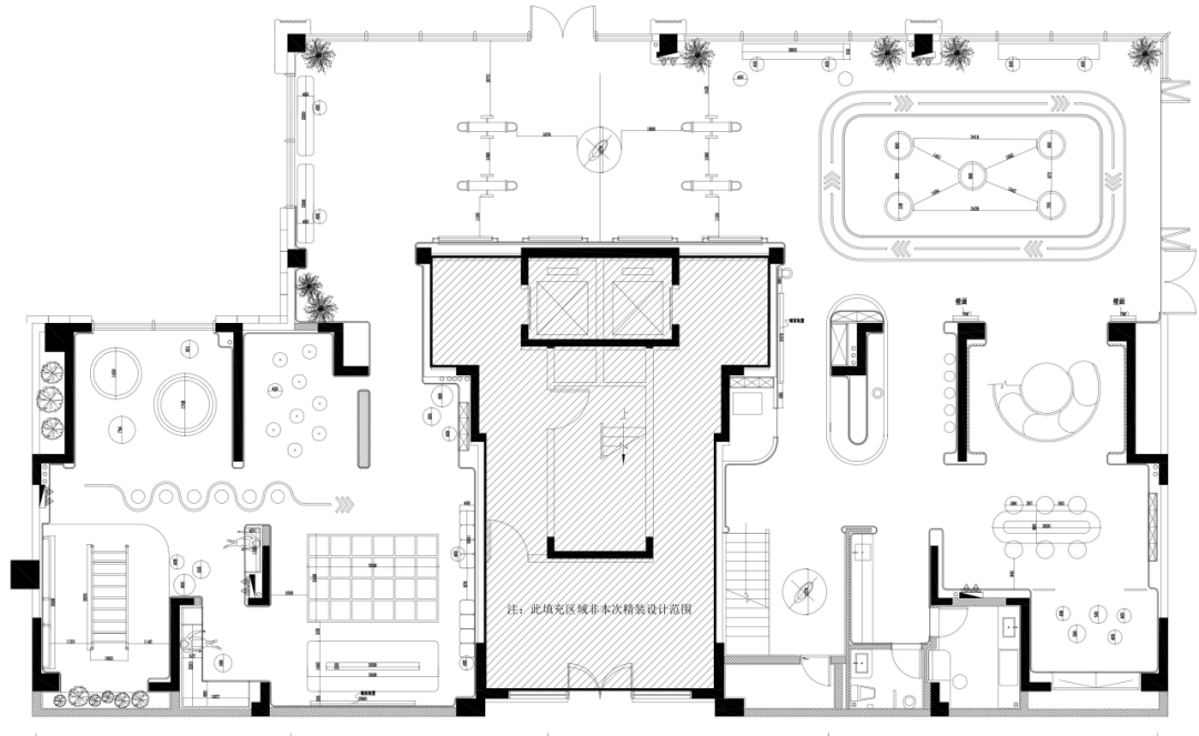
<左右滑动查看平面布置图>
青年社交、儿童成长、长者安静、运动释放……不同年龄段的生活节奏,本质上是不同频率的空间需求。我们将这些需求拆解为模块化的“功能岛屿”,再以Puzzle(拼图)逻辑进行拼接——空间既独立表达,又彼此关联,形成一个完整而可持续生长的社区系统。
儿童以好奇的眼光体验世界,所见、所触、所感的一切构成了他们了解这个世界的途径,柔软的充气垫可以更安全的呵护儿童多样化的行为活动,通过“兜兜球”的探索玩耍可以激发儿童的能动性,变化流动的异度空间,能使孩子突破边际,释放天性。
积木游戏区通过环保塑料积木的堆叠、拼搭,激发空间想象力、结构思维和解决问题的能力。圆润的倒角处理消融了建筑的棱角,给予小小读者最周全的温润呵护。
<左右滑动查看更多>
儿童绘本阅读区专为0-6岁幼童设计,以图画绘本书为核心,培养阅读兴趣、视觉感知与语言能力。一幅《竹境童话 · 奔梦之马》非遗竹编挂画,通过绘画、图形与当代视觉语言的再设计,将传统竹编纹理转译为符合儿童与家庭空间气质的艺术挂画系统。
大龄儿童活动模块,分别设置平衡适能区、综合活动区、臂力训练区、儿童平衡木等项目,同时还有承载趣味场景记忆的艺术装置,打造陪伴儿童不可或缺的成长乐园。
大龄学习模块服务于8岁以上学龄儿童,满足其对私密性、自主性和安静阅读环境的进阶需求。通过主题化书籍分类及主题氛围营造引导阅读兴趣,让孩子在喜爱的氛围中自然进入阅读状态。开放式的书柜布局,鼓励孩子自主取阅与归位,培养其秩序感与责任感。
<左右滑动查看更多>童梦餐厅为社区儿童提供举办小型生日会、节庆派对的特色场所,增强社区生活仪式感。糖果蛋糕造型的软包座椅、布料拼贴的绚丽椰子树,构成一个甜美、梦幻的童话场景,极具拍照打卡与氛围感染力。
好奇的棠宝、快乐的棠宝、温暖的棠宝、智慧的棠宝在空间一一出现,作为陪伴小天使,守护在孩子们身边,更加安心。
<左右滑动查看更多>我们期待孩子会在这里收获欢乐与启发,与空间能发生共鸣的互动,建立更深厚的情感连接。
多种社交形式的座椅组合,搭配绿色调的双边就坐沙发,以人与空间的共融为核心去营造全新的空间体验,将户外的盎然引入室内,尝试拨动社区客户与咖啡的关联,讲述人在使用空间的同时,与场景里的多重交流。
将荒野露营搬进室内,感受自然的诗意。帐篷与光影交织,都市里的“远方”触手可及。设计大量运用自然元素,营造出森林氛围,承载室内空间到室外场景的无痕过渡,开放式空间布局将户外景观巧妙引入,树影葱茏,花香袭人,让好心情也晒晒太阳。
<左右滑动查看更多>
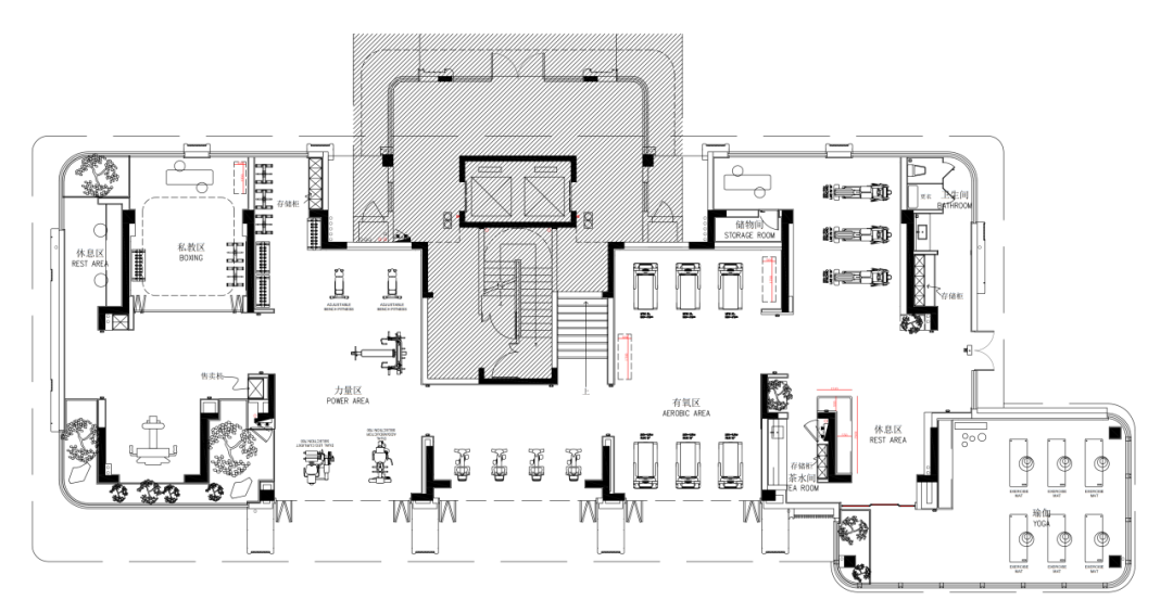
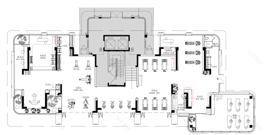
运动是通往自律的必经之路,我们以活力、健康、体验的关键词进行导入,设置瑜伽活动区域,健身器械区域与篮球活力场,让酣畅淋漓的运动快感打破生活的空洞与沉闷。
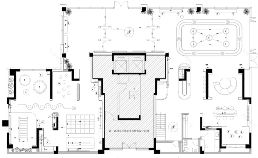
长者们有了专属“朋友圈”,或三五知己围坐一旁,伴随着氤氲茶香,慢酌生活点滴真意,或摆上一盘棋局,对弈不计输赢,让夕阳时光同样充满生机活力。这里不再是冰冷的围合,“老友记”式的温情,在交流与休憩的泛会所中重拾。
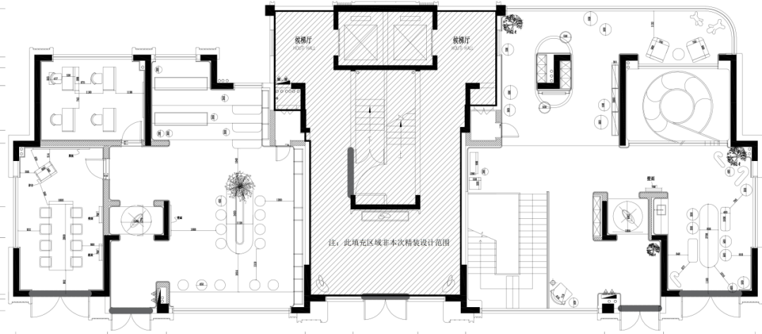
<左右滑动查看平面布置图>
项目全名:成都东城金茂晓棠二期/成都东城金茂锦棠架空层
项目地址:中国 四川
软装设计:元禾大千
设计时间:2025.07
完工时间:2025.12
空间面积:970/1700㎡
甲方单位:中国金茂成渝公司
摄影团队:冷風。
客服
消息
收藏
下载
最近



















































































































