查看完整案例

收藏

下载

翻译
2023年3月,INGROUP与 Aloha Surfhouse 携手合作打造的国内首家沉浸式冲浪体验馆,在上海静安MOHO盛大开业。设计旨在为人们创造一个置身于真实海滩冲浪的场景化氛围,用沉浸式体验感激活每个人的冲浪激情。
In March 2023, INGROUP collaborated with Aloha Surfhouse to launch the first immersive surfing experience hall in China at Jing'an MOHO in Shanghai. The design aims to create a scenographic atmosphere reminiscent of a real beach, using immersive experiences to ignite the surfing passion in everyone.
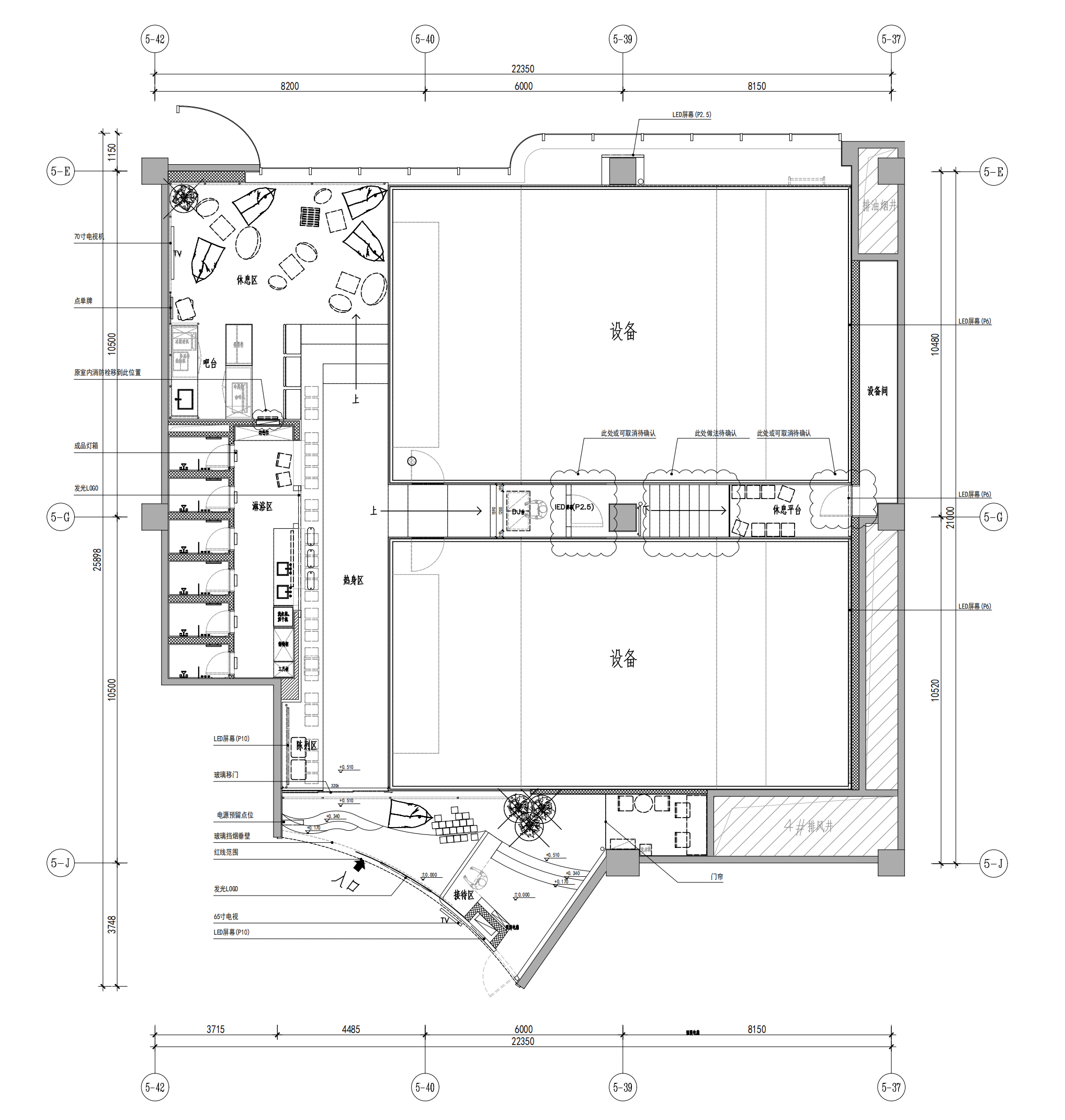
项目位于上海市静安区江宁路699号MOHO Mall三楼,共420平方米。冲浪永远是自由、解放和快乐的象征,带有强烈的非城市属性,正如品牌用夏威夷语的“你好”作为名字和logo的动机,INGROUP将品牌商业价值与消费者内在需求相结合,用空间带给顾客一段逃离都市,去往海滩享受冲浪的美妙旅程。夏天的海滩无疑是最无忧无虑的地方。
The project is located on the third floor of MOHO Mall at 699 Jiangning Road, Jing'an District, Shanghai, covering an area of 420 square meters. Surfing is always a symbol of freedom, liberation, and joy, with a strong non-urban character. As the brand uses the Hawaiian greeting "Aloha" as its name and logo, INGROUP combines the commercial value of the brand with the intrinsic needs of consumers. The space is designed to offer customers a wonderful journey away from the city to enjoy surfing at the beach. Undoubtedly, the beach in summer is the most carefree place.
“商场”是都市景观的代表,INGROUP将入口设置为旅程的起点——一辆蓝色大巴停靠在沙滩旁边,将人们从商场环境带离,去往无忧无虑的夏威夷海滩。半开放的入口形态让其呈现一种welcoming的状态,并充分展示内部冲浪的魅力。
"Malls" are a hallmark of urban landscapes. INGROUP has designed the entrance as the starting point of the journey—a blue bus parked beside the beach, transporting people from the mall setting to the carefree beaches of Hawaii. The semi-open entrance creates a welcoming state, showcasing the allure of indoor surfing.
INGROUP在内部空间运用了一系列户外材质和手法来打造“在海滩上”的沉浸式场景体验。顶部片状的动态灯光设计灵感来源于户外天光的变化,水洗石地面模拟沙滩的视觉感受,防腐木搭将淋浴区打造成一幢“海边小木屋”,让顾客仿佛置身夏威夷海滩。
INGROUP has utilized a range of outdoor materials and techniques within the interior space to create an "on-the-beach" immersive experience. The overhead dynamic lighting design is inspired by the changing daylight of the outdoors, while the washed stone flooring mimics the visual feel of a sandy beach. Anti-corrosive wood constructions transform the shower area into a "beachside cabin," making customers feel as though they are right on a Hawaiian beach.
白色防腐木搭建的平台,让休憩区域呈现出松弛和随性的姿态。冲浪元素的装饰使浪池以外的区域也依然被冲浪氛围包裹。在此等候和休憩的顾客可以用最放松的状态产生一些社交体验,或欣赏浪池里其他人的精彩表现。
Platforms constructed of white anti-corrosive wood give the rest area a relaxed and casual appearance. Decorative surfing elements ensure that even areas outside the wave pool remain enveloped in a surfing atmosphere. Customers waiting or resting here can engage in social interactions in a relaxed state, or enjoy watching the impressive performances of others in the wave pool.
浪池区作为空间的“中心舞台”,INGROUP在灯光上令其充分呈现冲浪的激情与魅力。顶部、背墙的动态灯光在水面折射,变化的灯光覆盖整个浪池,水的流动又让灯光叠加了另一种动感。我们将两个浪池中间设为“沙滩DJ台”,灯光、音乐和运动的身影在空间中相互补充,引爆全场的冲浪热情,使Aloha成为冲浪者们能畅快释放自我的场所。
The wave pool area serves as the "center stage" of the space, where INGROUP has effectively used lighting to showcase the passion and allure of surfing. Dynamic lighting from the ceiling and back wall reflects off the water, enveloping the entire wave pool in varying lights that add a dynamic quality with the water's flow. A "beach DJ booth" is set between the two wave pools, where the lighting, music, and the silhouettes of active surfers complement each other, igniting the entire area's surfing enthusiasm. This setup turns Aloha into a vibrant space where surfers can freely express themselves.
INGROUP设计在空间中置入一些冲浪元素的“小惊喜”,在细节等层面让空间更添活力与趣味性。
INGROUP has strategically placed "little surprises" of surfing elements throughout the space, adding an extra layer of vitality and playfulness in the details. This design approach enhances the overall dynamism and enjoyment of the environment, making each visit uniquely engaging.
Aloha Surfhouse不仅仅是一个冲浪馆,它更是一个冲浪文化和冲浪激情的聚集地。它为人们提供了一个远离都市、漫步海岸线的遐想,让人们在室内就能体验到真实冲浪的快乐。每一次的冲浪都是一次挑战和成长的旅程。INGROUP设计理念不仅满足了冲浪者对于安全、舒适和真实体验的诉求,更在每一个细节中展现了对冲浪文化的尊重和热爱,也为Aloha Surfhouse注入了活力和独特魅力。
Aloha Surfhouse is more than just a surf hall; it is a hub for surf culture and passion. It offers an escape from the urban environment and conjures images of strolling along the coastline, allowing people to experience the joy of real surfing indoors. Each surf session is a journey of challenge and growth. INGROUP's design philosophy not only meets surfers' needs for safety, comfort, and authentic experiences but also shows a deep respect and love for surf culture in every detail, infusing Aloha Surfhouse with vitality and unique charm.
项目信息
项目名称:Aloha Surfhouse 室内冲浪馆
项目业主:Aloha Surfhouse
项目地点:上海市静安区江宁路699号MOHO Mall潮奢购物中心三楼19号
设计时间:2021年9月
完工时间:2023年3月
项目规模:420平方米
空间设计:INGROUP
创意总监:Raven Wang
设计总监:林虹辰
设计团队:冯璐、袁潇杰、李友成
项目摄影:Colin Chen
Project Information:
Project Name: Aloha Surfhouse Indoor Surfing Hall
Project Owner: Aloha Surfhouse
Location: 19th Floor, MOHO Mall Trend Luxury Shopping Center, 699 Jiangning Road, Jing'an District, Shanghai
Design Date: September 2021
Completion Date: March 2023
Project Scale: 420 square meters
Space Design: INGROUP
Creative Director: Raven Wang
Design Director: Hongchen Lin
Design Team: Lu Feng, Xiaojie Yuan, Youcheng Li
Business Cooperation: 18117597046
Project Photography: Colin Chen
客服
消息
收藏
下载
最近















