查看完整案例

收藏

下载

翻译
Architects:T3 ARCHITECTS
Area:350m²
Year:2025
Photographs:Hirouyki Oki
Manufacturers:Bluescope,Dulux,Hafele,Maika,SECOIN,Toto
Lead Architects:Charles Gallavardin, Tereza Gallavardin
Category:Houses
Lead Team:Rafael Lira, Andre Zina
Design Team:Vinh Doan, Chinh Nguyen
General Contractor:Harmonie
Landscape Architecture:Interscene
Country:Vietnam
Text description provided by the architects. Located between the sea and a national park in Ke Ga, Vietnam, KeGa Villa is conceived as a climate-responsive weekend retreat organized around a central garden, where shared living spaces form the heart of the project while the family's privacy is carefully preserved.
Designed by T3 Architects for a large family and their guests, the villa responds to the tropical climate and the desire for a place that balances collective life with moments of retreat. Exposed to strong sea breezes, intense sun, and seasonal rains, the architecture is designed to remain open and breathable during occupation while capable of being protected when the house is unoccupied.
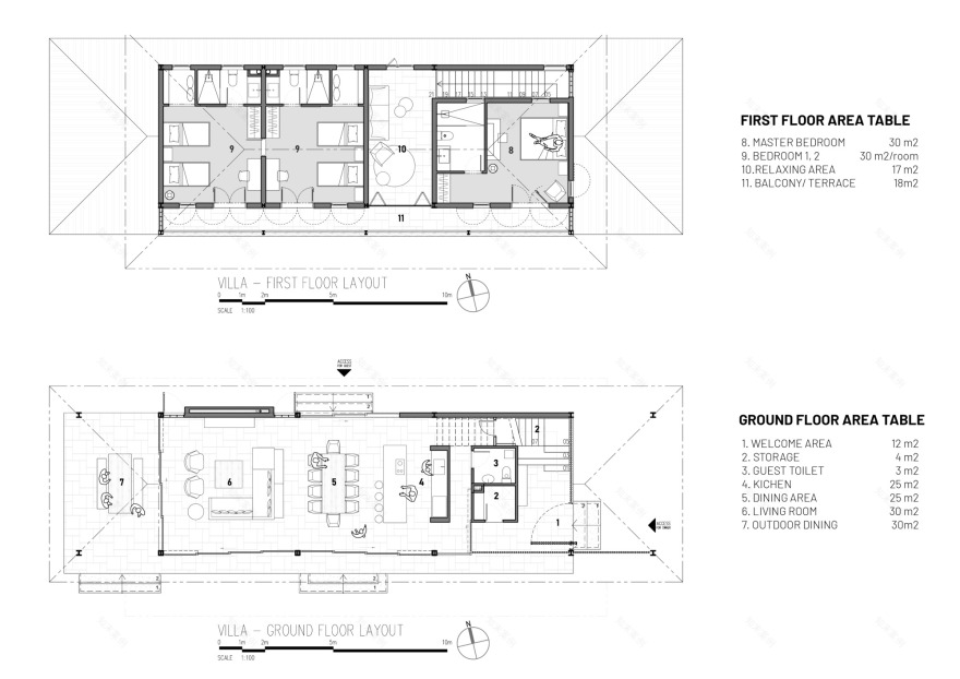
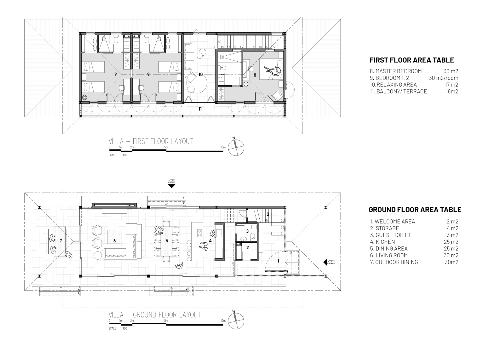
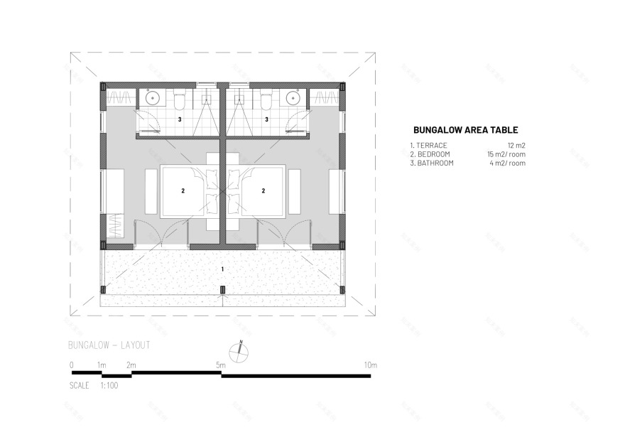
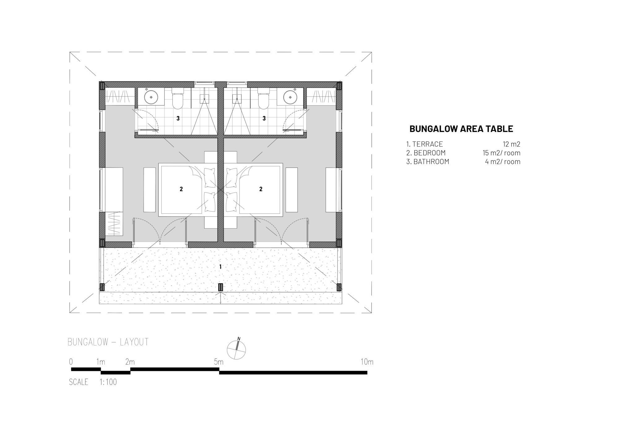
The project is composed of a two-story main villa accompanied by three independent bungalows distributed across the garden. The main house concentrates the collective functions of the residence, while the smaller volumes provide flexible accommodation for friends and extended family. Together, the buildings frame the central garden and swimming pool, creating the social heart of the retreat.
Within the main villa, the ground floor acts as an open platform connected directly to the landscape. Living, dining, and kitchen spaces extend toward the garden and pool, allowing daily life to unfold both indoors and outdoors. The upper level contains the family bedrooms, including two connected rooms for the children and a master suite, forming a quieter and more private domain elevated above the communal areas.
Climate responsiveness plays a central role in the design. Large sliding glass panels allow the living spaces to open completely, maximizing natural ventilation, daylight, and continuity between interior and exterior spaces. Cross-ventilation is reinforced through building orientation, generous openings, and ventilation bricks integrated into the façades, allowing sea breezes to move naturally through the house while filtering light and reducing heat gain. Bedrooms are protected by deep roof overhangs and shaded circulation corridors that act as climatic buffers, limiting solar exposure while maintaining views toward the surrounding landscape and the sea. Wooden louver doors provide additional control over sunlight, privacy, and airflow throughout the year.
Material choices reinforce the project's connection to place. Locally sourced stone, timber, and ventilation bricks were selected for their durability, thermal performance, and tactile quality, while generous roof overhangs protect the building from intense sun and heavy tropical rains. Through passive design strategies and a spatial organization centered on landscape and climate, KeGa Villa creates a relaxed coastal retreat where indoor and outdoor living merge.
Project gallery
客服
消息
收藏
下载
最近
































