查看完整案例

收藏

下载
项目名称:阿根廷Depart Colegiales公寓
位置:阿根廷
设计单位:Grupo Uno en Uno
图片数量:26张
在Colegiales最具战略意义的位置——Vidal街与Virrey Olaguer y Feliu街交汇的转角处,正对全新的铁路公园(Railway Park),被自然、生机与城市活力所环绕,DEPART由此诞生。
▼项目鸟瞰 © Gonzalo Viramonte
▼公寓鸟瞰 © Gonzalo Viramonte
这是一座与公园展开对话的建筑,在街道层面打造充满活力的商业基座,激活人行界面。向上延展时,体量逐渐消隐为船首般的造型,创造出尺度宏大的多样露台,鼓励人们在城市的“户外”空间中停留更久。
▼激活人行界面 © Gonzalo Viramonte
▼打造充满活力的商业基座 © Gonzalo Viramonte
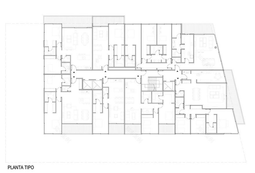
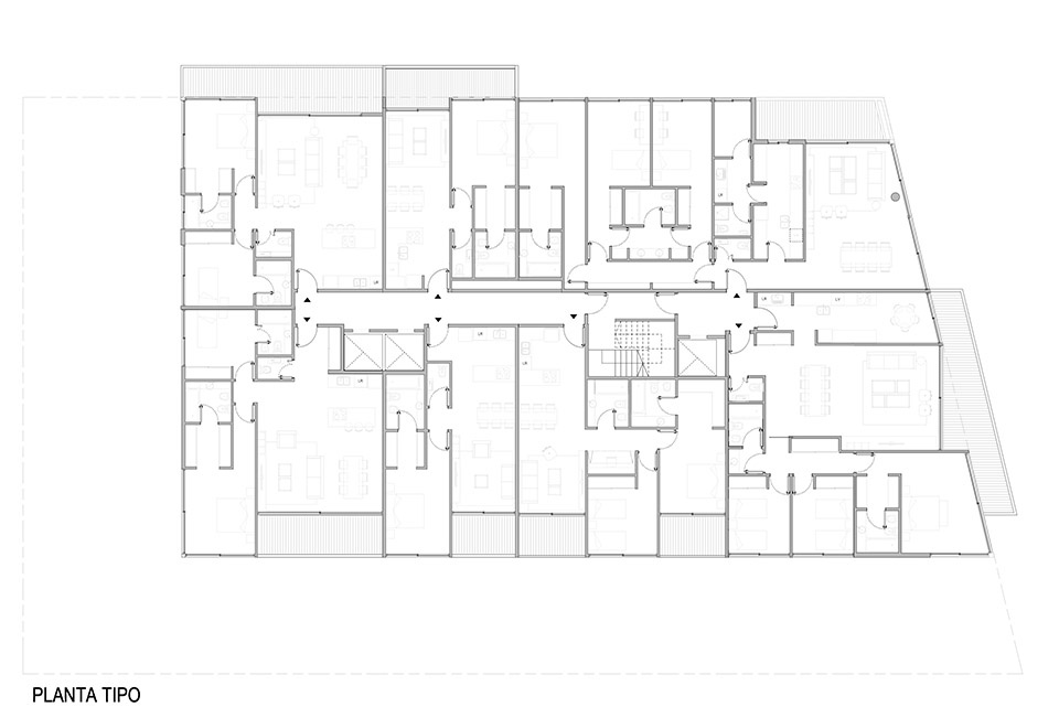
在内部空间中,延续建筑师一贯的特质:尺度宽裕、适宜长时间居住与生活的空间。从1层至7层设置2居、3居和4居单元;8层与9层则构成建筑的点睛之笔——三座拥有私人露台的“城市住宅”。这种位于建筑顶部、拥有独立户外延展空间的模式,为高层住宅单元提供了一种极为罕见的拓展方式。
▼拥有私人露台的“城市住宅” © Gonzalo Viramonte
在公共区域中,庭院尤为突出,它如同铁路公园的延伸,被本土植物所环绕。该空间包含一处禅意花园区以及一座室内外连通的泳池。此外,项目还配备水疗中心、桑拿房、双层健身房、多功能厅(SUM)、专业级全配厨房,以及一间可供业主预约使用的客房。
▼室内外连通的泳池© Gonzalo Viramonte
▼双层健身房 © Gonzalo Viramonte
▼禅意花园区 © Gonzalo Viramonte
提出一种不同的城市居住方式——在一座始终如一却又不断变化的城市之中——正是建筑师构想DEPART的初衷。
▼公共区域 © Gonzalo Viramonte
▼公共区域© Gonzalo Viramonte
▼住宅区域 © Gonzalo Viramonte
▼傍晚大堂 © Gonzalo Viramonte
▼场地区位 © Grupo Uno en Uno
▼一层平面 © Grupo Uno en Uno
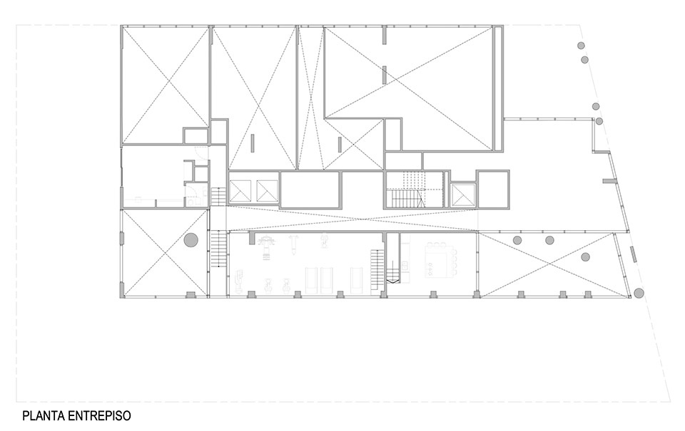
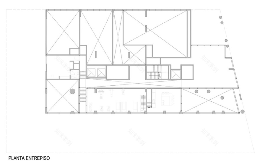
▼夹层平面 © Grupo Uno en Uno
▼居住层平面 © Grupo Uno en Uno
▼立面 © Grupo Uno en Uno
Project Name: Depart ColegialesArchitecture Office: Grupo Uno en UnoOffice Country: ArgentinaConstruction Year: 2022–2025Built Area: 10,000 m²Location: Colegiales, Buenos Aires CityMedia ProviderImage Credits: Gonzalo ViramonteVideo Credits: Gonzalo ViramonteAdditional Credits (Optional)Lead Architects: Grupo Uno en Uno (Dario Balan, Federico Brancatella, Diego Rybka)
客服
消息
收藏
下载
最近



























