查看完整案例

收藏

下载

翻译
Architects:Tanghua Architects & Associates
Area:4167m²
Year:2025
Photographs:MMCM
Lead Architects:Tang Hua
Category:Museums & Exhibit
Project Lead:Yu Wenbo
Design Team:Zhao Yuli, Liu Huawei
Technical Team:Wang Tianhao
Co Designed By:CCDI International (Shenzhen) Design Consultants Co., Ltd.
Client:Sichuan Hejin High-speed Railway New Urbanization Investment
City:Liangshan Yi Autonomous Prefecture
Country:China
Text description provided by the architects. Xichang Jianchuan Film Museum is located in the center of Xichang High-speed Railway New Town Area in the Anning River Valley of Xichang City, with the overall layout of "17 Museum + 5 areas", divided into "Public Welfare Museum Project" and "Xichang Jianchuan Film Museum Project" are two major parts. The total planning site of the project is about 1200 mu, with a total construction area of 265,000 square meters and a total investment of about 7 billion. The project is planned and designed by the expert team led by Fan Jianchuan, the director of Jianchuan Museum.
The 17 museums include World Film Development Museum, Chinese Film Development Museum, Film Photography Museum, Documentary Science and Education Film Museum, Film Sound Hall, Film Art Museum, Feature Film Museum, Film Poster Museum, and Children's Film Museum. Currently under construction are the Chinese Film Development Museum, the Cinematography Museum, the Feature Film Museum, and the Documentary and Science Education Film Museum. All pavilions are expected to be fully constructed by the end of 2023.
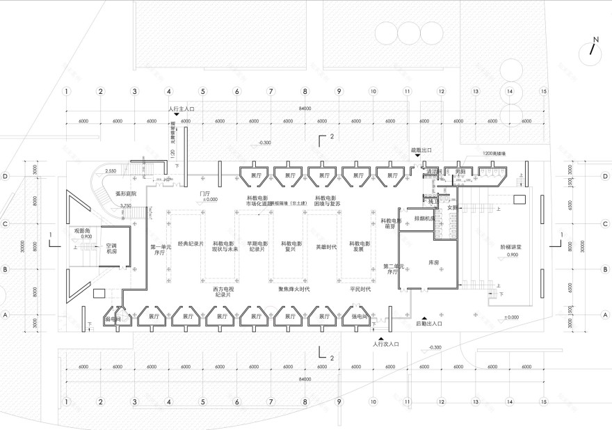
We are responsible for the design of the Documentary Film Museum located in the core of the area, adjacent to the important axis of planning - the Avenue of Stars. In the design of this case, we believe that documentary film, as a film subject, has its own characteristics of authenticity and sincerity. Considering the regional climate of Xichang and the need for exhibition, we envisioned a "real" museum that is different from the previous ones and has no climate boundary.
We designed the open exhibition hall on the second floor to let the air and sunlight of Xichang permeate the building, so that visitors can truly feel the climate of Xichang and experience more about the past, present and future of the documentary. With an open attitude, the building becomes a unique public space and spiritual place in the Xichang Jianchuan Film Museum Complex. At the same time, we express the thematic characteristics of this museum through different symbolic design techniques, and the real traces of the creation of clear water concrete tell the charm of light and shadow.
Considering the need for exhibition, we placed part of the closed exhibition hall on the first floor to meet the need for fixed exhibition. The winding roof of the building is a metaphor for the studio of film production - a gift box for creation and a factory for dream making.
Project gallery
客服
消息
收藏
下载
最近








































