查看完整案例

收藏

下载

翻译
Architects:MARS Architectes
Area:1700m²
Year:2023
Photographs:Charly Broyez
Category:Cultural Center
Design Team:MARS Architectes
Client:Villefranche-de-Rouergue Town Council
Heritage Architect:Caroline Serra
Engineer Structure:Batiserf
Engineer Fluids / Electricity:BET Choulet
Economist:BMF
Acoustician:Studio DAP
Scenographer:DUCKS Scéno
City:Villefranche-de-Rouergue
Country:France
Text description provided by the architects. The creation of this cultural center stems from the need for a functional facility capable of bringing together services currently scattered throughout the town in order to better serve local residents. Located in a historic bastide now identified as an area facing social and economic challenges, the project represents a first step in the renewal of Villefranche-de-Rouergue's town center. It is conceived as an inclusive place, particularly attentive to disadvantaged populations, dedicated to sharing, education, and cultural life.
This project is not limited to a single programmatic identity. It is neither solely a library, a media library, a games room, nor an exhibition hall, but all of these at once. It can be described as a "third place": a space designed to host a community and encourage the free exchange of knowledge, skills, and resources. Unlike traditional libraries, often perceived as closed and solemn sanctuaries, this cultural hub seeks openness, movement, and generosity, both spatially and socially.
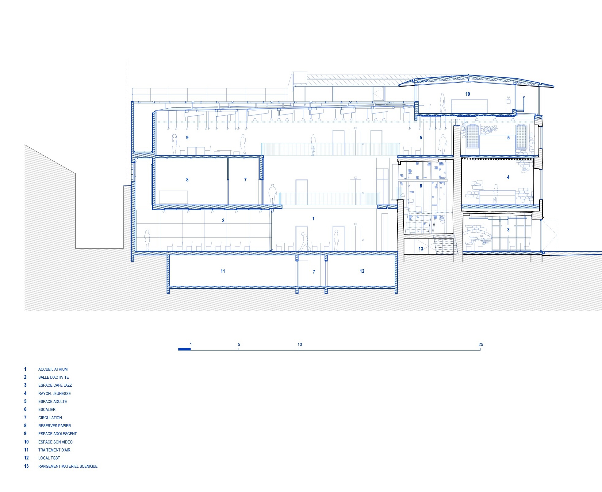
Circulation plays a key role in this ambition. The project rethinks movement through the building by emphasizing vertical continuity and visual connections with the city. Wide, naturally lit circulation spaces create a clear and fluid relationship between levels and with the public realm. The former courtyard is fully covered and transformed into a central atrium, allowing immediate interaction between all programs and reinforcing the idea of a shared, democratic space.
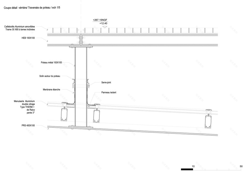
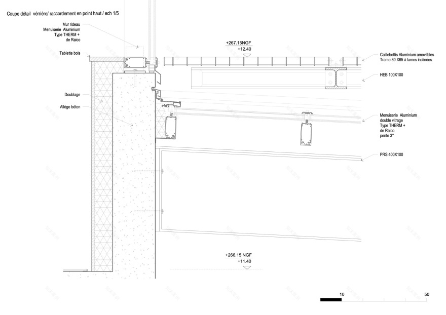
The new roof structure protects and reveals the existing heritage. Acting as a unifying element above the historic buildings, it filters natural light while protecting from weather conditions. It also offers a belvedere overlooking the city and its landscape. Rather than opposing old and new, the project establishes a balanced dialogue between eras, continuing the site's long process of transformation—from convent to palace, factory, and now cultural center.
Ground floor spaces extend naturally from the public space. The entrance porch leads to the atrium, which serves as reception and distribution. Around it are organized several independent programs: a cyber jazz café opening onto the square, a toy library, and a large activity room adaptable for exhibitions, performances, conferences or concerts. These spaces can operate outside library hours, supported by flexible furniture and acoustic treatment.
The first floor houses youth-oriented functions, including a youth library area, a multipurpose activity room with multimedia facilities, and a quiet study and training room. These spaces are arranged to preserve the character of the historic rooms while allowing contemporary uses. The second level is dedicated to adults, organized around the atrium and lit from above by a glass and steel roof providing soft, controlled daylight.
A digital fabrication workshop and staff offices complete this level. The third level accommodates sound and video collections, offering panoramic views of the city, as well as staff relaxation spaces and an outdoor terrace. Integrated within the roof volume, it respects the site's height constraints. As such, the rehabilitation project of the bastide establishes a contemporary architectural marker in the city.
Project gallery
客服
消息
收藏
下载
最近
































