查看完整案例

收藏

下载
“我们试图在厚重的地质感与轻盈之间寻找一种微妙的平衡。空间不应仅仅是服装的容器,更应是品牌精神的物质化显影——既有经典时尚的质感,又有当下审美的风格。”
We strive to strike a delicate balance between a profound geological texture and lightness. Space should not merely serve as a container for clothing, but rather a materialized manifestation of the brand spirit — one that embodies both the sophistication of classic fashion and the style of contemporary aesthetics.
IINC 立意于成为独立自信的全新个体 BE YOURSELF,BE SMART。作为大型综合性先锋买手店,精选全球500+设计师品牌,线上线下多平台运营,为大众提供精准购物服务和大胆多元零售体验。
“ I 自我 · Independent 独立 · New全新 · Confident 自信 ”审视自我并赋予自我全新的面貌,享受独特独立的个体的自性感。
IINC is positioned to empower independent and confident individuals to BE YOURSELF, BE SMART. As a large-scale comprehensive avant-garde boutique, we curate over 500 designer brands from around the world, operating across online and offline platforms to deliver precise shopping services and a bold, diverse retail experience.
“I · Independent · New · Confident” — reflect on yourself, embrace a brand-new identity, and savour the confidence of being a unique and independent individual.
开放性的空间,人们可以无束缚的选择个人审美需求,回归于欧洲时尚起源之都的色彩材质印象,我们此次为买手店iinc打造的全新商业空间,用极简的材质,在有限的场域内构建了一处关于“地质与架构”的微型时尚街区。
With an open layout, customers can freely explore and select according to their personal aesthetic preferences, returning to the colour and material impressions of the birthplace of European fashion. For the new commercial space of the boutique IINC, we have used minimalist materials to create a miniature fashion district themed “Geology & Structure” within a limited area.
空间叙事:流动的网格与消隐的边界
Spatial Narrative: The Flowing Grid and Dissolving Boundaries
包容与共存,个体思维与审美是无阶级差异的,以产品的无差别与平等展示为核心,开放的空间接纳不同品牌的气质。
Inclusivity and coexistence—individual thinking and aesthetics transcend class distinctions. Centered on the impartial and equal display of products, the open space embraces the unique character of diverse brands.
“流动的网格”成为了定义动线的核心要素,这些带有工业滑轮的网格装置,既是陈列道具,又是空间的半透明取景框。它们依据需求自由开合,使空间能够在“紧凑的陈列模式”与“开敞的秀场模式”之间灵活切换。
“Flowing Grids” have become the core element defining the circulation. These grid installations equipped with industrial pulleys serve as both display props and translucent framing devices for the space. They can be freely opened or closed as needed, allowing the space to flexibly switch between a “compact display mode” and an “open runway mode”.
为了化解场地内原本存在的结构柱与死角,镜像策略被大面积运用,我们用镜子包裹了立柱与墙体端头,利用光学反射原理,将原本厚重的红洞石横向延展,制造出一种“无限延伸”的错视效果。
To address the existing structural columns and dead corners in the space, a mirroring strategy has been extensively adopted. We clad the columns and wall ends with mirrors, and through optical reflection, horizontally extend the originally massive red travertine, creating an illusion of “infinite extension”.
不同的独立区域置入于整体空间中,可沉浸式体验多个打卡空间。如果你低头审视,会发现部分地面铺设的深褐色地毯上,散布着白色的短线条与解构的“C”字符号。这是品牌在三维空间中的碎片化投射,更像是一张由于镜面折射而变得难以捉摸的地图,指引着访客在真实与虚幻的边界中穿梭。
Various independent zones are integrated into the overall space, offering multiple immersive photo spots.If you look down, you will find that the dark brown carpet laid on part of the floor is scattered with short white lines and deconstructed “C” symbols. These are fragmented projections of the brand in three-dimensional space, much like an elusive map distorted by mirror refraction, guiding visitors to wander between the boundaries of reality and illusion.
地质与构架的二重奏
The Duet of Geology and Structure
这个时尚街区的主视觉被两种截然不同的物质属性所占据:一种是代表古典时尚、与时间沉淀的天然红洞石、米洞石;另一种是代表现代、工业与秩序构建的薄荷绿金属架构。
The main visual identity of this fashion district is defined by two distinct material qualities: one is the natural red travertine and beige travertine, representing classical fashion and the sedimentation of time; the other is the mint-green metal structure, embodying modernity, industry and structural order.
一些材质的特殊尝试,在理性、工业、与柔韧自由中找到新的表达:平面的柔性毛毡,切割后拉伸成成为一面面柔性的屏障,可分隔,可穿透,且给予衣服最为柔和的隔断。
We have experimented with special materials to find a new expression between rationality, industry, and flexible freedom. Flat flexible felts are cut and stretched into soft barriers that can divide or penetrate the space, providing the gentlest partition for clothing.
这不仅仅是色彩上的互补,更是触感与维度的交融。红洞石的孔隙肌理暗示着自然界的无序生长,而薄荷绿的金属网格则象征着人工的绝对理性,成为在“经典”与“先锋”之间游走的商业逻辑。
This is not merely a complementary relationship in colour, but a fusion of texture and dimension.The porous texture of red travertine implies the unrestrained growth of nature, while the mint-green metal grid symbolizes the absolute rationality of human creation, forming a commercial logic that navigates between “classic” and “avant-garde”.
人文互动:非固态的商业场景
Human Interaction: Non-static Commercial Scenes
IINC的空间设计超越单纯的售卖功能,它更像是一个鼓励探索的社交场域。半开放的网格创造了一种“看与被看”的暧昧关系——顾客在挑选衣物时,身影在网格与镜面中若隐若现,成为了空间动态叙事的一部分。
The spatial design of IINC goes beyond a mere retail function; it is more like a social arena that encourages exploration.The semi-open grids create an ambiguous dynamic of “seeing and being seen” — as customers browse and select garments, their figures flicker between the grids and mirrors, becoming part of the space’s dynamic narrative.
这种非固态的、可生长的空间特质,恰恰回应了当代实体商业空间的核心诉求:在流量时代,体验不再源于琳琅满目的商品堆砌,而源于置身于某种独特“场域精神”中的感官沉浸。
This non-static, growth-oriented spatial quality precisely responds to the core demands of contemporary physical commercial spaces: in the era of traffic, experience no longer stems from the piled-up array of dazzling goods, but from sensory immersion within a unique “spirit of place”.
结语
Conclusion
这是一次色彩与材料建构逻辑的实验,将一个原本可能沉闷的零售单元,转化为一处的可变化的街区。在这里,红色与绿色、粗糙与精致、瞬间与永恒达成了某种奇妙的和解。
This is an experiment in the construction logic of colour and material, transforming a potentially dull retail unit into a transformable district. Here, red and green, rough and delicate, transient and eternal reach a wonderful reconciliation.
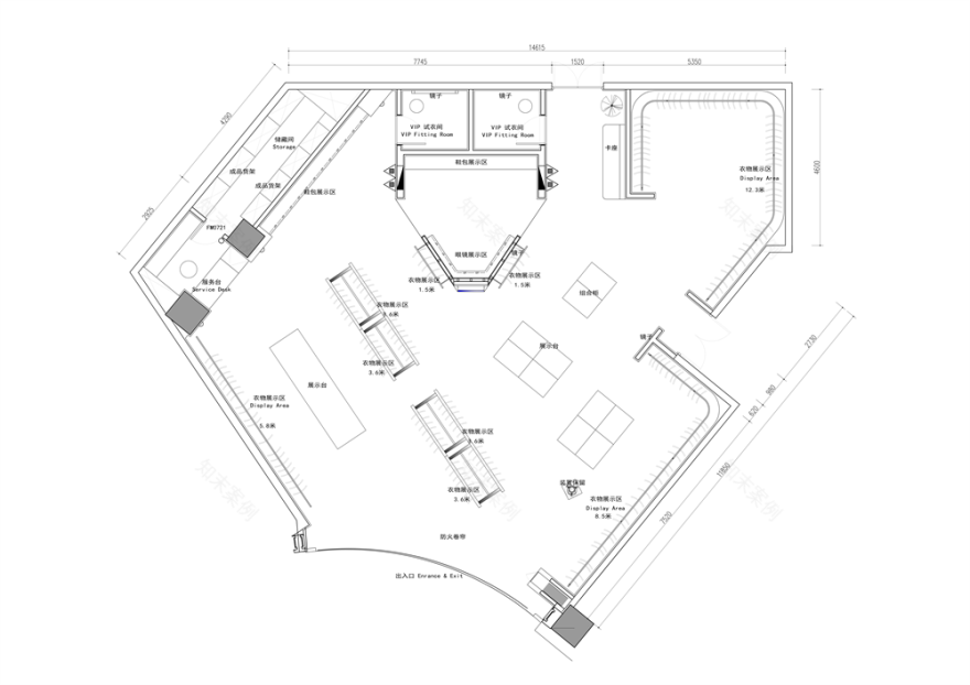
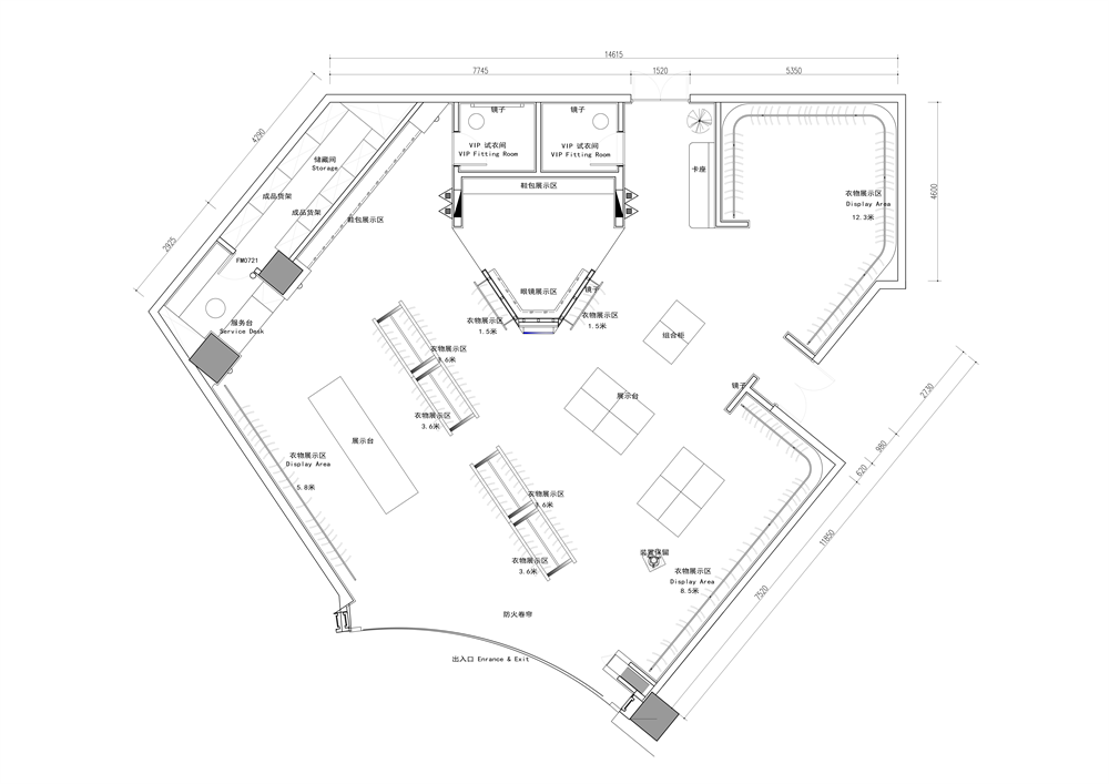
平面图:
项目信息:
项目名称 | IINC: The Fashion District
设计公司 | 泛域设计Fununit Design&More
主案设计 | 朱啸尘
硬装设计 | 柴尔焕 谢宜臻 邓可昇
软装设计 | 陈琳 吴雨昕
视觉设计 | 胡晓娴
空间主材 | 红洞石 金属 毛毡布 柚木色板 岩板
摄影摄像 | 奥观建筑视觉Aogvision
项目地址 | 中国 杭州
项目规模 | 207㎡
完工时间 | 2026/01
客服
消息
收藏
下载
最近























