查看完整案例

收藏

下载
本项目位于北京三里屯核心商圈,是品牌旗舰级高端SPA空间。设计以“疗愈”为核心命题,通过光线、材质和动线的渐进变化,引导使用者逐步进入松弛和沉浸状态,目标不是营造表层的“安静场所”,而是构建一个多感官参与、节奏清晰的空间体验系统。
Located in the heart of Beijing’s Sanlitun district, this project is the brand’s flagship spa. The design takes “healing” as its central theme, using gradual transitions of light, material, and circulation to guide visitors into a state of relaxation and immersion. The goal is not merely to create a superficially “quiet place,” but to construct a multi-sensory, rhythmically clear spatial experience.
▼空间入口,Entrance to the space ©言隅
▼串联空间的纵向通道,Longitudinal corridor connecting the spaces ©WenStudio
空间布局以一条纵向通道串联各功能分区。尽端设小型水景,水声成为首个情绪信号。左侧发光展示墙陈列产品,右侧为接待吧台和登记区,展示区与休息区结合,客人可停留、试用、茶歇。此处灯光较亮,强调对产品的感知。沿通道深入,空间逐渐收敛,光线降低,最终通过仅脚部打亮的暗廊进入核心SPA区,使心理和生理节奏自然放慢。
▼装置墙细节拆解图,Exploded detail axonometric of the installation wall ©F.O.G. Architecture
The plan is organized around a single longitudinal corridor that links all functional zones. At its end, a small water feature provides the first sensory signal, slowing visitors down as they enter. A backlit display wall on the left presents the spa’s products, while the reception counter and check-in area are placed to the right. The display and lounge areas are integrated, allowing guests to pause, try products, and enjoy tea. Lighting here is brighter to emphasize focus on the products. As visitors move deeper, the space narrows and light gradually dims, culminating in a dark passage lit only at floor level, naturally slowing psychological and physical rhythms before reaching the core spa area
▼产品展示区,Product display area ©WenStudio
▼视线相互串联的接待区与休息区,Reception and lounge areas visually connected ©WenStudio
▼休息区的发光装置墙,Illuminated installation wall in the lounge ©言隅
▼发光装置墙细部,Detail of the illuminated installation wall ©WenStudio
▼闻香区,Fragrance station ©WenStudio
▼产品的细节,Product detail ©WenStudio
核心区采用独立动线确保私密性,不同顾客流线分隔,避免干扰。房间紧凑清晰,按护理流程布置换鞋、更衣、淋浴和理疗单元,便于顺畅切换。门帘、电动移门及纱帘用于分隔视线与控制光线,既保证私密,又避免封闭感。收纳、灯具、镜面和置物台细部均精细设计,便利且具有仪感。
▼隐藏的收纳空间,Hidden storage space ©F.O.G. Architecture
The core area is organized with independent circulation to ensure privacy, with separate flows for different guest tiers to avoid interference. Rooms are compact and functionally clear, following the treatment sequence with areas for shoe changing, dressing, shower, and therapy beds arranged for smooth user experience. Curtains, sliding doors, and sheer partitions separate views and control light, providing privacy without a sense of enclosure. Storage, lighting, mirrors, and shelving are carefully detailed for convenience and a ritualistic sense of order.
▼SPA客房走廊,Corridor leading to the spa suites ©WenStudio
▼SPA客房入口,Entrance to the spa suite ©WenStudio
▼SPA客房内部,Interior of the spa suite ©WenStudio
▼SPA客房化妆台,SPA room dressing table ©WenStudio
光是主要设计的手段。公共区光线明亮,便于展示与交流;过渡空间通过局部装置墙和下照灯放缓视觉节奏;理疗区降低色温,采用低位与点状照明形成暗背景,突出操作面,强化放松与专注。整体光环境通过亮暗梯度和空间收放,引导情绪从外部的警觉过渡到内部沉浸。
▼空间轴侧,Axonometric view of the space ©F.O.G. Architecture
Light is a primary design tool. Public areas use bright, neutral lighting for display and interaction; transition zones employ accent walls and downlights to slow the visual tempo; treatment rooms lower color temperature and use low-level and point lighting to create a dark background, highlighting work surfaces and reinforcing focus and relaxation. Gradients of light and spatial compression guide the emotional shift from external alertness to internal immersion.
▼SPA客房洗手间,Interior restroom area of the spa suite ©WenStudio
▼淋浴间,Shower room ©WenStudio
▼SPA客房内部灯光设计,Interior light design of the spa suite ©言隅
材质强调冷暖平衡。水泥基底提供连续背景,铜点缀形成高光节点,木材用于家具与隔断,缓和空间气质,石材用于水景和闻香台,带来自然的触感。整体克制中性,避免过度的装饰刺激感官,干扰体验。
The material palette balances cool and warm tones: cement provides a continuous background, copper accents create highlights and reflections, wood is used for furniture and partitions to soften the atmosphere, and stone is applied in water features and scent stations for tactile and natural presence. The restrained, neutral approach avoids excessive decoration, keeping attention on the experiences.
▼空间内的材质对比,Material contrasts within the space ©WenStudio
▼展柜,Showcase ©WenStudio
水景与香气系统是感官设计的另一组成部分。循环水景成为稳定声源,帮助快速放松。闻香台结合品牌精油,随时段调整香气:晨间清新,午后沉稳,晚间促进放松。视觉、听觉、嗅觉叠加,使疗愈体验贯穿整个停留过程。
Water and scent systems complete the sensory design. The water feature acts as a constant sound source, aiding relaxation. The scent station adjusts fragrance profiles throughout the day—citrus in the morning for refreshment, woody notes in the afternoon for calm, floral notes in the evening for deeper relaxation. Combined visual, auditory, and olfactory cues create a closed sensory loop, extending the healing experience beyond the treatment itself.
▼洗手池,sink ©言隅
本案通过精确的空间控制,将“疗愈”从概念转化为具体体验,为高端SPA提供可验证、可复制的设计路径。
This project translates the abstract idea of “healing” into a precise, reproducible spatial experience, offering a model for future high-end spa design.
▼化妆间,Dressing room ©言隅
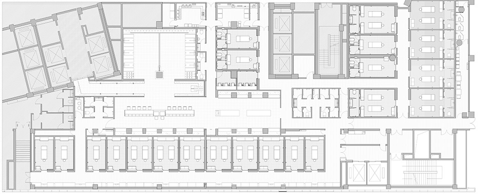
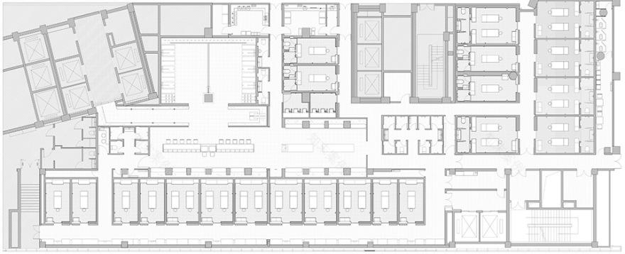
▼空间平面布置图 ©F.O.G. Architecture
项目信息
项目名称:愈舍YUSPA 北京三里屯店
设计单位:F.O.G.建筑事务所
项目位置:北京
建筑面积:1200 m²,
设计团队:张弛,张智睿,唐墨,谢嶷,熊爱杰,邹德静,詹迪,郑宇
灯光顾问:立本社 张旭
摄影: Wen Studio, 言隅
客服
消息
收藏
下载
最近















































