查看完整案例

收藏

下载

翻译
Architects:Ivan Bravo Architects
Area:174m²
Year:2024
Photographs:Ivan Bravo Architects
Lead Architects:Ivan Bravo, Martín Rojas Ortiz (associate architect)
Category:Houses,Extension
Design Team:Juan Oyarzún
City:El Arrayan
Country:Chile
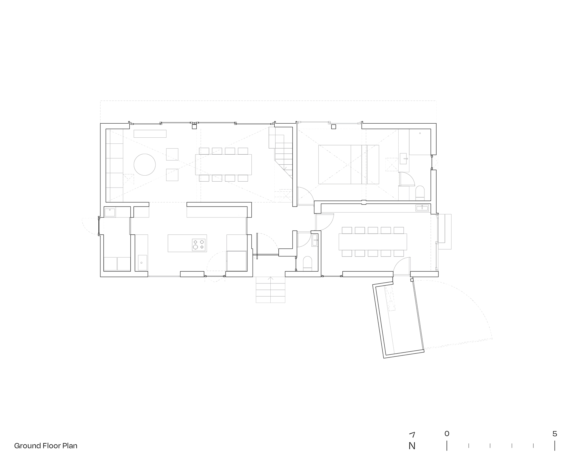
Text description provided by the architects. Casa Tam is one more iteration in a sequence of rewritings. It is a comprehensive renovation of a house already expanded and altered on two prior occasions. Somewhere between new construction and palimpsest, the project takes fragments of original layouts and extends them into new spatial continuities, intertwining them with axes from later interventions.
Located on the foothills of the Andes, on the outskirts of Santiago, the house raises its front façade—a gesture of urban character—while turning its back to the mountains. Its roof mirrors the slope it faces, descending nearly to meet the ground and reducing the rear elevation to a thin, semi-buried strip intimately connected to the garden.
The open, double-height area facing the interior garden contains the living-dining room and the main bedroom. The other half, facing the street, accommodates service areas like the kitchen and the owner's ceramics workshop. Upstairs, two children's bedrooms are joined by a central shared studio.
In the lower level, the intervention uses reinforced concrete elements that tie together the various construction systems layered across the house's history. The upper floor is a lightweight construction to avoid overburdening the original foundations, designed for a single story.
The contrast between the different layers of the house's past remains visible in its interior. Shifts in material appear on surfaces, unified only by a coat of white paint. Openings—cut through interior and exterior walls—reveal their original wall past, embracing the honesty of the intervention. Outside, the entire house is clad in a standing seam metal skin. While the interior exposes the layering of time, the exterior reads as a monolithic, single-material volume.
In front of the main façade, the only entirely new addition emerges: the kiln room. Clad in wood and painted white, it stands as the signature of this most recent reinvention—a plastic and programmatic trace of the latest rewriting of this home.
Project gallery
客服
消息
收藏
下载
最近




























