查看完整案例

收藏

下载

翻译
ROUND WALLS
Architects: Yaroslava Serdiuk, Karman Nazarii
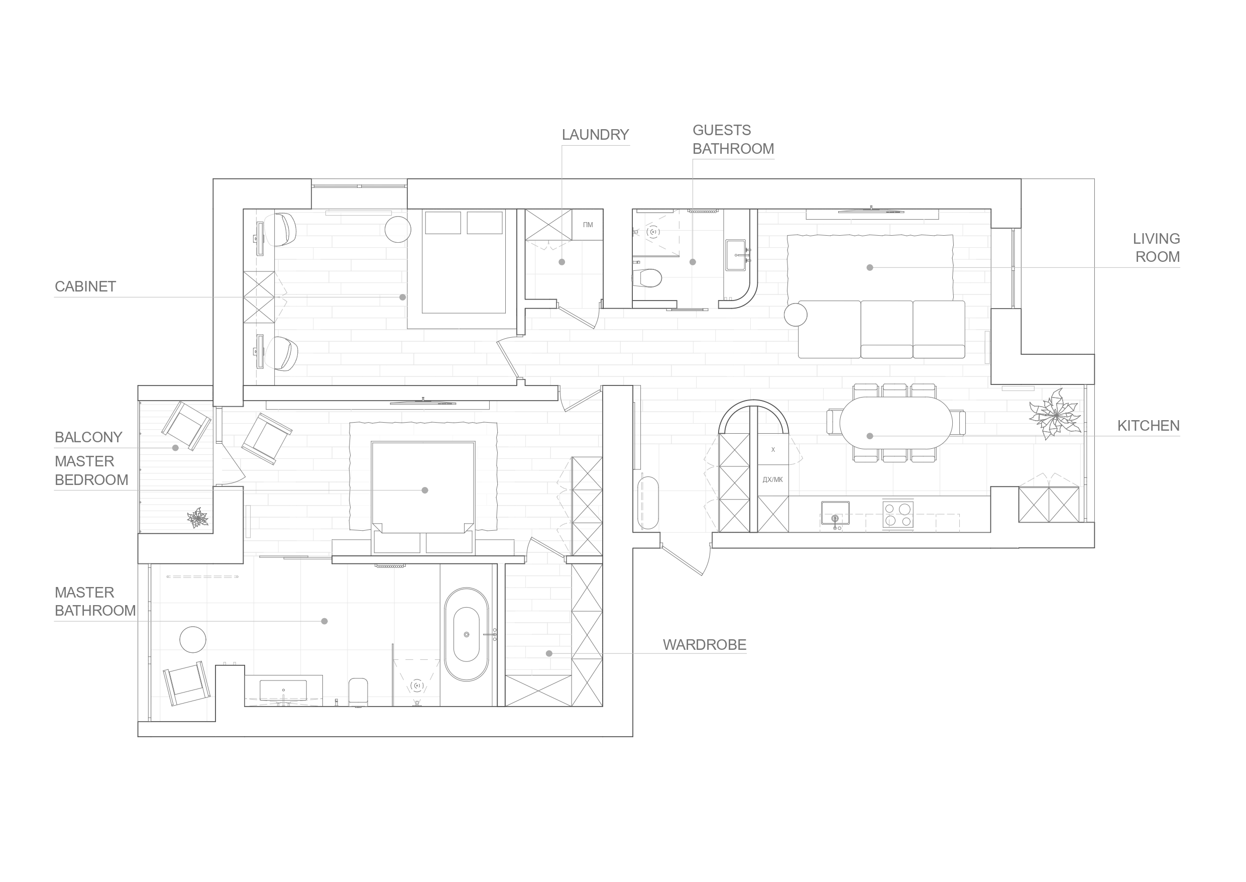
Project area: 113 sq. m
Project year: 2021
Location: Ivano-Frankivsk
CG Artist: Anton Kryvoruka
This apartment is located in Ivano-Frankivsk. The area of the apartment is 113 sq.m. Initially, the area of the apartment was 58 sq.m. Later, the clients bought another apartment nearby, so that there would be more space.
The flat can be divided into two blocks - left and right. A large area of the left blocks takes by the private zone of the apartment owners. Also on top is an office with a sleeping place for guests. Kitchen, living room and a guest bathroom are located in the right block of apartment . The design of the apartment turned out to be simple and concise. Natural materials, such as wood, add more comfort.
In the masters bathroom there is a small seating area by the panoramic window overlooking the city.
LIVING ROOM
CORRIDOR
CABINET
When creating visualizations, close attention was paid to every smallest detail: colors, textures, intersections of materials.
客服
消息
收藏
下载
最近




















