查看完整案例

收藏

下载
沉积计划
一座为未来而建的工作场域
「没有过多的设计,只是在适当位置安置对象,等待时间沉积。」
这座办公场域的诞生,并非追求一次性的视觉成果,而是打造一个能随未来需求自由延展的轨迹 。在 AI 快速变化的当代,它能包容十年甚至二十年的转变——无论是团队规模的更迭、创作习惯变化、材料与技术革新,皆可在其中自然发生。
留白的结构:让空间具备响应未知的弹性与韧性
在为期八个月的建构过程中,我们更倾向于现场的直觉判断而非图面的绝对完整 。空间中刻意预留约30%的区域不设定具体功能,让光影、行为与情绪随机参与空间的生成。这种「留白」的概念如同博物馆的策展架构,预留给未来艺术品、作品测试与纪录生活片段发生的可能。材料被视为背景,而塑造空间记忆的,是未来在此发生的生活。
地坪的蛇纹石是是空间叙事的起点——灵感来自北美馆广场四、五十年来的石材痕迹。其耐性与沉积的纹理,使地面成为最可靠的岁月刻度。空间的基调因此建立在「能与时间共存」的材质之上。
除了预留新材质的演化性,老旧的废料也在此孕育新的可能:入口的电箱门片由剩余的老木料切割、染色而成,化身为新的装置;墙面与地板上柔和的水泥艺术,则源自商业案的打样原型。这些工程废料在此找到栖身之地,使空间不仅是新的开始,而是一条时间长线:过去、当下与未来在此共存。
光线、场域与角落:重组工作方式的可能
在探索当代办公场域的过程中,让我们理解到「理想的工作状态」并非单一型态,而是在开放与私密、社交与独处间流动。空间应满足多样个体,让使用者依季节与需求调整座位,透过场景转换重置工作情绪与节奏。
基地本身的畸零与曲折,生成许多私密角落,无须额外隔间即可形成阅读、思考与休憩的独立节点。在高强度创意工作中,这些「喘息角落」具有不可取代的功能。
整体工作区则置于空间深处,以中岛吧台作为场域分界,让绘图与会议两种行为自然分流。不到顶的隔间系统在室内形成建筑语汇般的起伏节奏,搭配高度变化,保持视觉平静与纯粹。
像家一样的节奏:用生活的舒适渗入创作现场
我们希望使用者在此工作可以感受到家的尺度,因此空间内设置玄关、客厅、厨房与浴室等居家原型。入口玄关以深色材质压低光线,形成情绪转折;开门后迎来阳光与绿意,营造鲜明对比。
客厅作为过渡区,连结大小会议室与吧台。我们以两张 Corbusier LC1、LC3 经典单椅取代原本紧凑的家具配置,释放更多空间也使场域获得弹性与呼吸。在完全无背景墙的场域中,简练的家具语汇使视线流动自由,延续从容、舒适的氛围。
三个露台则是本案最珍贵的特质。我们分别种植四季变化的植物,感受叶片转红、开花与结果。当阳光经由露台的折射后变得温和,避免了被西晒直面的不适,使光线成为一种温润的介质,将日常的工作环境在自然的调和下,形成稳定而舒适的氛围。
结构的美学:精准而不过度包覆的设计
部分家具来自十多年搜藏:1928 年柯比意 LC 系列、1950 年代 Cherner chair、1977 年 Cassina Cab413 马鞍椅,以及致敬昌迪加尔的设计,每件家具因着精致的结构美学成为百年经典,承载着设计史片段也为空间注入时间厚度。市场上找不到的功能性家具,则成为自制家具起点:具散热功能的机柜、可移动描图纸滚动条讨论桌,皆源于使用者自身需求,透过工艺精度延续结构美学。
然而精致并非过度包覆:会议室与办公室的金属门片及CNC握把,皆以材质本质加工、切割;中岛吧台与木作讨论桌采工字型结构呈现,让原本隐藏的结构成为功能与美学兼具的细节。
这个空间并非一个「完成的作品」,而是为未来预留的容器。无论是材料老化、成员更迭、家具调整,或未来尚未知的创作,都将使它逐年变得更加完整。就像瓶中信一样,在未来十年、二十年后重新打开,依然带来惊喜。
户外使用 Louis Poulsen 为丹麦 Albertslund 设计的 1963 壁灯,以及卫浴中 Marcel Wanders 为 Boffi Fantini 设计的 AW/PIPE 系列,都象征我们追求的价值:以经得起时间的工艺与结构,让空间具有长期存在的意义。
家具解构
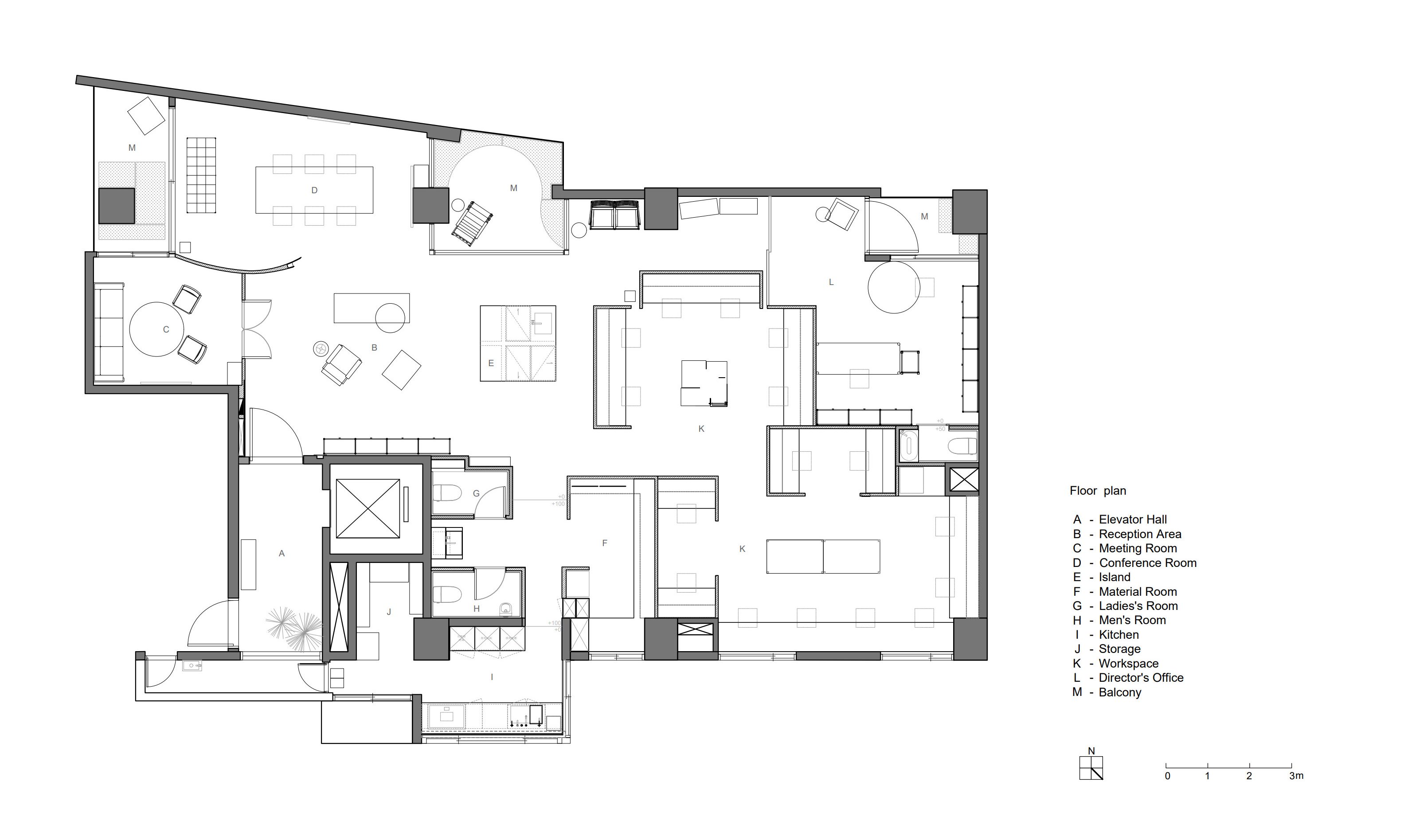
平面图:
项目信息:
空间设计:李智翔、葛祝纬、胡育瑄、林佳靖/水相设计
空间性质:办公空间
座落位置:台北
室内面积:218平方米
空间格局:玄关、接待区、会议室、多功能讨论区、材料室、盥洗室、厨房、员工办公区、总监办公室、阳台、储藏室、
品牌家具:Cassina LC1, Cassina LC3, Cassina Capitol Complex Chair, Cassina Cab 413, Cherner Chair, Cassina Cab413, Carl Hansen & Son Colonial Sofa, Carl Hansen & Son Daybed, Herman Miller Sayl Chair
艺术品:Thomas Devaux- Dichroic, Sangmin Lee- Bowl with Floral Design in Underglaze Blue, Shao-Kuan Chen
设计时间:2023.09~2023.12
施工时间:2024.01~2024.08
主要材料:墨玉仿古面大理石、龟纹绿亮面大理石、平光红洞石、水染枫木木皮、桃花心木皮、黑铁亮面涂装、镀锌板亮面涂装、镜面金属银漆、晕染绿金属漆、珪藻土染色
平面摄影:揅空间工作室 Studio Millspace
客服
消息
收藏
下载
最近



























































