查看完整案例

收藏

下载

翻译
Architects:WUWU Atelier, ADINJU
Area:440m²
Year:2025
Photographs:Yilong Zhao
Lead Architects:Pan Youjian
Category:Houses
Design Team:Pan Youjian, Li Chonghao
Engineering:Structure: Liu Yang; Plumbing and Electrical: Xia Dongwei
Construction:Chen Yunlin's Team; Masonry Works: Jiang Daping, Master Huang; Brick Paving: Lai Renhui; Brick Wall Finishes: Liu Rongchun; Interior Woodwork: Zhong Xinhua
City:Heyuan
Country:China
Text description provided by the architects. Rural construction is mostly spontaneous, giving rise to a rich diversity of built forms. Within this organic complexity, our strategy is not to assert ourselves through contrast, but to inhabit the context with quiet modesty. "We hope this house will help the children remember where their hometown is." This heartfelt wish shared by our client Ms. Zhang. Having left their hometown for Guangzhou at a young age, her family rarely returns. This renovation of their ancestral home aims to improve living comfort and create better conditions for family reunions—offering the next generation a tangible connection to their roots. Since the house is not for daily use, the design also prioritizes low maintenance and cost control.
Material - Brick is scaled to the hand—light enough to lift alone. From brick to wall to space, it is both the modular unit of construction and a witness to craft and tradition. The building is framed in reinforced concrete. The inner leaf of the double-skin cavity wall aligns with the frame, revealing the relationship between structure and infill. The outer leaf conceals the frame, presenting a unified brick surface—a deliberate divergence between how the building is read from inside and out.
The double-skin cavity wall enhances thermal performance—essential for insulating against direct sunlight in Guangdong. This construction strategy also gives the building two distinct faces: externally, a modest red-brick volume with concrete window frames, quietly belonging to the village; internally, the reinforced concrete frame and infill brick walls are revealed. Structure and enclosure engage in a play of figure and ground—concealed outside, legible within. Through tectonic expression, construction becomes space. Brick is employed consistently across the project—garage roof, interior and exterior flooring, outdoor furniture, courtyard walls. The aim is to form a wrapped, unified field through a singular material language.
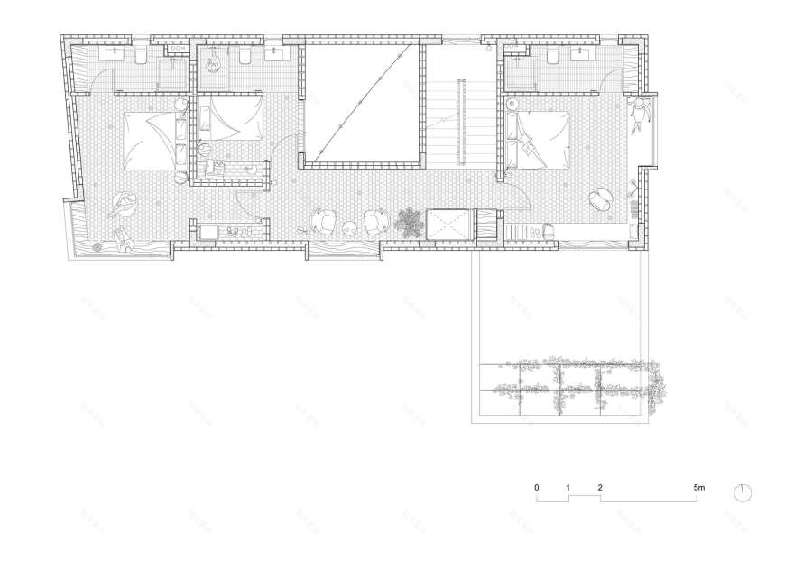
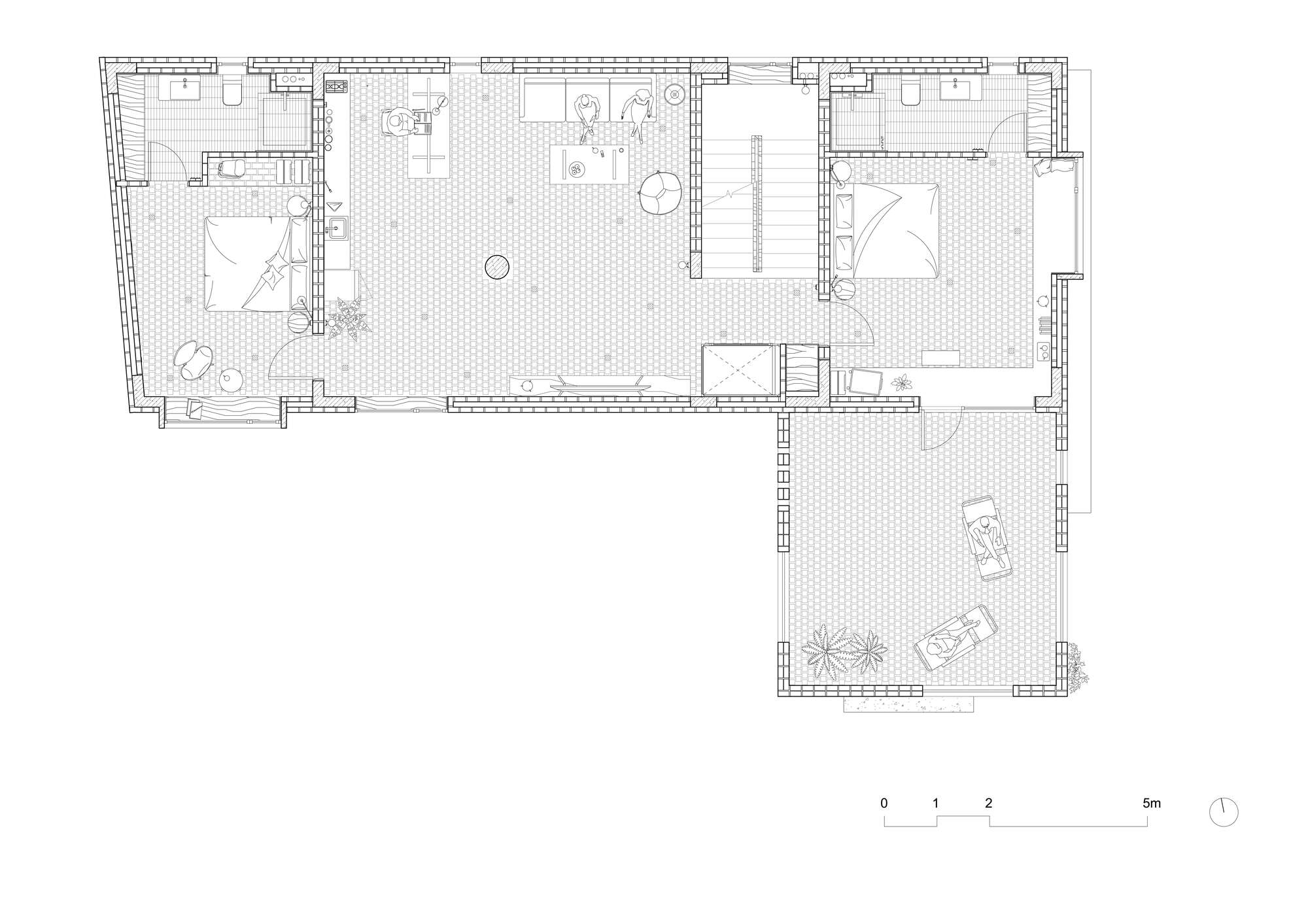
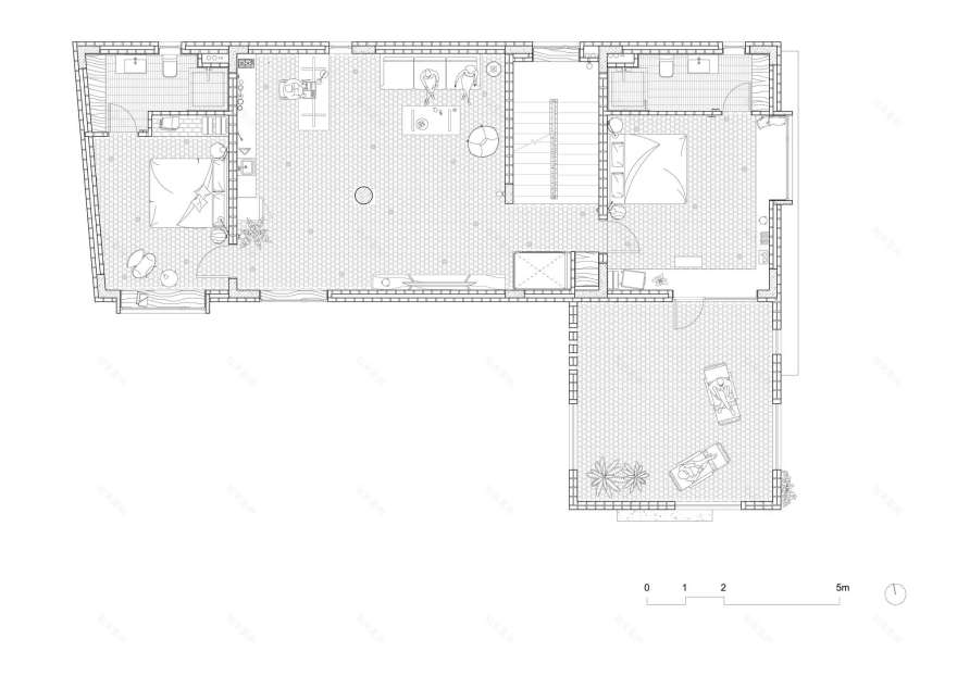
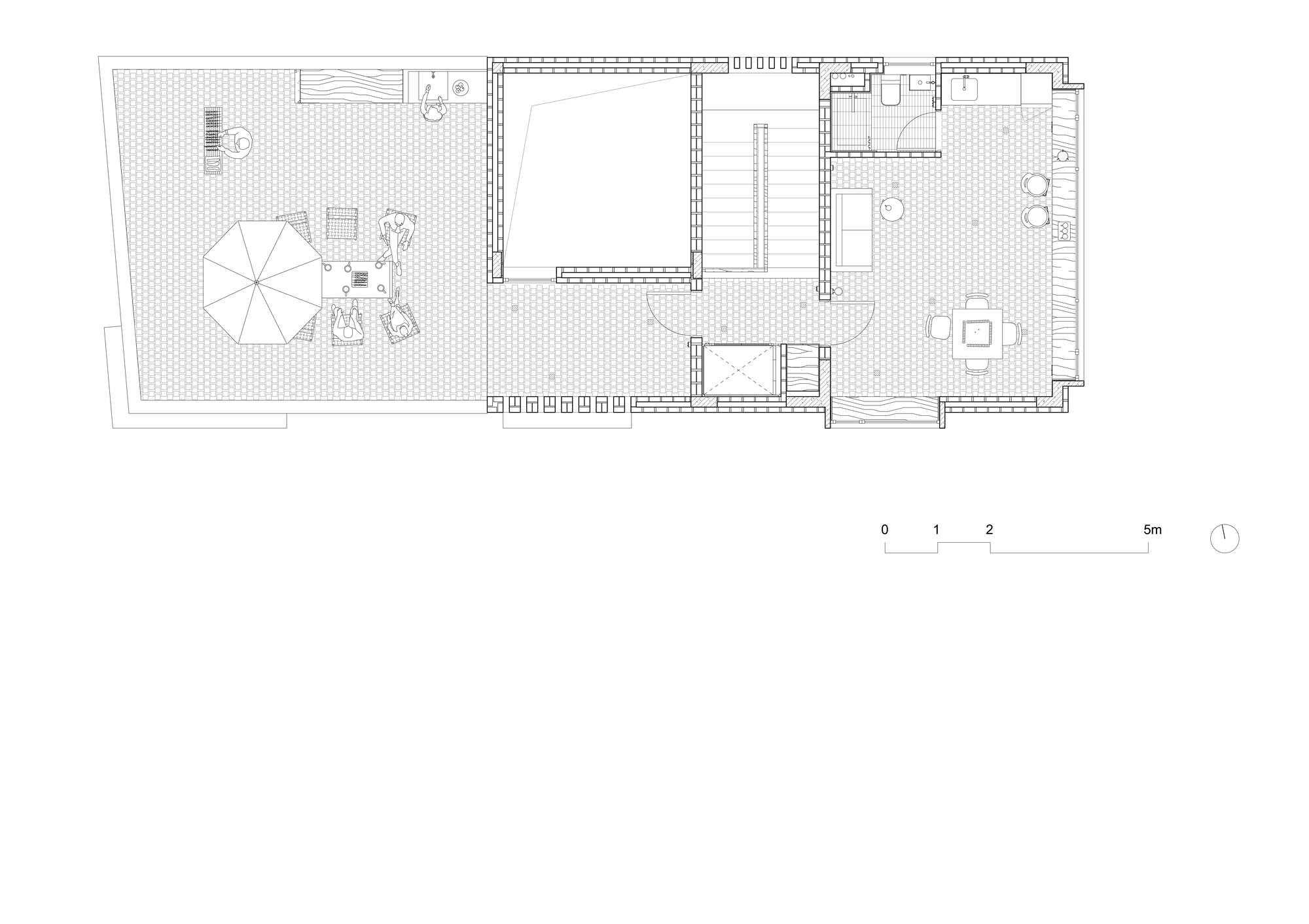
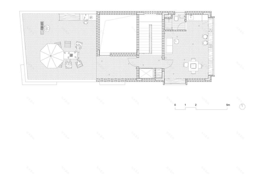
Spatial Organization - The design accommodates six en-suite bedrooms for family gatherings. Following local regulations, the plan adheres to the original footprint, with the main entrance, central hall, and kitchen retaining their traditional positions—respecting feng shui and rural customs. The sequence extends further inward, arriving at a living and gathering space composed of kitchen, dining, and living areas. This interior opens onto the more private rear courtyard, extending domestic life into the outdoors. Here, lychee and wampee trees planted by the previous generation remain, along with a section of the old courtyard wall.
On the second floor, the family room offers a contrasting spatial experience to the living room below—introverted and enclosed, yet open to the sky. Its double height and top lighting echo the central hall of the old house. Together, the three spaces—central hall, living room, and family room—form a sequence that progressively transitions from public to private.
Project gallery
客服
消息
收藏
下载
最近









































