查看完整案例

收藏

下载
国际交流会馆、国际会议中心和学生活动中心是印度理工学院海得拉巴校区(IITH)整体建设计划里的六座核心建筑之三,设计通过跨国合作方式完成。
The International Guest House, Convention Center, and Sports and Cultural Complex are part of the comprehensive campus development of the Indian Institute of Technology Hyderabad (IITH). These three facilities are among the six core buildings defined in the master plan and were designed through a distinctive framework of international collaboration.
▼国际交流会馆,international guest house (IGH)© Hidetoshi Ohno
IITH 成立之初,日方不仅在资金和技术层面支持了校园设施建设,也借此推动了日本与 IITH 之间的教育与科研合作。具体实施由多所大学与民间企业组成的联合体完成。东京大学作为牵头单位,临时组织了一支设计团队,核心成员是当时就任于东京大学新领域创成科学研究科的大野秀敏,以及生产技术研究所的川添善行。2011 年起,这个团队以 JICA(日本国际协力机构)委托项目的形式负责相关设施的设计。
During the establishment of IITH, the Japanese government supported the campus facility construction and fostered bilateral educational research collaboration between IITH and Japan. Multiple universities and private-sector companies formed a consortium and undertook the practical implementation. The University of Tokyo participated as the lead institution and organized a temporary design team centered on Hidetoshi Ohno (then at the Graduate School of Frontier Sciences) and Yoshiyuki Kawazoe (Institute of Industrial Science). Beginning in 2011, this team was responsible for the facility design as a project commissioned by JICA (Japan International Cooperation Agency).
▼国际会议中心,convention center (CC)© Hidetoshi Ohno
设计面对的现实条件相当明确:在印度,钢材价格高昂,因此钢筋混凝土是最经济、最现实的选择。从经济和技术上看,这个选择十分合理;但对于习惯了日本建造环境的建筑师来说,却多少有些不太顺手。毕竟用钢筋混凝土做体量巨大、形态复杂的建筑,在日本并不是种日常操作。
The design process responded to local construction conditions in India, where the high cost of steel made reinforced concrete the most feasible material. Although economically and technically appropriate in this context, the use of reinforced concrete for large-scale and formally complex buildings presented a particular challenge within contemporary Japanese architectural practice.
▼学生活动中心,sports and cultural complex (SCC)© Hidetoshi Ohno
国际交流会馆:以井字格方式堆叠住宿单元尺度
International Guest House: Stacking Accommodation Units in a Crisscross Configuration
随着大学的国际交流日益活跃,校园将频繁迎来参与不同规模研究集会、学术会议或短期课程的访客。校园入口附近的国际交流会馆便是为此准备的住宿设施,并设想与相邻的国际会议中心一同使用。
▼国际交流会馆草图,sketch of the international guest house (IGH) © IITH Campus Design Team, The University of Tokyo + NIHON SEKKEI + APL design workshop
As universities become more internationally connected, they increasingly host visitors for research gatherings, academic conferences of various scales, and intensive short-term programs. The International Guest House provides accommodation for such visitors and, together with the adjacent Convention Center, sits near the campus entrance and conceived for integrated use.
▼国际交流会馆外观概览,exterior view of the international guest house© Hidetoshi Ohno
▼国际交流会馆外观近景,closer view of the international guest house© Hidetoshi Ohno
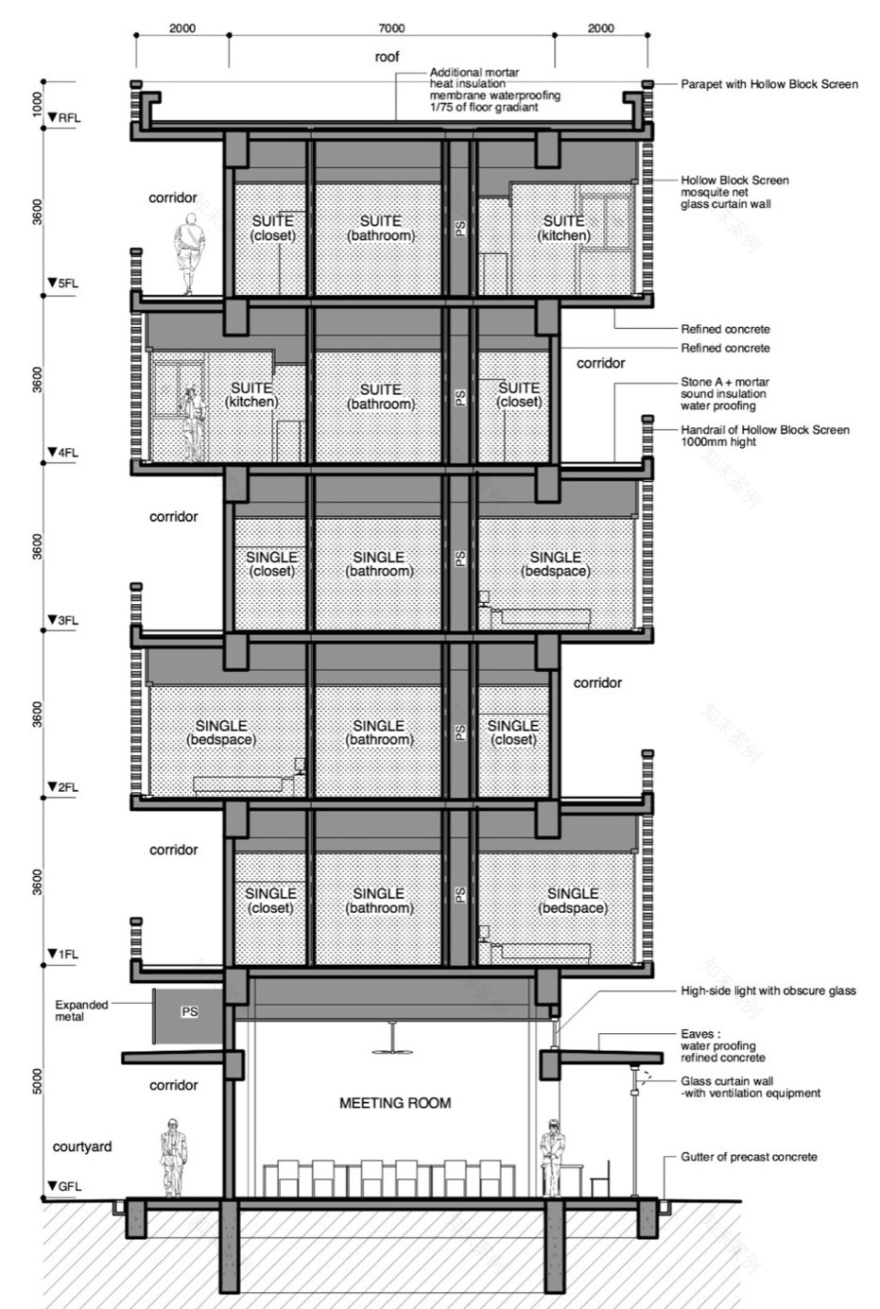
所有客房都被装进了11米*2.8米的“长条”中,他们像“井”字一样交错堆叠,最后围合出三个空间特质各不相同的庭院。为防止热空气在庭院中积聚,设计有意拿掉了一部分客房体量,让空气自由流通。这些“长条”向两端伸展,使住宿单元的尺度在视觉上占据主导,不会让整座建筑成为骇人的庞然大物,同时也为客房创造了更好的视野。
▼国际交流会馆平面图,plan of the international guest house (IGH) © IITH Campus Design Team, The University of Tokyo + NIHON SEKKEI + APL design workshop
All guest rooms are housed within long “bars” measuring 11 meters in width with a floor-to-floor height of 2.85 meters. These bars are assembled in a crisscross configuration, forming three courtyards with distinct spatial characteristics. To prevent hot air from accumulating within the courtyards, guest rooms are selectively omitted at certain locations to ensure ventilation. To avoid the perception of a single, massive building, the ends of the bars project outward, allowing the scale of individual accommodation units to dominate the exterior expression while also providing rooms with favorable views.
▼国际交流会馆庭院,courtyard of the international guest house © Hidetoshi Ohno
▼开放式走廊,open corridor© Hidetoshi Ohno
为进一步强化这种立体构成,外部单面走廊以交错方式布置,内部涂成铁红色。该颜色的日文名称源自印度次大陆东部的孟加拉地区,经葡萄牙贸易传入日本,被称为“弁柄色”。作为一种源自土地的颜料,它既承载着跨地域流动的历史,也在某种意义上呼应了这一项目的跨国合作背景。
To further emphasize this three-dimensional composition, external galleries are arranged in an alternating pattern and finished in bengara (iron oxide red). The Japanese name of this color, bengara, traces back to Bengal in the eastern Indian subcontinent, reaching Japan through Portuguese trade. As a pigment drawn from the earth, it carries a history of long-distance movement and resonates with the local site context, while also echoing the project’s Japanese-backed development.
▼灰空间,gray space© Hidetoshi Ohno
▼细部,details© Hidetoshi Ohno
▼剖面图,section© IITH Campus Design Team, The University of Tokyo + NIHON SEKKEI + APL design workshop
国际会议中心:“房子”间、活动间的通道
Passages Connecting Activities: Convention Center
一所做前沿研究的大学,若不能在校内办大规模国际会议,就像没有一间体面的会客厅。可会议的好坏,并不只看台上的报告,还看茶歇时人往哪儿去,散会后愿不愿意留下来多说两句;很多真正的“交流”,往往都发生在议程之外。
▼国际会议中心草图,sketches of the convention center (CC)© IITH Campus Design Team, The University of Tokyo + NIHON SEKKEI + APL design workshop
For universities engaged in cutting-edge research, the ability to host large-scale international conferences on campus is a crucial factor in maintaining academic competitiveness. For facilities of this kind, the quality of a conference depends not only on formal sessions, but also on how participants spend their breaks and post-conference time, and on whether meaningful informal exchanges can occur.
▼国际会议中心外观,exterior view of the convention center (CC) © Hidetoshi Ohno
▼建筑围合出空间特质各不相同的庭院,the building encloses variously distinctive courtyards with their own unique characteristics© Hidetoshi Ohno
▼蓝色庭院,blue courtyard© Hidetoshi Ohno
会议中心于是被设计成一个由十四个独立“房子”组成的集合体。最大的房子装主会场,最小的只容得下一部电梯,还有两座干脆什么也不装,当作是露天庭院。每一座房子都被深远的屋檐包住,这是印度传统建筑里早已反复验证过的做法。对面的房子之间留出缝隙,让光线不多不少地渗进来。
▼国际会议中心平面图,plan of the convention center (CC) © IITH Campus Design Team, The University of Tokyo + NIHON SEKKEI + APL design workshop
To accommodate a wide range of spaces differing in size and function, the Convention Center is conceived as a village composed of fourteen independent houses, each with a distinctive role. The largest house contains the main conference hall, while the smallest houses only a single elevator; two houses are reserved as open courtyards. Each house is wrapped on all sides by deep eaves, an important element of traditional Indian architecture. Gaps between facing houses allow limited daylight to penetrate the complex.
▼设计突出了空间的立体构成,the design highlights the three-dimensional composition of the space© Hidetoshi Ohno
▼红色室内大厅,red interior hall© Hidetoshi Ohno
在房子之间移动——走檐下的阴影通道,或二层高度的“空中巷道”。当地一年里很长一段时间(十月至六月)是旱季,即便这些过渡空间没有空调,只要遮阳与通风处理得当,也可以保持舒适。
Circulation between the houses is organized through shaded passages beneath the eaves and a network of sky alleys at the second-floor level. These transitional spaces are not air-conditioned. In a climate where most of the year- from October to June- is dry season, thermal comfort can be achieved through shading and natural ventilation, even at high temperatures.
▼二层空间,upper floor space© Hidetoshi Ohno
▼仰视天花板,looking up to the ceiling© Hidetoshi Ohno
▼外观,exterior view© Hidetoshi Ohno
▼中庭,atrium© Hidetoshi Ohno
▼国际会议中心剖面图,sections of the convention center (CC) © IITH Campus Design Team, The University of Tokyo + NIHON SEKKEI + APL design workshop
学生活动中心:以传统建筑为原型的屋顶
Sports and Cultural Complex: Roof Inspired by Traditional Architecture
总体规划中,学生宿舍群在校园北部,旁边则计划了一组配套齐全的体育与文化设施:三座室内体育馆与一座文化活动楼,外面是泳池、露天剧场、足球场、板球场和跑道。
In the master plan, a residential zone with clustered student dormitories is located at the northern edge of the campus. Adjacent to this area, a group of facilities supporting athletic and cultural activities is planned. The Sports and Cultural Complex comprises three indoor gymnasium buildings and one building for cultural club activities, surrounded by outdoor facilities including a swimming pool, open-air theater, soccer field, cricket field, and running track, forming a comprehensive set of amenities.
▼学生活动中心鸟瞰,aerial view of the sports and cultural complex (SCC) © Hidetoshi Ohno
▼学生活动中心顶视图,top view of the sports and cultural complex (SCC) © Hidetoshi Ohno
▼学生活动中心远景,overall of the sports and cultural complex (SCC)© Hidetoshi Ohno
▼广场,plaza© Hidetoshi Ohno
挑战在屋顶:体育馆屋面跨度分别达 42 米与 49 米;文化活动楼为两跨结构,每跨 35 米。想要以钢筋混凝土经济地实现如此大的跨度,设计团队推到最后,认为折板体系几乎是唯一可行的办法。研究的过程中,他们注意到西孟加拉一些寺庙的屋顶形式,尤其是 17 世纪的乔尔邦拉寺(Jor Bangla Temple):曲线山墙,屋脊成拱,由两个相连的砌体量构成。将这种形式直译成钢筋混凝土,竟得到一种原砌体做法里未必具备的结构合理性——几乎是一种偶然获得的结构优势。
▼学生活动中心草图,sketches of the sports and cultural complex (SCC) © IITH Campus Design Team, The University of Tokyo + NIHON SEKKEI + APL design workshop
The indoor gymnasium roofs span 42 meters and 49 meters respectively, while the cultural activity building has two spans of 35 meters. To efficiently realize such large spans in reinforced concrete, the design team concluded that a folded-plate system was the only viable solution. During the study, they encountered examples of temples in the West Bengal region characterized by distinctive roof forms. Among these, the 17th-century Jor Bangla Temple is particularly notable for its curved gable roofs, whose ridgelines form arch-like profiles across two connected masonry volumes. Translating this form directly into a reinforced concrete structure yields a large-span roof system with a degree of structural rationality not present in the original construction- a coincidental but significant structural advantage.
▼外观概览,exterior views© Hidetoshi Ohno
▼大跨度的运动空间,Large-span sports space© Hidetoshi Ohno
▼钢筋混凝土经济地实现如此大的跨度,the reinforced concrete effectively achieves such a large span © Hidetoshi Ohno
▼室内视角,interior views© Hidetoshi Ohno
▼泳池,pool© Hidetoshi Ohno
屋面在山墙端部将出檐大大拉长,减少太阳辐射直入馆内,并形成可遮阴的步道,使人在烈日下也能移动。至于施工,日本团队最初想过用钢网喷射水泥来解决复杂的平滑连接,经过与印度方面反复讨论后,还是回到了更朴素的现浇混凝土加常规模板。结果证明,这个办法不但可靠,而且精度高,表面干净。事情到这里,不再有意料之外,只是按常理收了尾。
Departing from the temple prototype, the design extends the eaves significantly at the gable ends, creating shaded walkways that allow movement while avoiding intense sunlight and limiting excessive solar radiation from entering the gymnasiums. Due to the complexity of the smooth connections between the folded roof plates and the supporting elements, which together function structurally as an arch, the Japanese team initially considered a method in which cement would be sprayed onto steel mesh. Following discussions with Indian counterparts, the project adopted a conventional cast-in-place concrete method using standard formwork, resulting in a high level of construction accuracy and a refined surface finish.
▼屋面在山墙端部将出檐大大拉长 the design extends the eaves significantly at the gable ends © Hidetoshi Ohno
▼遮阴的步道,covered outdoor space© Hidetoshi Ohno
▼外观局部,exterior view© Hidetoshi Ohno
▼遮阴的步道,covered outdoor space© Hidetoshi Ohno
▼学生活动中心底层平面图,ground floor plan of the sports and cultural complex (SCC) © IITH Campus Design Team, The University of Tokyo + NIHON SEKKEI + APL design workshop
▼学生活动中心二层平面图,upper floor plan of the sports and cultural complex (SCC) © IITH Campus Design Team, The University of Tokyo + NIHON SEKKEI + APL design workshop
▼学生活动中心剖面图,sections of the sports and cultural complex (SCC) © IITH Campus Design Team, The University of Tokyo + NIHON SEKKEI + APL design workshop
▼剖面图细部,detailed section© IITH Campus Design Team, The University of Tokyo + NIHON SEKKEI + APL design workshop
▼校园总平面图,master plan of the campus© IITH Campus Design Team, The University of Tokyo + NIHON SEKKEI + APL design workshop
国际交流会馆
International Guest House
基地面积:16,346 m²
总建筑面积:30,123 m²
设计期间:2011年4月-2013年3月
施工期间:2019年3月-2022年2月
设计
东京大学 IITH 校园设计团队(方案设计):藤野阳三(项目负责人)、大野秀敏(设计负责人)、大岛耕平、外村和隆、木村留美
日本设计(方案设计协作,深化设计):远藤健*、小林利彦、户部芳行、西本良树、大岛未香子
APL design workshop(方案设计协作,深化设计):江口英树、田口佳树*
结构
东京大学 IITH 校园设计团队:佐藤淳(结构顾问)
日本设计(结构设计):小林秀雄、西川耕二、今富阳子*、田中康隆*
机电工程(MEP)
日本设计:石川修三*、玉村昇、大谷阳介、吉崎大助*、冈田有弘*、佐藤昌之、染川信行、星野秀明
监理:HCP
施工:L&T Technology Services
国际会议中心
Convention Center
基地面积:12,070 m²
总建筑面积:17,124 m²
设计期间:2012年4月-2014年2月
施工期间:2019年3月-2021年2月
设计
东京大学 IITH 校园设计团队(方案设计):藤野阳三(项目负责人)、大野秀敏(设计负责人)、大岛耕平、外村和隆、木村留美、田村顺子(行政)
日本设计(方案设计协作,深化设计):远藤健*、户部芳行、西本良树、大岛未香子
APL design worshop(方案设计协作,深化设计):江口英树、猪饲洋平*
结构
东京大学 IITH 校园设计团队:佐藤淳(结构顾问)
日本设计(结构设计):小林秀雄、西川耕二、今富阳子*、田中康隆*
机电工程(MEP)
日本设计:石川修三*、玉村昇、大谷阳介、针尾重树
监理:HCP
施工:L&T Technology Services
学生活动中心
Sports and Cultural Complex
基地面积:36,520 m²
总建筑面积:30,881 m²
设计期间:2011年4月-2013年3月
施工期间:2019年3月-2022年2月
设计
东京大学 IITH 校园设计团队(基本设计):藤野阳三(项目负责人)、大野秀敏、川添善行(设计负责人)、原裕介、本多敦、石川典贵、吉田周一郎(建筑设计)、龙宽子(环境规划顾问)、田村顺子(行政)
日本设计(方案设计协作,深化设计):远藤健*、小林利彦、户部芳行、西本良树、大岛未香子
APL design worshop(方案设计协作,深化设计):江口英树、田口佳树*
结构
东京大学 IITH 校园设计团队:佐藤淳(结构顾问)
日本设计(结构设计):小林秀雄、西川耕二、今富阳子*、田中康隆*
机电工程(MEP)
日本设计:石川修三*、玉村昇、大谷阳介、吉崎大助*、冈田有弘*、佐藤昌之、染川信行、星野秀明
监理:HCP
施工:L&T Technology Services
Project name: Indian Institute of Technology Hyderabad (IITH): International Guest House, Convention Center, Student and Cultural Complex
Project type: University campus public buildings
Design: IITH Campus Design Team, The University of Tokyo; NIHON SEKKEI; APL design workshop
Design year: 2011-2014
Completion Year: 2022
Leader designer & Team: Hidetoshi Ohno, Yoshiyuki Kawazoe, IITH Campus Design Team, The University of Tokyo
Project location: Hyderabad, India
Gross built area: 78,128 ㎡ (International Guest House: 30,123 ㎡; Convention Center: 17,124 ㎡; Student and Cultural Complex: 30,881 ㎡)
Photo credit: Hidetoshi Ohno, Masaki Hamada
Materials: Reinforced concrete (RC), cast-in-place construction using standard formwork
客服
消息
收藏
下载
最近






























































