查看完整案例

收藏

下载

翻译
GH10
Two-room apartment, 60 sq.m.
Architects: Dmitrii Koloskov, Daria Koloskova
Photo: Sergey Krasyuk
The GH10 project explores how form and light can become instruments of internal balance. The space is built on pure geometry and neutral materiality, where each volume is subordinated to the overall structure.
PROCESS
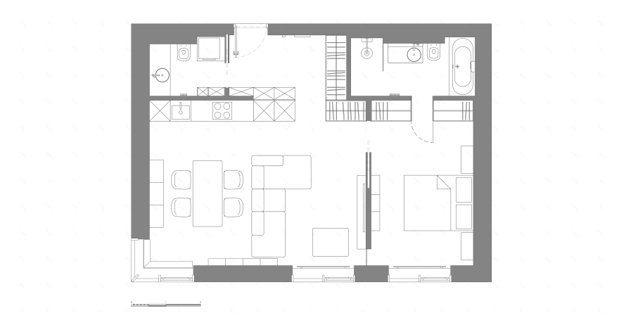
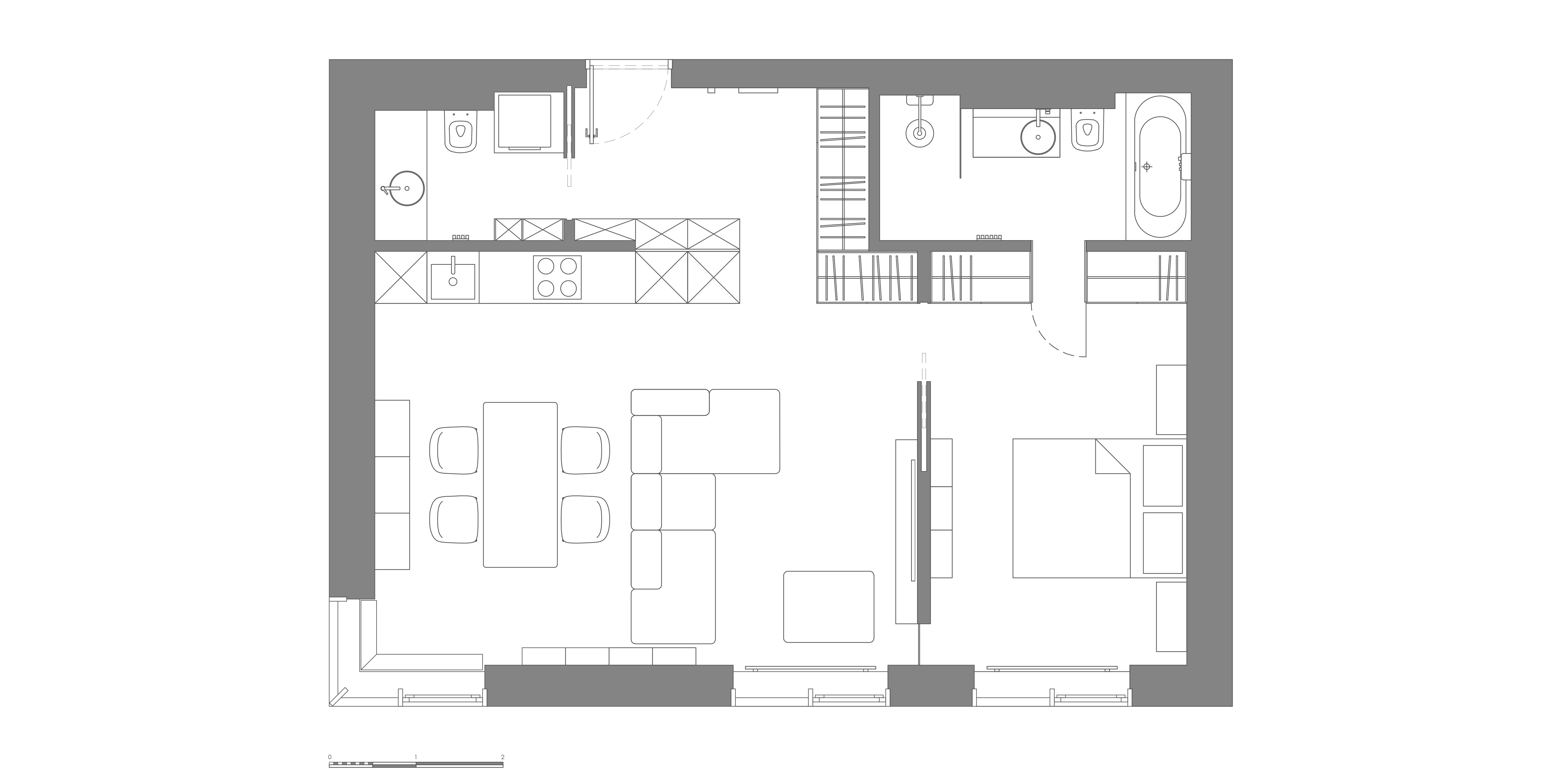
PLAN
The storage system became the basis of the layout—it organizes the space, defines proportions and rhythm. All technical elements and household details are hidden within a single perimeter of built-in cabinets, making the interior perceived as a monolith, rather than a collection of objects. Here, furniture and architecture are not separated—they merge into one.
Color here comes from outside. The white background becomes an instrument—it captures daylight, changing with it, reflecting the shades of the sky and the time of day.Most natural light is concentrated in the living areas. Glass and sliding partitions lighten the massive forms, creating lightness and fluidity. Structural minimalism does not restrict air—on the contrary, it allows it to move freely, leaving the space open and breathable. This project is about the balance between rationality and softness. Only light, air and form, collected into a single space.
Thank you!
客服
消息
收藏
下载
最近






























