查看完整案例

收藏

下载

翻译
Architects:Projectiles
Area:1800m²
Year:2026
Photographs:Sylvain Jouve
Category:Museum,Extension
Design Team:Projectiles
Landscape Architecture:Base
Engineering & Consulting > Civil:Batiserf
Engineering & Consulting > Mechanical:Louis Choulet
Engineering & Consulting > Quantity Surveying:BMF
Engineering & Consulting > Acoustic:Orfea acoustic
City:Aubusson
Country:France
The power of the site - The Aubusson Tapestry Museum is situated in an exceptional context shaped by a rich history and a powerful natural environment. The Creuse capital of tapestry has been marked by its history since the royal manufactory of the 14th century. Its landscape is characterized by a granite base carved by the Creuse and the Beauze rivers, flanked by two wooded hillsides. This entire valley-town is dotted with historic monuments that form the northern panorama of the museum garden, with at its center the Clock Tower, a remnant of the protective wall that once surrounded Aubusson.
The strength of this landscape is expressed through the movement of rocky horizons, revealed around the bend of a valley or a rising path. In some places, water sparkles amid chaotic rock formations; elsewhere, sphagnum moss and cotton grasses bloom in the heart of dense forests and wetlands—elements that owe their character to a preserved, sometimes dominant, natural environment. The museum extension project echoes this generous nature as seen from the northern garden across the opposite hillside. This staging of an idealized nature also extends into the dreamlike landscapes of tapestry art.
The architectural approach - "The garden is a carpet where the entire world comes to accomplish its symbolic perfection, and the carpet is a kind of mobile garden moving through space. The garden is the smallest parcel of the world, and yet it is the totality of the world. Since ancient times, the garden has been a kind of joyful and universalizing heterotopia." - Michel Foucault, Of Other Spaces (1967)
Historically, the carpet and the garden are closely linked. The Persian garden—the enclosed paradise—is at the heart of Persian carpet imagery. The carpet thus becomes a territory, a surface opening onto infinity. In the West, where carpets take on a more pictorial dimension, garden representations are also very present, particularly through vegetal motifs widely used in Aubusson tapestry. The extension project is rooted in this poetic dialogue. It is conceived primarily as a lush, landscaped garden from which a monolithic piece of architecture emerges at its center.
Located at the highest point of the site, the extension offers views toward the Clock Tower to the north, across the valley—also emerging from the vegetation—creating a visual dialogue at a distance. Upon closer observation, the monolith's surface is composed of fluted textures. These subtle variations in the thickness of the concrete create vibrations through cast shadows. The relief comes from the imprint of woven reed mats integrated into the formwork of the cast-in-place concrete. Rare glazed openings puncture the monolith, revealing the interiors and projecting them toward the landscape.
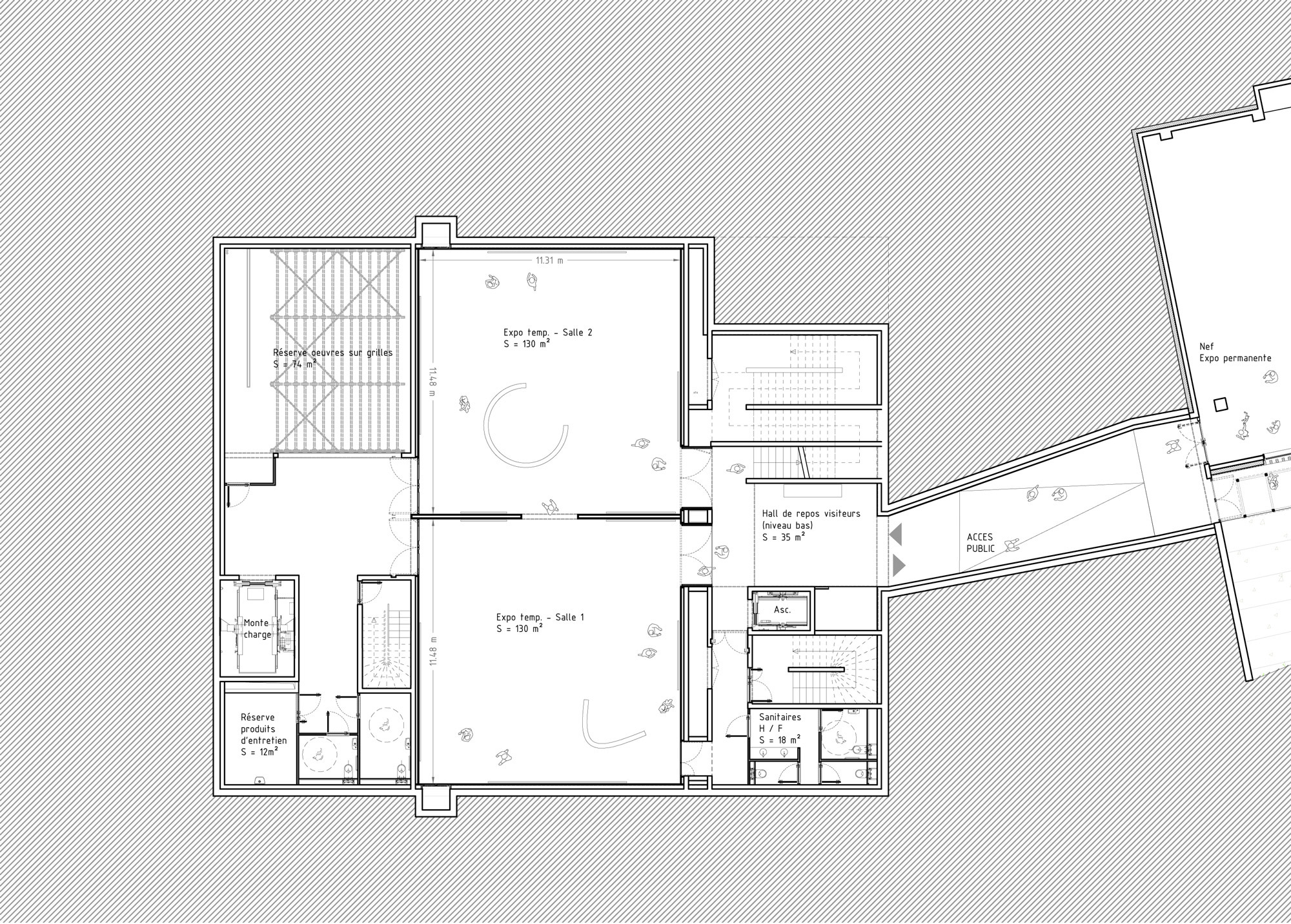
Siting - Set within the revitalized garden, the mineral mass is visually detached from the existing building. Placing the extension separately from the original structure preserves as much of the outdoor landscape as possible, particularly to the south of the grand nave. This maintains visual permeability on both sides of the built masses and allows for a larger garden. Moreover, the symmetrical cross-shaped plan of the existing building did not lend itself to a harmonious extension. The original structure already possesses a strong autonomy and is well integrated into its immediate site; distancing the extension preserves this balance.
The terrain naturally slopes upward. As a result, the extension sits at a higher level than the existing building. The project is organized on two levels: a lower level aligned with the grand nave, and an upper level directly connected to the parking area and delivery zone to the west. Connection is achieved through an underground gallery extending from the grand nave to the two-level entrance hall of the new building. On the lower level, the hall links the nave to the first two exhibition rooms; on the upper level, it opens onto the landscape, offering the most beautiful view of the site, and connects to the two other exhibition rooms.
Project gallery
客服
消息
收藏
下载
最近































