查看完整案例

收藏

下载
光凝雅序 | 境藏奢适
云幔在穹顶舒展成柔软的云,光影洒落地板,蹭过沙发的绒边,拂过案上青瓷。
同一方天地,年复一年,在城市的喧嚣里,筑造一处松弛的港湾,在时光的长河中,凿出一片停泊的暖。
平面图
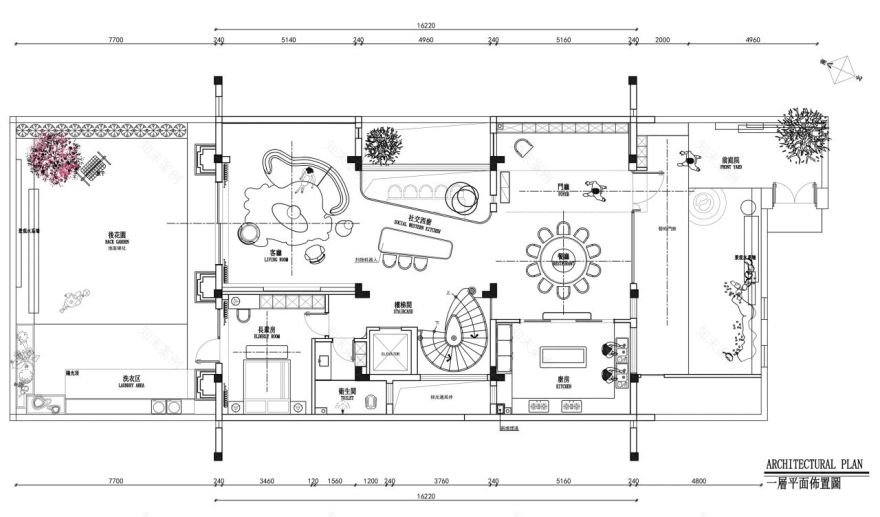
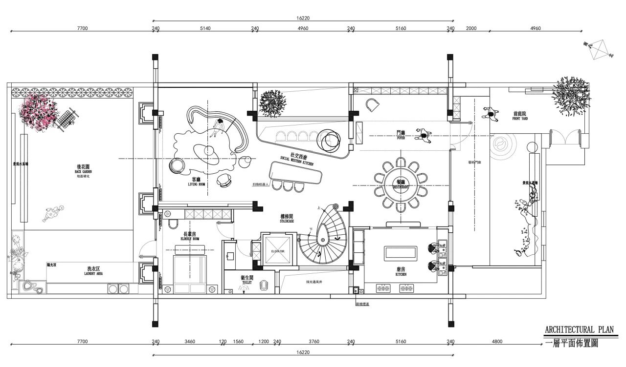
△ 一层平面图
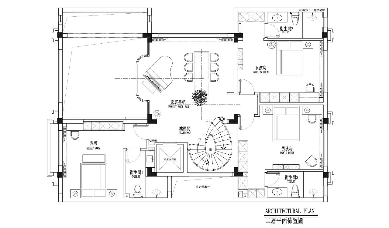
△ 二层平面图
△ 三层平面图
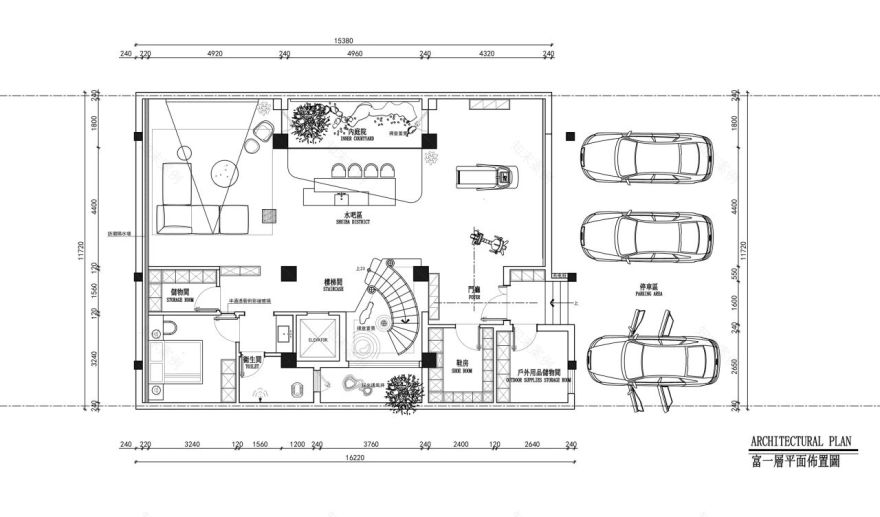
△ 负一层平面图 左右滑动,查看更多 →
△ 项目视频
设计理念
design theory
本案为独栋别墅私宅设计,以「克制的奢华,有温度的极简」为核心,摒弃过度装饰的堆砌。在黑白米咖的低饱和基调中,平衡东方意境与现代简约的美学张力。
设计围绕居者的生活习惯与精神诉求展开,将空间的功能性、艺术性与舒适度相融,打造一处既能承载家庭欢聚,又可安放个人心绪的私属宅邸。
一层
光影序章 通透共生
First Floor
整体空间以黑白对比构建视觉骨架,深黑木饰面的沉稳与米白墙面的温润碰撞,于细节处彰显轻奢格调。别墅一层以餐厨客一体化为核心,大厨房、大圆桌餐厅与6米挑高客厅相连,搭配灵活多用的小岛台,让烹饪、聚餐、休闲的家庭互动更为顺畅。挑空客厅的艺术装置吊灯,以舒展的形态呼应高挑层高,成为光影的核心载体。
清晨,阳光透过纱帘洒入,在墙面与地面铺就斑驳光影;傍晚,点光源与线性灯的柔和光晕交织,弱化空间边界的同时,营造出静谧慵懒的氛围。
负一层
静谧秘境 情绪疗愈
lower ground
负一层被设计为全家人的私属解压秘境,一处隔绝外界喧嚣的情绪避难所。
这里安安静静,无人打扰,足以卸下学习的烦忧与生活的琐碎。想运动时,便在健身区挥洒汗水;想小酌时,便邀友在吧台闲谈;想团聚时,便全家围坐影音室共度时光。这一方天地,是全家人的解压天堂,亦是精神的休憩角落。
二层
成长之翼 亲子共生
Second floor
二层设计以「成长型亲子互动空间」为核心亮点。双儿童房分列两侧,中间预留专属活动区,既为孩子们打造了玩耍、阅读、手工的共享天地,又通过与楼下客厅的挑空设计形成垂直互动。
孩子在二层活动时,能与楼下家人视觉呼应、轻松对话,打破了楼层的隔阂。独立儿童房保障了隐私与专注力,共享活动区培养了协作意识,挑空互动则让亲子陪伴不局限于同一楼层。设计既适配孩子成长阶段的多元需求,又让家庭氛围更显温馨通透。
三层
私域尊享 顶层视野
Third floor
三层以「私域尊享型全能主卧套」为设计重心。双开门入户仪式感拉满,60㎡超大主卧空间赋予充足的活动尺度,搭配独立衣帽间与奢阔浴室,构建集休憩、收纳、洗漱于一体的私享生活场域。
动线 时光纽带 旋梯串连
circulation
贯穿负一至顶楼的旋转楼梯,是家的动线核心,更是串起烟火与欢颜的时光纽带。每一级台阶,都藏着奋斗的足迹与生活的甘甜,连接着地下的静谧、地上的烟火与顶层的私享。
本案不追求风格的标签化,而是以生活为本,以美学为翼。在极简的形制中,藏着对材质、光影与细节的极致追求;在静谧的氛围里,承载着对家庭温暖、个人松弛的美好期许。于繁华处寻静谧,于简约中见奢适。这,便是本案想要传递的生活美学。
END.
项目信息
项目名称:湖南长沙天麓别墅私宅
项目地点:湖南,长沙
实用面积:800㎡
设计时间:2023年10月
完工时间:2025年10月
设计施工单位:山乙山合
主创设计师:唐亮
设计团队:陈伟霖、徐东洲、李昌勇
主要材料:华为鸿蒙智家·湖南亮迪格、山工木品,诗珑艺术涂料等
摄影:赵龙
唐亮
山乙山合/设计总监
北京山乙装饰工程设计有限公司创始合伙人
注册高级室内设计师
顶峰设计奖年度新锐建筑室内设计师
设计理念:不拘原始设计条件,创造新的空间生命力,尊重人与设计的结合,营造理想的生活方式。
个人经历:
- 2016中国国际室内设计双年展金奖
- 2017 CIID中国室内设计大赛金奖
- 2018 CIID中国室内设计大赛金奖
- 2019顶峰设计奖金奖
- 2020室内设年度封面菁英人物
- 2021 湖南顶峰设计金奖
- 2022年第25届CIID中国室内设计大奖赛“商业方案类”金奖(作品-石间出)
- 2023 40under40中国设计杰出青年
- 2024青私智库(青年设计师豪宅俱乐部)原创初始成员
山乙建设主营室内外空间设计、软装陈列设计、工程施工,产品以及核心技术研发。是一家以设计为主导,品质为前提,满足你对私人定制高标准需求的全案执行落地公司。
公司团队由一群屡获行内权威大奖的精英设计团队组成,有着非常丰富的多领域项目主持经验。秉承创新、改革、研究、功能衍生美学的设计理念,致力于突破室内设计行业大环境现状,打造独属于对品质有着高标准追求,对审美有着高标准要求的设计品牌。
公司拥有强大的研发团队,将针对设计体系,工程体系以及软装体系进行不断研发及创新。是国内富有创造力与艺术价值的设计企业之一。公司将秉承以设计证明私人定制的核心原则,以高标准的施工品质为前提保障,以高品质软装产品配套的基本原则服务于每一位客户。
客服
消息
收藏
下载
最近


































