查看完整案例

收藏

下载

翻译
DISEÑO DE UNA VIVIENDA NÓMADA: TINY HOUSE
BRIEFING:
El diseño del proyecto se basa en el estilo de vida y necesidades del usuario Darío Jara que actualmente es un estudiante de quinto ciclo de la carrera de Diseño de Interiores. Para la vivienda se consideró las dimensiones mínimas y justas para el uso diario además de tomar en cuenta que una vivienda nómada sobre ruedas tiene una altura maxíma de 4,50m. Tomando en cuenta esto se ha elaborado el proyecto en un área de 14,64 m2 sobre un remolque de acero trasportable por un vehículo. Dentro de esta tiny house se ha desarrollado espacios indispensables como lo son el dormitorio, cocina y baño añadiendo zonas de descanso como sala, un área exterior, estudio y un área verde que son espacios que forman parte de la rutina diaria del usuario. Para el diseño interior se tomo en cuenta como principal el estilo biofílico en un 50% el cual predomina sobre el estilo órganico que se maneja en un 30% creando un transición entre la naturaleza y el humano, por último se uso el estilo contemporáneo en un 20% incorporando tecnologías creando un espacio que genera confort y tranquilidad.
VIDEO ENTREVISTA A CLIENTE
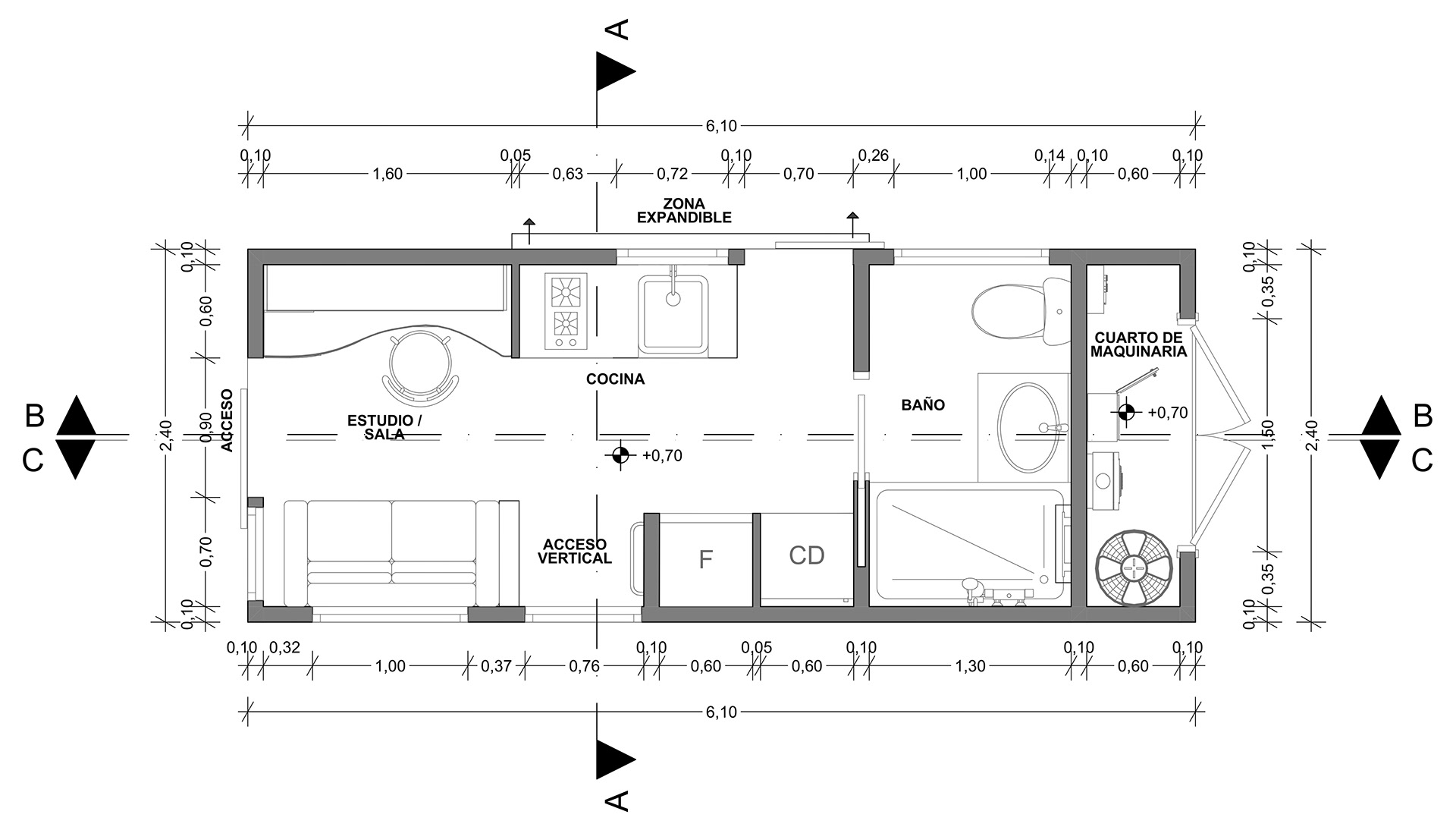
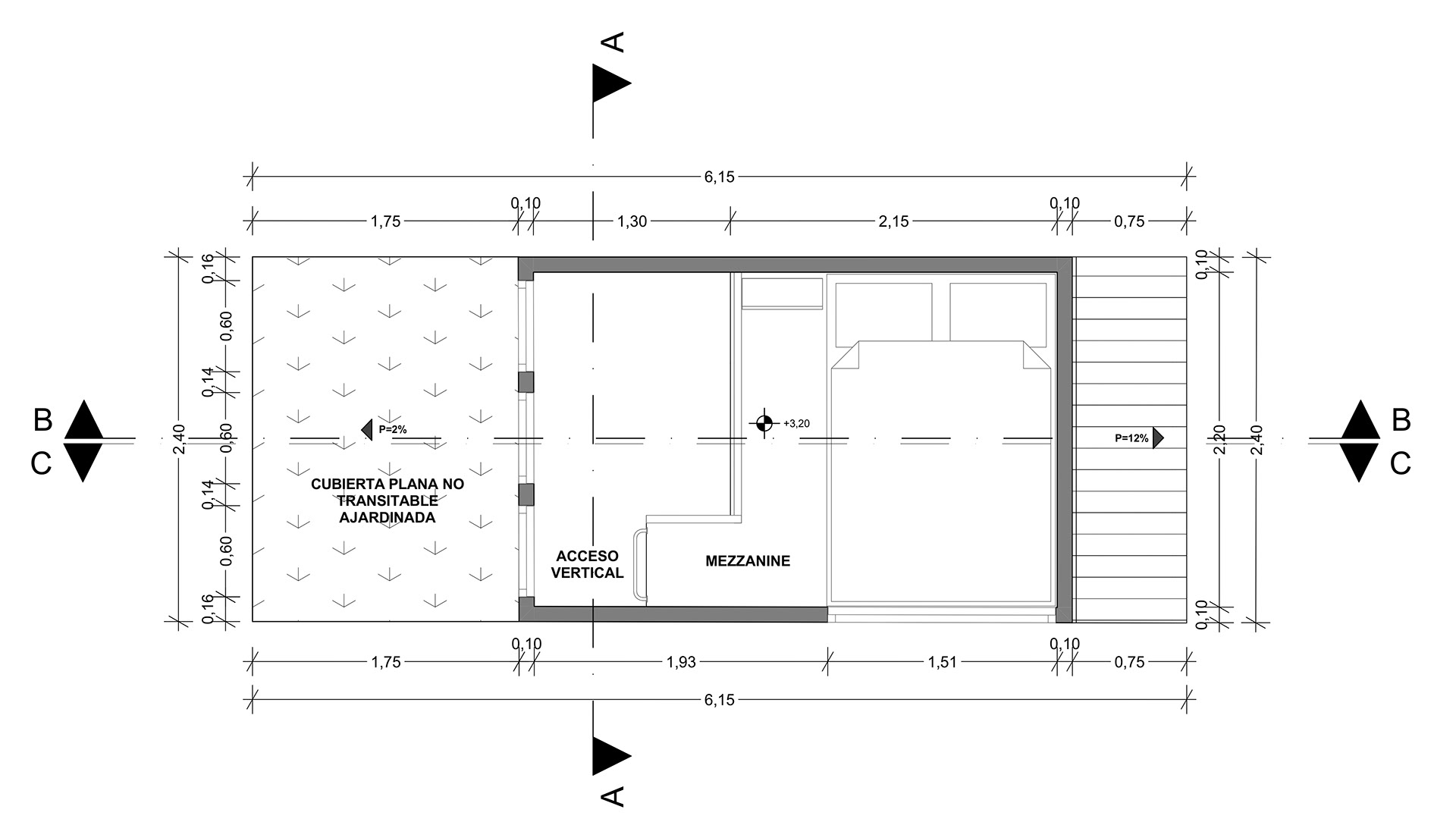
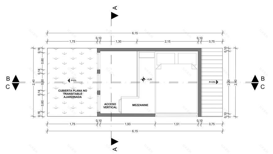
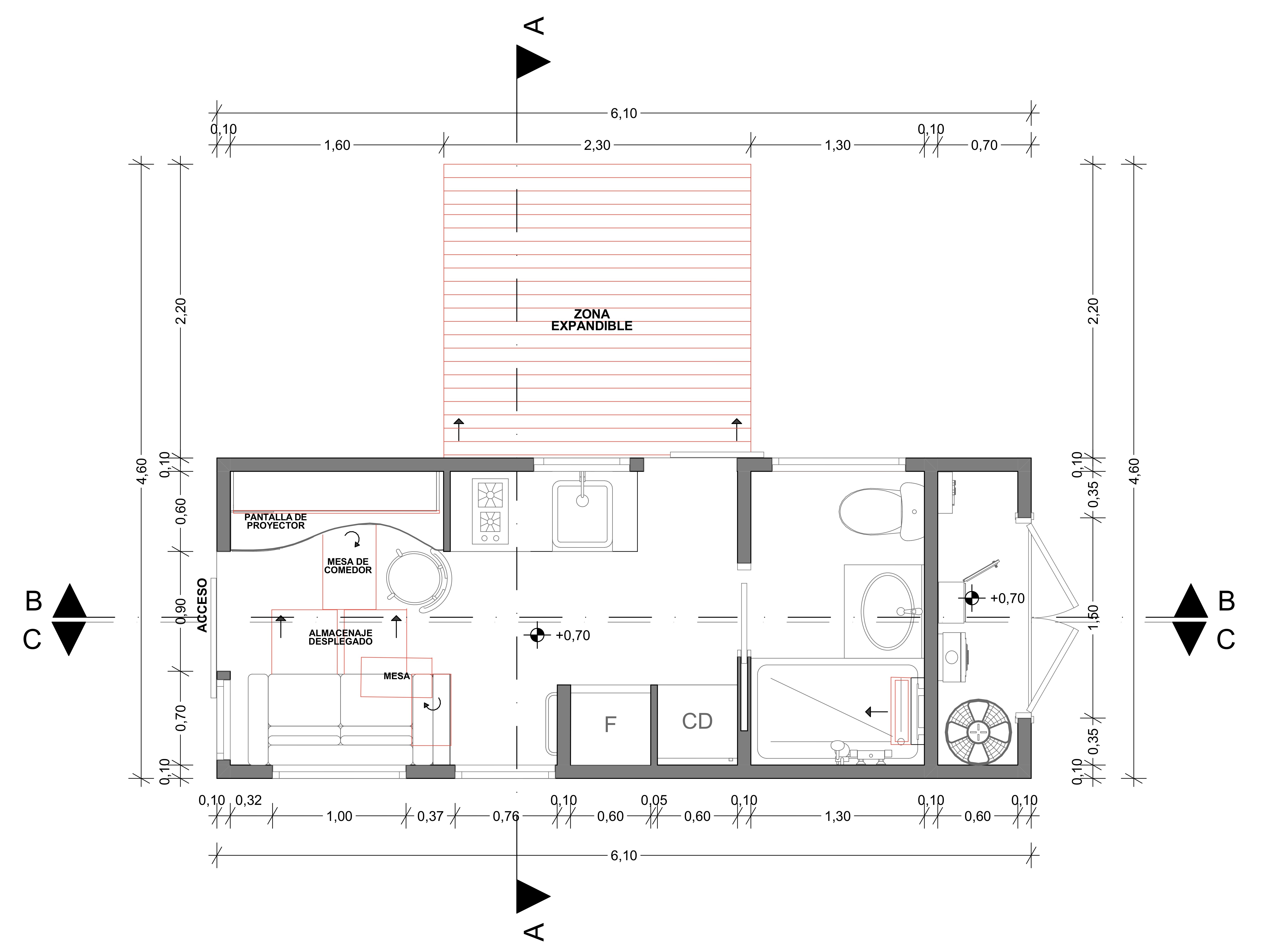
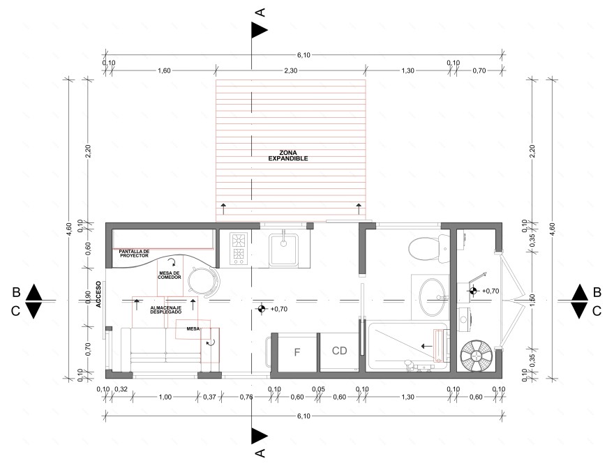
PLANIMETRÍAS
PLANTA BAJA PLEGADA Y MEZZANINE
PLANTA BAJA DESPLEGADA
ELEVACIONES
CORTES
CORTE A-A
CORTE B-B CORTE C-C
VIDEO 360°
VIDEO DE LA TINY HOUSE
RENDERS DIURNOS Y NOCTURNOS
DOSSIER INFORMATIVO DEL PROYECTO
Documento de modelado de tres mobiliarios en version zip 2023
客服
消息
收藏
下载
最近



















