查看完整案例

收藏

下载

翻译
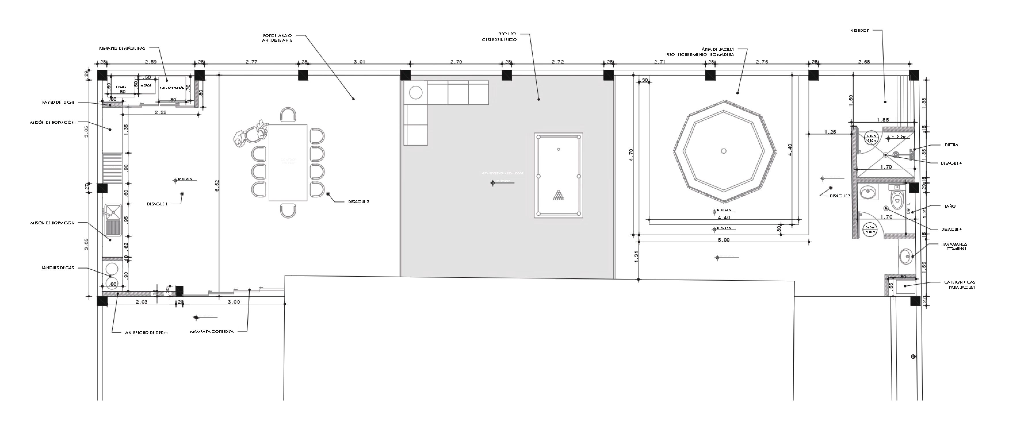
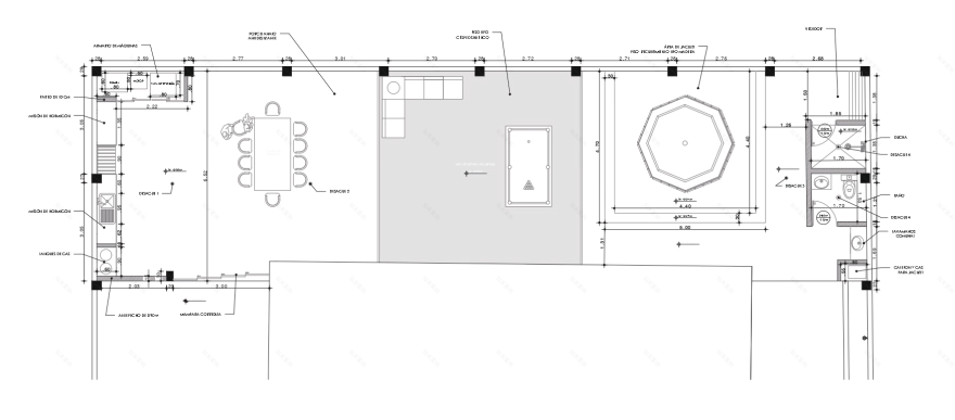
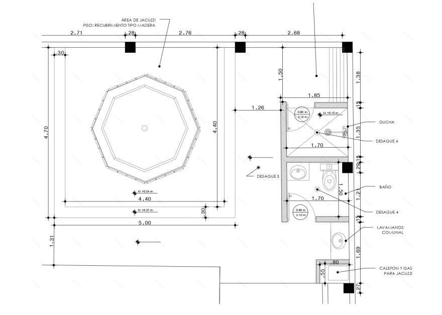
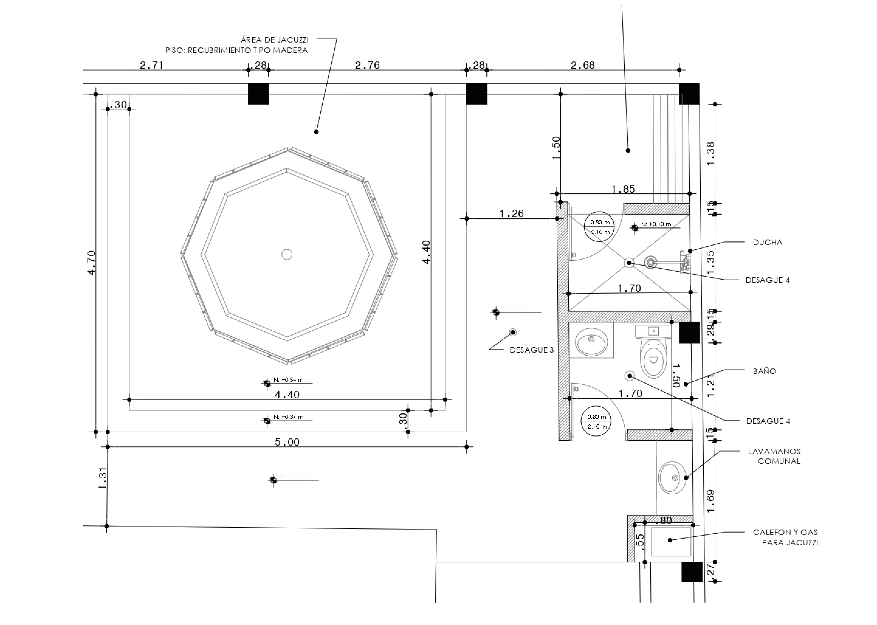
Esta zona BBQ se plantea como un espacio social sencillo, pero muy acogedor. La intención fue mantener una distribución clara y funcional, donde cada elemento se entiende rápido: área de preparación, área de apoyo y un lugar cómodo para reunirse sin que el espacio se sienta cargado.
Para lograr esa sensación de bienestar, trabajamos con materiales cálidos (texturas y tonos que “abrigan” visualmente) y una iluminación pensada para que el ambiente se sienta amable tanto de día como de noche. No es un diseño recargado: es un espacio que funciona, se disfruta y se mantiene.
Y como parte de nuestra forma de diseñar, integramos vegetación para que el lugar se perciba vivo. No como decoración, sino como un recurso que mejora el microclima, suaviza los bordes y aporta esa sensación de espacio biofílico: más fresco, más natural y más habitable.
客服
消息
收藏
下载
最近



















