查看完整案例

收藏

下载

翻译
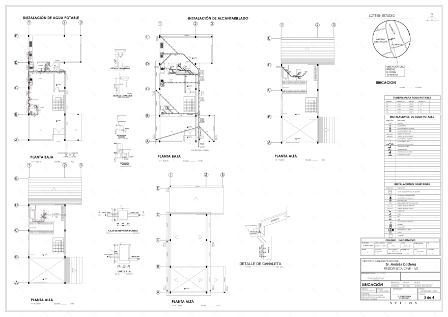
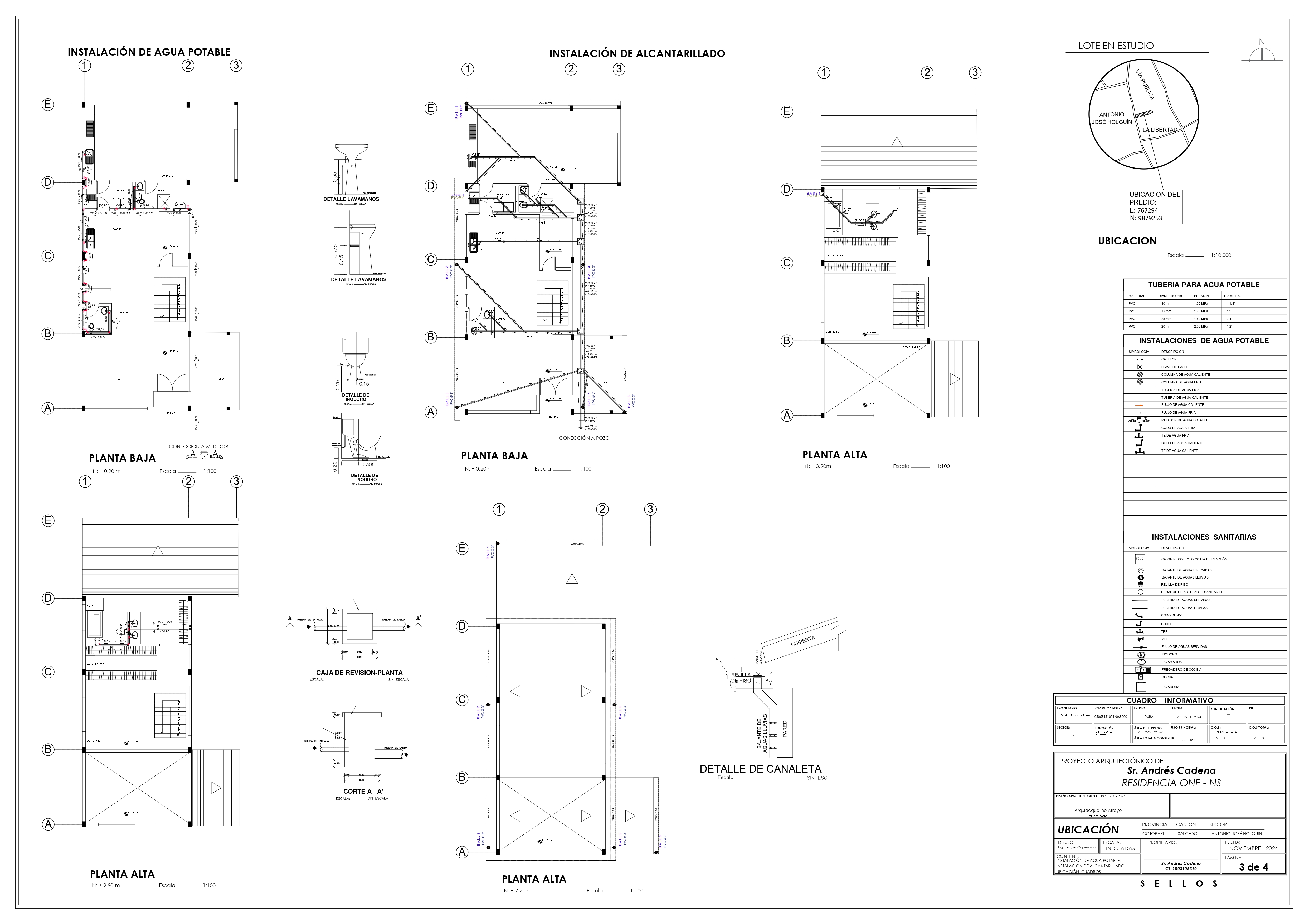
Este proyecto se ubica en la ciudad de Salcedo. Es una vivienda de 4000 m² por planta, organizada para que el espacio se sienta amplio y fluido. Incorporamos una mezanine que activa el interior con un juego de doble altura, mejorando la entrada de luz, las visuales y la experiencia espacial desde distintos puntos de la casa.
La propuesta combina materiales modernos —estructura metálica vista, tonos neutros, madera y texturas pétreas— para lograr un lenguaje contemporáneo, sobrio y cálido a la vez. El diseño busca una conjugación clara entre arquitectura y entorno: aperturas controladas, recorridos limpios y una relación directa con el jardín como extensión del área social.
Como complemento, se desarrolló un área BBQ pensada para el uso cotidiano: un espacio exterior funcional, protegido y listo para reuniones, donde la sombra, la ventilación y la materialidad sostienen la atmósfera del proyecto.
客服
消息
收藏
下载
最近















