查看完整案例

收藏

下载

翻译
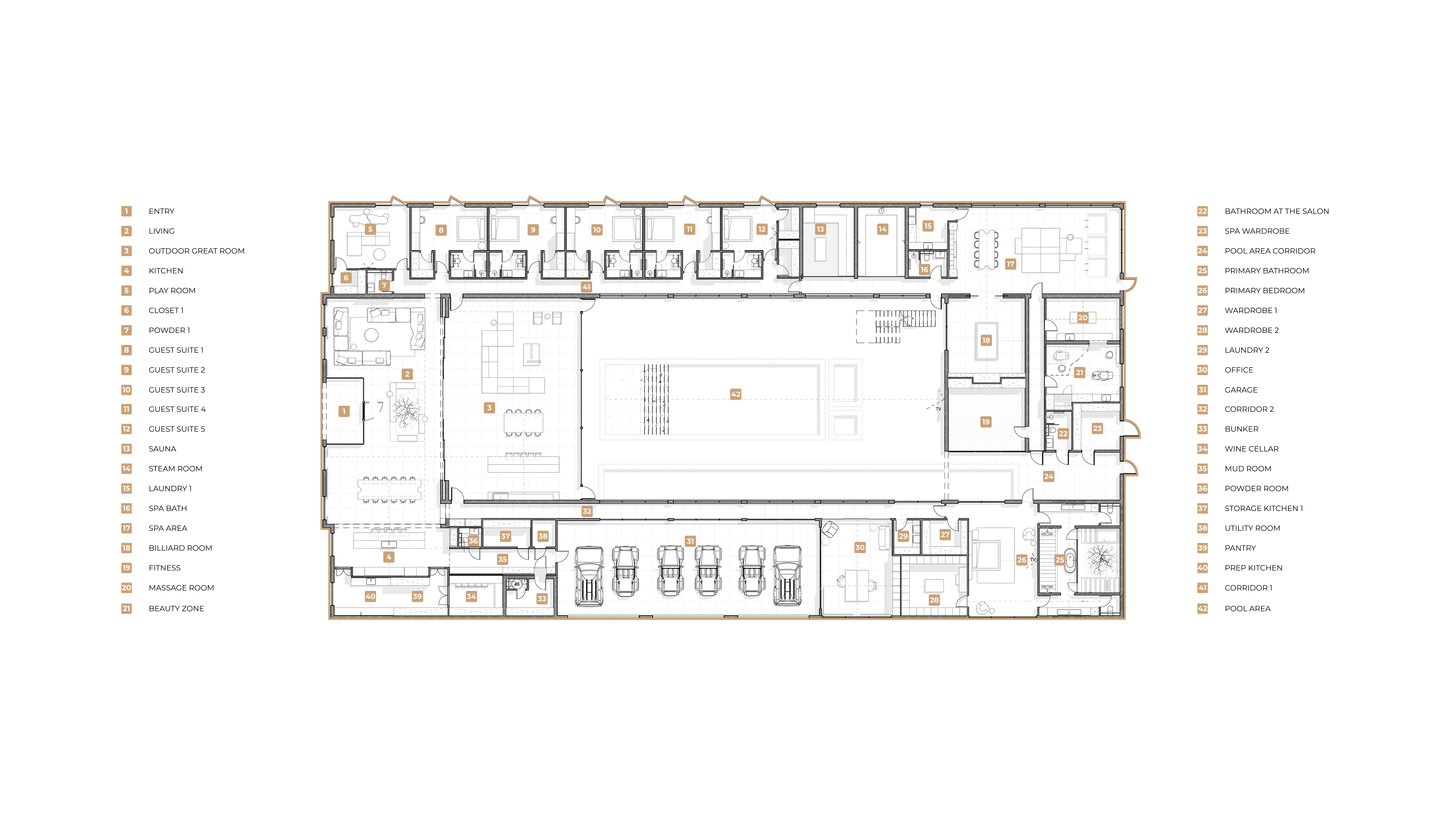
NAPLES RESIDENCE
АРХИТЕКТОРЫ: Филипп Трофимчук, Александра АнтоноваВИЗУАЛИЗАЦИЯ: Яромич МаксимЛАНДШАФТНЫЙ ДИЗАЙН: Александра Антонова
СТУДИЯ: ZROBIM architectsРАСПОЛОЖЕНИЕ: Нейплс, ФлоридаПЛОЩАДЬ: 1811 м2ГОД: 2025КАТЕГОРИЯ: Частные дома
Описание проекта:Проект начинался с крупного одноэтажного здания площадью около 1500 м². Существующей планировке не хватало чёткости и выразительности. Здание вытягивалось по участку без заметного входа и ярких акцентов.
Новая концепция предлагает выразительную входную композицию, которая организует фасад и придаёт дому характер. Каменные скульптуры у входа создают интересный ландшафтный элемент, превращая подход к дому в арт-пространство. Рядом расположен каменный фонтан, который связывает внешние зоны в цельную композицию.
Исходное расположение окон было сохранено. В тактильных зонах добавлены деревянные панели с приятной текстурой — они привносят тепло и подчёркивают светлые объёмы. Архитектурный образ основан на гармонии тёмного дерева и мягких нейтральных оттенков.
Участок разделён на несколько приватных и общих зон. Входная часть открывается в благоустроенные дворики с террасами у спален, где размещены костровые зоны и габионы, создающие чувство уединения. Отдельная зона отдыха включает спортивную и игровую площадки, пруд с беседкой и небольшой естественный пляж. Многофункциональная спортивная площадка завершает композицию, окружённая спокойным рельефом и сохранённой растительностью.
В результате, спокойная и цельная резиденция, объединяющая масштаб, ритм и природные материалы в гармоничном архитектурном ландшафте.
客服
消息
收藏
下载
最近
















