查看完整案例

收藏

下载
引言
Introduction
城建档案是城市建设中形成的具有保存价值的文字、图表、影像等各种载体的技术资料,是历史的真实记录,是社会的宝贵财富,是人们研究历史、总结规律、规划未来的信息源泉。长沙城建信息中心其前身长沙市城建档案馆成立于1980年,为国家第一批城建信息中心,承载着长沙城建资料的收藏、整理与共享使命。馆藏的老地图其绘制技术及所示的位置与现代地图大体相近,这不仅是我国,也是世界上现存最早、科学水平相当高的实用性的彩色地图,它为我国地图史的研究提供了重要的资料,被世界誉为“惊人的发现”,更是城建信息中心最珍贵的资料之一。
▼长沙市城建档案馆及馆藏老地图,Changsha Urban Construction Archives and Its Collection of Antique Maps © 罗劲工作室
Urban construction archives are technical materials of preservation value formed during urban development, encompassing various media such as texts, charts, and images. They serve as authentic records of history, valuable assets of society, and essential information resources for people to study history, summarize patterns, and plan for the future. The Changsha Urban Construction Information Center, formerly the Changsha Urban Construction Archives established in 1980, stands as one of the first urban construction archives in the nation, bearing the mission of collecting, organizing, and sharing Changsha’s urban construction documentation. The antique maps preserved in its collection feature cartographic techniques and depicted locations remarkably similar to modern maps. These represent not only China’s but also the world’s earliest surviving practical color maps with considerable scientific sophistication, providing crucial materials for the study of cartographic history and earning international acclaim as a “remarkable discovery.” They remain among the most precious holdings of the Urban Construction Information Center.
▼城市西南角鸟瞰视角,Aerial View from the Southwest Corner of the City © 夏至
脚踏这片浸润着城市建设史的土地,马王堆汉墓帛画中“井”字街巷的规划智慧,从汉代夯土城墙到明清“九门九关”的城垣变迁,皆在脑海中浮现。这座建筑作为城市建设记忆的容器,理应成为长沙营城史的立体表达,让档案的静与城市的动相融,这一初衷成为设计创作的核心执念。
Standing on this land steeped in the history of urban construction, the planning wisdom of the grid-pattern streets depicted in the Mawangdui Han Tomb silk painting, along with the evolution of the city walls from the rammed-earth fortifications of the Han Dynasty to the “nine gates and nine passes” of the Ming and Qing periods, all come to mind. As a vessel preserving the memory of urban construction, this building is meant to become a three-dimensional expression of Changsha’s city-building history, allowing the stillness of archives to merge with the dynamism of the city. This original intention became the core conviction driving the design.
▼档案库房“悬浮”于塔楼部分,Archival Storage “Suspended” in the Tower Portion © 夏至
基本情况
Basic Information
项目坐落于岳麓大道以北、岳华路以西,紧邻长沙市政府,是城市核心发展轴的关键节点。场地呈狭长形态,东西向存在5米自然高差,周边建筑平铺而密集,场地在80米高度可远眺湘江。
The project is situated north of Yuelu Avenue and west of Yuehua Road, adjacent to the Changsha Municipal Government, occupying a key node on the city’s central development axis. The site features a narrow and elongated form with a natural elevation difference of 5 meters from east to west. The surrounding buildings are low-rise and densely arranged, while from a height of 80 meters on the site, a distant view of the Xiangjiang River unfolds.
▼基地与周边环境,Site and Surrounding Context © 罗劲工作室
面对城市信息中心功能的大体量需求与狭长地块上建筑对城市的压迫感之间的矛盾,我们从场地东西向5米高差为设计切入点,通过”双首层”策略将地形劣势转化为立体公共空间,架空层与活动平台形成城市活力纽带。8925㎡的狭长用地上,51672㎡的建筑体量通过”峡谷式”多向架空、”像素化”切割等手法消解压迫感,与周边密集建筑形成和谐对话。
To reconcile the large spatial demand of an urban information center with the spatial pressure of a narrow site, we used the 5-meter east-west elevation difference to create a “dual-ground-floor” strategy. This turns the topographical constraint into multi-level public spaces, with elevated platforms serving as urban connectors. On the 8,925㎡ site, the 51,672㎡ volume is mediated through “canyon-like” openings and “pixelated” cuts, creating a harmonious dialogue with the surrounding dense urban fabric.
▼城市东北角鸟瞰视角,Aerial View from the Northeast Corner of the City © 夏至
设计表达
Design Expression
1. 地图——延续城脉记忆|Maps ——Weaving the Memory of the Urban Fabric
设计以“砌筑的城市”为灵感,将长沙城建史化作一部立体的“石头史书”。采用“迹忆”的设计语言,将城墙、街巷、桥梁、江水等城市记忆刻入建筑肌理,抽象的“井”字形布局在立面纵横切分出深浅不一的峡谷式内凹空间,如历史长河冲刷的印记,既将庞大体量化整为零,消解临街压迫感,又通过光影变化赋予建筑生命感知。深色陶板幕墙阴刻出老城肌理,冲刷出长沙城一直未曾改变的中心节点;塔楼库房在无采光要求的条件下,巧妙运用错位肌理的横向条窗暗喻刻入“史书”的文字,又仿佛遥远深邃的目光,注视着三千年的城市变迁。
▼方案草图,Conceptual Sketches © 罗劲工作室
▼方案形体生成,Form Generation © 罗劲工作室
Inspired by the “masonry city,” the design transforms Changsha’s urban history into a three-dimensional “stone chronicle.” Using the design language of “trace memory,” it embeds the city’s walls, streets, bridges, and river into the building’s texture. An abstract grid pattern, like marks etched by history, carves canyon-like recesses of varying depths across the facade. This fragment the massive volume, soften its presence on the street, and animate the building with a sense of life through the interplay of light and shadow. The dark terracotta panel façade is subtly etched with the texture of the old city, revealing the enduring central node of Changsha. On the tower’s storage floors—where daylight is not required—horizontally aligned windows with staggered textures metaphorically suggest script carved into the “stone chronicle,” while evoking a distant, profound gaze overlooking three thousand years of urban transformation.
▼城市东南角街景人视角,Street-level Eye-level View from the Southeast Corner of the City © 夏至
▼立面峡谷式内凹空间,Canyon-like Recesses on the Facade © 夏至
▼错位肌理的横向条窗/幕墙上写意的地图拓印,Horizontal Ribbon Windows with Staggered Texture / Imprints of Antique Maps on the Curtain Wall © 罗劲工作室
建筑顶部退台形成的空中文化沙龙、瞭望平台形如天心阁的城墙洞口,可以远眺湘江。侧墙上利用锈蚀钢板刻印的古城邑图若隐若现,展示从古到今的城市发展的脉络。
The rooftop cultural salon and observation platform, formed by stepped terraces, evoke the ancient city wall openings of Tianxin Pavilion, offering a distant view of the Xiangjiang River. On the side walls, rusted steel plates are etched with faintly visible ancient city maps, tracing the lineage of urban development from past to present.
▼屋顶空中瞭望平台,Rooftop Observation Deck © 夏至
2. 裂痕——城市有机织补|Fractures — Towards an Organic Urban Repair
建筑为消解体量,形成东西南北四条凹槽,南部的主入口处上下贯通,斜切开洞,更是如历史长河般倾泻而下。中间结合二、三层展陈查阅空间的错落分布,形成多条错动的走廊,将东西两个建筑体块自然连接,满足市民查阅档案、参观展览、休闲交流等多元需求,也仿佛城市裂痕的有机织补,给人强烈的视觉冲击。
To break down the building’s mass, four vertical grooves are carved along its east, west, north, and south sides. At the south entrance, a diagonal cut slices through the volume—like a torrent of history pouring down. Inside, staggered exhibition and archive spaces on the second and third floors generate interlocking corridors that bridge the eastern and western volumes. These pathways accommodate public activities—archival research, exhibitions, leisure—while symbolically mending the fragmented urban fabric, leaving a striking visual impression.
▼城建信息中心南侧主入口人视角,Eye-level View of the Main South Entrance of the Urban Construction Information Center © 夏至
▼空间的错落分布,Articulated Spatial Distribution © 夏至
▼错动的走廊,Staggered Corridor © 夏至
这些特色节点的实现依托创新型钢混凝土组合结构体系。针对穿层柱、斜柱难点,梁柱内设置型钢以增强抗弯受拉性能;采用钢支模解决人工挖孔桩塌孔问题,保障单桩承载力达标。同时因存在扭转不规则、楼板不连续等不规则项,采用YJK与MIDAS双软件对比计算小震弹性响应;明确中震、大震各阶段性能水准;补充弹性时程及动力弹塑性分析,确保层间位移角合规;细化关键构件专项分析,优化设计保障受力安全。
▼现场结构施工实景,On-site Structural Construction Views © 罗劲工作室
These distinctive features are made possible by an innovative steel-concrete composite structural system. To address challenges such as columns penetrating multiple floors and inclined columns, steel sections are embedded in beams and columns to enhance bending and tensile capacity. Steel formwork is used to prevent collapse during manual excavation of pile foundations, ensuring the bearing capacity of individual piles meets requirements. Given the structural irregularities—including torsional irregularities and floor discontinuities—both YJK and MIDAS software are employed to calculate elastic responses under frequent earthquakes. Performance objectives for moderate and rare earthquakes are clearly defined, supplemented by elastic time-history and dynamic elastoplastic analyses to ensure inter-story drift compliance. Detailed analysis of critical components is conducted to refine the design and guarantee structural safety.
▼建筑结构复杂节点,Complex Structural Joints © 罗劲工作室/夏至
3. 石书——悬浮空中库房|Stone Book — The Suspended Archive
项目突破传统档案馆的封闭保管模式,向图书馆、博物馆功能延伸,实现公共资源集约化与开放式管理,推动档案资源从“封闭库房”向“公共共享空间”转型。针对长沙湿热气候及狭小地块的局限,项目将档案库房“悬浮”于塔楼部分,形成垂直上下分区,管理安全方便的同时留出下部开放空间,构建功能与技术深度融合的有机整体。
▼功能爆炸轴测图,Exploded Axonometric Diagram of Functions © 罗劲工作室
Breaking away from the traditional closed-storage model of archives, the project extends its functions toward those of a library and museum, achieving intensified public resources and open management. It transforms archival resources from “closed repositories” into “public shared spaces.” Responding to Changsha’s hot and humid climate and the constraints of a narrow site, the project “suspends” the archival storage in the tower portion, creating a vertical division between upper and lower zones. This ensures secure and convenient management while freeing up open space below, forming an organic whole where function and technology are deeply integrated.
▼档案库房“悬浮”于塔楼部分,Archival Storage “Suspended” in the Tower Portion © 夏至
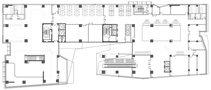
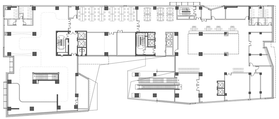
裙房及首层对外开放;二层集中布置查询、阅览及陈列展示功能,大扶梯连通首层架空层,拓展公共流线;三至五层为内部办公与档案整理用房,与上部库房便捷联动且隔离外部干扰;六至二十二层为档案库房,以核心筒为中心划分为三个库区,最短走道连接,提升管理效率。
The podium and ground floor are open to the public. The second floor centrally accommodates inquiry, reading, and exhibition functions, with a grand escalator connecting to the elevated ground floor to extend public circulation. The third to fifth floors accommodate internal offices and archival processing spaces, offering convenient access to the upper storage areas while remaining isolated from external interference. The sixth to twenty-second floors are dedicated to archival storage, divided into three zones around the central core and connected by the shortest possible corridors to enhance management efficiency.
▼接待大厅/首层电梯厅,Reception Hall / Ground Floor Elevator Lobby © 罗劲工作室
▼走廊/恒温恒湿库房,Corridor / Constant Temperature and Humidity Storage © 罗劲工作室
考虑档案安全至上,选用特殊玻璃有效吸收紫外线,设置双层墙体,空调采用恒温恒湿机组保持库房湿度稳定,采用高压细水雾消防系统保障档案安全。
Prioritizing archival safety, special glass is selected to effectively absorb ultraviolet rays, and double-layer walls are installed. Constant temperature and humidity air-conditioning units maintain stable humidity in the storage areas, while a high-pressure water mist fire protection system ensures the security of the archives.
▼建筑东侧/西侧出入口,East / West Building Entrances © 夏至
4. 长廊,城市多维体验|Promenade — A Multidimensional Urban Experience
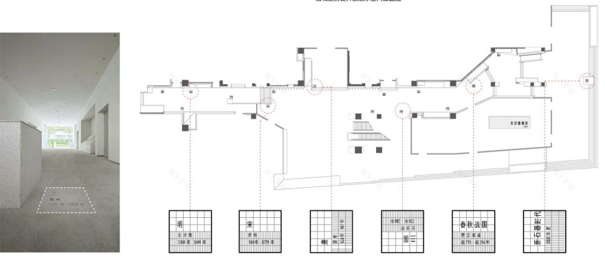
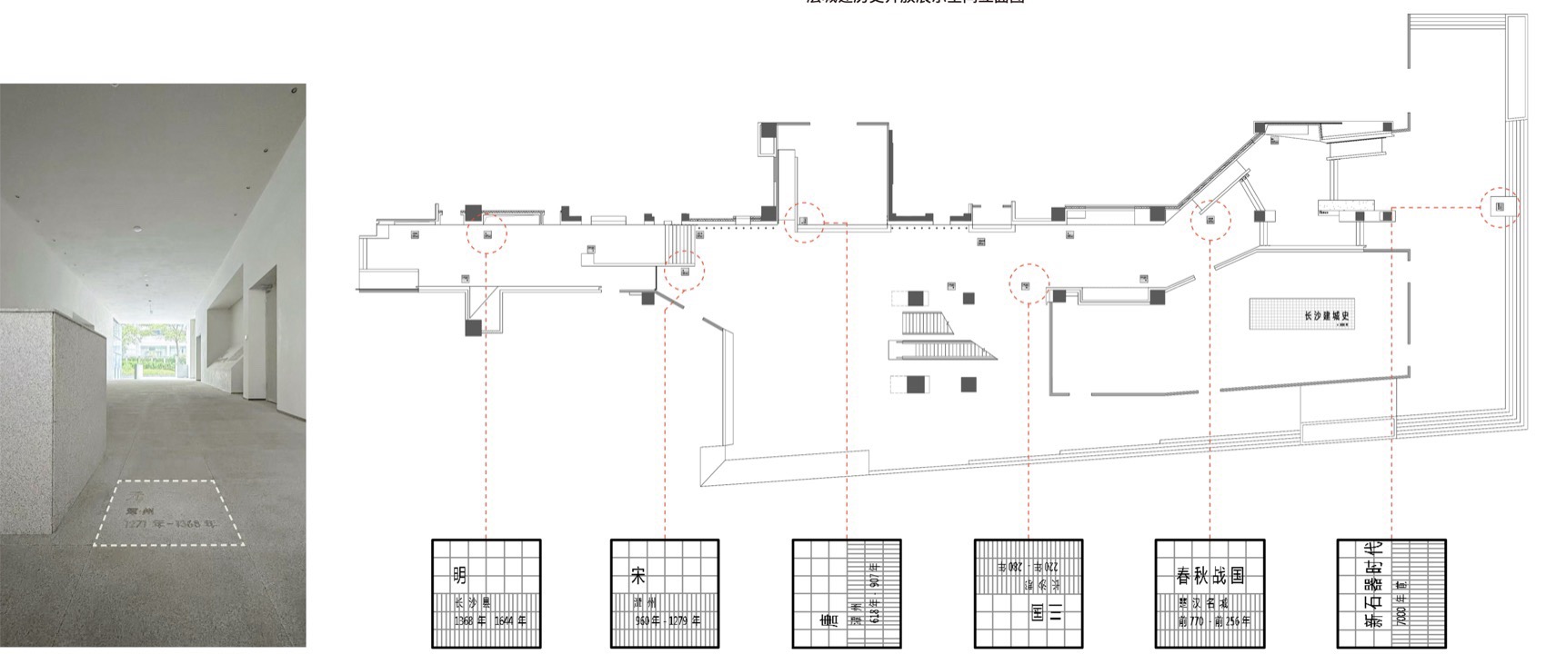
首层架空长廊多方位向城市开放,景观铺装抽象化长沙纵横交错的街道肌理,与建筑立面设计语言统一,从建筑延伸至场地的“街巷”,让市民穿行其间如穿梭在长沙三千年城建历史中;编年史地砖与景观铭牌散落其中,每一步皆是对城市记忆的触碰。三层台地巧妙化解5米地形高差,将场地与城市自然融合,东侧出入口结合台阶设置停留空间,为人行道留足缓冲,拾级而上与顶部空中观景平台遥相辉映,形成建筑 – 景观 – 室内三者融合的多维视角。
The elevated ground-floor promenade opens itself to the city on multiple sides. Its paving, an abstract representation of Changsha’s crisscrossing street grid, echoes the architectural language—extending “streets” from the building into the site, inviting visitors to wander through three thousand years of urban history. Scattered throughout are chronicle pavers and commemorative plaques; with every step, one touches the city’s memory. A three-level terrace gently resolves the five-meter site gradient, merging ground with city. At the east entrance, steps are paired with resting spaces, giving pedestrians room to pause. Climbing these stairs, one’s gaze meets the rooftop observatory above—a fusion of architecture, landscape, and interior unfolding across multiple dimensions.
▼首层城建展陈开放空间,Ground Floor Open Exhibition Space for Urban Construction © 夏至
▼首层城建展陈开放空间,Ground Floor Open Exhibition Space for Urban Construction © 罗劲工作室
最终形成的是一部可阅读的城建史诗——当参观者穿越”时空隧道”长廊,汉代城邑图的夯土声与智能建造的嗡鸣在此共鸣,共同诠释”以水为脉,以城为书,以民为魂”的营城初心。打开给市民的城市空间,再次成为温暖的记忆的载体。
What ultimately emerges is a legible urban construction epic — as visitors journey through the “time-space tunnel” promenade, the echoes of rammed earth from Han-dynasty city maps resonate with the hum of intelligent construction. Together, they articulate the founding vision of the city: “Water as the vein, the city as a book, and its people as the soul.” Opened up to the public, this urban space once again becomes a vessel for warm memories.
▼首层开放展廊编年史地砖景观铭牌位置及实景,Location and Views of Chronological Floor Tiles and Landscape Plaques in the Ground Floor Open Exhibition Gallery © 罗劲工作室
5. 智慧低碳,构筑绿色标杆|Smart & Low-Carbon: Building a Green Benchmark
智慧层面,以IBMS+BIM高度集成化平台为核心,实现建筑实体与数字模型的动态交互,破解信息孤岛难题;BIM与物联网全域感知技术支撑精细化管控,管线综合与模块化机房提升工程品质,高精度环境传感、智能安防终端为档案安全筑牢防线,让沉睡的工程图纸在数字空间重生。同时系统性应用“四新技术”,BIM优化设计减少材料浪费,模块化产品降低施工损耗,能源管理、楼宇自控与智能照明联动,实现精细能源调控。
At the smart technology level, an integrated IBMS + BIM platform enables dynamic interaction between the building and its digital model, breaking down information silos. BIM and IoT sensing support precise control, while integrated piping and modular equipment rooms enhance construction quality. High-precision sensors and intelligent security terminals safeguard archives, bringing dormant engineering drawings to life in digital space. Systematic application of “four new technologies”—with BIM optimizing design to reduce material waste, modular products cutting construction losses, and integrated energy management, automation, and lighting—achieves precise energy control.
▼BIM相关专业模型,BIM Models © 罗劲工作室
绿色层面,始终遵循因地制宜、被动优先、主动优化原则,让绿色融于设计细节。借势地形打造台地与架空层,南侧内凹主入口通高灰空间与空中花园形成立体“风道”,最大化实现自然通风与采光;屋顶铺设光伏板进行绿色发电;干挂陶板与水平内收的“檐下空间”打造高效水平遮阳,种植屋面、通风架空屋面与档案库区双层外墙,大幅提升建筑保温隔热性能。外立面陶板以天然陶土为原料,环保可回收且兼具保温、降噪、耐久性能。
On the green front, the design follows site-specific strategies—prioritizing passive solutions before active optimization—embedding sustainability into every detail. Terraces and elevated open floors respond to the terrain; a south-facing recessed entrance and sky gardens form a vertical “air corridor” that maximizes natural ventilation and daylight. Photovoltaic panels on the roof generate clean energy. Rainscreen terracotta cladding and recessed eaves provide effective horizontal shading, while green roofs, ventilated cavity roofs, and double-layer walls around archives significantly enhance thermal insulation. The terracotta panels—made from natural clay—are recyclable, durable, and contribute to both thermal and acoustic performance.
▼外立面细部,Facade Details © 罗劲工作室
结语
Final Thoughts
从场地踏勘到方案落地,从图纸绘制到建筑落成,建筑从狭长地块中生长,从钢筋水泥化作融于城市、充满温度的公共空间,恰如长沙这座城市,在三千年营城岁月中不断生长、蜕变。
From site survey to design realization, from drawings to built form, the architecture has grown out of a narrow site—transforming from steel and concrete into a warm public space seamlessly integrated with the city. It mirrors Changsha itself: a city that has continuously grown and transformed over three thousand years of urban evolution.
▼充满温度的公共空间,Warm and Inviting Public Space © 夏至
▼首层城建展陈开放空间,Ground Floor Open Exhibition Space for Urban Construction © 夏至
在这座“会呼吸的档案库”里,BIM技术让沉睡的工程图纸在数字空间重生。穿过“长沙三千年”的架空展廊,西汉的城邑图与今日的智慧城市模型在虚拟空间中对话——原来三千年来,长沙人营城的智慧始终未变:以水为脉,以城为书,以民为魂。
In this “breathing archive,” BIM technology brings dormant construction drawings to life in the digital realm. Walking through the elevated exhibition corridor of “Three Thousand Years of Changsha,” one witnesses a dialogue in virtual space between the city maps of the Western Han dynasty and today’s smart city models—revealing that the wisdom of Changsha’s urban builders has remained unchanged for three millennia: water as the vein, the city as a book, and its people as the soul.
▼总平面图,Master Plan © 罗劲工作室
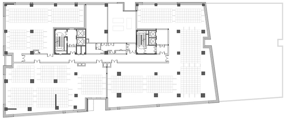
▼一层平面图,First floor plan © 罗劲工作室
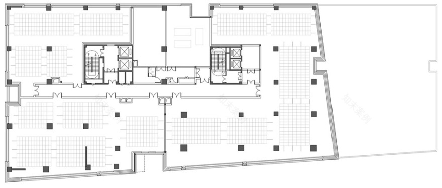
▼二层平面图,Second floor plan © 罗劲工作室
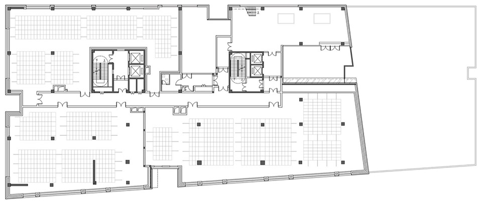
▼八至十七层平面图,Floor plans of the 8th to 17th floors © 罗劲工作室
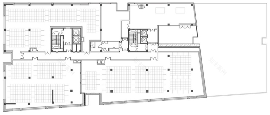
▼二十层平面图,Floor plan of the 20th floor © 罗劲工作室
▼立面图,Elevations © 罗劲工作室
▼剖面图,Sections © 罗劲工作室
项目名称:长沙城建信息中心
项目类型:文化建筑
设计方:中机国际工程设计研究院有限责任公司,罗劲工作室
项目设计:2020
完成年份:2024
设计团队:
项目总设计师——罗劲
项目负责人——李克
建筑设计——罗劲、李克、张程、李蕾、陈小明、刘佳、郭坤、杨丹
结构设计——江昊、朱江、易永锋、李小川、樊鑫淼、米晓玲
电气设计——陈展翔、赵津津、程卫权
给排水设计——卓运红、李剑、杨思琴
暖通设计——陈迪、陆凌
景观设计——程启
室内设计——沈清君、周孛蓓、王志、彭韵
幕墙亮化设计——张红良、徐铮、何赛男、曾旭
基坑支护——魏涛 刘利松 李亮 王露
项目地址:湖南省长沙市
建筑面积:67161.59㎡
摄影版权:夏至、罗劲工作室
客户:长沙市铁路建设投资开发有限公司
Project name: Changsha Urban Construction Information Center
Project type: Cultural Architecture
Design: China Machinery International Engineering Design & Research Institute Co., Ltd,LUO JIN STUDIO
Design year:2020
Completion Year:2024
Design Team:
Chief Designer — Luo Jin
Project Leader — Li Ke
Architectural Design — Luo Jin, Li Ke, Zhang Cheng, Li Lei, Chen Xiaoming, Liu Jia, Guo Kun, Yang Dan
Structural Design — Jiang Hao, Zhu Jiang, Yi Yongfeng, Li Xiaochuan, Fan Xinmiao, Mi Xiaoling
Electrical Design — Chen Zhanxiang, Zhao Jinjin, Cheng Weiquan
Plumbing and Drainage Design — Zhuo Yunhong, Li Jian, Yang Siqin
HVAC Design — Chen Di, Lu Ling
Landscape Design — Cheng Qi
Interior Design — Shen Qingjun, Zhou Beibei, Wang Zhi, Peng Yun
Facade and Lighting Design — Zhang Hongliang, Xu Zheng, He Sainan, Zeng Xu
Foundation Pit Support — Wei Tao, Liu Lisong, Li Liang, Wang Lu
Project Location: Changsha City, Hunan Province
Building Area: 67,161.59㎡
Photography Credits: Xia Zhi, LUO JIN STUDIO
Client: Changsha Railway Construction Investment and Development Co., Ltd.
客服
消息
收藏
下载
最近



























































