查看完整案例

收藏

下载

翻译
MATSKI HOUSE
STUDIO: ZROBIM architects
ARCHITECTS: Andrus Bezdar PHOTO: Kasia Syramalot
LOCATION: Minsk, Belarus
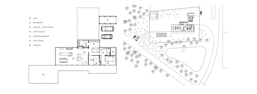
AREA: 157 m²
YEAR: 2023
A modern vision of fachwerk technology and traditional downshifting living. Free from fences, with 65% of panoramic glazing, and no inside doors, this house manifests a bold, exposed life, which is unique at this latitude. In addition, the house is built using technology, thanks to which it can be expanded as the family grows.
PROCESS
Moving away from the usual sloping roof and massive beams, a non-obvious solution has been found: the grid of panels is filled with frameless glazing, hiding the frame columns behind. This absence of visible elements creates a continuous, seamless surface, blurring the boundaries between interior and exterior.
The house features 65% panoramic glazing along the south-west façade for stunning views and passive heating.
The north façade is blank to reduce heat loss. Concrete floors and internal partitions enhance thermal inertia and the microclimate.
In the heart of the house rests an atrium with a living nut tree, changing with the seasons. The layout allows free movement without traditional corridors. Ceiling heights vary proportionally, with custom wooden planks and removable sections for hidden communications.
The monochromatic color scheme is complemented by natural materials. 95% of the furniture and lighting are custom solutions, reflecting the owner's needs and character, forming an impression of expensive natural minimalism.
The property originally contained a landfill, which the owner transformed into two inviting artificial ponds. Leveraging the significant site elevation difference, the architect created a cantilevered house that extends 4.5 meters over the edge, adding adventurous character. The roof supports green initiatives with integrated technical equipment.
UP-TO-DATE
The concept of expanding the house involves creating a more comfortable space, which will include four rooms: a children's room, a study, a spa area, and a large walk-in closet that will serve as a passageway.
The spa area will be a key feature, with a shower that has a skylight, a sauna with panoramic glazing, a relaxation zone with lounge chairs, armchairs, and a hanging fireplace, as well as access to the terrace. Additionally, there will be an outdoor spa zone with a jacuzzi designed for winter use, accessible via a small bridge. Despite being slightly removed from the main rooms, the spa area will provide a sense of seclusion and relaxation.
The walk-in closet (or showroom) will serve as a storage area and connect the other rooms. Next to the sports area and the bridge to the jacuzzi, there are plans to build a guest house. This will be a small building resembling a hotel room, with a separate bathroom, a mudroom at the entrance, and a living space with a bed, table, armchair, and television, offering guests independence and easy access to the main house's kitchen. All structures will maintain the post-and-beam style, with a concrete foundation, internal concrete partitions, and a glass perimeter, while the roof will be greened.
You can watch a complete overview of the house and its construction on the YouTube channel as part of a video series called "Architect's House"
Web-site Instagram FaceBook YouTube
客服
消息
收藏
下载
最近
























































