查看完整案例

收藏

下载

翻译
T S H N E T I G A R D E N
architectural project
by ZROBIM architects
ARCHITECTS: Valentine Stasiukiewicz, Olga Obroshko
LOCATION: Tshneti, Georgia
AREA: 580 sq.m.
YEAR: 2023
ABOUT
In this project we had to deal with a relief plot, which offers incredible views of the mountain range and Tbilisi. Wehad a task to place the house with the orientation of the main rooms on the perspective view, using all the advantages of the relief plot. This formed the contour of the future development.
В этом проекте мы имели дело с рельефным участком, с которого открывается невероятный вид на горный массив и Тбилиси. Перед нами стояла задача стояла задача разместить дом
с ориентацией основных помещений на перспективный вид, использовав все преимущества рельефного участка. Это и сформировало контур будущей застройки.
CONCEPT
The expressive image from the street side is formed by the clean geometry of the barn, which integrates a carport, entrance group and attic floor. The common area of the house is located in the lower glazed stylobate, which has direct communication with the courtyard space and is visually closed from the street.
Выразительный образ со стороны улицы сформирован чистой геометрией барна,
в который интегрированы автомобильный навес, входная группа, мансардный этаж. Общая зона дома разместилась в нижнем остекленном стилобате, который имеет прямую коммуникацию с дворовым пространством и визуально закрыт от улицы.
ARCHITECTURE
To maintain the idea of clean geometry of the facades, beveled planken in combination with transom bricks was used as the main finishing material. The composition
is complemented by a cantilevered volume finished with fiber concrete panels.
In combination with anthracite window units and wooden planken, they form
an unconventional minimalist image.
Для поддержания идеи чистой геометрии фасадов в качестве основного отделочного материала был использован скошеный планкен в сочетании с ригельным кирпичом. Дополняет композицию консольный объем отделанный фибробетонными панелями.
В сочетании с антрацитовыми оконными блоками и деревянным планкеном
они формируют незаурядный минималистичный образ.
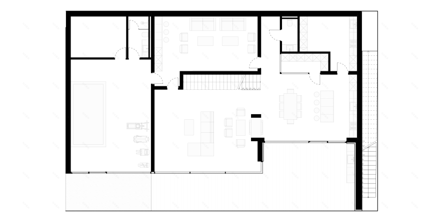
FIRST FLOOR
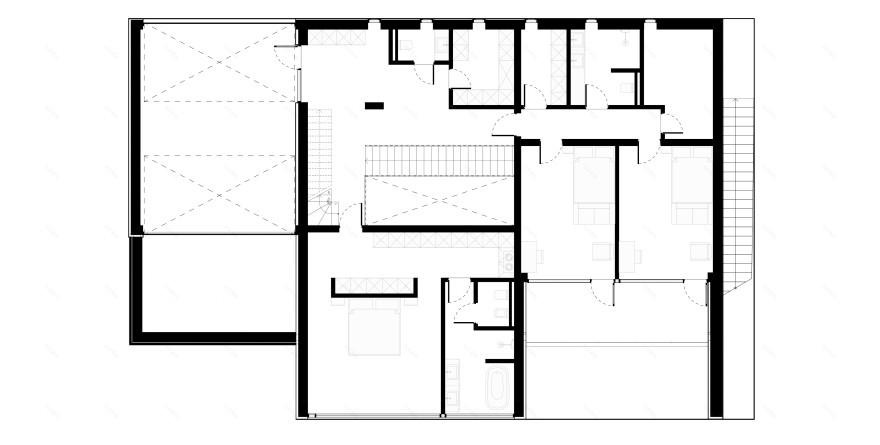
SECOND FLOOR
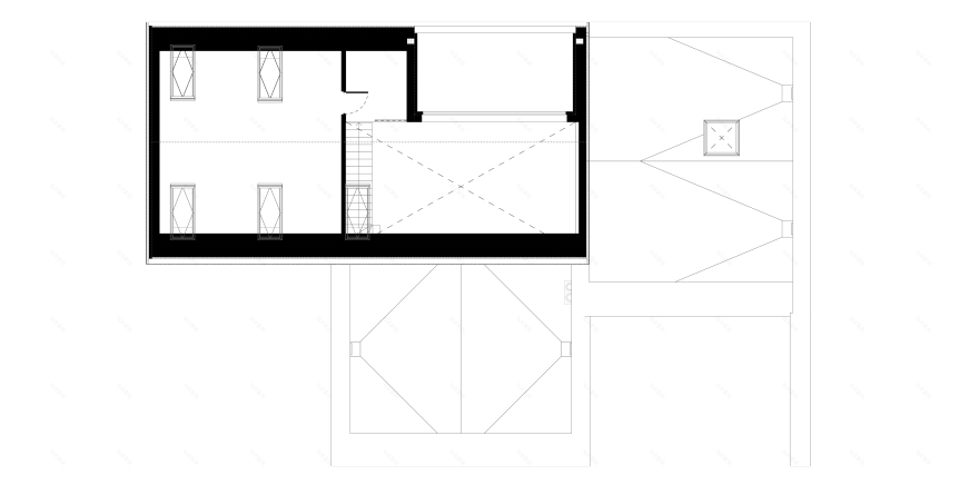
MANSARD FLOOR
客服
消息
收藏
下载
最近















