查看完整案例

收藏

下载
场地与氛围
Site and Atmosphere
廊园是一个很小的设计,功能是为串联起两个室内空间的动线,并和外界的自然建立良好的关系。
Café is a small design. Its function is to create a continuous flow between two indoor spaces and establish a harmonious connection with the outdoor nature.
▼项目鸟瞰,Aerial view of the project © 此间建筑摄影-赵奕龙
▼建筑概览,Overview of the project © 此间建筑摄影-赵奕龙
场地处于一个普通的办公园区内,单元式、半开放的多层建筑内院景观随意而普通。好在院内所种树木早已成林,早上和正午的阳光越过多层建筑的屋顶洒满庭院。在周遭繁忙的景象里,这是一片难得的静谧之地。
The site is located within an ordinary office park. The multi-story, semi-open building has a plain and unremarkable. Fortunately, the trees planted in the courtyard have already grown into a forest. In the morning and at noon, the sunlight, shining over the roofs of the multi-story buildings, spreads over the courtyard. Amid the busy surroundings, this is a rare place of tranquility.
▼树木成林的静谧之地,Tranquility forest © 此间建筑摄影-赵奕龙
光线与空间
Light and Space
我想保留并放大这个静谧的感觉——不仅是院内的景观,还有建筑内游走时的氛围。同时让院子里的杂树,通过设计的组合变得“入画”。
I want to retain and enhance this sense of tranquility – not only the scenery within the courtyard, but also the atmosphere when moving around inside the building. At the same time, I want to integrate the scattered trees in the courtyard into a ‘picture-perfect scene’ through the design combination.
▼入口,Entrance © 此间建筑摄影-赵奕龙
设计之始,我们现场测绘了所有树木。根据这个树木的点位,植入一个实体的盒子和一个虚空间的连廊,来串联已有L形建筑的两支。
At the beginning of the design process, we conducted on-site surveys of all the trees. Based on these tree positions, we placed an actual box and a void corridor to connect the two branches of the existing L-shaped building.
▼空间连廊,Corridor © 此间建筑摄影-赵奕龙
实体部分用木纹清水混凝土浇筑,虚空间部分用白色陶瓷洞洞砖作为围护结构。从实体空间走向虚空间的过程,刻意营造了光线氛围从漫射光到封闭,再到半开敞廊架的明亮光线氛围。视线也从封闭走向开放,欲扬先抑的设计让内向庭院的原生态大树产生了聚焦的效果。
The solid part is constructed with wood-grain concrete, while the void space is enclosed by white ceramic perforated bricks. The process of moving from the physical space to the virtual space deliberately creates a light atmosphere that shifts from diffuse light to enclosed, and then to semi-open pergolas, presenting a bright light environment. The line of sight also moves from enclosed to open, and the design that starts with suppression and then builds up creates a focused effect on the original trees in the inward-facing courtyard.
▼白色陶瓷洞洞砖围护结构,Enclosed white ceramic perforated bricks © 此间建筑摄影-赵奕龙
▼半开敞廊架,Semi-open pergolas © 此间建筑摄影-赵奕龙
除了清水混凝土,用U型玻璃过滤南向的强烈光线,氤氲的光感让空间静谧。长廊的陶瓷洞洞砖,过滤了光线,营造了不同视线限制程度的游走关系。靠近主人流通过的连廊,通过面向室内空间一侧安装的洞洞陶瓷砖,避免了餐厅被连廊内路人的视线干扰。非靠近主人流方向的连廊一侧,完全打开,营造了餐厅半私密的小庭院。面向四合院大树一侧,控制洞洞砖的安装,形成框景。整体长廊体现出轻质、纯白、静谧的感觉。
In addition to the fair-faced concrete, U-shaped glass is used to filter the intense light from the south, creating a hazy light effect that makes the space quiet. The ceramic perforated bricks in the corridor filter the light; they create a relationship of movement with varying degrees of visual restrictions. The corridor near the owner’s passage, with the installation of perforated ceramic tiles on the side facing the interior space, avoids the dining room being disturbed by the view of passers-by inside the corridor. On the side of the corridor not facing the direction of the main flow, it is completely open, creating a semi-private small courtyard for the restaurant. Facing the big tree on the side of the quadrangle, the installation of the perforated bricks is controlled to form a framed view. The overall corridor conveys a sense of lightness, purity and tranquility.
▼轻质、纯白、静谧的感觉,Sense of lightness, purity and tranquility © 此间建筑摄影-赵奕龙
材质与建造
Materials and Construction
浇筑木纹混凝土的过程,试验了100宽,200宽、挤浆和不挤浆等多种效果,最后选定200宽带挤浆的效果。
During the process of pouring wood-grain concrete, various effects such as 100mm wide, 200mm wide, grouting and non-grouting were tested. Finally, the effect of 200mm wide grouting was selected.
▼立面局部,Partial view of facade © 此间建筑摄影-赵奕龙
木纹清水混凝土内墙保留原有的颜色和肌理,外墙只保留肌理,但整体喷白。白色的肌理与长廊的白瓷洞洞砖形成统一的表情。
The wood-grain concrete interior walls retain their original color and texture, while the exterior walls only keep the texture but are sprayed white throughout. The white texture combines with the white ceramic perforated bricks in the corridor to create a unified appearance.
▼外墙肌理,Exterior walls texture © 此间建筑摄影-赵奕龙
陶瓷洞洞砖,在比较了圆形、方形、菱形、四叶草形等多种空洞形态后,选择了四叶草的形态。因为这种形态在建筑设计中用的少,稍微不是那么跟风。陶瓷的材质,又让室外的建筑有了室内的感觉。长廊屋顶用钢板材质,控制边缘的厚度,并让开现有的树木。
The ceramic perforated bricks were designed with a four-leaf clover shape after comparing various types of hollow shapes such as circular, square, rhombic, and four-leafed. This shape was chosen because it is less commonly used in architectural design and not overly trendy. The ceramic material also gives the outdoor building an indoor feel.The roof of the long corridor is made of steel plates, with the thickness of the edges controlled and existing trees made way.
▼室内空间,Interior Space © 此间建筑摄影-赵奕龙
这是一个很小的设计,小到只是把现有建筑稍微做了连接,它赋予了原有空间更轻盈的气质,以及慢下来的心态。
It’s a small design, so small that it merely makes a slight connection to the existing building. It endows the original space with a lighter temperament and a more laid-back mindset.
▼夜览,Night view © 此间建筑摄影-赵奕龙
▼灯光设计,Lighting © 此间建筑摄影-赵奕龙
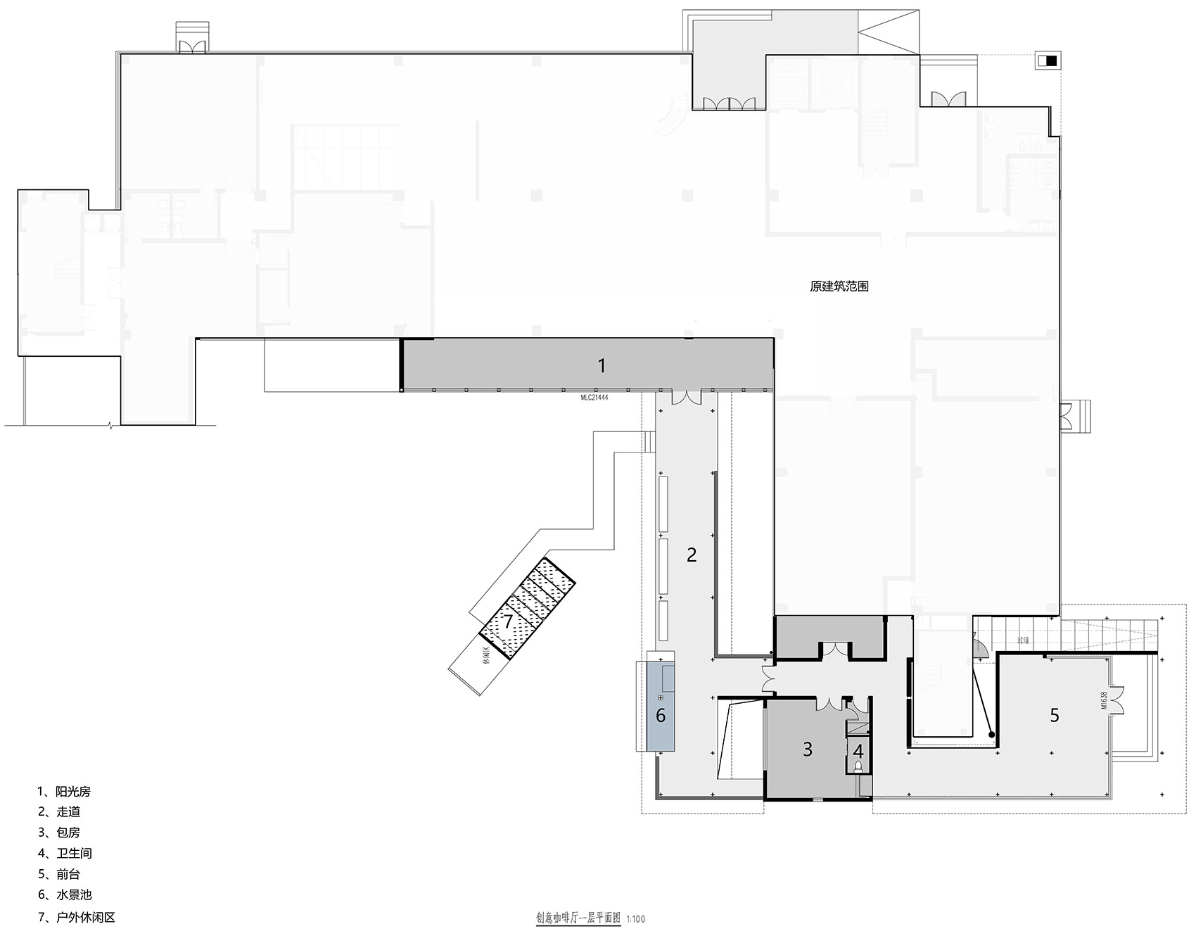
▼平面图,Floor plan © UAO瑞拓设计
▼立面图,Floor plan © UAO瑞拓设计
▼剖面图,Section © UAO瑞拓设计
项目名称:廊园设计,静谧与光明
项目地址:湖北省武汉市江夏区高新大道818号
业 主:武汉高科医疗器械园有限公司
项目规模:319㎡
设计单位:UAO瑞拓设计
主创设计师:李涛
设计团队:张杰铭、龙可成、童亭、姜海洋、阚文慧
施工团队:
摄 影:此间建筑摄影-赵奕龙
设计时间:2022年5月
施工时间:2022年12月
主要材料:木纹混凝土 – 现场浇筑;陶瓷空心砖 – 东鹏;乳胶漆 – 立邦
中 文:李涛
Project name: M Café,Silence and Light
Location: No. 818, Gaoxin Avenue, Jiangxia District, Wuhan City, Hubei Province
Clients: Wuhan High-Tech Medical Device Park Co., Ltd.
Project size: 319㎡
Office Name: UAO Design
Chief Designer: Li Tao
Design team: Zhang Jieming, Long Kecheng, Tong Ting, Jiang Haiyang, Kan Wenhui
Construction team:
Photographer: IN BETWEEN – Zhao Yilong
Design time: May, 2022
Construction time: Dec, 2022
Main materials: Wood-grain concrete – cast-in-place;Ceramic hollow tiles – DONGPENG;Latex paint – Nippon
Chinese: Li Tao
客服
消息
收藏
下载
最近
































