查看完整案例

收藏

下载

翻译
BARK HOUSE
architectural project
by ZROBIM architects
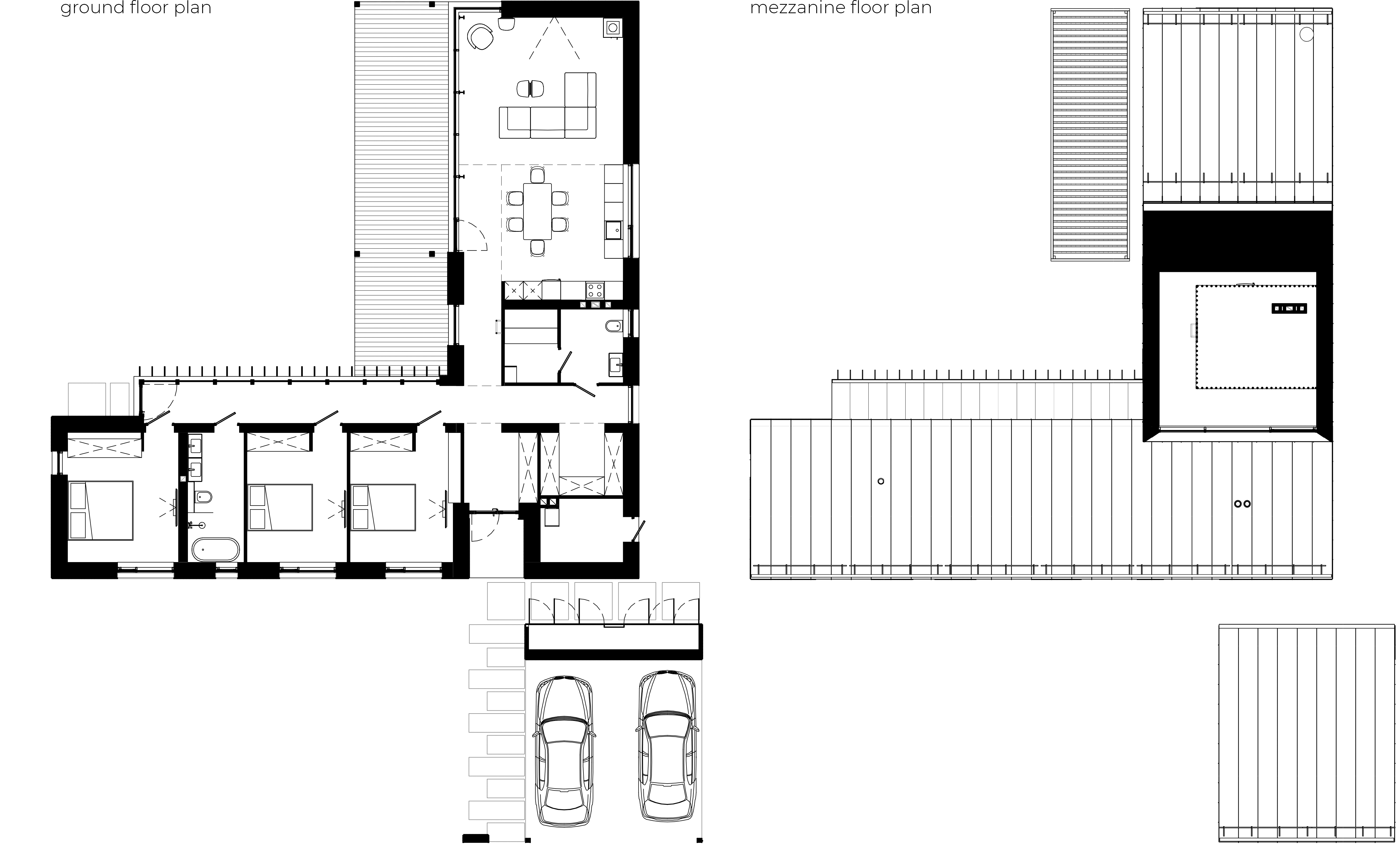
ARCHITECTS: Nikita Abanin, Uladzimir Babitski | LOCATION: Belarus, Minsk | AREA: 155 sq.m. | YEAR: 2021
PROJECT DESCRIPTION
Despite the small area, this house has many interesting features. First of all, the landing of the house on the site and its shape in plan are important. One-story, L-shaped and with an interesting composition of the roof, the house is located in the lower part of the plot at road level, which makes the entrance to the house convenient.
The house also has an unusual concept of materials. The wood on the facade is not covered with varnish and paint. This allows the facade to change over time, not to resist age, to respond to the weather. Such a peculiar reflection of the natural aging process.
Follow us on Instagram, Facebook and VK
Thank you for watching!
客服
消息
收藏
下载
最近














